Uruguay: ab in die Pampa
In Uruguays Grassteppe liegt das ländliche Idyll „Smokewood Garzón“. Mit Hilfe eines Architekturbüros haben es die Besitzer komfortabel renovieren lassen. Das Projekt zeigt anschaulich, welche Möglichkeiten in einem einfachen Holzhaus stecken
Rund 9.000 Kilometer südlich ihres Hauses im US-Ostküstenstaat Connecticut ist für Hannah und Jamie Lissette ein Traum Wirklichkeit geworden. Bei einem Uruguay-Urlaub wuchs die Sehnsucht nach dem ländlichen Refugium. Ein Platz in den sanften Hügeln der Grassteppe Uruguays, an dem sich richtig gut abschalten lässt und das Paar zusammen mit den beiden Kindern den Sommer der Südhalbkugel erleben kann – und der sich gut an Feriengäste vermieten lässt.
Die Wahl fiel auf eine knapp 24 Hektar große Liegenschaft bei dem Dorf Garzón im Südosten des Landes. Dass diese Idylle nur etwa 30 Kilometer vom beliebten und belebten KüstenortJosé Ignacio und dem Atlantischen Ozean entfernt liegt, spielte bei der Entscheidung natürlich eine wichtige Rolle. Zu „Smokewood Garzón“ gehörte ein für das ländliche Uruguay typisches, einfaches Gebäude im Ranchstil. Holz dominierte in dieser gut erhaltenen Residenz. Man stellte sich vor, hieraus ein Domizil zu schaffen, in dem Reminiszenzen des ländlichen Montanas, wo Hannah ihre Kindheit verbracht hatte, und lokale Rustikalität verschmelzen. Und an dem Jamie das Essen am offenen Feuer zubereiten kann.
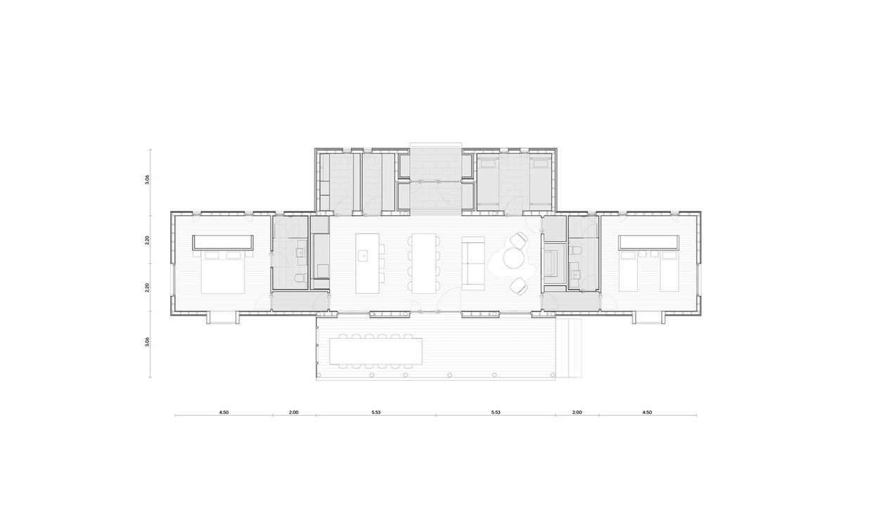
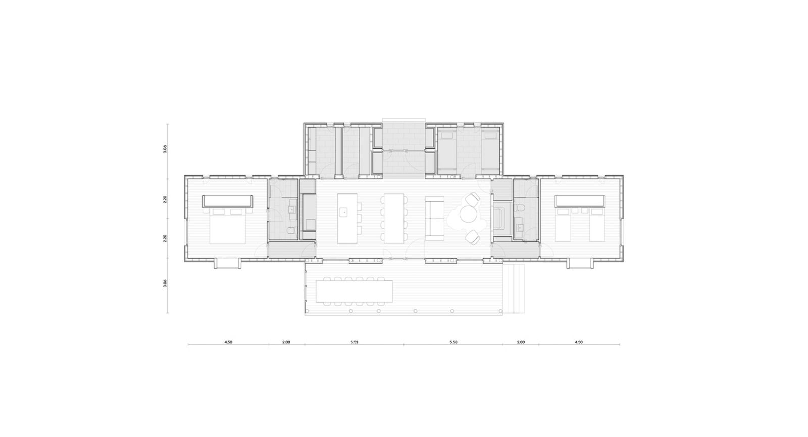
Das Paar beauftragte die Architekturfirma MAPA (Büros in Uruguay, Brasilien und den USA) damit, das Gebäude in ein zeitgemäßes und nachhaltiges Hideaway zu verwandeln. Bei der Renovierung setzten die Architekten zwar auf modernen Komfort, doch das Wesen des Gebäudes blieb durch die Integration des ursprünglichen Ranchgebäudes erhalten. Innen wurde ein offenes Konzept aus Salon, Esszimmer und Küche geschaffen. Außen bewahrte man den traditionellen Charme der klassischen Holz-Veranda. Zu beiden Seiten des Ranchgebäudes ergänzen zwei neu erbaute Flügel, die Platz für Schlafräume und Bäder bieten, jetzt die Struktur. Diese Anbauten spiegeln sich in der Gestaltung der Außenfassade wider – das alte Holz der Ranch kontrastiert harmonisch mit den schwarzen Platten aus gewelltem Metall.
Gebäudestruktur: Konzept und Details
Unter Erhalt von originalen Baustrukturen und alten Elementen wurde das Haus modernisiert und erweitert
Kontakt
MAPA Architects (Büros in Montevideo, Porto Alegre, Los Angeles), Tel.: +598 26 24 05 30, mapaarq.com. Für Urlauber ist „Smokewood Garzón“ zu mieten über Airbnb ab ca. 300 Euro/Tag