Angebot 71 von 17800

Anbieter kontaktieren

AGB, Datenschutz & Verbraucherhinweis wurden gelesen und akzeptiert.

Mayer & Dau Immobilien Mallorca S.L.

Sophie Engelskircher
14193 Berlin
  • Mehr erfahren
bellevue.de-ID: 30634809

Möblierte Wohnung (3.OG) mit vielen Highlights + zusätzlichem Raum mit kleinem Bad (EG) in Toplage!

  • Wohnung
  • · 4 Zimmer
  • · 131 m² Wohnfläche
  • · 945.000 € Kaufpreis
Anbieter kontaktieren

Objektbeschreibung

Diskrete Vermarktung:
Ausführliches Bildmaterial stellen wir Ihnen auf Anfrage im Exposé gerne zur Verfügung.

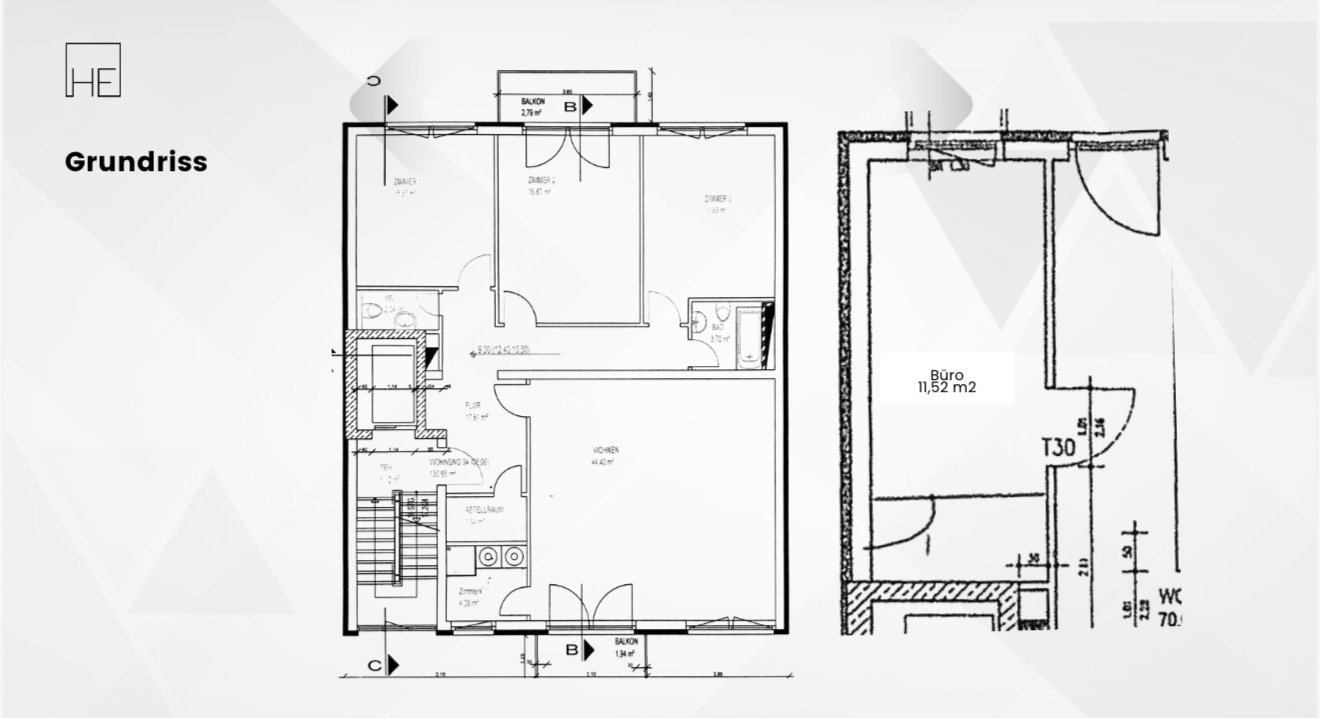
Diese möblierte 4-Zimmer-Wohnung aus dem Baujahr 2010 überzeugt durch ein durchdachtes Wohnkonzept, hochwertige Ausstattungsdetails und eine ...mehr lesen
Diskrete Vermarktung:
Ausführliches Bildmaterial stellen wir Ihnen auf Anfrage im Exposé gerne zur Verfügung.

Diese möblierte 4-Zimmer-Wohnung aus dem Baujahr 2010 überzeugt durch ein durchdachtes Wohnkonzept, hochwertige Ausstattungsdetails und eine klare architektonische Linie. Die Immobilie befindet sich in einem gepflegten Zustand.

Bereits beim Eintreten zeigt sich die harmonische Verbindung aus Funktionalität und Ästhetik. Maßgefertigte Einbauten schaffen optimale Stauraumlösungen, während die Raumstruktur ein angenehmes Wohngefühl vermittelt. Eine durchgängige Fußbodenheizung sowie Handtuchheizkörper in den Bädern sorgen für ein komfortables Wohnklima. Ergänzt wird dies durch eine moderne Videosprechanlage.

Bodentiefe Fensterflächen lassen viel Tageslicht in die Räume und verleihen der Wohnung eine freundliche Atmosphäre. Der Wohn- und Essbereich bildet den zentralen Treffpunkt und geht fließend in die offen gestaltete Einbauküche über. Diese ist mit hochwertigen Markengeräten ausgestattet und fügt sich stimmig in das Gesamtbild ein.

Zwei Balkone erweitern den Wohnraum nach außen und bieten angenehme Rückzugsmöglichkeiten. Für zusätzliche Behaglichkeit sorgt eine Klimaanlage im Wohnbereich. Ein praktischer Abstellraum innerhalb der Einheit sowie ein separates Kellerabteil schaffen weitere Nutzflächen.

Die Wohnung befindet sich im 3. Obergeschoss und ist bequem über einen Aufzug erreichbar. Besonders hervorzuheben ist die Privatsphäre auf dieser Ebene, da sich dort lediglich eine Einheit befindet.

Ein separater Raum im Erdgeschoss mit Dusche und WC (ca. 12 m²) ist im Kaufpreis enthalten und eignet sich ideal für konzentriertes Arbeiten, als individueller Rückzugsort, Sport- oder Hobbyraum.

Diese Immobilie vereint Qualität, Ruhe und eine durchdachte Gestaltung zu einem stimmigen Gesamtangebot.

Immobiliendetails

  • Nutzungsart
    Wohnen
  • Objektart
    Etagenwohnung
  • Hauptobjektart
    Wohnung
  • Vertragsart
    Kauf
  • Baujahr
    2010
  • Zimmer (gesamt)
    4
  • Anzahl Schlafzimmer
    3
  • Anzahl Badezimmer
    1
  • Anzahl separate WC
    2
  • Wohnfläche (ca.)
    131 m²
  • Nutzfläche (ca.)
    12 m²
  • Küche
    Einbauküche (EBK), 1
  • Anbieter-Objektnummer
    9649

Preise & Kosten

  • Hausgeld pro Monat
    343 €
  • Courtage
    3,57 % inklusive der gesetzlichen Mehrwertsteuer

Energie

  • Heizungsart
    Zentralheizung, Fernheizung
  • Energieausweis
    Energieverbrauchsausweis
  • Endenergieverbrauch
    72 kWh/(m²*a)
  • Energiepass gültig bis
    2030-11-30
  • Energieeffizienzklasse
    B
  • Gebäudeart
    Wohngebäude
  • Wesentlicher Energieträger
    FERN
  • Ausgestellt
    nach dem 1.5.2014

Ausstattung

  • Möbliert

Standort & Lage

Die Umgebung überzeugt durch ihre lebendige Lage im begehrten Berliner Bezirk Mitte, an der Schnittstelle zu Kreuzberg. Hier verbinden sich Stadtleben, kulturelle Vielfalt und eine hervorragend ausgebaute Infrastruktur auf ideale Weise.

Zahlreiche ...mehr lesen
Die Umgebung überzeugt durch ihre lebendige Lage im begehrten Berliner Bezirk Mitte, an der Schnittstelle zu Kreuzberg. Hier verbinden sich Stadtleben, kulturelle Vielfalt und eine hervorragend ausgebaute Infrastruktur auf ideale Weise.

Zahlreiche Einkaufsmöglichkeiten für den täglichen Bedarf sowie vielfältige Restaurants, Cafés und kleine Boutiquen finden Sie in unmittelbarer Umgebung vor. Ob entspanntes Frühstück, internationales Dinner oder der schnelle Einkauf zwischendurch, hier kommen Genießer und Stadtliebhaber voll und ganz auf ihre Kosten.

Auch Familien profitieren von einer sehr guten Versorgung: Kitas, Grundschulen sowie weiterführende Schulen befinden sich in der näheren Umgebung und sind bequem erreichbar. Ergänzt wird dies durch eine breite medizinische Infrastruktur mit Ärzten, Fachärzten und Apotheken.

Die Anbindung an den öffentlichen Nahverkehr ist ausgezeichnet. Mehrere U-Bahn- und Buslinien gewährleisten eine schnelle Erreichbarkeit der Berliner Innenstadt sowie aller weiteren Stadtteile. Auch mit dem Auto sind wichtige Verkehrsachsen in kurzer Zeit erreichbar, wodurch eine gute regionale und überregionale Vernetzung gegeben ist.

Für Erholung im Grünen sorgt das nahegelegene Engelbecken, das mit seinen Wasserflächen und ruhigen Aufenthaltsbereichen zu Spaziergängen und entspannten Stunden im Freien einlädt. Auch die Spreeufer sind nicht weit entfernt und bieten zusätzliche Möglichkeiten zur aktiven Freizeitgestaltung.

Darüber hinaus prägen kulturelle Einrichtungen, Galerien sowie die Nähe zu historischen Sehenswürdigkeiten das Umfeld und verleihen dem Quartier einen besonderen Charakter. Die Kombination aus gewachsener Struktur und dynamischer Entwicklung macht diesen Standort langfristig besonders attraktiv.

Insgesamt bietet diese Lage eine ausgewogene Verbindung aus lebendigem Umfeld, hervorragender Infrastruktur und vielseitigen Freizeitmöglichkeiten, ideal für alle, die Berlin in seiner ganzen Vielfalt erleben möchten.

10179 Berlin · DEU

Die genaue Anschrift erfahren Sie vom Anbieter

Anbieter

Logo von Mayer & Dau Immobilien Mallorca S.L.

Mayer & Dau Immobilien Mallorca S.L.

Herr Benjamin Dau
Carrer d'Elionor Servera 77
07590 Cala Ratjada
2026 Best Property Agents

Ansprechpartner

Verbraucherhinweis

Widerrufsbelehrung des Anbieters

(Gilt nicht für Wohnraummiete in Deutschland)

Widerrufsrecht für Verbraucher
Sie haben das Recht, binnen vierzehn Tagen ohne Angabe von Gründen diesen Vertrag zu widerrufen. Die Widerrufsfrist beträgt vierzehn Tage ab dem Tag des Vertragsabschlusses.
Um Ihr Widerrufsrecht auszuüben, müssen Sie uns (Mayer & Dau Immobilien GmbH, Am Hogen Hagen 31, 26160 Bad Zwischenahn, 04403 3099, 04403 937429, info@mayer-dau.de) mittels einer eindeutigen Erklärung (z. B. ein mit der Post versandter Brief, Telefax oder E-Mail) über Ihren Entschluss, diesen Vertrag zu widerrufen, informieren. Sie können dafür das beigefügte Muster-Widerrufsformular verwenden, das jedoch nicht vorgeschrieben ist. Zur Wahrung der Widerrufsfrist reicht es aus, dass Sie die Mitteilung über die Ausübung des Widerrufsrechts vor Ablauf der Widerrufsfrist absenden.

Folgen des Widerrufs
Wenn Sie diesen Vertrag widerrufen, haben wir Ihnen alle Zahlungen, die wir von Ihnen erhalten haben, einschließlich der Lieferkosten (mit Ausnahme der zusätzlichen Kosten, die sich daraus ergeben, dass Sie eine andere Art der Lieferung als die von uns angebotene, günstigste Standardlieferung gewählt haben), unverzüglich und spätestens binnen vierzehn Tagen ab dem Tag zurückzuzahlen, an dem die Mitteilung über Ihren Widerruf dieses Vertrags bei uns eingegangen ist. Für diese Rückzahlung verwenden wir dasselbe Zahlungsmittel, das Sie bei der ursprünglichen Transaktion eingesetzt haben, es sei denn, mit Ihnen wurde ausdrücklich etwas anderes vereinbart; in keinem Fall werden Ihnen wegen dieser Rückzahlung Entgelte berechnet. Haben Sie verlangt, dass die Dienstleistungen während der Widerrufsfrist beginnen soll, so haben Sie uns einen angemessenen Betrag zu zahlen, der dem Anteil der bis zu dem Zeitpunkt, zu dem Sie uns von der Ausübung des Widerrufsrechts hinsichtlich dieses Vertrags unterrichten, bereits erbrachten Dienstleistungen im Vergleich zum Gesamtumfang der im Vertrag vorgesehenen Dienstleistungen entspricht.

Muster-Widerrufsformular
(Wenn Sie den Vertrag widerrufen wollen, dann füllen Sie dieses Formular aus und senden Sie es zurück.)

An Mayer & Dau Immobilien GmbH, Am Hogen Hagen 31, 26160 Bad Zwischenahn, 04403 3099, 04403 937429, info@mayer-dau.de

Hiermit widerrufe ich/wir den von mir/uns abgeschlossenen Vertrag über den Kauf der folgenden Waren /die Erbringung der folgenden Dienstleistung


Bestellt am /erhalten am

Name des/der Verbraucher(s)

Anschrift des/der Verbraucher(s)

Unterschrift des/der Verbraucher(s) (nur bei Mitteilung auf Papier)

Datum


( Unzutreffendes streichen )


Hinweis auf die Möglichkeit eines vorzeitigen Erlöschens des Widerrufsrechts

Ihr Widerrufsrecht erlischt, wenn wir unsere Leistung vollständig erbracht haben und mit der Ausführung der Leistung erst begonnen haben, nachdem Sie Ihre ausdrückliche Zustimmung gegeben haben und gleichzeitig Ihre Kenntnis davon bestätigt haben, dass Sie Ihr Widerrufsrecht bei vollständiger Vertragserfüllung durch uns verlieren.

Impressum Mayer & Dau Immobilien GmbH
VERTRETUNGSBERECHTIGTE/R
Benjamin Dau


Am Hogen Hagen 31
26160 Bad Zwischenahn
DEU
Tel.: 04403 3099
E-Mail: info@mayer-dau.de
Fax: 04403 937429
Homepage: www.mayer-dau.de

ZUSTÄNDIGE AUFSICHTSBEHÖRDE
Oldenburgische Industrie- und Handelskammer, Moslestraße 6, 26122 Oldenburg, DEU

HANDELSREGISTER-EINTRAG
HRB 203067
Amtsgericht Oldenburg

UST-ID-NUMMER
DE263564717
Anbieter kontaktieren

AGB, Datenschutz & Verbraucherhinweis wurden gelesen und akzeptiert.