Anbieter kontaktieren
Heese und Acar Immobilien GmbH
Acar
10585 Berlin
- Mehr erfahren
bellevue.de-ID: 30621939
Domizil am Wald: Geräumiges Einfamilienhaus mit 5,5 Zimmern, Energieeffizienzklasse A!
- Haus
- · 5.5 Zimmer
- · 168 m² Wohnfläche
- · 790 m² Grundstücksfläche
- · 729.900 € Kaufpreis
Objektbeschreibung
Im qualifizierten Alleinauftrag eines unserer Kunden
Dieses freistehende Einfamilienhaus der renommierten Firma Weber-Haus überzeugt mit ca. 168 m² Wohnfläche, 5,5 Zimmern und einer großzügigen Terrasse auf einem 790 m² großen Grundstück. Errichtet in ...mehr lesen
Dieses freistehende Einfamilienhaus der renommierten Firma Weber-Haus überzeugt mit ca. 168 m² Wohnfläche, 5,5 Zimmern und einer großzügigen Terrasse auf einem 790 m² großen Grundstück. Errichtet in ...mehr lesen
Im qualifizierten Alleinauftrag eines unserer Kunden
Dieses freistehende Einfamilienhaus der renommierten Firma Weber-Haus überzeugt mit ca. 168 m² Wohnfläche, 5,5 Zimmern und einer großzügigen Terrasse auf einem 790 m² großen Grundstück. Errichtet in nachhaltiger Holzständerbauweise und 2011 bezogen, ist das Haus perfekt für Familien, Paare mit Platzbedarf oder Menschen im Homeoffice.
Ein durchdachtes Energie- und Heizkonzept mit Solarthermie, PV-Anlage (800 W), Fußbodenheizung (für Wärmepumpe vorbereitet), sowie dreifach verglasten Fenstern (inkl. Rollläden) sorgt für hohen Wohnkomfort und Energieeffizienz (Energieklasse A).
Die moderne Ausstattung, flexible Raumaufteilung, ein sonniger Garten mit Terrasse sowie die Vorbereitung für einen Doppel-Carport machen dieses Haus ideal für Familien und alle, die großzügiges und nachhaltiges Wohnen schätzen.
Das Haus bietet eine durchdachte Raumaufteilung und hochwertige Ausstattung, die modernen Wohnkomfort mit praktischen Details vereint.
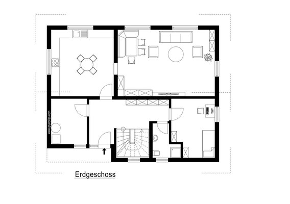
Im Erdgeschoss erwartet Sie ein praktischer Hauswirtschaftsraum mit allen wichtigen Medienanschlüssen sowie Platz für Waschmaschine und Trockner. Die zeitlos gestaltete Einbauküche überzeugt mit einem hochwertigen Gasherd (5 Flammen) und einem ergonomisch eingebauten Elektrobackofen – funktional und stilvoll zugleich.
Das großzügige, lichtdurchflutete Wohnzimmer mit bodentiefen Doppelfenstern in Südausrichtung lädt zum Verweilen ein. Die Vorbereitung für einen Kaminofen (externe Zuluft, Schornstein vorhanden) sowie eine integrierte Unterputzverkabelung für ein 5.1-Heimkinosystem machen diesen Raum zu einem echten Wohlfühlort.
Ein besonderes Highlight ist das Gästezimmer mit eigenem Bad, ausgestattet mit Dusche, WC und hochwertiger Sanitärkeramik von Villeroy & Boch – inklusive einer kleinen, privaten Terrasse. Ideal für Übernachtungsgäste oder als separates Arbeitszimmer.
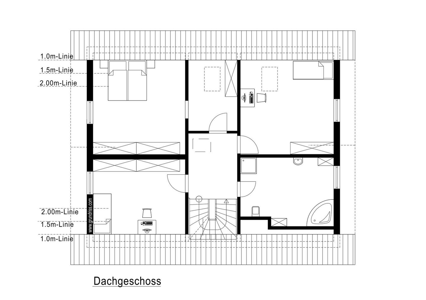
Im Obergeschoss befindet sich das großzügige Elternschlafzimmer mit einem angrenzenden Raum, der sich hervorragend als begehbarer Kleiderschrank nutzen lässt. Zwei weitere Zimmer bieten vielseitige Nutzungsmöglichkeiten – ideal als Kinder-, Gäste- oder Arbeitszimmer. Das geräumige Badezimmer überzeugt mit Badewanne, Dusche und hochwertiger Ausstattung von Villeroy & Boch.
Die sonnige Terrasse bietet viel Platz zum Entspannen und lässt sich bei Bedarf um einen Wintergarten oder eine Markise erweitern. Im Garten sorgen ein kleines Gartenhäuschen und ein Kletterturm für Kinder für zusätzlichen Komfort und Freizeitspaß. Die gepflasterte Einfahrt ist bereits für den Bau eines Doppel-Carports mit praktischem Anbau vorbereitet
Eine Wasserenthärtungsanlage sorgt für weiches Wasser, ein Kaminofen kann bei Bedarf angeschlossen werden – Schornstein und Zuluft sind vorhanden.
Internet & Netzwerk
Perfekt für Homeoffice: DSL bis 250 Mbit/s, Glasfaser im Ausbau und CAT7-Netzwerkverkabelung in allen Wohnräumen.
Wir haben Ihr Interesse geweckt? Kontaktieren Sie uns noch heute und vereinbaren Sie einen Besichtigungstermin. Wir freuen uns auf Sie!
Dieses freistehende Einfamilienhaus der renommierten Firma Weber-Haus überzeugt mit ca. 168 m² Wohnfläche, 5,5 Zimmern und einer großzügigen Terrasse auf einem 790 m² großen Grundstück. Errichtet in nachhaltiger Holzständerbauweise und 2011 bezogen, ist das Haus perfekt für Familien, Paare mit Platzbedarf oder Menschen im Homeoffice.
Ein durchdachtes Energie- und Heizkonzept mit Solarthermie, PV-Anlage (800 W), Fußbodenheizung (für Wärmepumpe vorbereitet), sowie dreifach verglasten Fenstern (inkl. Rollläden) sorgt für hohen Wohnkomfort und Energieeffizienz (Energieklasse A).
Die moderne Ausstattung, flexible Raumaufteilung, ein sonniger Garten mit Terrasse sowie die Vorbereitung für einen Doppel-Carport machen dieses Haus ideal für Familien und alle, die großzügiges und nachhaltiges Wohnen schätzen.
Das Haus bietet eine durchdachte Raumaufteilung und hochwertige Ausstattung, die modernen Wohnkomfort mit praktischen Details vereint.
Im Erdgeschoss erwartet Sie ein praktischer Hauswirtschaftsraum mit allen wichtigen Medienanschlüssen sowie Platz für Waschmaschine und Trockner. Die zeitlos gestaltete Einbauküche überzeugt mit einem hochwertigen Gasherd (5 Flammen) und einem ergonomisch eingebauten Elektrobackofen – funktional und stilvoll zugleich.
Das großzügige, lichtdurchflutete Wohnzimmer mit bodentiefen Doppelfenstern in Südausrichtung lädt zum Verweilen ein. Die Vorbereitung für einen Kaminofen (externe Zuluft, Schornstein vorhanden) sowie eine integrierte Unterputzverkabelung für ein 5.1-Heimkinosystem machen diesen Raum zu einem echten Wohlfühlort.
Ein besonderes Highlight ist das Gästezimmer mit eigenem Bad, ausgestattet mit Dusche, WC und hochwertiger Sanitärkeramik von Villeroy & Boch – inklusive einer kleinen, privaten Terrasse. Ideal für Übernachtungsgäste oder als separates Arbeitszimmer.
Im Obergeschoss befindet sich das großzügige Elternschlafzimmer mit einem angrenzenden Raum, der sich hervorragend als begehbarer Kleiderschrank nutzen lässt. Zwei weitere Zimmer bieten vielseitige Nutzungsmöglichkeiten – ideal als Kinder-, Gäste- oder Arbeitszimmer. Das geräumige Badezimmer überzeugt mit Badewanne, Dusche und hochwertiger Ausstattung von Villeroy & Boch.
Die sonnige Terrasse bietet viel Platz zum Entspannen und lässt sich bei Bedarf um einen Wintergarten oder eine Markise erweitern. Im Garten sorgen ein kleines Gartenhäuschen und ein Kletterturm für Kinder für zusätzlichen Komfort und Freizeitspaß. Die gepflasterte Einfahrt ist bereits für den Bau eines Doppel-Carports mit praktischem Anbau vorbereitet
Eine Wasserenthärtungsanlage sorgt für weiches Wasser, ein Kaminofen kann bei Bedarf angeschlossen werden – Schornstein und Zuluft sind vorhanden.
Internet & Netzwerk
Perfekt für Homeoffice: DSL bis 250 Mbit/s, Glasfaser im Ausbau und CAT7-Netzwerkverkabelung in allen Wohnräumen.
Wir haben Ihr Interesse geweckt? Kontaktieren Sie uns noch heute und vereinbaren Sie einen Besichtigungstermin. Wir freuen uns auf Sie!
Immobiliendetails
-
NutzungsartWohnen
-
ObjektartEinfamilienhaus
-
HauptobjektartHaus
-
VertragsartKauf
-
ObjektzustandGepflegt
-
Baujahr2011
-
Zimmer (gesamt)5,5
-
Anzahl Schlafzimmer4
-
Anzahl Badezimmer2
-
Anzahl Parkflächen3
-
Wohnfläche (ca.)168 m²
-
Grundstücksfläche (ca.)790 m²
-
KücheEinbauküche (EBK)
-
Balkon1
-
Balkon/Terrasse (ca.)33 m²
-
BadBad mit Dusche und Badewanne, Bad mit Fenster, Duschbad
-
Freier Stellplatz3
-
StellplatzartFreiplatz
-
Anzahl Etagen2
-
AusstattungskategorieStandard
-
FußbodenFliesen, Laminat
-
Verfügbarkeitab sofort
-
Anbieter-Objektnummer20250428
Preise & Kosten
-
Courtage2,80 % vom Kaufpreis inkl. 19 % gesetzlicher MwSt., zahlbar vom Käufer. Die Provision ist fällig und verdient mit Beurkundung des Kaufvertrages. Wir haben einen provisionspflichtigen Maklervertrag mit dem Verkäufer in gleicher Höhe abgeschlossen.
2,80 % inklusive der gesetzlichen Mehrwertsteuer
Energie
-
HeizungsartFussbodenheizung
-
BefeuerungsartGas
-
EnergieausweisEnergieverbrauchsausweis
-
Energiepass gültig bis25.10.2034
-
EnergieeffizienzklasseA
-
GebäudeartWohngebäude
-
Wesentlicher EnergieträgerGas
Ausstattung
- Gäste-WC
- Garten
+ 5,5 Zimmer
+ ca. 168 m² Wohnfläche
+ ca. 33 m² Terrasse mit Südausrichtung
+ Baujahr 2011
+ Dachflächen in Nord-Süd-Ausrichtung mit Photovoltaik- und Warmwasser-Solarplatten
+ Alle Fenster mit 3-fach-Isolierverglasung und Rollläden
+ Große Einfahrt mit ...mehr lesen
+ ca. 168 m² Wohnfläche
+ ca. 33 m² Terrasse mit Südausrichtung
+ Baujahr 2011
+ Dachflächen in Nord-Süd-Ausrichtung mit Photovoltaik- und Warmwasser-Solarplatten
+ Alle Fenster mit 3-fach-Isolierverglasung und Rollläden
+ Große Einfahrt mit ...mehr lesen
+ 5,5 Zimmer
+ ca. 168 m² Wohnfläche
+ ca. 33 m² Terrasse mit Südausrichtung
+ Baujahr 2011
+ Dachflächen in Nord-Süd-Ausrichtung mit Photovoltaik- und Warmwasser-Solarplatten
+ Alle Fenster mit 3-fach-Isolierverglasung und Rollläden
+ Große Einfahrt mit Stellplätzen – ideal für Besuch oder Hobby
+ Die Planung für den Bau eines Doppel-Carports mit Anbau ist bereits vorbereitet
+ Hauswirtschaftsraum mit allen Medienanschlüssen, Platz für Waschmaschine und Trockner
+ Einbauküche im zeitlosen Stil, ausgestattet mit einem Gasherd (5 Flammen) und einem E-Backofen
+ Gästezimmer mit eigenem Bad (Dusche/WC) und Keramiken von Villeroy & Boch und eigener kleiner Terrasse
+ Großes Badezimmer mit Badewanne und Dusche, ausgestattet mit Keramiken von Villeroy & Boch
+ Große, sonnige Terrasse mit der Option, einen Wintergarten oder eine Markise anzubauen
+ Kleines Gartenhäuschen und Kletterturm für Kinder
+ Gepflasterte Einfahrt, die den Bau eines Doppel-Carports mit Anbau ermöglicht
+ Gasbrennwerttherme mit Solarthermie (4 Platten) und Speicher für eine
umweltfreundliche Heizungs- und Warmwasserversorgung
+ Fußbodenheizung, die für den Betrieb mit einer Wärmepumpe ausgelegt ist
+ Wasserenthärtungsanlage für besonders weiches Wasser
+ Vorbereitung für einen Kaminofen (externe Zuluft, Schornstein vorhanden)
+ DSL-Anschluss bis 250 Mbit/s, Glasfaseranschluss ist aktuell im Ausbau (bis zu 10 Gbit/s).
+ ca. 168 m² Wohnfläche
+ ca. 33 m² Terrasse mit Südausrichtung
+ Baujahr 2011
+ Dachflächen in Nord-Süd-Ausrichtung mit Photovoltaik- und Warmwasser-Solarplatten
+ Alle Fenster mit 3-fach-Isolierverglasung und Rollläden
+ Große Einfahrt mit Stellplätzen – ideal für Besuch oder Hobby
+ Die Planung für den Bau eines Doppel-Carports mit Anbau ist bereits vorbereitet
+ Hauswirtschaftsraum mit allen Medienanschlüssen, Platz für Waschmaschine und Trockner
+ Einbauküche im zeitlosen Stil, ausgestattet mit einem Gasherd (5 Flammen) und einem E-Backofen
+ Gästezimmer mit eigenem Bad (Dusche/WC) und Keramiken von Villeroy & Boch und eigener kleiner Terrasse
+ Großes Badezimmer mit Badewanne und Dusche, ausgestattet mit Keramiken von Villeroy & Boch
+ Große, sonnige Terrasse mit der Option, einen Wintergarten oder eine Markise anzubauen
+ Kleines Gartenhäuschen und Kletterturm für Kinder
+ Gepflasterte Einfahrt, die den Bau eines Doppel-Carports mit Anbau ermöglicht
+ Gasbrennwerttherme mit Solarthermie (4 Platten) und Speicher für eine
umweltfreundliche Heizungs- und Warmwasserversorgung
+ Fußbodenheizung, die für den Betrieb mit einer Wärmepumpe ausgelegt ist
+ Wasserenthärtungsanlage für besonders weiches Wasser
+ Vorbereitung für einen Kaminofen (externe Zuluft, Schornstein vorhanden)
+ DSL-Anschluss bis 250 Mbit/s, Glasfaseranschluss ist aktuell im Ausbau (bis zu 10 Gbit/s).
Standort & Lage
Falkensee, am Rand von Berlin gelegen, ist ein idealer Wohnort für Familien. Die Stadt bietet eine gute Auswahl an Schulen, Kindergärten, Einkaufsmöglichkeiten, Ärzten, Sporteinrichtungen (Freibad und Hallenbad) sowie kulturelle Angebote und
...mehr lesen
Falkensee, am Rand von Berlin gelegen, ist ein idealer Wohnort für Familien. Die Stadt bietet eine gute Auswahl an Schulen, Kindergärten, Einkaufsmöglichkeiten, Ärzten, Sporteinrichtungen (Freibad und Hallenbad) sowie kulturelle Angebote und Naherholungsgebiete – alles fußläufig oder mit dem Fahrrad erreichbar.
Das Wohngebiet befindet sich in einer ruhigen, abgelegenen Spielstraße am Rande eines idyllischen Waldes. Es liegt in zweiter Reihe zum Wald, wodurch die Sonne bis in den Herbst auf die Terrasse scheint und für eine angenehme Atmosphäre sorgt.
Trotz der ländlichen Ruhe ist die Verkehrsanbindung hervorragend. Zwei Buslinien sind zu Fuß schnell zu erreichen, und der nächste Bahnhof mit großem P&R-Parkplatz ist nur 4 Minuten mit dem Auto entfernt. Die Bahn benötigt nur 25-33 Minuten bis zum Berliner Hauptbahnhof.
Mit dem Auto erreichen Sie in etwa 10 Minuten den äußeren Berliner Ring A10.
Das Wohngebiet befindet sich in einer ruhigen, abgelegenen Spielstraße am Rande eines idyllischen Waldes. Es liegt in zweiter Reihe zum Wald, wodurch die Sonne bis in den Herbst auf die Terrasse scheint und für eine angenehme Atmosphäre sorgt.
Trotz der ländlichen Ruhe ist die Verkehrsanbindung hervorragend. Zwei Buslinien sind zu Fuß schnell zu erreichen, und der nächste Bahnhof mit großem P&R-Parkplatz ist nur 4 Minuten mit dem Auto entfernt. Die Bahn benötigt nur 25-33 Minuten bis zum Berliner Hauptbahnhof.
Mit dem Auto erreichen Sie in etwa 10 Minuten den äußeren Berliner Ring A10.
Sonstiges
Datenschutz und Vertraulichkeit:
Wir bitten um Ihr Verständnis, dass wir Exposés nur an Interessenten versenden, die uns ihre vollständige Adresse sowie Telefonnummer mitteilen. Ihre Daten behandeln wir selbstverständlich vertraulich und geben sie ...mehr lesen
Wir bitten um Ihr Verständnis, dass wir Exposés nur an Interessenten versenden, die uns ihre vollständige Adresse sowie Telefonnummer mitteilen. Ihre Daten behandeln wir selbstverständlich vertraulich und geben sie ...mehr lesen
Datenschutz und Vertraulichkeit:
Wir bitten um Ihr Verständnis, dass wir Exposés nur an Interessenten versenden, die uns ihre vollständige Adresse sowie Telefonnummer mitteilen. Ihre Daten behandeln wir selbstverständlich vertraulich und geben sie nicht an Dritte weiter.
Zuverlässige Begleitung:
Von der vertraulichen Erstberatung bis zur Übergabe stehen wir Ihnen jederzeit zuverlässig und kompetent zur Seite. Ihre Zufriedenheit ist uns wichtig– erst wenn Sie am Ende zufrieden sind, sind wir es auch.
Kontaktmöglichkeiten:
Sie erreichen uns unter der E-Mail-Adresse info@heeseundacar.de oder direkt telefonisch unter +49 30 93917603. Weitere Informationen finden Sie auf unserer Website: www.heeseundacar.de.
Wichtige Hinweise:
Haftungsausschluss / Zustand der Immobilie:
Alle Immobilien werden, sofern nicht ausdrücklich anders ausgewiesen (z. B. als Neubau), im gegenwärtigen Zustand („wie gesehen“) und in gebrauchtem Zustand verkauft.
Aussagen zum baulichen Zustand sowie zu technischen Einrichtungen – insbesondere Elektroinstallationen, Wasser- und Abwasserleitungen, Heizungs-, Sanitär- und sonstigen haustechnischen Anlagen – stellen keine Beschaffenheitsgarantie dar.
Es obliegt den Interessenten, den Zustand der Immobilie sowie aller technischen und baulichen Komponenten eigenständig zu prüfen. Die Hinzuziehung eines unabhängigen Sachverständigen und/oder Energieberaters wird ausdrücklich empfohlen, insbesondere zur Beurteilung aller baulichen, bauphysikalischen und energetischen Gegebenheiten.
Alle Angaben beruhen auf Informationen des Verkäufers oder Vermieters. Eine Haftung für deren Richtigkeit oder Vollständigkeit wird nicht übernommen. Sämtliche Angebote sind freibleibend und vorbehaltlich von Irrtümern, Zwischenverkauf, Zwischenvermietung oder sonstiger Zwischenverwertung.
Geldwäschegesetz:
Als Immobilienmaklerunternehmen sind wir gemäß § 2 Abs. 1 Nr. 14 und § 11 Abs. 1, 2 des Geldwäschegesetzes (GwG) verpflichtet, die Identität des Vertragspartners bei der Begründung einer Geschäftsbeziehung festzustellen und zu überprüfen, sobald ein ernsthaftes Interesse am Immobilienkaufvertrag besteht. Hierfür müssen wir gemäß § 11 Abs. 4 GwG relevante Daten Ihres Personalausweises festhalten (sofern Sie als natürliche Person handeln), beispielsweise durch eine Kopie. Bei juristischen Personen benötigen wir eine Kopie des Handelsregisterauszugs, aus dem der wirtschaftlich Berechtigte hervorgeht. Das Geldwäschegesetz schreibt vor, dass der Makler diese Kopien und Unterlagen fünf Jahre lang aufbewahren muss. Als unser Vertragspartner haben Sie auch eine Mitwirkungspflicht gemäß § 11 Abs. 6 GwG.
Wir bitten um Ihr Verständnis, dass wir Exposés nur an Interessenten versenden, die uns ihre vollständige Adresse sowie Telefonnummer mitteilen. Ihre Daten behandeln wir selbstverständlich vertraulich und geben sie nicht an Dritte weiter.
Zuverlässige Begleitung:
Von der vertraulichen Erstberatung bis zur Übergabe stehen wir Ihnen jederzeit zuverlässig und kompetent zur Seite. Ihre Zufriedenheit ist uns wichtig– erst wenn Sie am Ende zufrieden sind, sind wir es auch.
Kontaktmöglichkeiten:
Sie erreichen uns unter der E-Mail-Adresse info@heeseundacar.de oder direkt telefonisch unter +49 30 93917603. Weitere Informationen finden Sie auf unserer Website: www.heeseundacar.de.
Wichtige Hinweise:
Haftungsausschluss / Zustand der Immobilie:
Alle Immobilien werden, sofern nicht ausdrücklich anders ausgewiesen (z. B. als Neubau), im gegenwärtigen Zustand („wie gesehen“) und in gebrauchtem Zustand verkauft.
Aussagen zum baulichen Zustand sowie zu technischen Einrichtungen – insbesondere Elektroinstallationen, Wasser- und Abwasserleitungen, Heizungs-, Sanitär- und sonstigen haustechnischen Anlagen – stellen keine Beschaffenheitsgarantie dar.
Es obliegt den Interessenten, den Zustand der Immobilie sowie aller technischen und baulichen Komponenten eigenständig zu prüfen. Die Hinzuziehung eines unabhängigen Sachverständigen und/oder Energieberaters wird ausdrücklich empfohlen, insbesondere zur Beurteilung aller baulichen, bauphysikalischen und energetischen Gegebenheiten.
Alle Angaben beruhen auf Informationen des Verkäufers oder Vermieters. Eine Haftung für deren Richtigkeit oder Vollständigkeit wird nicht übernommen. Sämtliche Angebote sind freibleibend und vorbehaltlich von Irrtümern, Zwischenverkauf, Zwischenvermietung oder sonstiger Zwischenverwertung.
Geldwäschegesetz:
Als Immobilienmaklerunternehmen sind wir gemäß § 2 Abs. 1 Nr. 14 und § 11 Abs. 1, 2 des Geldwäschegesetzes (GwG) verpflichtet, die Identität des Vertragspartners bei der Begründung einer Geschäftsbeziehung festzustellen und zu überprüfen, sobald ein ernsthaftes Interesse am Immobilienkaufvertrag besteht. Hierfür müssen wir gemäß § 11 Abs. 4 GwG relevante Daten Ihres Personalausweises festhalten (sofern Sie als natürliche Person handeln), beispielsweise durch eine Kopie. Bei juristischen Personen benötigen wir eine Kopie des Handelsregisterauszugs, aus dem der wirtschaftlich Berechtigte hervorgeht. Das Geldwäschegesetz schreibt vor, dass der Makler diese Kopien und Unterlagen fünf Jahre lang aufbewahren muss. Als unser Vertragspartner haben Sie auch eine Mitwirkungspflicht gemäß § 11 Abs. 6 GwG.
Anbieter
Heese und Acar Immobilien GmbH
Firma Heese und Acar Immobilien GmbH
Spielhagenstraße 7
10585 Berlin
10585 Berlin