Angebot 2201 von 14905

Anbieter kontaktieren

AGB, Datenschutz & Verbraucherhinweis wurden gelesen und akzeptiert.

IMMO-TEAM GmbH & Co. KG

Darwin Gruber
70182 Stuttgart
  • Mehr erfahren
bellevue.de-ID: 30612993

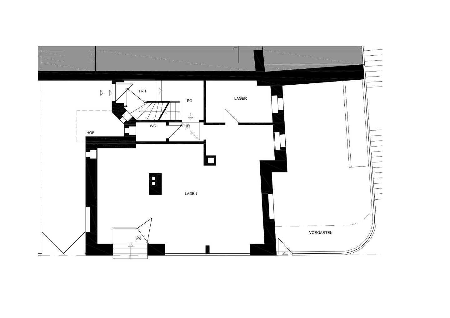
Ladenfläche in Top-Lage

  • Büro/Praxis
  • · 2 Zimmer
  • · 950 € Miete zzgl. NK
Anbieter kontaktieren

Objektbeschreibung

Die zur Vermietung stehende Ladenfläche befindet sich in der Alexanderstraße im beliebten Stuttgarter Süden. Auf rund 70 m² bietet das Objekt eine attraktive Raumaufteilung mit großzügiger Verkaufsfläche, Nebenraum sowie WC und Flur. Die große ...mehr lesen
Die zur Vermietung stehende Ladenfläche befindet sich in der Alexanderstraße im beliebten Stuttgarter Süden. Auf rund 70 m² bietet das Objekt eine attraktive Raumaufteilung mit großzügiger Verkaufsfläche, Nebenraum sowie WC und Flur. Die große Schaufensterfront sorgt für gute Sichtbarkeit und natürliche Belichtung.

Die Fläche eignet sich ideal für verschiedene Nutzungen im Bereich Einzelhandel, Dienstleistungen, Praxis oder kreative Arbeitskonzepte. Dank der Lage in einem lebendigen Wohn- und Geschäftsviertel profitieren künftige Mieter von einem abwechslungsreichen Umfeld mit hoher Frequenz.

Die Anbindung an den öffentlichen Nahverkehr ist sehr gut, auch mit dem Auto ist der Standort bequem erreichbar. Damit bietet die Fläche vielseitige Möglichkeiten für unterschiedliche Geschäftsideen in zentraler und attraktiver Lage.

Immobiliendetails

  • Nutzungsart
    Gewerbe
  • Objektart
    Bürofläche
  • Hauptobjektart
    Büro/Praxis
  • Vertragsart
    Miete
  • Objektzustand
    Gepflegt
  • Baujahr
    1903
  • Zimmer (gesamt)
    2
  • Anzahl separate WC
    1
  • Gesamtfläche (ca.)
    95,3 m²
  • Nutzfläche (ca.)
    25,26 m²
  • Büro-/Praxisfläche (ca.)
    70,03 m²
  • Küche
    Einbauküche (EBK)
  • Etage
    1
  • Anzahl Etagen
    6
  • Fußboden
    Laminat
  • Verfügbarkeit
    ab 01.12.2025
  • Anbieter-Objektnummer
    11129#SuIhQ

Preise & Kosten

  • Miete inkl. Nebenkosten
    1.130 €
  • Nebenkosten
    180 €
  • Courtage
    3,57 Kaltmieten inkl. 19% MwSt.

    3,57 % inklusive der gesetzlichen Mehrwertsteuer

Energie

  • Heizungsart
    Zentralheizung
  • Befeuerungsart
    Gas
  • Energieausweis
    Energiebedarfsausweis
  • Endenergiebedarf
    133,5 kWh/(m²*a)
  • Baujahr (laut Energieausweis)
    1903
  • Energiepass gültig bis
    25.06.2024
  • Energieeffizienzklasse
    E
  • Gebäudeart
    Nicht-Wohngebäude
  • Wesentlicher Energieträger
    Gas
  • Ausgestellt
    nach dem 1.5.2014

Standort & Lage

Die Ladenfläche liegt im beliebten Stuttgarter Süden, im Stadtteil Lehen. Die Alexanderstraße ist eine gut frequentierte Verbindungsstraße mit einer Mischung aus Wohn- und Geschäftshäusern. In der direkten Umgebung befinden sich zahlreiche Cafés, ...mehr lesen
Die Ladenfläche liegt im beliebten Stuttgarter Süden, im Stadtteil Lehen. Die Alexanderstraße ist eine gut frequentierte Verbindungsstraße mit einer Mischung aus Wohn- und Geschäftshäusern. In der direkten Umgebung befinden sich zahlreiche Cafés, Restaurants, kleine Läden sowie Dienstleistungsbetriebe, die für eine lebendige Nachbarschaft und Laufkundschaft sorgen. Der Standort ist sowohl mit öffentlichen Verkehrsmitteln (Stadtbahn- und Buslinien) als auch mit dem Auto sehr gut erreichbar.

70180 Stuttgart · DEU

Die genaue Anschrift erfahren Sie vom Anbieter

Sonstiges

UNSER SERVICE FÜR SIE ALS EIGENTÜMER:
Planen Sie den Verkauf oder die Vermietung Ihrer Immobilie,
so ist es für Sie wichtig, deren Marktwert zu kennen. Lassen Sie kostenfrei und unverbindlich den aktuellen Wert Ihrer Immobilie professionell durch ...mehr lesen
UNSER SERVICE FÜR SIE ALS EIGENTÜMER:
Planen Sie den Verkauf oder die Vermietung Ihrer Immobilie,
so ist es für Sie wichtig, deren Marktwert zu kennen. Lassen Sie kostenfrei und unverbindlich den aktuellen Wert Ihrer Immobilie professionell durch einen unserer Immobilienspezialisten einschätzen.
Erfahren Sie auch mehr zu unserem Premium-Service professionelles Home-Staging für unsere Immobilienbesitzer unter
0711 128 951 0 - wir freuen uns auf Ihre Kontaktaufnahme!

Sonstiges:
GELDWÄSCHE:
Als Immobilienmaklerunternehmen ist die Immo-Team GmbH & Co.KG nach § 2 Abs. 1 Nr. 14 und § 10 Abs. 3 Geldwäschegesetz (GwG) dazu verpflichtet, bei der Begründung einer Geschäftsbeziehung die Identität des Vertragspartners festzustellen und zu überprüfen. Hierzu ist es erforderlich, dass wir nach § 11 GwG die relevanten Daten Ihres Personalausweises festhalten (wenn Sie als natürliche Person handeln) – beispielsweise mittels einer Kopie. Bei einer juristischen Person benötigen wir eine Kopie des Handelsregisterauszugs, aus welchem der wirtschaftlich Berechtigte hervorgeht. Das Geldwäschegesetz sieht vor, dass der Makler die Kopien bzw. Unterlagen fünf Jahre aufbewahren muss.

PROVISIONSHINWEIS:
Mit der Anfrage bei und Inanspruchnahme der Dienstleistung der Firma Immo-Team GmbH & Co. KG, wird ein Maklervertrag geschlossen. Sofern es durch die Tätigkeit dieser Firma zu einem wirksamen Hauptvertrag mit der Eigentümerseite kommt, hat der Interessent bei Abschluss eines notariellen Kaufvertrages die ortsübliche Provision/Maklercourtage wie im Exposé angegeben an die Immo-Team GmbH & Co.KG gegen Rechnung zu zahlen.

WIDERUFSBELEHRUNG für Verbraucher:
Sie haben das Recht, binnen vierzehn Tagen ohne Angabe von Gründen diesen Vertrag zu widerrufen. Die Widerrufsfrist beträgt vierzehn Tage ab dem Tag des Vertragsabschlusses bzw. nachdem wir Ihre Anfrage per Mail erhalten haben.
Um Ihr Widerrufsrecht auszuüben, müssen Sie uns der Firma Immo-Team GmbH & Co. KG; Charlottenstraße 23 in 70182 Stuttgart Tel: 0711 128 951 0,, info@immo-team.de) mittels einer eindeutigen Erklärung (z. B. ein mit der Post versandter Brief, Telefax oder E-Mail) über Ihren Entschluss, diesen Vertrag zu widerrufen, informieren. Zur Wahrung der Widerrufsfrist reicht es aus, dass Sie die Mitteilung über die Ausübung des Widerrufsrechts vor Ablauf der Widerrufsfrist absenden.

Anbieter

2026 Best Property Agents

Ansprechpartner

Verbraucherhinweis

Widerrufsrecht für Verbraucher Sie haben das Recht, binnen vierzehn Tagen ohne Angabe von Gründen den Maklervertrag zu widerrufen. Die Widerrufsfrist beträgt vierzehn Tage ab dem Tag des Vertragsabschlusses Um Ihr Widerrufsrecht auszuüben, müssen Sie uns ( IMMO-TEAM GmbH & Co. KG, Charlottenstraße 23, 70182 Stuttgart, Fax-Nr.: 0711 12895150, Tel-Nr.: 0711 1289510, info@immo-team.de ) mittels einer eindeutigen Erklärung (z.B. ein mit der Post versandter Brief, Telefax oder E-Mail) über Ihren Entschluss, diesen Vertrag zu widerrufen, informieren. Sie können dafür das untenstehende Muster-Widerrufsformular verwenden, das jedoch nicht vorgeschrieben ist. Zur Wahrung der Widerrufsfrist reicht es aus, dass Sie die Mitteilung über die Ausübung des Widerrufsrechts vor Ablauf der Widerrufsfrist absenden. Muster-Widerrufsformular (Wenn Sie den Maklervertrag widerrufen wollen, dann füllen Sie bitte dieses Formular aus und senden Sie es zurück.) An IMMO-TEAM GmbH & Co. KG Charlottenstraße 23 70182 Stuttgart Fax-Nr.: 0711 12895150 info@immo-team.de Hiermit widerrufe(n) ich/wir(*) den von uns(*) abgeschlossenen Vertrag über den Kauf der folgenden Waren(*)/ die Erbringung der folgenden Dienstleistungen(*) Bestellt am (*) / erhalten am (*) Name des/der Verbraucher(s) Anschrift des/der Verbraucher(s) Unterschrift des/der Verbraucher(s) (nur bei Mitteilung auf Papier) Datum (*) Unzutreffendes streichen Folgen des Widerrufs Wenn Sie diesen Vertrag widerrufen, haben wir Ihnen alle Zahlungen, die wir von Ihnen erhalten haben, einschließlich der Lieferkosten (mit Ausnahme der zusätzlichen Kosten, die sich daraus ergeben, dass Sie eine andere Art der Lieferung als die von uns angebotene, günstigste Standardlieferung gewählt haben), unverzüglich und spätestens binnen vierzehn Tagen ab dem Tag zurückzuzahlen, an dem die Mitteilung über Ihren Widerruf dieses Vertrags bei uns eingegangen ist. Für diese Rückzahlung verwenden wir dasselbe Zahlungsmittel, das Sie bei der ursprünglichen Transaktion eingesetzt haben, es sei denn, mit Ihnen wurde ausdrücklich etwas anderes vereinbart; in keinem Fall werden Ihnen wegen dieser Rückzahlung Entgelte berechnet. Haben Sie verlangt, dass die Dienstleistungen während der Widerrufsfrist beginnen soll, so haben Sie uns einen angemessenen Betrag zu zahlen, der dem Anteil der bis zu dem Zeitpunkt, zu dem Sie uns von der Ausübung des Widerrufsrechts hinsichtlich dieses Vertrags unterrichten, bereits erbrachten Dienstleistungen im Vergleich zum Gesamtumfang der im Vertrag vorgesehenen Dienstleistung entspricht. Hinweis zum vorzeitigen Erlöschen des Widerrufsrechts Ihr Widerrufsrecht erlischt bei einem Vertrag zur Erbringung von Dienstleistungen vorzeitig, wenn wir die Dienstleistung vollständig erbracht haben und mit der Ausführung der Dienstleistung erst begonnen haben, nachdem Sie dazu Ihre ausdrückliche Zustimmung gegeben haben und gleichzeitig Ihre Kenntnis davon bestätigt haben, dass Sie Ihr Widerrufsrecht bei vollständiger Vertragserfüllung durch uns verlieren.

Impressum Immo-Team GmbH & Co. KG
VERTRETUNGSBERECHTIGTE/R
Volkan Kacar, Geschäftsführer


Charlottenstraße 23
70182 Stuttgart
DEU
Tel.: 0711-128 951 0
E-Mail: info@immo-team.de
Fax: 0711-128 951 50
Homepage: https://www.immo-team.de/

ZUSTÄNDIGE AUFSICHTSBEHÖRDE
Berufsaufsichtsbehörde Erlaubnisurkunde gemäß §34 c GewO Amt für öffentliche Ordnung Eberhardstraße 37, 70173 Stuttgart

HANDELSREGISTER-EINTRAG
HRA 725244 – Amtsgericht Stuttgart
Stuttgart

UST-ID-NUMMER
DE271653491

ZUSÄTZLICHER TEXT
Haftungsausschluss: 1. Inhalt des Onlineangebotes Der Site-Betreiber übernimmt keinerlei Gewähr für die Aktualität, Korrektheit, Vollständigkeit oder Qualität der bereitgestellten Informationen. Haftungsansprüche gegen uns, welche sich auf Schäden materieller oder ideeller Art beziehen, die durch die Nutzung oder Nichtnutzung der dargebotenen Informationen bzw. durch die Nutzung fehlerhafter und unvollständiger Informationen verursacht wurden, sind grundsätzlich ausgeschlossen, sofern unsererseits kein nachweislich vorsätzliches oder grob fahrlässiges Verschulden vorliegt. 2. Verweise und Links Wir erklären ausdrücklich, dass zum Zeitpunkt der Linksetzung die entsprechenden verlinkten Seiten frei von illegalen Inhalten waren. Auf die aktuelle und zukünftige Gestaltung, die Inhalte oder die Urheberschaft der gelinkten/verknüpften Seiten hat der Site-Betreiber keinerlei Einfluss. Deshalb distanziert sich der Site-Betreiber hiermit ausdrücklich von allen Inhalten aller gelinkten /verknüpften Seiten, die nach der Linksetzung verändert wurden. Diese Feststellung gilt für alle innerhalb des eigenen Internetangebotes gesetzten Links und Verweise sowie für Fremdeinträge in den von uns eingerichteten Gästebüchern, Diskussionsforen und Mailinglisten. Diese Erklärung gilt für alle auf der Website angezeigten Links und für alle Inhalte der Seiten, zu denen die bei ihr angemeldeten Banner und Links führen. 3. Urheber- und Kennzeichenrecht Der Site-Betreiber ist bestrebt, in allen Publikationen die Urheberrechte der verwendeten Grafiken, Tondokumente, Videosequenzen und Texte zu beachten, von ihr selbst erstellte Grafiken, Tondokumente, Videosequenzen und Texte zu nutzen oder auf lizenzfreie Grafiken, Tondokumente, Videosequenzen und Texte zurückzugreifen. Alle innerhalb des Internetangebotes genannten und ggf. durch Dritte geschützten Marken- und Warenzeichen unterliegen uneingeschränkt den Bestimmungen des jeweils gültigen Kennzeichenrechts und den Besitzrechten der jeweiligen eingetragenen Eigentümer. Allein aufgrund der bloßen Nennung ist nicht der Schluß zu ziehen, dass Markenzeichen nicht durch Rechte Dritter geschützt sind! Das Copyright für veröffentlichte, vom Site-Betreiber selbst erstellte Objekte bleibt allein beim Site-Betreiber. Eine Vervielfältigung oder Verwendung solcher Grafiken, Tondokumente, Videosequenzen und Texte auch in Auszügen in anderen elektronischen oder gedruckten Publikationen ist ohne ausdrückliche Zustimmung vom Site-Betreiber nicht gestattet. 4. Datenschutz Sofern innerhalb des Internetangebotes die Möglichkeit zur Eingabe persönlicher oder geschäftlicher Daten (Emailadressen, Namen, Anschriften) besteht, so erfolgt die Preisgabe dieser Daten seitens des Nutzers auf ausdrücklich freiwilliger Basis. Die Inanspruchnahme und Bezahlung aller angebotenen Dienste ist – soweit technisch möglich – auch ohne Angabe solcher Daten bzw. unter Angabe der Daten gestattet. Wir behandeln Ihre Daten vertraulich. Diese werden nicht an Dritte weitergegeben. 5. Rechtswirksamkeit dieses Haftungsausschlusses Dieser Haftungsausschluss ist als Teil des Internetangebotes zu betrachten, von dem aus auf diese Seite verwiesen wurde. Sofern Teile oder einzelne Formulierungen dieses Textes der geltenden Rechtslage nicht, nicht mehr oder nicht vollständig entsprechen sollten, bleiben die übrigen Teile des Dokumentes in ihrem Inhalt und ihrer Gültigkeit davon unberührt. 6. Bildnachweis: Alle auf dieser Website aufgeführten Bilder obligen dem Urheberrecht von Immo-Team GmbH & Co KG. Bildquelle für die nicht selbst gemachten Bilder, die uns freundlicherweise zur Verfügung gestellt wurden. Alle Rechte auf Texte und Bilder dieser Website sind urheberrechtlich geschütztes Eigentum. Ein teilweiser Auszug oder eine komplette Übernahme von Texten, und Bildern sind verboten und führen bei Zuwiderhandlung unweigerlich zur Anzeige als Verstoß
Anbieter kontaktieren

AGB, Datenschutz & Verbraucherhinweis wurden gelesen und akzeptiert.