Anbieter kontaktieren
Immobilien Zippold GmbH
Tanja Michel
80639 München
- Mehr erfahren
bellevue.de-ID: 30607273
Neubau einer geräumigen Doppelhaushälfte in Oberschleißheim
- Haus
- · 5 Zimmer
- · 200 m² Wohnfläche
- · 340 m² Grundstücksfläche
- · 1.850.000 € Kaufpreis
Objektbeschreibung
Neu errichtete Doppelhaushälfte mit hochwertiger Ausstattung in ruhiger Lage
Diese neuwertige Doppelhaushälfte bietet auf ca. 200,00 m² Wohnfläche und einem Grundstück von rund 340 m² ein komfortables Zuhause für Familien oder Paare mit gehobenen ...mehr lesen
Diese neuwertige Doppelhaushälfte bietet auf ca. 200,00 m² Wohnfläche und einem Grundstück von rund 340 m² ein komfortables Zuhause für Familien oder Paare mit gehobenen ...mehr lesen
Neu errichtete Doppelhaushälfte mit hochwertiger Ausstattung in ruhiger Lage
Diese neuwertige Doppelhaushälfte bietet auf ca. 200,00 m² Wohnfläche und einem Grundstück von rund 340 m² ein komfortables Zuhause für Familien oder Paare mit gehobenen Ansprüchen. Der Neubau (Baujahr 2025) überzeugt durch eine hochwertige Bauweise, energieeffiziente Technik und eine durchdachte Raumaufteilung.
Im Erdgeschoss befindet sich ein großzügiger, lichtdurchfluteter Wohn- und Essbereich mit direktem Zugang zur Südterrasse und in den Garten. Die offene Küche fügt sich harmonisch in den Wohnbereich ein. Ein Gäste-WC sowie die Eingangsdiele mit einer Garderobennische runden das Raumangebot auf dieser Ebene ab.
Das Obergeschoss verfügt über drei gut geschnittene Schlafzimmer. Ein modernes, helles Badezimmer mit Badewanne und begehbarer Dusche und Handtuchwärmer ergänzt diese Etage.
Im Dachgeschoss ist ein großes Schlafzimmer mit einen Ankleidezimmer mit einem großzügigen Bad vorhanden Das Bad ist mit Badewanne ,begehbarer Dusche, Doppelwaschtisch , WC und Handtuchwärmer ausgestattet und über ein Fenster belichtet und belüftet.
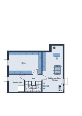
Im Kellergeschoss befindet sich ein großzügiger Hobbyraum, der durch einen Lichtschacht und ein großes Fenster naturlich belichtet ist. Der Hobbyraum wurde bei der Wohnfläche zu 50 Prozent in Anrechnung gebracht.
Die Bodenbeläge können noch individuell ausgewählt werden, wodurch persönliche Gestaltungsmöglichkeiten bestehen.
Im Preis inkludiert ist eine Doppelgarage und ein Stellplatz.
Die Festlegung der Übergabe 3 Monate nach Kaufvertragsabschluss und Klärung eventueller Sonderwünsche ist notwendig.
Dank der sehr effektiven Luft- Wasserwärmepumpe und der Photovoltaikanlage kann ein niedriger Energiebedarf von rechnerisch 14,3 kWh/8a x m²), das heißt die Klasse A+ erreicht werden.. Das heißt Sie profitieren langfristig von einem energieeffizienten und zukunftssicheren Wohnkonzept mit niedrigen Energiekosten.
Diese neuwertige Doppelhaushälfte bietet auf ca. 200,00 m² Wohnfläche und einem Grundstück von rund 340 m² ein komfortables Zuhause für Familien oder Paare mit gehobenen Ansprüchen. Der Neubau (Baujahr 2025) überzeugt durch eine hochwertige Bauweise, energieeffiziente Technik und eine durchdachte Raumaufteilung.
Im Erdgeschoss befindet sich ein großzügiger, lichtdurchfluteter Wohn- und Essbereich mit direktem Zugang zur Südterrasse und in den Garten. Die offene Küche fügt sich harmonisch in den Wohnbereich ein. Ein Gäste-WC sowie die Eingangsdiele mit einer Garderobennische runden das Raumangebot auf dieser Ebene ab.
Das Obergeschoss verfügt über drei gut geschnittene Schlafzimmer. Ein modernes, helles Badezimmer mit Badewanne und begehbarer Dusche und Handtuchwärmer ergänzt diese Etage.
Im Dachgeschoss ist ein großes Schlafzimmer mit einen Ankleidezimmer mit einem großzügigen Bad vorhanden Das Bad ist mit Badewanne ,begehbarer Dusche, Doppelwaschtisch , WC und Handtuchwärmer ausgestattet und über ein Fenster belichtet und belüftet.
Im Kellergeschoss befindet sich ein großzügiger Hobbyraum, der durch einen Lichtschacht und ein großes Fenster naturlich belichtet ist. Der Hobbyraum wurde bei der Wohnfläche zu 50 Prozent in Anrechnung gebracht.
Die Bodenbeläge können noch individuell ausgewählt werden, wodurch persönliche Gestaltungsmöglichkeiten bestehen.
Im Preis inkludiert ist eine Doppelgarage und ein Stellplatz.
Die Festlegung der Übergabe 3 Monate nach Kaufvertragsabschluss und Klärung eventueller Sonderwünsche ist notwendig.
Dank der sehr effektiven Luft- Wasserwärmepumpe und der Photovoltaikanlage kann ein niedriger Energiebedarf von rechnerisch 14,3 kWh/8a x m²), das heißt die Klasse A+ erreicht werden.. Das heißt Sie profitieren langfristig von einem energieeffizienten und zukunftssicheren Wohnkonzept mit niedrigen Energiekosten.
Immobiliendetails
-
NutzungsartWohnen
-
ObjektartDoppelhaushälfte
-
HauptobjektartHaus
-
VertragsartKauf
-
ObjektzustandErstbezug
-
Baujahr2025
-
Zimmer (gesamt)5
-
Anzahl Schlafzimmer4
-
Anzahl Badezimmer2
-
Anzahl separate WC1
-
Anzahl Parkflächen2
-
Wohnfläche (ca.)200 m²
-
Grundstücksfläche (ca.)340 m²
-
Nutzfläche (ca.)40 m²
-
Küche1
-
Anzahl Terrassen1
-
Freier Stellplatz1
-
Garagenstellplätze1
-
Anbieter-Objektnummer48094TM
Preise & Kosten
-
Kaufpreis pro m²9.250 €
-
Courtage2,38 % inklusive der gesetzlichen Mehrwertsteuer
Energie
-
HeizungsartZentralheizung
-
BefeuerungsartLuft-/Wasserwärme
-
EnergieausweisEnergiebedarfsausweis
-
Endenergiebedarf14,9 kWh/(m²*a)
-
Baujahr (laut Energieausweis)2025
-
Energiepass gültig bis2034-07-24
-
EnergieeffizienzklasseA
-
GebäudeartWohngebäude
-
Wesentlicher EnergieträgerLUFTWP
-
Ausgestelltnach dem 1.5.2014
Standort & Lage
Lagebeschreibung
Die Doppelhaushälfte befindet sich im Ortsteil Mittenheim der Gemeinde Oberschleißheim, nördlich von München. Das Wohnumfeld überzeugt durch Ruhe, gepflegte Nachbarschaft und eine grüne Umgebung mit hoher Lebensqualität.
In ...mehr lesen
Die Doppelhaushälfte befindet sich im Ortsteil Mittenheim der Gemeinde Oberschleißheim, nördlich von München. Das Wohnumfeld überzeugt durch Ruhe, gepflegte Nachbarschaft und eine grüne Umgebung mit hoher Lebensqualität.
In ...mehr lesen
Lagebeschreibung
Die Doppelhaushälfte befindet sich im Ortsteil Mittenheim der Gemeinde Oberschleißheim, nördlich von München. Das Wohnumfeld überzeugt durch Ruhe, gepflegte Nachbarschaft und eine grüne Umgebung mit hoher Lebensqualität.
In unmittelbarer Nähe befinden sich Einkaufsmöglichkeiten wie Edeka, REWE und Lidl. Auch kleinere Fachgeschäfte, Bäckereien und Dienstleistungsbetriebe sind bequem erreichbar – teils sogar fußläufig.
Familien profitieren von einer sehr guten Bildungs- und Betreuungsinfrastruktur: Mehrere Kindergärten, Grundschulen sowie weiterführende Schulen, darunter das Gymnasium Oberschleißheim, liegen in kurzer Distanz.
Der nahe Schleißheimer Schlosspark mit seinen historischen Bauwerken und weitläufigen Grünflächen bietet ideale Möglichkeiten für Spaziergänge, Sport und Erholung im Freien.
Die S-Bahn-Station Oberschleißheim (S1) liegt nur etwa 100 Meter entfernt und ermöglicht eine direkte Verbindung in die Münchner Innenstadt sowie zum Flughafen München. Über die Autobahn A92 und die Bundesstraße B471 besteht zudem eine hervorragende Verkehrsanbindung an das regionale und überregionale Straßennetz.
Ärzte, Apotheken sowie das Helios Klinikum München-Nord sind in wenigen Minuten erreichbar und gewährleisten eine umfassende medizinische Versorgung.
Die Rotdornstraße ist eine ruhige Anliegerstraße mit überwiegend Ein- und Zweifamilienhäusern. Gepflegte Vorgärten, wenig Verkehr und eine angenehme Nachbarschaft prägen das Bild dieser Wohnlage.
Die Doppelhaushälfte befindet sich im Ortsteil Mittenheim der Gemeinde Oberschleißheim, nördlich von München. Das Wohnumfeld überzeugt durch Ruhe, gepflegte Nachbarschaft und eine grüne Umgebung mit hoher Lebensqualität.
In unmittelbarer Nähe befinden sich Einkaufsmöglichkeiten wie Edeka, REWE und Lidl. Auch kleinere Fachgeschäfte, Bäckereien und Dienstleistungsbetriebe sind bequem erreichbar – teils sogar fußläufig.
Familien profitieren von einer sehr guten Bildungs- und Betreuungsinfrastruktur: Mehrere Kindergärten, Grundschulen sowie weiterführende Schulen, darunter das Gymnasium Oberschleißheim, liegen in kurzer Distanz.
Der nahe Schleißheimer Schlosspark mit seinen historischen Bauwerken und weitläufigen Grünflächen bietet ideale Möglichkeiten für Spaziergänge, Sport und Erholung im Freien.
Die S-Bahn-Station Oberschleißheim (S1) liegt nur etwa 100 Meter entfernt und ermöglicht eine direkte Verbindung in die Münchner Innenstadt sowie zum Flughafen München. Über die Autobahn A92 und die Bundesstraße B471 besteht zudem eine hervorragende Verkehrsanbindung an das regionale und überregionale Straßennetz.
Ärzte, Apotheken sowie das Helios Klinikum München-Nord sind in wenigen Minuten erreichbar und gewährleisten eine umfassende medizinische Versorgung.
Die Rotdornstraße ist eine ruhige Anliegerstraße mit überwiegend Ein- und Zweifamilienhäusern. Gepflegte Vorgärten, wenig Verkehr und eine angenehme Nachbarschaft prägen das Bild dieser Wohnlage.
Sonstiges
Es liegt ein Energiebedarfsausweis vor.
Dieser ist gültig bis 24.7.2034.
Endenergiebedarf beträgt 14.90 kwh/(m²*a).
Wesentlicher Energieträger der Heizung ist Luft/wasser Wärmepumpe.
Das Baujahr des Objekts lt. Energieausweis ist 2025.
Die ...mehr lesen
Dieser ist gültig bis 24.7.2034.
Endenergiebedarf beträgt 14.90 kwh/(m²*a).
Wesentlicher Energieträger der Heizung ist Luft/wasser Wärmepumpe.
Das Baujahr des Objekts lt. Energieausweis ist 2025.
Die ...mehr lesen
Es liegt ein Energiebedarfsausweis vor.
Dieser ist gültig bis 24.7.2034.
Endenergiebedarf beträgt 14.90 kwh/(m²*a).
Wesentlicher Energieträger der Heizung ist Luft/wasser Wärmepumpe.
Das Baujahr des Objekts lt. Energieausweis ist 2025.
Die Energieeffizienzklasse ist A.
Maklerprovision:
Alle Angaben basieren ausschließlich auf Auskünften, die vom Auftraggeber an uns weitergegeben wurden. Wir übernehmen dafür keine Gewähr. Das Angebot ist vertraulich, eine Weitergabe an Dritte bedarf unserer Zustimmung. Der Maklervertrag mit uns kommt durch die Inanspruchnahme unserer Leistungen, d. h. durch den Nachweis oder die Vermittlung zustande. Sollte Ihnen das nachgewiesene Objekt bereits bekannt sein, bitten wir Sie, uns dies unverzüglich mitzuteilen.
Die vom Käufer anteilig zur Hälfte zu zahlende Provision in Höhe von 2,38 % inkl. der gesetzlichen Mehrwertsteuer auf den Kaufpreis ist bei Abschluss des notariellen Kaufvertrages verdient und fällig.
Dieser ist gültig bis 24.7.2034.
Endenergiebedarf beträgt 14.90 kwh/(m²*a).
Wesentlicher Energieträger der Heizung ist Luft/wasser Wärmepumpe.
Das Baujahr des Objekts lt. Energieausweis ist 2025.
Die Energieeffizienzklasse ist A.
Maklerprovision:
Alle Angaben basieren ausschließlich auf Auskünften, die vom Auftraggeber an uns weitergegeben wurden. Wir übernehmen dafür keine Gewähr. Das Angebot ist vertraulich, eine Weitergabe an Dritte bedarf unserer Zustimmung. Der Maklervertrag mit uns kommt durch die Inanspruchnahme unserer Leistungen, d. h. durch den Nachweis oder die Vermittlung zustande. Sollte Ihnen das nachgewiesene Objekt bereits bekannt sein, bitten wir Sie, uns dies unverzüglich mitzuteilen.
Die vom Käufer anteilig zur Hälfte zu zahlende Provision in Höhe von 2,38 % inkl. der gesetzlichen Mehrwertsteuer auf den Kaufpreis ist bei Abschluss des notariellen Kaufvertrages verdient und fällig.
Anbieter
Immobilien Zippold GmbH
Herr Herbert Zippold
Kriemhildenstraße 40
80639 München
80639 München
Ansprechpartner
Tanja Michel
Kriemhildenstr. 40
80639 München
80639 München