Angebot 4445 von 17613

Anbieter kontaktieren

AGB, Datenschutz & Verbraucherhinweis wurden gelesen und akzeptiert.

Apolloni & Blom S.r.l.

Apolloni and Blom Real Estate - Immobiliare
  • Mehr erfahren
bellevue.de-ID: 30602425

Residenza Le Clarisse, Sarteano - Toscana

  • Haus
  • · 20 Zimmer
  • · 1.427 m² Wohnfläche
  • · 1.710 m² Grundstücksfläche
  • · 1.290.000 € Kaufpreis
Anbieter kontaktieren

Objektbeschreibung

Klasse A3 Kloster aus dem 16. Jahrhundert mit Garten und Olivenhain im historischen Zentrum von Sarteano, Siena, zu verkaufen. Erbaut im Jahr 1498 entlang der mittelalterlichen Mauern des Borgo di Sarteano nach den Regeln, die der heilige Franziskus ...mehr lesen
Klasse A3 Kloster aus dem 16. Jahrhundert mit Garten und Olivenhain im historischen Zentrum von Sarteano, Siena, zu verkaufen. Erbaut im Jahr 1498 entlang der mittelalterlichen Mauern des Borgo di Sarteano nach den Regeln, die der heilige Franziskus für den Bau von Klöstern vorschrieb, versammelt diese herrliche Residenz den Charme der Geschichte, die durch die Jahrhunderte überliefert wurde: Fünfhundert Jahre lang war es die exklusive Residenz der Klausurnonnen des Ordens der Armen Klara-Nonnen, dann wurde es für den größten Teil der 1900er Jahre als Schule genutzt und wurde dann eine private historische Residenz im Jahr 1970. Das Kloster mit seiner Fassade aus Naturstein und dem typischen offenen T-förmigen Grundriss (Tau Francescana) erstreckt sich über drei Ebenen, zwei oberirdische und eine unterirdische, mit einer Gesamtfläche von 1 427 Quadratmetern. Nach umfangreichen Renovierungs- und konservativen Restaurierungsarbeiten, die zwischen 1970 und 1990 durchgeführt wurden, konnte das Gebäude seine besonderen Merkmale wiedererlangen: teils hölzerne, teils gewölbte Decken, Terrakottaböden, freiliegende Steinwände, während die Bäder und Küchen mit bezaubernden Majolikafliesen ausgelegt sind. Die jetzigen Eigentümer haben dieses außergewöhnliche Gebäude von einem ehemaligen Kloster in ein Hotel umgewandelt und bieten den Gästen und Besuchern des dritten Jahrtausends eine charmante Gastfreundschaft. Das neue Hotel bietet seinen Gästen geräumige Panoramazimmer und Zimmer mit eigenem Bad, die mit antiken Möbeln eingerichtet sind und von einem großen Garten im Schatten von Pinien und dem weiten Panorama der Seen umgeben sind. Das Hauptgebäude beherbergt Zimmer mit eigenem Bad, Aufenthaltsräume und eine Veranda, die als Lesesaal dient und von allen Gästen genutzt werden kann. Das Untergeschoss, das vom umliegenden Hof und über eine Innentreppe vom Erdgeschoss aus zugänglich ist, wird für den Restaurantbetrieb genutzt: Hier befinden sich ein Portikus, ein Foyer, zwei Restauranträume, die Küche, Gästebäder, Lager- und Abräumräume, zwei Keller und ein Holzschuppen. Ein charakteristischer Weinkeller beherbergt eine Auswahl an edlen Weinen aus der Region wie Brunello di Montalcino, Nobile di Montepulciano und Chianti Classico. Der Garten ist sehr gepflegt und auf der einen Seite von der Dorfmauer umgeben, mit einem herrlichen Blick über das Val di Chiana auf die Seen von Chiusi, Montepulciano und Trasimeno, während sich auf der Nordseite des Gartens ein kleiner Olivenhain befindet. Zum Hof gehört auch ein Gebäude ohne Dach und Zwischenböden, das durch eine Renovierung, die bauliche Eingriffe unter Beibehaltung der ursprünglichen architektonischen Merkmale vorsieht, restauriert werden kann. Ein sehr gut erhaltener historischer Wohnsitz von großem Wert, der bereits in den Markt für Touristenunterkünfte integriert ist, aber auch als privater Wohnsitz dank seiner Privatsphäre und der Nähe zu den Dienstleistungen ideal ist.
PROPERTY Ref: SAR790
Wo: Sarteano, Provinz: Siena, Region: Toskana
Typ: historisches Wohnhaus auf zwei oberirdischen Ebenen und einem Untergeschoss, Veranda und Veranda, ca. 1427,74 m² mit Dependance, Garten und Olivenhain
Garten: Innenhof, ca. 1504 qm
Grundstück: Olivenhain, ca. 1710 qm
Nebengebäude: freistehendes Haus zu renovieren auf zwei Ebenen mit angrenzendem Land, ca. 132,52 qm

Immobiliendetails

  • Nutzungsart
    Wohnen
  • Objektart
    Villa
  • Hauptobjektart
    Haus
  • Vertragsart
    Kauf
  • Baujahr
    1498
  • Zimmer (gesamt)
    20
  • Anzahl Schlafzimmer
    13
  • Anzahl Badezimmer
    16
  • Wohneinheiten
    1
  • Wohnfläche (ca.)
    1.427 m²
  • Grundstücksfläche (ca.)
    1.710 m²
  • Anzahl Terrassen
    1
  • Anzahl Etagen
    4
  • Ausblick
    Ferne
  • Letzte Modernisierung
    1990
  • Fußboden
    Terracotta
  • Anbieter-Objektnummer
    SAR790

Preise & Kosten

  • Kaufpreis pro m²
    903,99 €
  • Courtage
    Keine besondere Angabe.

Energie

  • Heizungsart
    Etagenheizung
  • Energieausweis
    Energiebedarfsausweis
  • Gebäudeart
    Wohngebäude

Ausstattung

  • Keller
Versorgungsunternehmen:
Festnetz: Verfügbar
Wi-Fi: Vorhanden
Heizung: Methan
Wasser: Kommunale Wasserversorgung
Elektrizität: Aktiv
Energieklasse: G

Standort & Lage

Entfernung zu Dienstleistungen: historisches Zentrum
Entfernung zu den wichtigsten Flughäfen: Perugia 80 km, Florenz 138 km, Rom 194 km

· 53047 Sarteano · ITA

Sonstiges

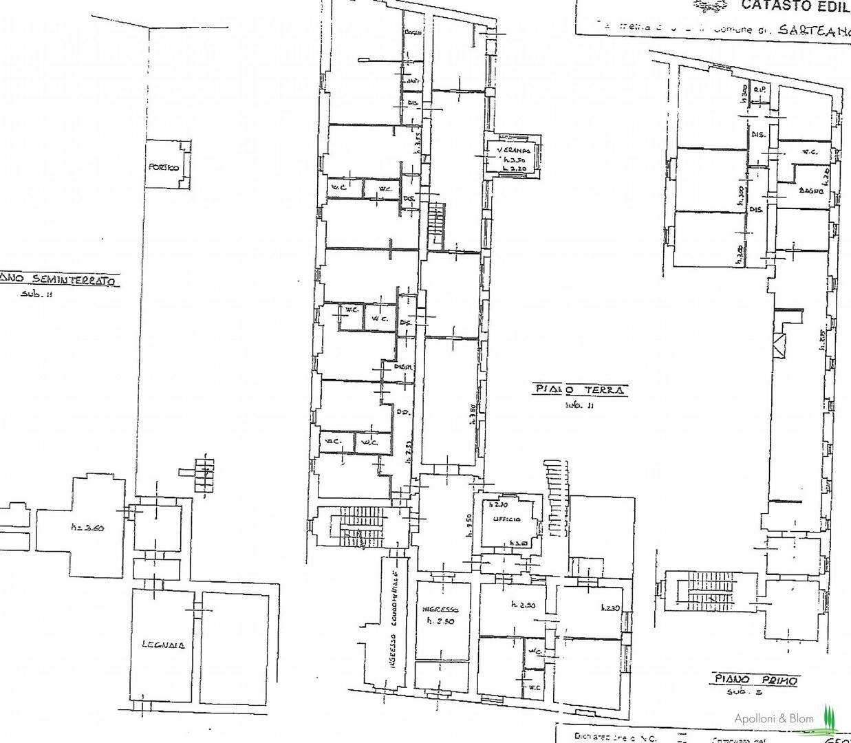
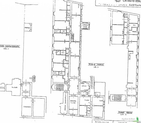
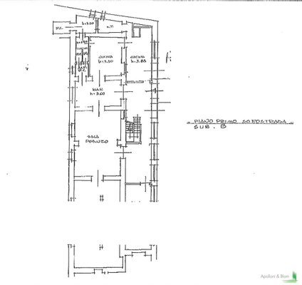
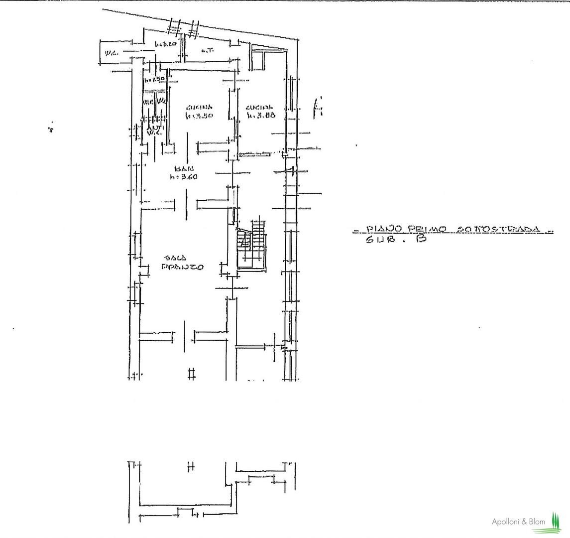
Grundriss:
Untergeschoss:
Restaurant, großer Flur, Küche mit zwei separaten Räumen, zwei Esszimmer, zwei Vorbäder, zwei Bäder, Flur, Vorbad, Bad, Heizungsraum, zwei Keller, Nebenräume, Holzschuppen und/oder Lagerräume, Veranda
Erdgeschoss: Eingang, fünf ...mehr lesen
Grundriss:
Untergeschoss:
Restaurant, großer Flur, Küche mit zwei separaten Räumen, zwei Esszimmer, zwei Vorbäder, zwei Bäder, Flur, Vorbad, Bad, Heizungsraum, zwei Keller, Nebenräume, Holzschuppen und/oder Lagerräume, Veranda
Erdgeschoss: Eingang, fünf große Flure mit großen Fenstern, Flure, sieben Schlafzimmer mit eigenem Bad, Büro, zwei Schlafzimmer mit Wohnzimmer und eigenem Bad, Veranda
Obergeschoss: vier große Flure mit Fenstern, davon eines mit Kamin, vier Schlafzimmer mit Bad, zwei Flure, Abstellraum

Ansprechpartner

Verbraucherhinweis

Widerrufsbelehrung des Anbieters

(Gilt nicht für Wohnraummiete in Deutschland)

Widerrufsrecht für Verbraucher
Sie haben das Recht, binnen vierzehn Tagen ohne Angabe von Gründen diesen Vertrag zu widerrufen. Die Widerrufsfrist beträgt vierzehn Tage ab dem Tag des Vertragsabschlusses.
Um Ihr Widerrufsrecht auszuüben, müssen Sie uns (Apolloni & Blom S.r.l., Via del progresso 7, 06061 Castiglione del Lago, +390578717016, info@apolloniblom.com) mittels einer eindeutigen Erklärung (z. B. ein mit der Post versandter Brief, Telefax oder E-Mail) über Ihren Entschluss, diesen Vertrag zu widerrufen, informieren. Sie können dafür das beigefügte Muster-Widerrufsformular verwenden, das jedoch nicht vorgeschrieben ist. Zur Wahrung der Widerrufsfrist reicht es aus, dass Sie die Mitteilung über die Ausübung des Widerrufsrechts vor Ablauf der Widerrufsfrist absenden.

Folgen des Widerrufs
Wenn Sie diesen Vertrag widerrufen, haben wir Ihnen alle Zahlungen, die wir von Ihnen erhalten haben, einschließlich der Lieferkosten (mit Ausnahme der zusätzlichen Kosten, die sich daraus ergeben, dass Sie eine andere Art der Lieferung als die von uns angebotene, günstigste Standardlieferung gewählt haben), unverzüglich und spätestens binnen vierzehn Tagen ab dem Tag zurückzuzahlen, an dem die Mitteilung über Ihren Widerruf dieses Vertrags bei uns eingegangen ist. Für diese Rückzahlung verwenden wir dasselbe Zahlungsmittel, das Sie bei der ursprünglichen Transaktion eingesetzt haben, es sei denn, mit Ihnen wurde ausdrücklich etwas anderes vereinbart; in keinem Fall werden Ihnen wegen dieser Rückzahlung Entgelte berechnet. Haben Sie verlangt, dass die Dienstleistungen während der Widerrufsfrist beginnen soll, so haben Sie uns einen angemessenen Betrag zu zahlen, der dem Anteil der bis zu dem Zeitpunkt, zu dem Sie uns von der Ausübung des Widerrufsrechts hinsichtlich dieses Vertrags unterrichten, bereits erbrachten Dienstleistungen im Vergleich zum Gesamtumfang der im Vertrag vorgesehenen Dienstleistungen entspricht.

Muster-Widerrufsformular
(Wenn Sie den Vertrag widerrufen wollen, dann füllen Sie dieses Formular aus und senden Sie es zurück.)

An Apolloni & Blom S.r.l., Via del progresso 7, 06061 Castiglione del Lago, +390578717016, info@apolloniblom.com

Hiermit widerrufe ich/wir den von mir/uns abgeschlossenen Vertrag über den Kauf der folgenden Waren /die Erbringung der folgenden Dienstleistung


Bestellt am /erhalten am

Name des/der Verbraucher(s)

Anschrift des/der Verbraucher(s)

Unterschrift des/der Verbraucher(s) (nur bei Mitteilung auf Papier)

Datum


( Unzutreffendes streichen )


Hinweis auf die Möglichkeit eines vorzeitigen Erlöschens des Widerrufsrechts

Ihr Widerrufsrecht erlischt, wenn wir unsere Leistung vollständig erbracht haben und mit der Ausführung der Leistung erst begonnen haben, nachdem Sie Ihre ausdrückliche Zustimmung gegeben haben und gleichzeitig Ihre Kenntnis davon bestätigt haben, dass Sie Ihr Widerrufsrecht bei vollständiger Vertragserfüllung durch uns verlieren.

Impressum Apolloni & Blom S.r.l.
VERTRETUNGSBERECHTIGTE/R
Blom Niklas Alvar Jonathan


Via del progresso 7
06061 Castiglione del Lago
ITA
Tel.: +390578717016
E-Mail: info@apolloniblom.com
Homepage: https://www.apolloniblom.com/it/index.html

HANDELSREGISTER-EINTRAG
03142470545
Camera di Commercio Industria e artigianato e Agricoltura dell'Umbria

UST-ID-NUMMER
03142470545
Anbieter kontaktieren

AGB, Datenschutz & Verbraucherhinweis wurden gelesen und akzeptiert.