Angebot 5211 von 14902

Anbieter kontaktieren

AGB, Datenschutz & Verbraucherhinweis wurden gelesen und akzeptiert.

Apolloni & Blom S.r.l.

Apolloni and Blom Real Estate - Immobiliare
  • Mehr erfahren
bellevue.de-ID: 30602223

Casale La Tenuta di Lusso, Greve in Chianti, Florenz - Toskana

  • Haus
  • · 18 Zimmer
  • · 1.060 m² Wohnfläche
  • · 190.000 m² Grundstücksfläche
  • · 2.150.000 € Kaufpreis
Anbieter kontaktieren

Objektbeschreibung

Bauernhaus aus dem zwölften Jahrhundert, komplett renoviert in 6 Wohnungen, Schwimmbad, Keller, Olivenhain und Land zu verkaufen in Greve in Chianti, Florenz. In den Hügeln von Greve in Chianti gelegen, in dominanter Lage mit freiem Blick über das ...mehr lesen
Bauernhaus aus dem zwölften Jahrhundert, komplett renoviert in 6 Wohnungen, Schwimmbad, Keller, Olivenhain und Land zu verkaufen in Greve in Chianti, Florenz. In den Hügeln von Greve in Chianti gelegen, in dominanter Lage mit freiem Blick über das gesamte Arnotal. Das Haupthaus wurde im 12. Jahrhundert als Wachturm erbaut und in späteren Jahrhunderten zu einem Landgut ausgebaut. Die eleganten und rustikalen Steinfassaden verbinden sich mit den sehr geräumigen und hellen Innenräumen, in denen heute fünf unabhängige Wohnungen und eine separate ehemalige Scheune untergebracht sind, die in ein Gästehaus umgewandelt wurde und deren Holzdachstuhl erhalten ist. Der ehemalige Weinkeller mit seiner malerischen Gewölbedecke aus Stein ist der ideale Ort für Abendessen und Feste. Der vollständig eingezäunte Garten beherbergt einen Swimmingpool mit Panoramablick und einen Abstellraum. Das Grundstück besteht hauptsächlich aus Wald mit Kastanienbäumen und einem Olivenhain mit über 100 Bäumen in voller Produktion. Das Haus ist sofort bewohnbar und eignet sich perfekt als privater Wohnsitz oder als Touristenunterkunft.
EIGENTUMSNUMMER: CNT2110
Wo: Greve in Chianti, Provinz: Florenz, Region: Toskana
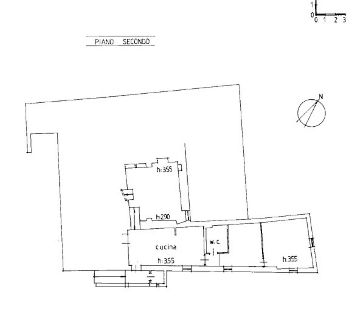
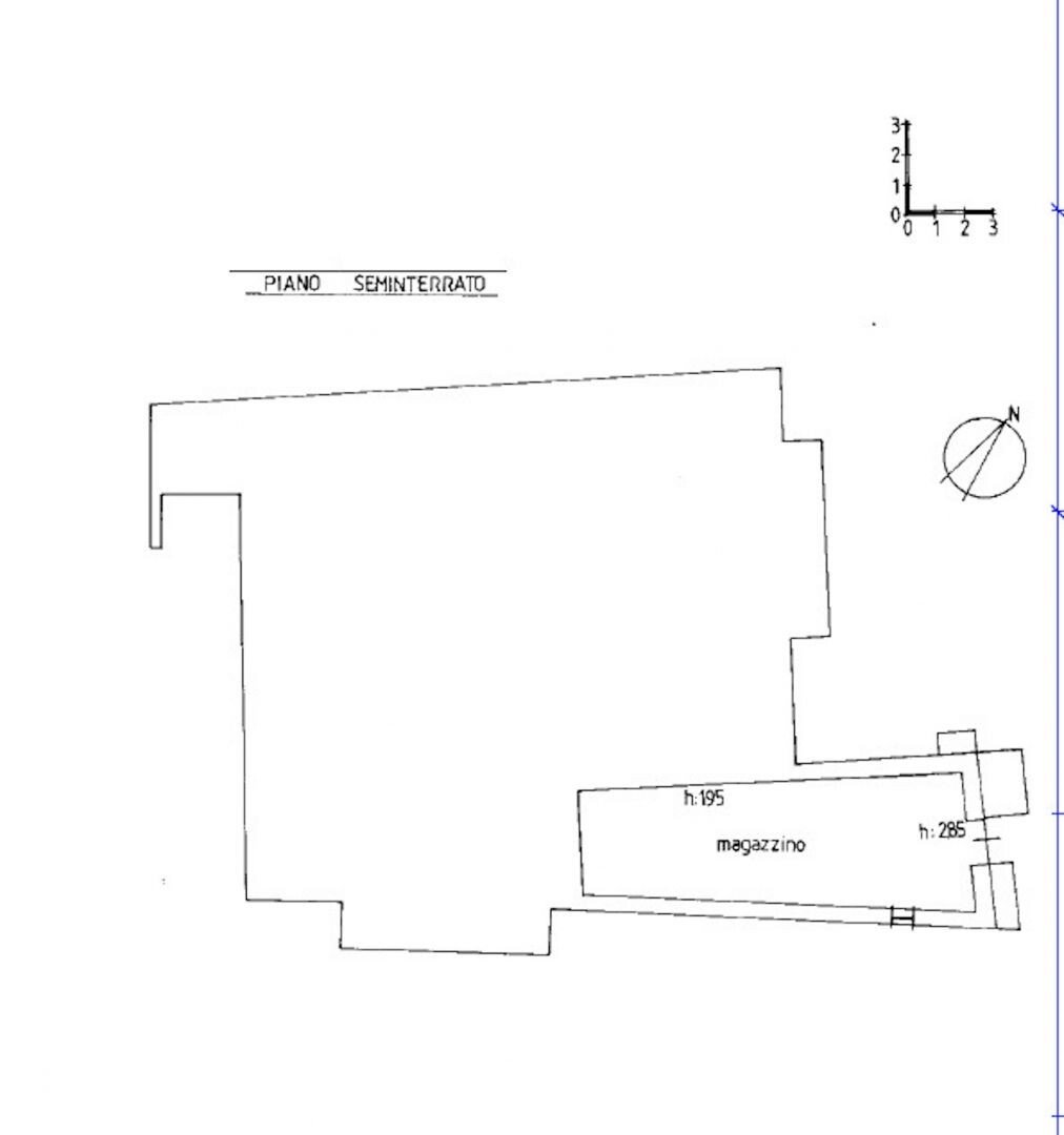
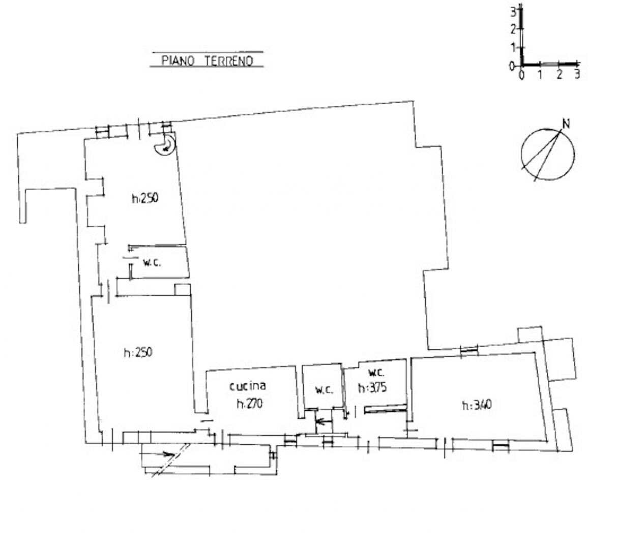
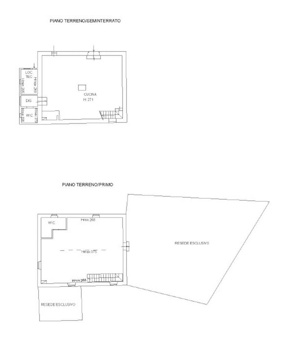
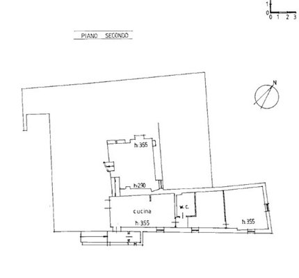
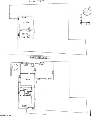
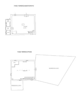
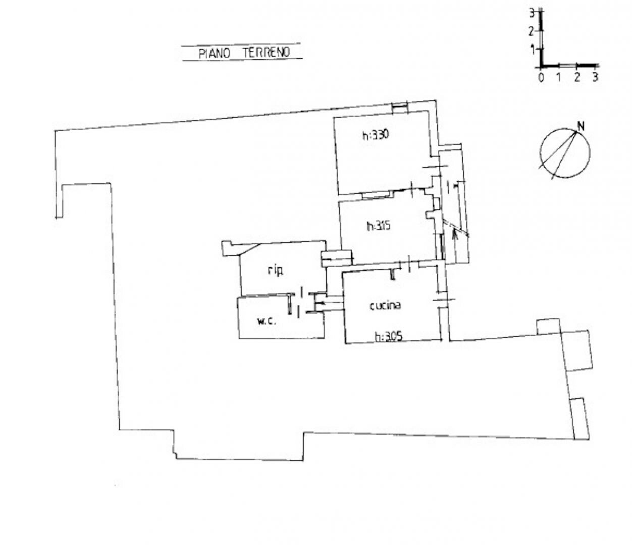
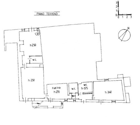
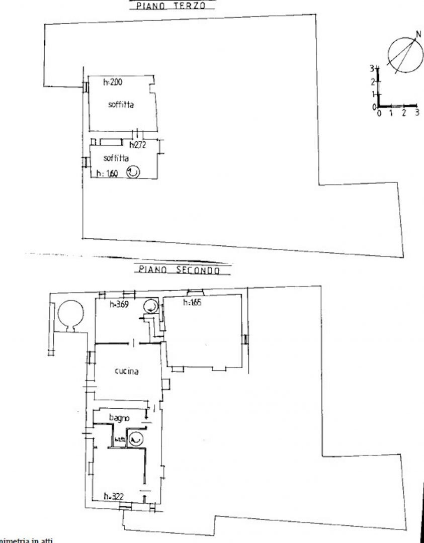
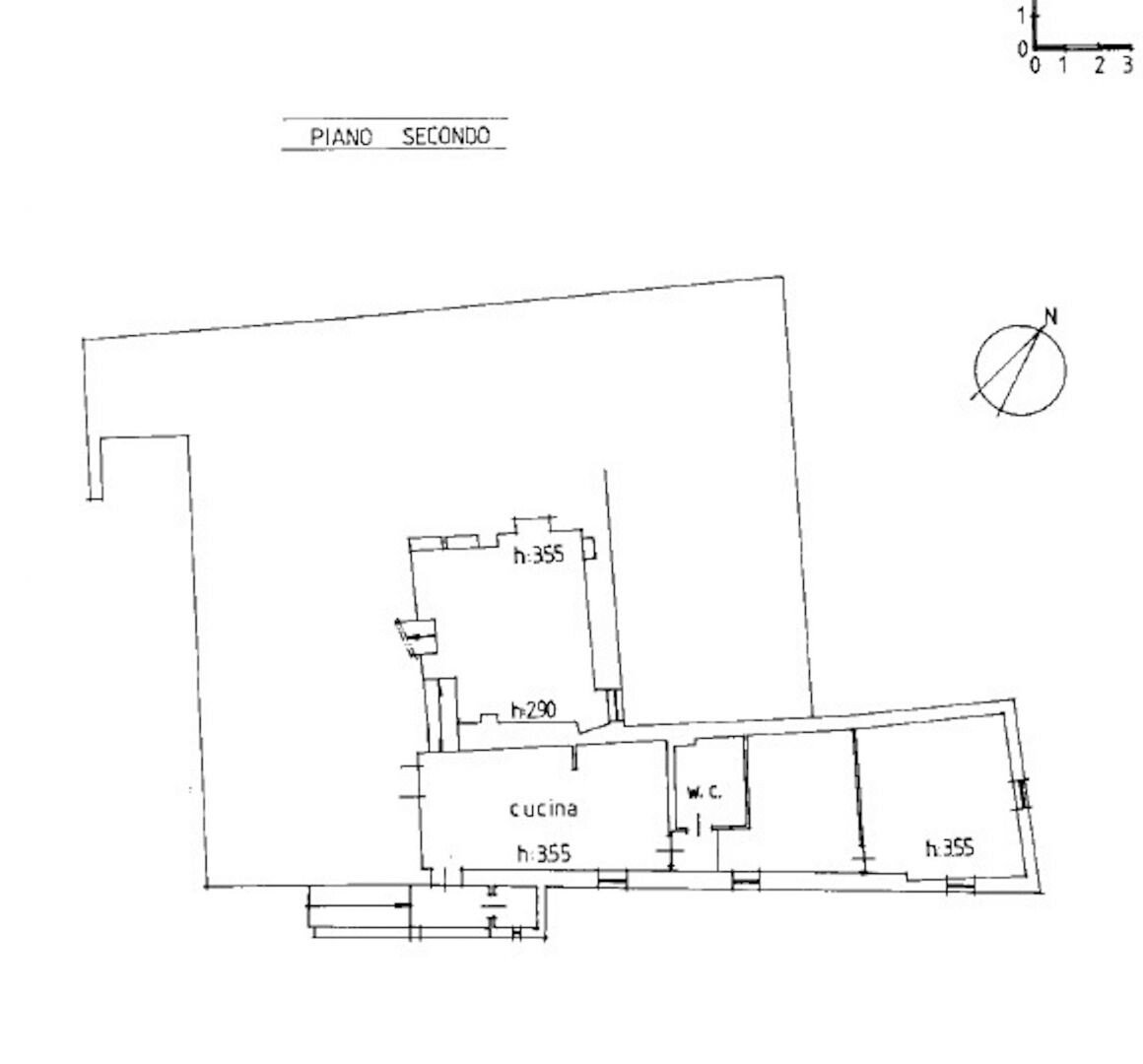
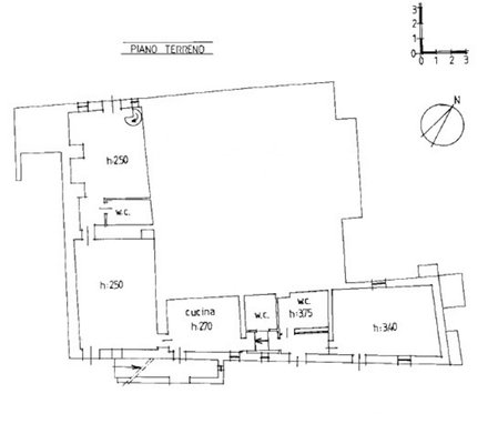
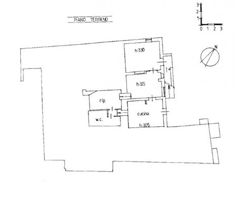
Typ: Bauernhaus auf drei Ebenen + Keller von ca. 860 qm, bestehend aus fünf Wohnungen, Scheune mit einer Wohnung, Schwimmbad, Garten und Land
Nebengebäude: Scheune von 200 qm auf zwei Ebenen, renoviert für Wohnzwecke mit Wohnbereich mit Bad und Schränken im Erdgeschoss, 1 Schlafzimmer und Bad im Obergeschoss; landwirtschaftliches Nebengebäude für die Lagerung/Lagerung von 110 qm
Baujahr: 1100
Jahr der Restaurierung: 2007 - Dachisolierung im Jahr 2000
Zustand: sehr gut
Land/Garten: ca. 19,1 Hektar, davon ca. 16,4 ha Wald mit Kastanienbäumen, ca. 8.000 qm Olivenhain mit über 100 Bäumen in Produktion, ca. 1,8 ha Ackerland, 6000 qm Garten, der durch einen elektrischen Zaun gegen den Zugang von Tieren geschützt ist

Immobiliendetails

  • Nutzungsart
    Wohnen
  • Objektart
    Resthof
  • Hauptobjektart
    Haus
  • Vertragsart
    Kauf
  • Baujahr
    1100
  • Zimmer (gesamt)
    18
  • Anzahl Schlafzimmer
    12
  • Anzahl Badezimmer
    9
  • Wohneinheiten
    6
  • Wohnfläche (ca.)
    1.060 m²
  • Grundstücksfläche (ca.)
    190.000 m²
  • Denkmalschutzobjekt
  • Gartenfläche (ca.)
    6.000 m²
  • Stellplatzart
    Freiplatz
  • Anzahl Etagen
    4
  • Ausblick
    Ferne
  • Letzte Modernisierung
    2007
  • Fußboden
    Terracotta
  • Anbieter-Objektnummer
    CNT2110

Preise & Kosten

  • Kaufpreis pro m²
    1.837,61 €
  • Courtage
    Keine besondere Angabe.

Energie

  • Heizungsart
    Etagenheizung
  • Befeuerungsart
    Pellets, Holz, Flüssiggas
  • Energieausweis
    Energiebedarfsausweis
  • Energieeffizienzklasse
    G
  • Gebäudeart
    Wohngebäude

Ausstattung

  • Keller
Versorgungsunternehmen:
Telefonfestnetz: aktiv
Internet: aktiv
Heizung: Flüssiggas, Pelletöfen + Holz
Wasser: kommunales Wassernetz + 2 Brunnen für Bewässerung und Schwimmbadnutzung
Elektrizität: aktiv
Grundstück im Namen einer Privatperson
Der Standort ist ...mehr lesen
Versorgungsunternehmen:
Telefonfestnetz: aktiv
Internet: aktiv
Heizung: Flüssiggas, Pelletöfen + Holz
Wasser: kommunales Wassernetz + 2 Brunnen für Bewässerung und Schwimmbadnutzung
Elektrizität: aktiv
Grundstück im Namen einer Privatperson
Der Standort ist aus Gründen des Datenschutzes nur annähernd angegeben.
Alle angegebenen Maße sind ungefähre Angaben
Energieklasse: G

Standort & Lage

Entfernung zu Dienstleistungen: 5 km
Entfernung zu den wichtigsten Flughäfen: Florenz 45 km, Pisa 98 km, Perugia 150 km
Weiße Straße: 1,5 km

· 50022 Greve in Chianti · ITA

Ansprechpartner

Verbraucherhinweis

Widerrufsbelehrung des Anbieters

(Gilt nicht für Wohnraummiete in Deutschland)

Widerrufsrecht für Verbraucher
Sie haben das Recht, binnen vierzehn Tagen ohne Angabe von Gründen diesen Vertrag zu widerrufen. Die Widerrufsfrist beträgt vierzehn Tage ab dem Tag des Vertragsabschlusses.
Um Ihr Widerrufsrecht auszuüben, müssen Sie uns (Apolloni & Blom S.r.l., Via del progresso 7, 06061 Castiglione del Lago, +390578717016, info@apolloniblom.com) mittels einer eindeutigen Erklärung (z. B. ein mit der Post versandter Brief, Telefax oder E-Mail) über Ihren Entschluss, diesen Vertrag zu widerrufen, informieren. Sie können dafür das beigefügte Muster-Widerrufsformular verwenden, das jedoch nicht vorgeschrieben ist. Zur Wahrung der Widerrufsfrist reicht es aus, dass Sie die Mitteilung über die Ausübung des Widerrufsrechts vor Ablauf der Widerrufsfrist absenden.

Folgen des Widerrufs
Wenn Sie diesen Vertrag widerrufen, haben wir Ihnen alle Zahlungen, die wir von Ihnen erhalten haben, einschließlich der Lieferkosten (mit Ausnahme der zusätzlichen Kosten, die sich daraus ergeben, dass Sie eine andere Art der Lieferung als die von uns angebotene, günstigste Standardlieferung gewählt haben), unverzüglich und spätestens binnen vierzehn Tagen ab dem Tag zurückzuzahlen, an dem die Mitteilung über Ihren Widerruf dieses Vertrags bei uns eingegangen ist. Für diese Rückzahlung verwenden wir dasselbe Zahlungsmittel, das Sie bei der ursprünglichen Transaktion eingesetzt haben, es sei denn, mit Ihnen wurde ausdrücklich etwas anderes vereinbart; in keinem Fall werden Ihnen wegen dieser Rückzahlung Entgelte berechnet. Haben Sie verlangt, dass die Dienstleistungen während der Widerrufsfrist beginnen soll, so haben Sie uns einen angemessenen Betrag zu zahlen, der dem Anteil der bis zu dem Zeitpunkt, zu dem Sie uns von der Ausübung des Widerrufsrechts hinsichtlich dieses Vertrags unterrichten, bereits erbrachten Dienstleistungen im Vergleich zum Gesamtumfang der im Vertrag vorgesehenen Dienstleistungen entspricht.

Muster-Widerrufsformular
(Wenn Sie den Vertrag widerrufen wollen, dann füllen Sie dieses Formular aus und senden Sie es zurück.)

An Apolloni & Blom S.r.l., Via del progresso 7, 06061 Castiglione del Lago, +390578717016, info@apolloniblom.com

Hiermit widerrufe ich/wir den von mir/uns abgeschlossenen Vertrag über den Kauf der folgenden Waren /die Erbringung der folgenden Dienstleistung


Bestellt am /erhalten am

Name des/der Verbraucher(s)

Anschrift des/der Verbraucher(s)

Unterschrift des/der Verbraucher(s) (nur bei Mitteilung auf Papier)

Datum


( Unzutreffendes streichen )


Hinweis auf die Möglichkeit eines vorzeitigen Erlöschens des Widerrufsrechts

Ihr Widerrufsrecht erlischt, wenn wir unsere Leistung vollständig erbracht haben und mit der Ausführung der Leistung erst begonnen haben, nachdem Sie Ihre ausdrückliche Zustimmung gegeben haben und gleichzeitig Ihre Kenntnis davon bestätigt haben, dass Sie Ihr Widerrufsrecht bei vollständiger Vertragserfüllung durch uns verlieren.

Impressum Apolloni & Blom S.r.l.
VERTRETUNGSBERECHTIGTE/R
Blom Niklas Alvar Jonathan


Via del progresso 7
06061 Castiglione del Lago
ITA
Tel.: +390578717016
E-Mail: info@apolloniblom.com
Homepage: https://www.apolloniblom.com/it/index.html

HANDELSREGISTER-EINTRAG
03142470545
Camera di Commercio Industria e artigianato e Agricoltura dell'Umbria

UST-ID-NUMMER
03142470545
Anbieter kontaktieren

AGB, Datenschutz & Verbraucherhinweis wurden gelesen und akzeptiert.