Angebot 4686 von 17613

Anbieter kontaktieren

AGB, Datenschutz & Verbraucherhinweis wurden gelesen und akzeptiert.

Immobilien Service Bärbel Bahr

Immobilien Service Bärbel Bahr e. K
71088 Holzgerlingen
  • Mehr erfahren
bellevue.de-ID: 30601581

Charmantes Einfamilienhaus in familienfreundlichem Wohngebiet!

  • Haus
  • · 6 Zimmer
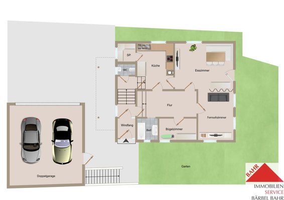
  • · 124 m² Wohnfläche
  • · 408 m² Grundstücksfläche
  • · 370.000 € Kaufpreis
Anbieter kontaktieren

Objektbeschreibung

Charmantes Einfamilienhaus in familienfreundlichem Wohngebiet

Dieses liebevoll instand gehaltene Einfamilienhaus aus dem Baujahr 1930 wartet auf neue Eigentümer, die es renovieren und wieder erstrahlen lassen.

In ruhiger und gewachsener Lage von ...mehr lesen
Charmantes Einfamilienhaus in familienfreundlichem Wohngebiet

Dieses liebevoll instand gehaltene Einfamilienhaus aus dem Baujahr 1930 wartet auf neue Eigentümer, die es renovieren und wieder erstrahlen lassen.

In ruhiger und gewachsener Lage von Jettingen bietet diese Immobilie ein Zuhause mit besonderem Flair – ideal für Familien, Paare oder Individualisten mit Sinn für das Besondere.

Das Haus wurde im Laufe der Jahre immer wieder renoviert und gepflegt, sodass es sich heute in einem guten Zustand präsentiert. Viel Platz im Haus und rund ums Haus – ein Familienglück!

Das angrenzende Grundstück, das jetzt als Garten genutzt wird, kann dazu erworben werden.

Ob als Rückzugsort mit idyllischem Garten oder als Kombination aus Wohnen und zusätzlicher Bebauung – diese Immobilie bietet Raum für Visionen.

Lassen Sie sich von diesem besonderen Haus und seinen Möglichkeiten begeistern – wir freuen uns auf Ihre Anfrage!

Immobiliendetails

  • Nutzungsart
    Wohnen
  • Objektart
    Einfamilienhaus
  • Hauptobjektart
    Haus
  • Vertragsart
    Kauf
  • Baujahr
    1930
  • Zimmer (gesamt)
    6
  • Wohnfläche (ca.)
    124 m²
  • Grundstücksfläche (ca.)
    408 m²
  • Bad
    Duschbad
  • Anbieter-Objektnummer
    09294-E1

Preise & Kosten

  • Courtage
    3,57 % inklusive der gesetzlichen Mehrwertsteuer

Energie

  • Befeuerungsart
    Strom
  • Energieausweis
    Energiebedarfsausweis
  • Endenergiebedarf
    271,7 kWh/(m²*a)
  • Baujahr (laut Energieausweis)
    1930
  • Energiepass gültig bis
    23.07.2035
  • Energieeffizienzklasse
    H
  • Gebäudeart
    Wohngebäude
  • Wesentlicher Energieträger
    Strom
  • Ausgestellt
    nach dem 1.5.2014

Ausstattung

  • Gäste-WC
- Sonnige, ruhige Lage
- Fenster erneuert 1988
- Dach erneuert 1988
- Photovoltaikanlage
- Doppelgarage
- Bühne ausbaufähig
- Ölofenheizung
- Und vieles mehr!

Standort & Lage

In einem zentralen Wohngebiet liegt dieses reizvolle Haus.
Geschäfte des täglichen Bedarfs, sowie Schulen, Kindergärten sind in unmittelbarer Nähe.

71131 Jettingen

Die genaue Anschrift erfahren Sie vom Anbieter

Sonstiges

Bitte haben Sie Verständnis, dass wir Ihnen aufgrund gesetzlicher Vorgaben weitere Informationen erst gegen Vorlage Ihrer vollständigen Anschrift mit Telefonnummer bzw. E-Mail Adresse zur Verfügung stellen können.

Anbieter

Logo von Immobilien Service Bärbel Bahr
2025 Best Property Agents

Ansprechpartner

Immobilien Service Bärbel Bahr e. K

Im Dörnach 5
71088 Holzgerlingen
Verbraucherhinweis

Widerrufsbelehrung des Anbieters

Gilt nicht für Wohnraummiete in Deutschland

Widerrufsrecht für Verbraucher

Sie haben das Recht, binnen vierzehn Tagen ohne Angabe von Gründen diesen Vertrag zu widerrufen. Die Widerrufsfrist beträgt vierzehn Tage ab dem Tag des Vertragsabschlusses.

Um Ihr Widerrufsrecht auszuüben, müssen Sie uns (Immobilien Service Bärbel Bahr, Im Dörnach 5, 71088 Holzgerlingen, Fax: +49 (0) 7031 49 18 550, Tel: +49 (0) 7031 49 18 500, immobilien@baerbel-bahr.de) mittels einer eindeutigen Erklärung (z. B. ein mit der Post versandter Brief, Telefax oder E-Mail) über Ihren Entschluss, diesen Vertrag zu widerrufen, informieren. Sie können dafür das beigefügte Muster-Widerrufsformular verwenden, das jedoch nicht vorgeschrieben ist. Zur Wahrung der Widerrufsfrist reicht es aus, dass Sie die Mitteilung über die Ausübung des Widerrufsrechts vor Ablauf der Widerrufsfrist absenden.

Folgen des Widerrufs

Wenn Sie diesen Vertrag widerrufen, haben wir Ihnen alle Zahlungen, die wir von Ihnen erhalten haben, einschließlich der Lieferkosten (mit Ausnahme der zusätzlichen Kosten, die sich daraus ergeben, dass Sie eine andere Art der Lieferung als die von uns angebotene, günstigste Standardlieferung gewählt haben), unverzüglich und spätestens binnen vierzehn Tagen ab dem Tag zurückzuzahlen, an dem die Mitteilung über Ihren Widerruf dieses Vertrags bei uns eingegangen ist. Für diese Rückzahlung verwenden wir dasselbe Zahlungsmittel, das Sie bei der ursprünglichen Transaktion eingesetzt haben, es sei denn, mit Ihnen wurde ausdrücklich etwas anderes vereinbart; in keinem Fall werden Ihnen wegen dieser Rückzahlung Entgelte berechnet. Haben Sie verlangt, dass die Dienstleistungen während der Widerrufsfrist beginnen soll, so haben Sie uns einen angemessenen Betrag zu zahlen, der dem Anteil der bis zu dem Zeitpunkt, zu dem Sie uns von der Ausübung des Widerrufsrechts hinsichtlich dieses Vertrags unterrichten, bereits erbrachten Dienstleistungen im Vergleich zum Gesamtumfang der im Vertrag vorgesehenen Dienstleistungen entspricht.

Muster-Widerrufsformular

(Wenn Sie den Vertrag widerrufen wollen, dann füllen Sie dieses Formular aus und senden Sie es zurück.)

An Immobilien Service Bärbel Bahr, Im Dörnach 5, 71088 Holzgerlingen, Fax: +49 (0) 7031 49 18 550, immobilien@baerbel-bahr.de
Hiermit widerrufe(n) ich/wir (*) den von mir/uns (*) abgeschlossenen Vertrag über den Kauf der folgenden Waren (*)/die Erbringung der folgenden Dienstleistung (*)


- Bestellt am (*)/erhalten am (*)

- Name des/der Verbraucher(s)

- Anschrift des/der Verbraucher(s)

- Unterschrift des/der Verbraucher(s) (nur bei Mitteilung auf Papier)
- Datum


(*) Unzutreffendes streichen

Hinweis auf die Möglichkeit eines vorzeitigen Erlöschens des Widerrufsrechts

Ihr Widerrufsrecht erlischt, wenn wir unsere Leistung vollständig erbracht haben und mit der Ausführung der Leistung erst begonnen haben, nachdem Sie Ihre ausdrückliche Zustimmung gegeben haben und gleichzeitig Ihre Kenntnis davon bestätigt haben, dass Sie Ihr Widerrufsrecht bei vollständiger Vertragserfüllung durch uns verlieren.

Impressum Immobilien Service Bärbel Bahr
VERTRETUNGSBERECHTIGTE/R
Bärbel Falkenberg-Bahr, Inhaberin


Im Dörnach 5
71034 Böblingen
DEU
Tel.: +49 (0) 7031 49 18 500
E-Mail: immobilien@baerbel-bahr.de
Fax: +49 (0) 7031 49 18 550
Homepage: http://www.baerbel-bahr.de

ZUSTÄNDIGE AUFSICHTSBEHÖRDE
Aufsichtsbehörde: Ordnungsamt der Stadt Böblingen, Marktplatz 16, 71032 Böblingen Erlaubnis nach § 34c der Gewerbeordnung erteilt die Stadt Böblingen

HANDELSREGISTER-EINTRAG
nicht vorhanden


UST-ID-NUMMER
DE56147-76053

ZUSÄTZLICHER TEXT
Quellenangaben für die verwendeten Bilder und Grafiken: http://www.fotolia.de Mitglied im Immobilienverband Deutschland IVD, Bundesverband der Immobilienberater, Makler, Verwalter und Sachverständigen e.V. Mitglied im BFW, Bundesverband freier Immobilien- und Wohnungsunternehmen e.V. Das weitere Impressum unter: www.baerbel-bahr.de/impressum Verbraucherinformationen Online-Streitbeilegung gemäß Art. 14 Abs. 1 ODR-VO: Die Europäische Kommission stellt eine Plattform zur Online-Streitbeilegung (OS) bereit, die Sie hier finden: http://ec.europa.eu/consumers/odr
Anbieter kontaktieren

AGB, Datenschutz & Verbraucherhinweis wurden gelesen und akzeptiert.