Angebot 5963 von 17609

Anbieter kontaktieren

AGB, Datenschutz & Verbraucherhinweis wurden gelesen und akzeptiert.

Leib Immobilien GmbH

Andreas von Imhoff
96450 Coburg
  • Mehr erfahren
bellevue.de-ID: 30597175

Fachwerkhaus mit Baugrundstück und Scheune (optional) in Ahorn-Witzmannsberg

  • Haus
  • · 200 m² Wohnfläche
  • · 1.892 m² Grundstücksfläche
  • · 165.000 € Kaufpreis
Anbieter kontaktieren

Objektbeschreibung

Das interessante Immobilienangebot besteht aus einem Fachwerkhaus, welches bewohnbar ist, aber eine Sanierung verdient. Direkt anschließend befindet sich ein Baugrundstück, bebaut mit einer Doppelgarage und derzeit als Garten genutzt. Wenige Meter ...mehr lesen
Das interessante Immobilienangebot besteht aus einem Fachwerkhaus, welches bewohnbar ist, aber eine Sanierung verdient. Direkt anschließend befindet sich ein Baugrundstück, bebaut mit einer Doppelgarage und derzeit als Garten genutzt. Wenige Meter vom Haus entfernt kann eine stattliche Scheune in gutem Zustand zusätzlich erworben werden.
Das Haus ist aufgeteilt in drei Wohnungen wird derzeit aber gesamt genutzt.
Es gibt statische Probleme durch den unter dem Haus liegenden Gewölbekeller. Diese kann man beheben oder lebt mit den Rissen im Mauerwerk, wie der jetzige Eigentümer auch.

Immobiliendetails

  • Nutzungsart
    Wohnen
  • Objektart
    Einfamilienhaus
  • Hauptobjektart
    Haus
  • Vertragsart
    Kauf
  • Objektzustand
    Renovierungsbedürftig
  • Baujahr
    1910
  • Anzahl Badezimmer
    3
  • Wohnfläche (ca.)
    200 m²
  • Grundstücksfläche (ca.)
    1.892 m²
  • Anbieter-Objektnummer
    1643

Preise & Kosten

  • Courtage
    3,57 % inklusive der gesetzlichen Mehrwertsteuer

Energie

  • Heizungsart
    Zentralheizung
  • Befeuerungsart
    Öl
  • Energieausweis
    Energiebedarfsausweis
  • Endenergiebedarf
    289,9 kWh/(m²*a)
  • Baujahr (laut Energieausweis)
    1900
  • Energiepass gültig bis
    2035-08-15
  • Energieeffizienzklasse
    H
  • Gebäudeart
    Wohngebäude
  • Wesentlicher Energieträger
    OEL
  • Ausgestellt
    nach dem 1.5.2014

Ausstattung

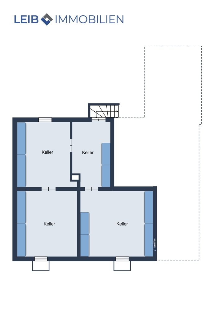
  • Keller
- Holzsprossenfenster von 1995
- beheizt von einer älteren Ölzentralheizung (1968 eingebaut)
- eigener Brunnen auf dem Grundstück
- große Dachterrasse mit grandiosem Fernblick
- das Haus ist voll unterkellert
- Doppelgarage auf dem zusätzlichen ...mehr lesen
- Holzsprossenfenster von 1995
- beheizt von einer älteren Ölzentralheizung (1968 eingebaut)
- eigener Brunnen auf dem Grundstück
- große Dachterrasse mit grandiosem Fernblick
- das Haus ist voll unterkellert
- Doppelgarage auf dem zusätzlichen Baugrundstück
- zusätzlich Gewölbekeller unter dem Haus

Standort & Lage

In erhabener Lage in einem Ahorner Ortsteil gelegen. Von hier erreichen Sie die Coburger Innenstadt in ca. 15 Autominuten. Versorgungseinrichtungen sind vor Ort oder in wenigen Minuten erreichbar. Eine Stadtbushaltestelle ist direkt vor Ort.
Vom Haus ...mehr lesen
In erhabener Lage in einem Ahorner Ortsteil gelegen. Von hier erreichen Sie die Coburger Innenstadt in ca. 15 Autominuten. Versorgungseinrichtungen sind vor Ort oder in wenigen Minuten erreichbar. Eine Stadtbushaltestelle ist direkt vor Ort.
Vom Haus hat man einen grandiosen Blick bis in den Thüringer Wald. Die herrliche Umgebung lädt zu langen Spaziergängen ein.

96482 Ahorn · Witzmannsberg · DEU

Die genaue Anschrift erfahren Sie vom Anbieter

Anbieter

Logo von Leib Immobilien GmbH
2025 Best Property Agents

Ansprechpartner

Verbraucherhinweis

Widerrufsbelehrung des Anbieters

Gilt nicht für Wohnraummiete in Deutschland

Widerrufsrecht für Verbraucher

Sie haben das Recht, binnen vierzehn Tagen ohne Angabe von Gründen diesen Vertrag zu widerrufen. Die Widerrufsfrist beträgt vierzehn Tage ab dem Tag des Vertragsabschlusses.

Um Ihr Widerrufsrecht auszuüben, müssen Sie uns (Leib Immobilien GmbH, Zinkenwehr 3, 96450 Coburg, Fax: 09561-882323, Tel: 09561-88230, info@leib-immobilien.de) mittels einer eindeutigen Erklärung (z. B. ein mit der Post versandter Brief, Telefax oder E-Mail) über Ihren Entschluss, diesen Vertrag zu widerrufen, informieren. Sie können dafür das beigefügte Muster-Widerrufsformular verwenden, das jedoch nicht vorgeschrieben ist. Zur Wahrung der Widerrufsfrist reicht es aus, dass Sie die Mitteilung über die Ausübung des Widerrufsrechts vor Ablauf der Widerrufsfrist absenden.

Folgen des Widerrufs

Wenn Sie diesen Vertrag widerrufen, haben wir Ihnen alle Zahlungen, die wir von Ihnen erhalten haben, einschließlich der Lieferkosten (mit Ausnahme der zusätzlichen Kosten, die sich daraus ergeben, dass Sie eine andere Art der Lieferung als die von uns angebotene, günstigste Standardlieferung gewählt haben), unverzüglich und spätestens binnen vierzehn Tagen ab dem Tag zurückzuzahlen, an dem die Mitteilung über Ihren Widerruf dieses Vertrags bei uns eingegangen ist. Für diese Rückzahlung verwenden wir dasselbe Zahlungsmittel, das Sie bei der ursprünglichen Transaktion eingesetzt haben, es sei denn, mit Ihnen wurde ausdrücklich etwas anderes vereinbart; in keinem Fall werden Ihnen wegen dieser Rückzahlung Entgelte berechnet. Haben Sie verlangt, dass die Dienstleistungen während der Widerrufsfrist beginnen soll, so haben Sie uns einen angemessenen Betrag zu zahlen, der dem Anteil der bis zu dem Zeitpunkt, zu dem Sie uns von der Ausübung des Widerrufsrechts hinsichtlich dieses Vertrags unterrichten, bereits erbrachten Dienstleistungen im Vergleich zum Gesamtumfang der im Vertrag vorgesehenen Dienstleistungen entspricht.

Muster-Widerrufsformular

(Wenn Sie den Vertrag widerrufen wollen, dann füllen Sie dieses Formular aus und senden Sie es zurück.)

An Leib Immobilien GmbH, Zinkenwehr 3, 96450 Coburg, Fax: 09561-882323, info@leib-immobilien.de
Hiermit widerrufe(n) ich/wir (*) den von mir/uns (*) abgeschlossenen Vertrag über den Kauf der folgenden Waren (*)/die Erbringung der folgenden Dienstleistung (*)


- Bestellt am (*)/erhalten am (*)

- Name des/der Verbraucher(s)

- Anschrift des/der Verbraucher(s)

- Unterschrift des/der Verbraucher(s) (nur bei Mitteilung auf Papier)
- Datum


(*) Unzutreffendes streichen

Hinweis auf die Möglichkeit eines vorzeitigen Erlöschens des Widerrufsrechts

Ihr Widerrufsrecht erlischt, wenn wir unsere Leistung vollständig erbracht haben und mit der Ausführung der Leistung erst begonnen haben, nachdem Sie Ihre ausdrückliche Zustimmung gegeben haben und gleichzeitig Ihre Kenntnis davon bestätigt haben, dass Sie Ihr Widerrufsrecht bei vollständiger Vertragserfüllung durch uns verlieren.

Impressum Leib Immobilien GmbH
VERTRETUNGSBERECHTIGTE/R
Michael Leib Dipl. Immobilienwirt (VWA); Andreas von Imhoff Dipl


Zinkenwehr 3 3
96450 Coburg
DEU
Tel.: 09561-88230
E-Mail: info@leib-immobilien.de
Fax: 09561-882323
Homepage: http://www.leib-immobilien.de

ZUSTÄNDIGE AUFSICHTSBEHÖRDE
Stadt Coburg Ordnungsamt, Rosengasse 1, 96450 Coburg IHK für München und Oberbayern, Max-Joseph-Straße 2, 80333 München

HANDELSREGISTER-EINTRAG
Coburg HRB 2794
IHK Coburg

UST-ID-NUMMER
DE191654425

ZUSÄTZLICHER TEXT
Haftung für Inhalte Als Diensteanbieter sind wir gemäß § 7 Abs.1 TMG für eigene Inhalte auf diesen Seiten nach den allgemeinen Gesetzen verantwortlich. Nach §§ 8 bis 10 TMG sind wir als Diensteanbieter jedoch nicht verpflichtet, übermittelte oder gespeicherte fremde Informationen zu überwachen oder nach Umständen zu forschen, die auf eine rechtswidrige Tätigkeit hinweisen. Verpflichtungen zur Entfernung oder Sperrung der Nutzung von Informationen nach den allgemeinen Gesetzen bleiben hiervon unberührt. Eine diesbezügliche Haftung ist jedoch erst ab dem Zeitpunkt der Kenntnis einer konkreten Rechtsverletzung möglich. Bei Bekanntwerden von entsprechenden Rechtsverletzungen werden wir diese Inhalte umgehend entfernen. Haftung für Links Unser Angebot enthält Links zu externen Webseiten Dritter, auf deren Inhalte wir keinen Einfluss haben. Deshalb können wir für diese fremden Inhalte auch keine Gewähr übernehmen. Für die Inhalte der verlinkten Seiten ist stets der jeweilige Anbieter oder Betreiber der Seiten verantwortlich. Die verlinkten Seiten wurden zum Zeitpunkt der Verlinkung auf mögliche Rechtsverstöße überprüft. Rechtswidrige Inhalte waren zum Zeitpunkt der Verlinkung nicht erkennbar. Eine permanente inhaltliche Kontrolle der verlinkten Seiten ist jedoch ohne konkrete Anhaltspunkte einer Rechtsverletzung nicht zumutbar. Bei Bekanntwerden von Rechtsverletzungen werden wir derartige Links umgehend entfernen. Urheberrecht Die durch die Seitenbetreiber erstellten Inhalte und Werke auf diesen Seiten unterliegen dem deutschen Urheberrecht. Die Vervielfältigung, Bearbeitung, Verbreitung und jede Art der Verwertung außerhalb der Grenzen des Urheberrechtes bedürfen der schriftlichen Zustimmung des jeweiligen Autors bzw. Erstellers. Downloads und Kopien dieser Seite sind nur für den privaten, nicht kommerziellen Gebrauch gestattet. Soweit die Inhalte auf dieser Seite nicht vom Betreiber erstellt wurden, werden die Urheberrechte Dritter beachtet. Insbesondere werden Inhalte Dritter als solche gekennzeichnet. Sollten Sie trotzdem auf eine Urheberrechtsverletzung aufmerksam werden, bitten wir um einen entsprechenden Hinweis. Bei Bekanntwerden von Rechtsverletzungen werden wir derartige Inhalte umgehend entfernen. Quelle: https://www.e-recht24.de Verbraucherinformationen Online-Streitbeilegung gemäß Art. 14 Abs. 1 ODR-VO: Die Europäische Kommission stellt eine Plattform zur Online-Streitbeilegung (OS) bereit, die Sie hier finden: http://ec.europa.eu/consumers/odr
Anbieter kontaktieren

AGB, Datenschutz & Verbraucherhinweis wurden gelesen und akzeptiert.