Angebot 8632 von 16373

Anbieter kontaktieren

AGB, Datenschutz & Verbraucherhinweis wurden gelesen und akzeptiert.

Mayer & Dau Immobilien Mallorca S.L.

Frank Schreiber
07180 Santa Ponsa
  • Mehr erfahren
bellevue.de-ID: 30597173

Paguera: Villa Encina, luxuriöses Designer-Anwesen mit atemberaubendem Meerblick! Obj. 8455

  • Haus
  • · 5 Zimmer
  • · 604 m² Wohnfläche
  • · 1.355 m² Grundstücksfläche
  • · 7.950.000 € Kaufpreis
Anbieter kontaktieren

Objektbeschreibung

Diese beeindruckende Neubauvilla in exponierter und ruhiger Lage bietet aus sämtlichen Räumen einen atemberaubenden Blick auf das Meer und die Bucht von Camp de Mar. Mit ca. 604 m² Wohnfläche auf einem 1.355 m² großen Grundstück vereint sie modernes ...mehr lesen
Diese beeindruckende Neubauvilla in exponierter und ruhiger Lage bietet aus sämtlichen Räumen einen atemberaubenden Blick auf das Meer und die Bucht von Camp de Mar. Mit ca. 604 m² Wohnfläche auf einem 1.355 m² großen Grundstück vereint sie modernes Design, höchsten Wohnkomfort und erstklassige Bauqualität.

Das Obergeschoss dient als privater Rückzugsort und umfasst eine luxuriöse Master-Suite mit großzügigem Schlafzimmer, stilvollem Badezimmer, begehbarem Kleiderschrank und privater Terrasse. Drei weitere lichtdurchflutete Schlafzimmer, jeweils mit eigenem Bad en suite, bieten höchsten Komfort und spektakulären Meerblick. Ein außergewöhnlicher, barrierefreier Eingangsbereich sowie drei Außenstellplätze und eine Garage mit direktem Zugang zur Villa runden diese Ebene ab.

Das Erdgeschoss beeindruckt mit einem offenen Wohnkonzept. Der elegante Wohnbereich mit Kamin geht nahtlos in die exklusive Designer-Küche mit Bora- und Gaggenau-Geräten sowie eine separate Backup-Kitchen über. Ein stilvoller Essbereich, eine Bodega als Blickfang, ein Büro, ein Gäste-WC und ein Innenpatio schaffen eine besondere Atmosphäre. Der traumhafte Außenbereich lädt ganzjährig zum Entspannen ein: Ein Infinity-Pool, großzügige Terrassen, eine Außenküche, eine Lounge mit Feuerstelle und eine Außendusche bieten höchsten Komfort.

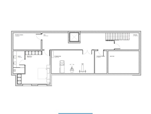
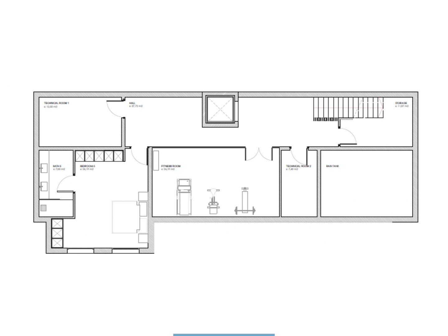
Das Untergeschoss bietet weitere Nutzungsmöglichkeiten: Neben zwei Technikräumen und einem Hauswirtschaftsraum gibt es ein mögliches weiteres Schlafzimmer mit Bad en suite sowie ein Fitnessstudio mit Sauna und Dusche. Eine Tiefgarage mit Platz für bis zu vier Fahrzeuge sorgt für zusätzlichen Komfort.

Hochwertige Materialien wie Naturstein und Parkett verleihen der Villa eine edle Note. Zur Ausstattung gehören Fußbodenheizung, Klimaanlage, Smart-Home-System, Sonos-Soundsystem, LED-Lichtdesign sowie Videoüberwachung mit Alarmanlage.

Dieses exklusive Anwesen vereint Luxus, modernste Technik und absolute Privatsphäre – ein wahres Juwel für anspruchsvolle Käufer.

Immobiliendetails

  • Nutzungsart
    Wohnen
  • Objektart
    Villa
  • Hauptobjektart
    Haus
  • Vertragsart
    Kauf
  • Objektzustand
    Erstbezug
  • Baujahr
    2025
  • Zimmer (gesamt)
    5
  • Anzahl Schlafzimmer
    4
  • Anzahl Badezimmer
    6
  • Anzahl separate WC
    1
  • Wohneinheiten
    1
  • Wohnfläche (ca.)
    604 m²
  • Grundstücksfläche (ca.)
    1.355 m²
  • Küche
    Einbauküche (EBK)
  • Bad
    Duschbad, Bad mit Dusche und Badewanne, Bad mit Fenster
  • Stellplatzart
    Tiefgarage
  • Ausstattungskategorie
    Luxus
  • Bauweise
    Massivhaus
  • Fußboden
    Stein, Parkett
  • Verfügbarkeit
    ab sofort
  • Anbieter-Objektnummer
    8455

Preise & Kosten

  • Courtage
    Keine besondere Angabe.

Ausstattung

  • Möbliert
  • Keller
Allgemeine Ausstattung

* Einbauküche
* Einbauschränke
* Hauswirtschaftsraum
* Abstellraum
* Technikraum
* Kamin
* Schmalprofilfenster (Aluminium) - ZenLine
* Außenküche
* Außendusche
* Außenlounge mit Feuerstelle
* Terrassen
* Stellplatz


Haustechnik

* ...mehr lesen
Allgemeine Ausstattung

* Einbauküche
* Einbauschränke
* Hauswirtschaftsraum
* Abstellraum
* Technikraum
* Kamin
* Schmalprofilfenster (Aluminium) - ZenLine
* Außenküche
* Außendusche
* Außenlounge mit Feuerstelle
* Terrassen
* Stellplatz


Haustechnik

* Wärmepumpe
* Fußbodenheizung
* Klimaanlage
* Aufzug
* Internet
* Domotik
* Soundsystem - Sonos
* LED Lichtdesign
* Axor-Armaturen


Sicherheit

* Videoüberwachung
* Alarmanlage
* Automatisches Tor


Besonderheiten

* Infinity-Pool
* Vorbereitung Sauna
* Bodega
* Patio mit Wasserspiel
* Südwest Ausrichtung
* Naturstein- und Parkettböden
* Erstklassiger Meerblick

Standort & Lage

Paguera, oft auch als "Peguera" bezeichnet, liegt malerisch an der Südwestküste Mallorcas und gehört zur wohlhabenden Gemeinde Calvià. Die Region ist bekannt für ihre luxuriösen Immobilien, die oft einen atemberaubenden Meerblick bieten und in ...mehr lesen
Paguera, oft auch als "Peguera" bezeichnet, liegt malerisch an der Südwestküste Mallorcas und gehört zur wohlhabenden Gemeinde Calvià. Die Region ist bekannt für ihre luxuriösen Immobilien, die oft einen atemberaubenden Meerblick bieten und in unmittelbarer Nähe zu den schönsten Stränden, exklusiven Yachthäfen und renommierten Golfplätzen liegen.

Die Umgebung von Paguera zeichnet sich durch eine hervorragende Infrastruktur aus, die eine Vielzahl von Freizeitaktivitäten und Annehmlichkeiten bietet. Die Nähe zur Inselhauptstadt Palma und zum internationalen Flughafen macht Paguera zu einem idealen Standort für anspruchsvolle Immobilienbesitzer, die sowohl Ruhe als auch eine gute Anbindung schätzen.

Die exklusive Lage von Paguera bietet nicht nur eine beeindruckende Aussicht auf das Mittelmeer, sondern auch eine harmonische Verbindung von Natur und Luxus. Die Region ist geprägt von einer idyllischen Landschaft mit Pinienwäldern und Hügeln, die Privatsphäre und ein hohes Maß an Lebensqualität gewährleisten.

Insgesamt bietet Paguera eine einzigartige Kombination aus exklusiver Lage, luxuriösem Wohnkomfort und einer Vielzahl von Freizeitmöglichkeiten, die den Ansprüchen von Eigentümern von Luxusimmobilien gerecht werden.

07160 Paguera · Mallorca · Balearische_Inseln · ESP

Die genaue Anschrift erfahren Sie vom Anbieter

Anbieter

Logo von Mayer & Dau Immobilien Mallorca S.L.

Mayer & Dau Immobilien Mallorca S.L.

Herr Benjamin Dau
Carrer d'Elionor Servera 77
07590 Cala Ratjada
2026 Best Property Agents

Ansprechpartner

Frank Schreiber

Avinguda del Rei Jaume I, 117
07180 Santa Ponsa
Verbraucherhinweis

Widerrufsbelehrung des Anbieters

(Gilt nicht für Wohnraummiete in Deutschland)

Widerrufsrecht für Verbraucher
Sie haben das Recht, binnen vierzehn Tagen ohne Angabe von Gründen diesen Vertrag zu widerrufen. Die Widerrufsfrist beträgt vierzehn Tage ab dem Tag des Vertragsabschlusses.
Um Ihr Widerrufsrecht auszuüben, müssen Sie uns (Mayer & Dau Immobilien GmbH, Am Hogen Hagen 31, 26160 Bad Zwischenahn, 04403 3099, 04403 937429, info@mayer-dau.de) mittels einer eindeutigen Erklärung (z. B. ein mit der Post versandter Brief, Telefax oder E-Mail) über Ihren Entschluss, diesen Vertrag zu widerrufen, informieren. Sie können dafür das beigefügte Muster-Widerrufsformular verwenden, das jedoch nicht vorgeschrieben ist. Zur Wahrung der Widerrufsfrist reicht es aus, dass Sie die Mitteilung über die Ausübung des Widerrufsrechts vor Ablauf der Widerrufsfrist absenden.

Folgen des Widerrufs
Wenn Sie diesen Vertrag widerrufen, haben wir Ihnen alle Zahlungen, die wir von Ihnen erhalten haben, einschließlich der Lieferkosten (mit Ausnahme der zusätzlichen Kosten, die sich daraus ergeben, dass Sie eine andere Art der Lieferung als die von uns angebotene, günstigste Standardlieferung gewählt haben), unverzüglich und spätestens binnen vierzehn Tagen ab dem Tag zurückzuzahlen, an dem die Mitteilung über Ihren Widerruf dieses Vertrags bei uns eingegangen ist. Für diese Rückzahlung verwenden wir dasselbe Zahlungsmittel, das Sie bei der ursprünglichen Transaktion eingesetzt haben, es sei denn, mit Ihnen wurde ausdrücklich etwas anderes vereinbart; in keinem Fall werden Ihnen wegen dieser Rückzahlung Entgelte berechnet. Haben Sie verlangt, dass die Dienstleistungen während der Widerrufsfrist beginnen soll, so haben Sie uns einen angemessenen Betrag zu zahlen, der dem Anteil der bis zu dem Zeitpunkt, zu dem Sie uns von der Ausübung des Widerrufsrechts hinsichtlich dieses Vertrags unterrichten, bereits erbrachten Dienstleistungen im Vergleich zum Gesamtumfang der im Vertrag vorgesehenen Dienstleistungen entspricht.

Muster-Widerrufsformular
(Wenn Sie den Vertrag widerrufen wollen, dann füllen Sie dieses Formular aus und senden Sie es zurück.)

An Mayer & Dau Immobilien GmbH, Am Hogen Hagen 31, 26160 Bad Zwischenahn, 04403 3099, 04403 937429, info@mayer-dau.de

Hiermit widerrufe ich/wir den von mir/uns abgeschlossenen Vertrag über den Kauf der folgenden Waren /die Erbringung der folgenden Dienstleistung


Bestellt am /erhalten am

Name des/der Verbraucher(s)

Anschrift des/der Verbraucher(s)

Unterschrift des/der Verbraucher(s) (nur bei Mitteilung auf Papier)

Datum


( Unzutreffendes streichen )


Hinweis auf die Möglichkeit eines vorzeitigen Erlöschens des Widerrufsrechts

Ihr Widerrufsrecht erlischt, wenn wir unsere Leistung vollständig erbracht haben und mit der Ausführung der Leistung erst begonnen haben, nachdem Sie Ihre ausdrückliche Zustimmung gegeben haben und gleichzeitig Ihre Kenntnis davon bestätigt haben, dass Sie Ihr Widerrufsrecht bei vollständiger Vertragserfüllung durch uns verlieren.

Impressum Mayer & Dau Immobilien GmbH
VERTRETUNGSBERECHTIGTE/R
Benjamin Dau


Am Hogen Hagen 31
26160 Bad Zwischenahn
DEU
Tel.: 04403 3099
E-Mail: info@mayer-dau.de
Fax: 04403 937429
Homepage: www.mayer-dau.de

ZUSTÄNDIGE AUFSICHTSBEHÖRDE
Oldenburgische Industrie- und Handelskammer, Moslestraße 6, 26122 Oldenburg, DEU

HANDELSREGISTER-EINTRAG
HRB 203067
Amtsgericht Oldenburg

UST-ID-NUMMER
DE263564717
Anbieter kontaktieren

AGB, Datenschutz & Verbraucherhinweis wurden gelesen und akzeptiert.