Angebot 3 von 36

Anbieter kontaktieren

AGB, Datenschutz & Verbraucherhinweis wurden gelesen und akzeptiert.

SIS-Sparkassen-Immobilien-Service GmbH

Peter Heiß
80805 München
  • Mehr erfahren
bellevue.de-ID: 30638547

Hochwertig ausgestattete und top gepflegte Doppelhaushälfte mit Garage und eingewachsenen Garten

  • Haus
  • · 6 Zimmer
  • · 171 m² Wohnfläche
  • · 322 m² Grundstücksfläche
  • · 1.420.000 € Kaufpreis
Anbieter kontaktieren

Objektbeschreibung

Auf einem ca. 322 m² großen gelegenen Grundstück vereint diese Immobilie mit ca. 171 m² Wohnfläche moderne Architektur mit einem hohen Anspruch an Wohnqualität und Komfort. Das harmonische Zusammenspiel aus klaren Linien, durchdachter Planung und ...mehr lesen
Auf einem ca. 322 m² großen gelegenen Grundstück vereint diese Immobilie mit ca. 171 m² Wohnfläche moderne Architektur mit einem hohen Anspruch an Wohnqualität und Komfort. Das harmonische Zusammenspiel aus klaren Linien, durchdachter Planung und ausgewählten Ausstattungsdetails schafft ein Zuhause mit besonderem Wohlfühlfaktor und lässt fast keine Wünsche offen.

Großzügige, teilweise bodentiefe Fenster prägen das Erscheinungsbild des Hauses und sorgen in allen Räumen für ein offenes, helles und modernes Ambiente.

Im Erdgeschoss erwartet Sie ein offenes Wohnkonzept, das Wohnen, Kochen und Essen nahtlos miteinander verbindet. Ergänzt wird diese Ebene durch ein Gäste-WC im Eingangsbereich. Die angrenzende Terrasse mit einer Fläche von ca. 30 m² erweitert den Wohnraum ins Freie und lädt zu entspannten Stunden im Grünen ein.
Zum Garten gehört eine ca. 15 m² großes, gemauertes Gartenhaus mit einem ebenfalls gemauerten Grillplatz.

Das Obergeschoss setzt den zeitgemäßen Wohnstil konsequent fort. Neben einem großzügigen Flur befinden sich hier drei Schlafzimmer ( davon haben 2 Zimmer einen Zugang zum Balkon) sowie ein komfortables Masterbad mit 2 Waschbecken, WC und begehbarer Dusche – ideal für Familien.

Im Dachgeschoss eröffnet sich ein weiteres Highlight: Ein geräumiges und helles Schlafzimmer bietet einen wunderbaren Blick in den Garten. Zudem steht hier ein weiteres hochwertiges Badezimmer mit Waschbecken, WC, Badewanne und ebenerdiger Dusche zur Verfügung. Ein zusätzliches Schlafzimmer mit ca. 13 m² kann als Gästezimmer oder Arbeitszimmer genutzt werden.

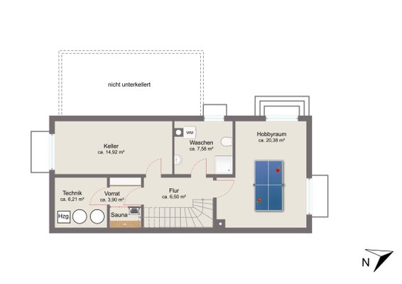
Das Kellergeschoss verfügt über einen einen großen Hobbyraum (derzeit als Sportraum genutzt). In einem abgetrennten Bereich erwartet Sie eine Infrarot-Sauna. Praktisch ist die zusätzliche Nasszelle mit Dusche, Waschbecken und WC im Waschkeller.

Abgerundet wird das Angebot durch eine große Garage (mit Ladestation 11 KW) mit der Möglichkeit zur Durchfahrt und einem Stellplatz vor der Garage.

Diese einmalige Immobilie ist ein ideales Zuhause für Familien, die Wohnqualität mit Komfort und Ruhe suchen.

Immobiliendetails

  • Nutzungsart
    Wohnen
  • Objektart
    Doppelhaushälfte
  • Hauptobjektart
    Haus
  • Vertragsart
    Kauf
  • Objektzustand
    Gepflegt
  • Baujahr
    2011
  • Zimmer (gesamt)
    6
  • Anzahl Schlafzimmer
    5
  • Anzahl Badezimmer
    2
  • Anzahl separate WC
    1
  • Anzahl Parkflächen
    2
  • Wohnfläche (ca.)
    170,61 m²
  • Grundstücksfläche (ca.)
    322 m²
  • Nutzfläche (ca.)
    98,53 m²
  • Küche
    Einbauküche (EBK)
  • Bad
    Duschbad, Bad mit Dusche und Badewanne, Bad mit Fenster
  • Anzahl Terrassen
    1
  • Stellplatzart
    Garage, Freiplatz
  • Anzahl Etagen
    3
  • Dachform
    Satteldach
  • Ausstattungskategorie
    Gehoben
  • Bauweise
    Massivhaus
  • Fußboden
    Teppich, Parkett, Holz/Dielen
  • Erschließung
    Voll erschlossen
  • Haustiere
  • Anbieter-Objektnummer
    1/20/020-021/015693

Preise & Kosten

  • Kaufpreis pro m²
    8.323,08 €
  • Courtage
    3,57 % inklusive der gesetzlichen Mehrwertsteuer

Energie

  • Heizungsart
    Zentralheizung, Fussbodenheizung
  • Befeuerungsart
    Fernwärme
  • Energieausweis
    Energieverbrauchsausweis
  • Endenergieverbrauch
    27,13 kWh/(m²*a)
  • Baujahr (laut Energieausweis)
    2011
  • Energiepass gültig bis
    2036-04-20
  • Energieeffizienzklasse
    A+
  • Gebäudeart
    Wohngebäude
  • Wesentlicher Energieträger
    Fernwärme
  • Ausgestellt
    nach dem 1.5.2014

Ausstattung

  • Sauna
  • Gäste-WC
  • Nichtraucher
  • Garten
  • Kabelanschluss
  • Fußbodenheizung
  • Keller
Individuelle Ausstattungsmerkmale:

- Aufstellung siehe Mail
- Küche mit Fenster
- Hobbyraum
- Balkon/Loggia/Terrasse
- elektrische Rollläden
- Handtuchheizung
- Wärmepumpe

•Küche mit Granitarbeitsplatte und teilweise mit Küchengeräten von Gaggenau
...mehr lesen
Individuelle Ausstattungsmerkmale:

- Aufstellung siehe Mail
- Küche mit Fenster
- Hobbyraum
- Balkon/Loggia/Terrasse
- elektrische Rollläden
- Handtuchheizung
- Wärmepumpe

•Küche mit Granitarbeitsplatte und teilweise mit Küchengeräten von Gaggenau
• Fußbodenheizung im gesamten Haus, auch im Keller
•Wäscheabwurfschacht
•Zentrale Staubsaugeranlage
•Alarmanlage
•Grundwasser-Wärmepumpe
•PV-Anlage mit Batteriespeicher
•Infrarot-Sauna
•Schmiedeeisernes Einfahrtstor mit Fernbedienung
•Kaminrohr für Anschluss eines Kachelofens
•Gemauertes Gartenhaus mit gemauerter Grillstation

Standort & Lage

Der im Norden der Landeshauptstadt München gelegene Stadtteil Feldmoching erfreut sich auf Grund seiner guten Wohnqualität und seiner ausgewogenen Infrastruktur, verbunden mit einer guten Verkehrsanbindung, zunehmender Beliebtheit. Über die ...mehr lesen
Der im Norden der Landeshauptstadt München gelegene Stadtteil Feldmoching erfreut sich auf Grund seiner guten Wohnqualität und seiner ausgewogenen Infrastruktur, verbunden mit einer guten Verkehrsanbindung, zunehmender Beliebtheit. Über die S-Bahn-Linie „S1“ und die U-Bahn-Linie „U2“ erhält man direkten Anschluss in das Münchner Zentrum. Aber auch die Anbindung mit dem PKW ist als ideal zu bezeichnen. Man gelangt in Kürze zu den Autobahnen Richtung Nürnberg („A9“) und Salzburg bzw. Stuttgart („A8“). Alle Einkaufsmöglichkeiten für den täglichen Bedarf sowie diverse Fachärzte, Apotheken, Banken, Sportanlagen und Schulen sind im nahen Umkreis vorhanden. Das „Mira“ Einkaufszentrum liegt ca. 2 km von der Dülferstraße entfernt und lädt zu langen Shopping-Touren ein. Für die Freizeitgestaltung sind der Feldmochinger See (ca. 1,5 km Entfernung), der Fasanerie See, der Lerchenauer See, die Regatta-Anlage Oberschleißheim sowie der Olympiapark mit seinen Grünanlagen bestens geeignet.

80995 München · Feldmoching-Hasenbergl · Bayern · DEU

Die genaue Anschrift erfahren Sie vom Anbieter

Sonstiges

Sämtliche Bilder in diesem Exposé sind urheberrechtlich geschützt und dürfen nicht durch Dritte verwendet bzw. weitergegeben werden. Dieses Exposé wurde mit Sorgfalt zusammengestellt. Alle darin enthaltenen Angaben über das Objekt beruhen auf ...mehr lesen
Sämtliche Bilder in diesem Exposé sind urheberrechtlich geschützt und dürfen nicht durch Dritte verwendet bzw. weitergegeben werden. Dieses Exposé wurde mit Sorgfalt zusammengestellt. Alle darin enthaltenen Angaben über das Objekt beruhen auf Informationen des Verkäufers. Eine Haftung für deren Richtigkeit und Vollständigkeit können wir nicht übernehmen.

Anbieter

Logo von SIS-Sparkassen-Immobilien-Service GmbH
2026 Best Property Agents
Verbraucherhinweis

Widerrufsbelehrung des Anbieters

(Gilt nicht für Wohnraummiete in Deutschland)

Widerrufsrecht für Verbraucher
Sie haben das Recht, binnen vierzehn Tagen ohne Angabe von Gründen diesen Vertrag zu widerrufen. Die Widerrufsfrist beträgt vierzehn Tage ab dem Tag des Vertragsabschlusses.
Um Ihr Widerrufsrecht auszuüben, müssen Sie uns (SIS-Sparkassen-Immobilien-Service GmbH, Ungererstraße 75, 80805 München, 089 2167-59505, info@sis.de) mittels einer eindeutigen Erklärung (z. B. ein mit der Post versandter Brief, Telefax oder E-Mail) über Ihren Entschluss, diesen Vertrag zu widerrufen, informieren. Sie können dafür das beigefügte Muster-Widerrufsformular verwenden, das jedoch nicht vorgeschrieben ist. Zur Wahrung der Widerrufsfrist reicht es aus, dass Sie die Mitteilung über die Ausübung des Widerrufsrechts vor Ablauf der Widerrufsfrist absenden.

Folgen des Widerrufs
Wenn Sie diesen Vertrag widerrufen, haben wir Ihnen alle Zahlungen, die wir von Ihnen erhalten haben, einschließlich der Lieferkosten (mit Ausnahme der zusätzlichen Kosten, die sich daraus ergeben, dass Sie eine andere Art der Lieferung als die von uns angebotene, günstigste Standardlieferung gewählt haben), unverzüglich und spätestens binnen vierzehn Tagen ab dem Tag zurückzuzahlen, an dem die Mitteilung über Ihren Widerruf dieses Vertrags bei uns eingegangen ist. Für diese Rückzahlung verwenden wir dasselbe Zahlungsmittel, das Sie bei der ursprünglichen Transaktion eingesetzt haben, es sei denn, mit Ihnen wurde ausdrücklich etwas anderes vereinbart; in keinem Fall werden Ihnen wegen dieser Rückzahlung Entgelte berechnet. Haben Sie verlangt, dass die Dienstleistungen während der Widerrufsfrist beginnen soll, so haben Sie uns einen angemessenen Betrag zu zahlen, der dem Anteil der bis zu dem Zeitpunkt, zu dem Sie uns von der Ausübung des Widerrufsrechts hinsichtlich dieses Vertrags unterrichten, bereits erbrachten Dienstleistungen im Vergleich zum Gesamtumfang der im Vertrag vorgesehenen Dienstleistungen entspricht.

Muster-Widerrufsformular
(Wenn Sie den Vertrag widerrufen wollen, dann füllen Sie dieses Formular aus und senden Sie es zurück.)

An SIS-Sparkassen-Immobilien-Service GmbH, Ungererstraße 75, 80805 München, 089 2167-59505, info@sis.de

Hiermit widerrufe ich/wir den von mir/uns abgeschlossenen Vertrag über den Kauf der folgenden Waren /die Erbringung der folgenden Dienstleistung


Bestellt am /erhalten am

Name des/der Verbraucher(s)

Anschrift des/der Verbraucher(s)

Unterschrift des/der Verbraucher(s) (nur bei Mitteilung auf Papier)

Datum


( Unzutreffendes streichen )


Hinweis auf die Möglichkeit eines vorzeitigen Erlöschens des Widerrufsrechts

Ihr Widerrufsrecht erlischt, wenn wir unsere Leistung vollständig erbracht haben und mit der Ausführung der Leistung erst begonnen haben, nachdem Sie Ihre ausdrückliche Zustimmung gegeben haben und gleichzeitig Ihre Kenntnis davon bestätigt haben, dass Sie Ihr Widerrufsrecht bei vollständiger Vertragserfüllung durch uns verlieren.

Impressum SIS-Sparkassen-Immobilien-Service GmbH
VERTRETUNGSBERECHTIGTE/R
Geschäftsführer: Dr. Bernhard Bauer


Ungererstraße 75
80805 München
DEU
Tel.: 089 2167-59505
E-Mail: info@sis.de
Homepage: https://www.sis.de

ZUSTÄNDIGE AUFSICHTSBEHÖRDE
Industrie- und Handelskammer für München und Oberbayern, Max-Joseph-Str. 2, 80333 München

HANDELSREGISTER-EINTRAG
Amtsgericht München: HRB 66654
Zuständige Berufskammer: Industrie- und Handelskammer für München und Oberbayern, Max-Joseph-Str. 2, 80333 München (nur falls Sitz im Kammerbezirk der Industrie- und Handelskammer für München und Oberbayern)

UST-ID-NUMMER
DE 129272684

ZUSÄTZLICHER TEXT
Finanzierungsvermittlung: Erlaubnis nach § 34i Absatz 1 Gewerbeordnung (Immobiliardarlehensvermittler), Vermittlerregister (www.vermittlerregister.info): Registrierungs-Nr.: D-W-155-KCUK-04 Berufsbezeichnung: Immobiliardarlehensvermittler nach § 34i Absatz 1 Gewerbeordnung; Bundesrepublik Deutschland Berufsrechtliche Regelungen: – § 34i Gewerbeordnung (GewO) – Verordnung über Immobiliardarlehensvermittlung (ImmVermV) – §§ 655a-655e Bürgerliches Gesetzbuch (BGB) – Art. 229 § 38 und Art. 247 §§ 13, 13b Einführungsgesetz zum Bürgerlichen Gesetzbuche (EGBGB)
Anbieter kontaktieren

AGB, Datenschutz & Verbraucherhinweis wurden gelesen und akzeptiert.