Angebot 200 von 18463

Anbieter kontaktieren

AGB, Datenschutz & Verbraucherhinweis wurden gelesen und akzeptiert.

KITZIMMO - Real Estate - OG

Franz Gobec RR Bgm.a.D.
6370 Kitzbühel
  • Mehr erfahren
bellevue.de-ID: 30637943

Exklusive Penthouse-Maisonette - Top 3

  • Wohnung
  • · 4 Zimmer
  • · 119 m² Wohnfläche
  • · 1.250.000 € Kaufpreis
Anbieter kontaktieren

Objektbeschreibung

Dieses exklusive Neubauprojekt mit insgesamt nur 4 Einheiten ist am Ortsanfang von Fieberbrunn, in leicht erhöhter Aussichtslage gelegen.

Das Ortszentrum Fieberbrunn sowie zahlreiche Einkaufsmöglichkeiten und Skilifte sind mit dem Auto in 5 Minuten ...mehr lesen
Dieses exklusive Neubauprojekt mit insgesamt nur 4 Einheiten ist am Ortsanfang von Fieberbrunn, in leicht erhöhter Aussichtslage gelegen.

Das Ortszentrum Fieberbrunn sowie zahlreiche Einkaufsmöglichkeiten und Skilifte sind mit dem Auto in 5 Minuten erreichbar.
Nur ca. 200 Meter vom Objekt entfernt befindet sich die Ski-Bushaltestelle.

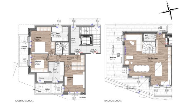
Hierbei handelt es sich um die ca. 119 m² große Penthouse-Maisonette-Wohnung Top 3 welche sich über das 1. Obergeschoss bis in das Dachgeschoss erstreckt.
Im 1. OG befindet sich der Haupteingang der Wohnung, mit dem Lift oder über eine in der Wohnung befindliche Treppe gelangt man in das Dachgeschoss.
Die Diele/Garderobe, zwei Kinder/Gästeschlafzimmer mit Badezimmer sowie der Masterbedroom mit Bad en Suite mit Sauna und zwei Balkone befinden sich im 1. Obergeschoss.

Über das gesamte Dachgeschoss erstreckt sich der großzügige Wohn/Essbereich mit Kamin und offener Küche sowie einer Gäste-Toilette.
Von der ca. 68 m² großen Dachterrasse hat man einen fantastischen Ausblick auf die Kitzbüheler Alpen.

Im Untergeschoss des Neubaus gehört ein ca. 45 m² großer Kellerraum zur Wohnung.
Hier könnte man sich ohne weiteres einen komfortablen Wellness- und Fitnessbereich einrichten.

Die Wohnungen wurden mit edlen Eichendielenböden, zeitlos eleganten Fliesen sowie Sanitärgegenständen ausgestattet.
Selbstverständlich sind auch Raffstores und eine Smarte Haussteuerung (BUS-System) verbaut worden.
Vor dem Haus steht ein Carport- sowie ein Außenstellplatz zur Verfügung.

Beheizt wird der Neubau über eine Sole-Wasser-Wärmepumpe und Fußbodenheizung in sämtlichen Räumen.
Energiedaten: HWB 55,0 Klasse c, fGEE 0,63 Klasse A+. Alle Wohnungen zur Hauptwohnsitznutzung (kein Freizeitwohnsitz).

Immobiliendetails

  • Nutzungsart
    Wohnen
  • Objektart
    Dachgeschosswohnung
  • Hauptobjektart
    Wohnung
  • Vertragsart
    Kauf
  • Objektzustand
    Erstbezug
  • Baujahr
    2023
  • Zimmer (gesamt)
    4
  • Anzahl Schlafzimmer
    3
  • Anzahl Badezimmer
    2
  • Anzahl separate WC
    1
  • Anzahl Parkflächen
    2
  • Wohnfläche (ca.)
    119,47 m²
  • Küche
    Einbauküche (EBK)
  • Kellerfläche (ca.)
    44,82 m²
  • Balkon/Terrasse (ca.)
    68,04 m²
  • Bad
    Duschbad, Bad mit Fenster
  • Freier Stellplatz
    1
  • Ausrichtung
    Süd, West
  • Ausstattungskategorie
    Gehoben
  • Fußboden
    Fliesen, Holz/Dielen
  • Anbieter-Objektnummer
    MG-0002550_3

Preise & Kosten

  • Courtage
    3 %

Energie

  • Heizungsart
    Fussbodenheizung
  • Befeuerungsart
    Luft-/Wasserwärme
  • Energiepass gültig bis
    2032-12-05
  • Gebäudeart
    Wohngebäude
  • Ausgestellt
    nach dem 1.5.2014

Standort & Lage

6391 Fieberbrunn · Tirol · AUT

Die genaue Anschrift erfahren Sie vom Anbieter

Anbieter

Logo von KITZIMMO - Real Estate - OG
2026 Best Property Agents

Ansprechpartner

Verbraucherhinweis

Widerrufsbelehrung des Anbieters

(Gilt nicht für Wohnraummiete in Deutschland)

Widerrufsrecht für Verbraucher
Sie haben das Recht, binnen vierzehn Tagen ohne Angabe von Gründen diesen Vertrag zu widerrufen. Die Widerrufsfrist beträgt vierzehn Tage ab dem Tag des Vertragsabschlusses.
Um Ihr Widerrufsrecht auszuüben, müssen Sie uns (KITZIMMO - Real Estate - OG, Im Gries 27, 6370 Kitzbühel, 0043-676-7047120, 0043-5356-67677, office@kitzimmo.at) mittels einer eindeutigen Erklärung (z. B. ein mit der Post versandter Brief, Telefax oder E-Mail) über Ihren Entschluss, diesen Vertrag zu widerrufen, informieren. Sie können dafür das beigefügte Muster-Widerrufsformular verwenden, das jedoch nicht vorgeschrieben ist. Zur Wahrung der Widerrufsfrist reicht es aus, dass Sie die Mitteilung über die Ausübung des Widerrufsrechts vor Ablauf der Widerrufsfrist absenden.

Folgen des Widerrufs
Wenn Sie diesen Vertrag widerrufen, haben wir Ihnen alle Zahlungen, die wir von Ihnen erhalten haben, einschließlich der Lieferkosten (mit Ausnahme der zusätzlichen Kosten, die sich daraus ergeben, dass Sie eine andere Art der Lieferung als die von uns angebotene, günstigste Standardlieferung gewählt haben), unverzüglich und spätestens binnen vierzehn Tagen ab dem Tag zurückzuzahlen, an dem die Mitteilung über Ihren Widerruf dieses Vertrags bei uns eingegangen ist. Für diese Rückzahlung verwenden wir dasselbe Zahlungsmittel, das Sie bei der ursprünglichen Transaktion eingesetzt haben, es sei denn, mit Ihnen wurde ausdrücklich etwas anderes vereinbart; in keinem Fall werden Ihnen wegen dieser Rückzahlung Entgelte berechnet. Haben Sie verlangt, dass die Dienstleistungen während der Widerrufsfrist beginnen soll, so haben Sie uns einen angemessenen Betrag zu zahlen, der dem Anteil der bis zu dem Zeitpunkt, zu dem Sie uns von der Ausübung des Widerrufsrechts hinsichtlich dieses Vertrags unterrichten, bereits erbrachten Dienstleistungen im Vergleich zum Gesamtumfang der im Vertrag vorgesehenen Dienstleistungen entspricht.

Muster-Widerrufsformular
(Wenn Sie den Vertrag widerrufen wollen, dann füllen Sie dieses Formular aus und senden Sie es zurück.)

An KITZIMMO - Real Estate - OG, Im Gries 27, 6370 Kitzbühel, 0043-676-7047120, 0043-5356-67677, office@kitzimmo.at

Hiermit widerrufe ich/wir den von mir/uns abgeschlossenen Vertrag über den Kauf der folgenden Waren /die Erbringung der folgenden Dienstleistung


Bestellt am /erhalten am

Name des/der Verbraucher(s)

Anschrift des/der Verbraucher(s)

Unterschrift des/der Verbraucher(s) (nur bei Mitteilung auf Papier)

Datum


( Unzutreffendes streichen )


Hinweis auf die Möglichkeit eines vorzeitigen Erlöschens des Widerrufsrechts

Ihr Widerrufsrecht erlischt, wenn wir unsere Leistung vollständig erbracht haben und mit der Ausführung der Leistung erst begonnen haben, nachdem Sie Ihre ausdrückliche Zustimmung gegeben haben und gleichzeitig Ihre Kenntnis davon bestätigt haben, dass Sie Ihr Widerrufsrecht bei vollständiger Vertragserfüllung durch uns verlieren.

Impressum KITZIMMO - Real Estate - OG
VERTRETUNGSBERECHTIGTE/R
Franz Gobec RR Bgm.a.D.


Im Gries 27
6370 Kitzbühel
AUT
Tel.: 0043-676-7047120
E-Mail: office@kitzimmo.at
Fax: 0043-5356-67677
Homepage: https://www.kitzimmo.at/

ZUSTÄNDIGE AUFSICHTSBEHÖRDE
Bezirkshauptmannschaft Kitzbühel

UST-ID-NUMMER
ATU76179109

ZUSÄTZLICHER TEXT
staatl. gepr. und konzess. Immobilientreuhänder, Immobilienmakler, Immobilienverwalter und Bauträger, Mitglied des Ehrenschiedsgerichtes Tirol
Anbieter kontaktieren

AGB, Datenschutz & Verbraucherhinweis wurden gelesen und akzeptiert.