Angebot 554 von 18345

Anbieter kontaktieren

AGB, Datenschutz & Verbraucherhinweis wurden gelesen und akzeptiert.

Properstar SA

Junot Private Office
  • Mehr erfahren
bellevue.de-ID: 30637019

Haus zu kaufen in Arrondissement of Paris, France

  • Haus
  • · 15 Zimmer
  • · 485 m² Wohnfläche
  • · 7.990.000 € Kaufpreis
Anbieter kontaktieren

Objektbeschreibung

Nestled in the heart of the prestigious 16th arrondissement of Paris, in a private lane hidden from view .

In absolute calm, this exceptional 480sqm mansion combines elegance and privacy. Two wooded gardens of 75sqm and 51sqm and a 124sqm roof terrace ...mehr lesen
Nestled in the heart of the prestigious 16th arrondissement of Paris, in a private lane hidden from view .

In absolute calm, this exceptional 480sqm mansion combines elegance and privacy. Two wooded gardens of 75sqm and 51sqm and a 124sqm roof terrace complete this privileged setting.

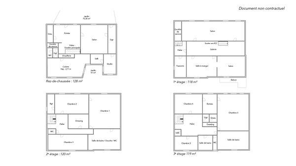
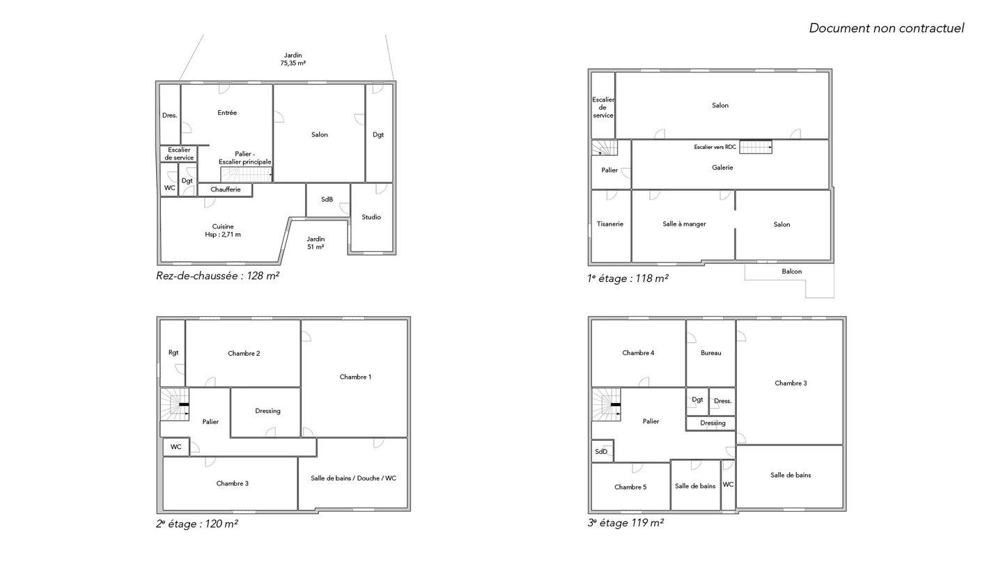
Spread over four through levels, the residence boasts a majestic main staircase and a service staircase, guaranteeing comfort and fluidity.
On the first floor, a generously proportioned entrance hall leads to a large family kitchen opening onto the garden, as well as a billiard and cinema room, which extends into a garden planted with camellias.
On the second floor, a vast reception room with fireplace, an elegant dining room, a boudoir with trompe-l'œil painted ceilings opening onto a balcony, and a tisanerie make up this refined floor.
The second floor features a superb master suite with bathroom and dressing room, as well as two bright bedrooms.
On the third floor, three comfortable bedrooms, an office, two dressing rooms, a bathroom and a shower room provide ideal family space.
Roof terrace: an unoverlooked 124m² rooftop offers unobstructed views.

This haven of peace in a sought-after location features generous volumes, discreet refinement and a secure setting.

Private parking available.

Immobiliendetails

  • Nutzungsart
    Wohnen
  • Objektart
    Herrenhaus
  • Hauptobjektart
    Haus
  • Vertragsart
    Kauf
  • Objektzustand
    Gepflegt
  • Baujahr
    1910
  • Zimmer (gesamt)
    15
  • Anzahl Schlafzimmer
    6
  • Wohnfläche (ca.)
    484,89 m²
  • Gesamtfläche (ca.)
    484,89 m²
  • Nutzfläche (ca.)
    484,89 m²
  • Anbieter-Objektnummer
    115514780

Preise & Kosten

  • Courtage
    Keine besondere Angabe.

Energie

  • Befeuerungsart
    Gas
  • Endenergiebedarf
    258 kWh/(m²*a)
  • Energieeffizienzklasse
    E
  • Wesentlicher Energieträger
    Gas

Standort & Lage

75016 Paris 16ème · FRA

Die genaue Anschrift erfahren Sie vom Anbieter

Verbraucherhinweis

Widerrufsbelehrung des Anbieters

(Gilt nicht für Wohnraummiete in Deutschland)

Widerrufsrecht für Verbraucher
Sie haben das Recht, binnen vierzehn Tagen ohne Angabe von Gründen diesen Vertrag zu widerrufen. Die Widerrufsfrist beträgt vierzehn Tage ab dem Tag des Vertragsabschlusses.
Um Ihr Widerrufsrecht auszuüben, müssen Sie uns (ListGlobally SA, Rue Mercerie 12, 1003 Lausanne, +49 800 0010536, support@listglobally.com) mittels einer eindeutigen Erklärung (z. B. ein mit der Post versandter Brief, Telefax oder E-Mail) über Ihren Entschluss, diesen Vertrag zu widerrufen, informieren. Sie können dafür das beigefügte Muster-Widerrufsformular verwenden, das jedoch nicht vorgeschrieben ist. Zur Wahrung der Widerrufsfrist reicht es aus, dass Sie die Mitteilung über die Ausübung des Widerrufsrechts vor Ablauf der Widerrufsfrist absenden.

Folgen des Widerrufs
Wenn Sie diesen Vertrag widerrufen, haben wir Ihnen alle Zahlungen, die wir von Ihnen erhalten haben, einschließlich der Lieferkosten (mit Ausnahme der zusätzlichen Kosten, die sich daraus ergeben, dass Sie eine andere Art der Lieferung als die von uns angebotene, günstigste Standardlieferung gewählt haben), unverzüglich und spätestens binnen vierzehn Tagen ab dem Tag zurückzuzahlen, an dem die Mitteilung über Ihren Widerruf dieses Vertrags bei uns eingegangen ist. Für diese Rückzahlung verwenden wir dasselbe Zahlungsmittel, das Sie bei der ursprünglichen Transaktion eingesetzt haben, es sei denn, mit Ihnen wurde ausdrücklich etwas anderes vereinbart; in keinem Fall werden Ihnen wegen dieser Rückzahlung Entgelte berechnet. Haben Sie verlangt, dass die Dienstleistungen während der Widerrufsfrist beginnen soll, so haben Sie uns einen angemessenen Betrag zu zahlen, der dem Anteil der bis zu dem Zeitpunkt, zu dem Sie uns von der Ausübung des Widerrufsrechts hinsichtlich dieses Vertrags unterrichten, bereits erbrachten Dienstleistungen im Vergleich zum Gesamtumfang der im Vertrag vorgesehenen Dienstleistungen entspricht.

Muster-Widerrufsformular
(Wenn Sie den Vertrag widerrufen wollen, dann füllen Sie dieses Formular aus und senden Sie es zurück.)

An ListGlobally SA, Rue Mercerie 12, 1003 Lausanne, +49 800 0010536, support@listglobally.com

Hiermit widerrufe ich/wir den von mir/uns abgeschlossenen Vertrag über den Kauf der folgenden Waren /die Erbringung der folgenden Dienstleistung


Bestellt am /erhalten am

Name des/der Verbraucher(s)

Anschrift des/der Verbraucher(s)

Unterschrift des/der Verbraucher(s) (nur bei Mitteilung auf Papier)

Datum


( Unzutreffendes streichen )


Hinweis auf die Möglichkeit eines vorzeitigen Erlöschens des Widerrufsrechts

Ihr Widerrufsrecht erlischt, wenn wir unsere Leistung vollständig erbracht haben und mit der Ausführung der Leistung erst begonnen haben, nachdem Sie Ihre ausdrückliche Zustimmung gegeben haben und gleichzeitig Ihre Kenntnis davon bestätigt haben, dass Sie Ihr Widerrufsrecht bei vollständiger Vertragserfüllung durch uns verlieren.

Impressum ListGlobally SA
VERTRETUNGSBERECHTIGTE/R
Properstar SA


Rue Mercerie 12
1003 Lausanne
CHE
Tel.: +49 800 0010536
E-Mail: support@listglobally.com
Homepage: https://www.listglobally.com/
Anbieter kontaktieren

AGB, Datenschutz & Verbraucherhinweis wurden gelesen und akzeptiert.