Angebot 595 von 18090

Anbieter kontaktieren

AGB, Datenschutz & Verbraucherhinweis wurden gelesen und akzeptiert.

HausHirsch GmbH

Miriam Kerler
40789 Monheim am Rhein
  • Mehr erfahren
bellevue.de-ID: 30635375

Ihr neues Zuhause nahe der Alster – Modernisierte 3-Zimmer-Wohnung mit sonnigem Balkon

  • Wohnung
  • · 3 Zimmer
  • · 68 m² Wohnfläche
  • · 545.000 € Kaufpreis
Anbieter kontaktieren

Objektbeschreibung

Diese attraktive und hochwertig modernisierte 3-Zimmer-Wohnung befindet sich in begehrter Lage von Hamburg-Uhlenhorst und überzeugt durch ihre ruhige Position in zweiter Reihe sowie eine durchdachte Raumaufteilung.

Auf ca. 68 m² Wohnfläche bietet die ...mehr lesen
Diese attraktive und hochwertig modernisierte 3-Zimmer-Wohnung befindet sich in begehrter Lage von Hamburg-Uhlenhorst und überzeugt durch ihre ruhige Position in zweiter Reihe sowie eine durchdachte Raumaufteilung.

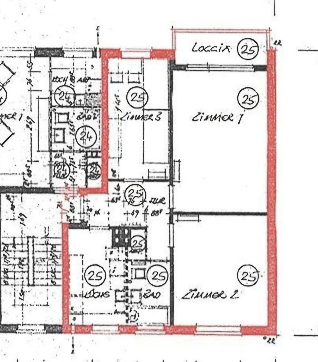
Auf ca. 68 m² Wohnfläche bietet die Wohnung ein komfortables Zuhause für Paare, kleine Familien oder anspruchsvolle Kapitalanleger. Zwei gut geschnittene Schlafzimmer, ein helles Wohnzimmer mit Zugang zum Balkon sowie ein stilvolles Badezimmer schaffen eine angenehme Wohnatmosphäre mit hohem Wohlfühlfaktor.

Die Wohnung wurde im Rahmen einer Kernsanierung im Jahr 2011 umfassend modernisiert und seitdem kontinuierlich aufgewertet. So wurde 2022 eine neue, hochwertige Einbauküche installiert und die Elektrik vollständig erneuert, wodurch ein zeitgemäßer Wohnstandard gewährleistet ist.

Ein weiteres Plus ist die 2024 durchgeführte Isolierung und Sanierung der Außenfassade, die sowohl den Energieverbrauch reduziert als auch den Wohnkomfort nachhaltig steigert. Der sonnige Balkon mit Blick in den ruhigen Innenhof lädt zum Entspannen ein und bietet einen angenehmen Rückzugsort mitten in der Stadt.

Abgerundet wird dieses attraktive Angebot durch einen eigenen Stellplatz (zzgl. € 30.000,--) sowie einen separaten Kellerraum.

Die Wohnung ist derzeit vermietet (bis 1.5.2027) und bietet somit eine interessante Möglichkeit für Kapitalanleger mit stabilen Mieteinnahmen. Gleichzeitig eignet sich das Objekt auch perspektivisch zur späteren Eigennutzung.

Diese Immobilie kombiniert wertstabile Investmentqualitäten mit erstklassigem Wohnkomfort in begehrter Lage und spricht damit sowohl Eigennutzer als auch Kapitalanleger an.

Immobiliendetails

  • Nutzungsart
    Wohnen
  • Objektart
    Etagenwohnung
  • Hauptobjektart
    Wohnung
  • Vertragsart
    Kauf
  • Objektzustand
    Modernisiert
  • Baujahr
    1959
  • Zimmer (gesamt)
    3
  • Anzahl Schlafzimmer
    2
  • Anzahl Badezimmer
    1
  • Anzahl Parkflächen
    1
  • Wohnfläche (ca.)
    68 m²
  • Gesamtfläche (ca.)
    68 m²
  • Küche
    Einbauküche (EBK)
  • Balkon
    1
  • Bad
    Bad mit Dusche und Badewanne
  • Etage
    3
  • Stellplatzart
    Freiplatz
  • Garagenstellplätze
    1
  • Anzahl Etagen
    5
  • Ausstattungskategorie
    Gehoben
  • Letzte Modernisierung
    2022
  • Fußboden
    Laminat, Fliesen
  • Anbieter-Objektnummer
    HA2532334

Preise & Kosten

  • Garagen-/Stellplatzkaufpreis
    30.000 €
  • Hausgeld pro Monat
    380 €
  • Courtage
    Die angegebene Käuferprovision (inkl. MwSt.) ist verdient und fällig mit Beurkundung des notariellen Kaufvertrages.

    3,57 % inklusive der gesetzlichen Mehrwertsteuer

Energie

  • Energieausweis
    Energieverbrauchsausweis
  • Endenergieverbrauch
    125 kWh/(m²*a)
  • Energieverbrauch für Warmwasser
    nicht enthalten
  • Energiepass gültig bis
    2028-04-24
  • Energieeffizienzklasse
    D
  • Wesentlicher Energieträger
    FERNWäRME
  • Ausgestellt
    nach dem 1.5.2014

Ausstattung

  • Vermietet
  • Garten
  • Vermietet/Verpachtet
ca. 68 m² Wohnfläche
3 Zimmer, davon 2 Schlafzimmer
Gestagte Einrichtungsbeispiele
Helles Wohnzimmer mit Balkonzugang
Balkon mit Blick in den ruhigen Innenhof
Neue Einbauküche (2022) mit hochwertigen Geräten
Modernisiertes Vollbad mit Badewanne
Erneuerte ...mehr lesen
ca. 68 m² Wohnfläche
3 Zimmer, davon 2 Schlafzimmer
Gestagte Einrichtungsbeispiele
Helles Wohnzimmer mit Balkonzugang
Balkon mit Blick in den ruhigen Innenhof
Neue Einbauküche (2022) mit hochwertigen Geräten
Modernisiertes Vollbad mit Badewanne
Erneuerte Elektrik (2022)
Kernsanierung des Objekts (2011)
Sanierung und Isolierung der Außenfassade 2024
Laminatboden in den Wohnräumen
Separater Kellerraum
Eigener Stellplatz (zzgl. € 30.000,--)
Gepflegter Gesamtzustand

Standort & Lage

Die Wohnung befindet sich im beliebten Hamburger Stadtteil Uhlenhorst, nur wenige Minuten von der Alster entfernt. Die Umgebung zeichnet sich durch eine hervorragende Infrastruktur mit zahlreichen Einkaufsmöglichkeiten, Cafés, Restaurants sowie ...mehr lesen
Die Wohnung befindet sich im beliebten Hamburger Stadtteil Uhlenhorst, nur wenige Minuten von der Alster entfernt. Die Umgebung zeichnet sich durch eine hervorragende Infrastruktur mit zahlreichen Einkaufsmöglichkeiten, Cafés, Restaurants sowie Schulen und Kitas aus.

Die Innenstadt ist in kurzer Zeit erreichbar, ebenso wie öffentliche Verkehrsmittel, die eine optimale Anbindung gewährleisten. Die Kombination aus zentraler Lage und ruhigem Wohnumfeld macht diese Immobilie besonders attraktiv.

22085 Hamburg · Hamburg · DEU

Die genaue Anschrift erfahren Sie vom Anbieter

Sonstiges

Einige der dargestellten Objektfotos wurden mittels Home Staging (teilweise digital) optimiert, um das Potenzial der Immobilie besser zu veranschaulichen.

Ansprechpartner

Miriam Kerler

Rheinpromenade 8
40789 Monheim am Rhein
Verbraucherhinweis

Widerrufsbelehrung des Anbieters

(Gilt nicht für Wohnraummiete in Deutschland)

Widerrufsrecht für Verbraucher
Sie haben das Recht, binnen vierzehn Tagen ohne Angabe von Gründen diesen Vertrag zu widerrufen. Die Widerrufsfrist beträgt vierzehn Tage ab dem Tag des Vertragsabschlusses.
Um Ihr Widerrufsrecht auszuüben, müssen Sie uns (HausHirsch GmbH, Dreischeibenhaus 1, 40211D Düsseldorf, +49 0 800 000 1244, +49 211 8825025, info@haushirsch.de) mittels einer eindeutigen Erklärung (z. B. ein mit der Post versandter Brief, Telefax oder E-Mail) über Ihren Entschluss, diesen Vertrag zu widerrufen, informieren. Sie können dafür das beigefügte Muster-Widerrufsformular verwenden, das jedoch nicht vorgeschrieben ist. Zur Wahrung der Widerrufsfrist reicht es aus, dass Sie die Mitteilung über die Ausübung des Widerrufsrechts vor Ablauf der Widerrufsfrist absenden.

Folgen des Widerrufs
Wenn Sie diesen Vertrag widerrufen, haben wir Ihnen alle Zahlungen, die wir von Ihnen erhalten haben, einschließlich der Lieferkosten (mit Ausnahme der zusätzlichen Kosten, die sich daraus ergeben, dass Sie eine andere Art der Lieferung als die von uns angebotene, günstigste Standardlieferung gewählt haben), unverzüglich und spätestens binnen vierzehn Tagen ab dem Tag zurückzuzahlen, an dem die Mitteilung über Ihren Widerruf dieses Vertrags bei uns eingegangen ist. Für diese Rückzahlung verwenden wir dasselbe Zahlungsmittel, das Sie bei der ursprünglichen Transaktion eingesetzt haben, es sei denn, mit Ihnen wurde ausdrücklich etwas anderes vereinbart; in keinem Fall werden Ihnen wegen dieser Rückzahlung Entgelte berechnet. Haben Sie verlangt, dass die Dienstleistungen während der Widerrufsfrist beginnen soll, so haben Sie uns einen angemessenen Betrag zu zahlen, der dem Anteil der bis zu dem Zeitpunkt, zu dem Sie uns von der Ausübung des Widerrufsrechts hinsichtlich dieses Vertrags unterrichten, bereits erbrachten Dienstleistungen im Vergleich zum Gesamtumfang der im Vertrag vorgesehenen Dienstleistungen entspricht.

Muster-Widerrufsformular
(Wenn Sie den Vertrag widerrufen wollen, dann füllen Sie dieses Formular aus und senden Sie es zurück.)

An HausHirsch GmbH, Dreischeibenhaus 1, 40211D Düsseldorf, +49 0 800 000 1244, +49 211 8825025, info@haushirsch.de

Hiermit widerrufe ich/wir den von mir/uns abgeschlossenen Vertrag über den Kauf der folgenden Waren /die Erbringung der folgenden Dienstleistung


Bestellt am /erhalten am

Name des/der Verbraucher(s)

Anschrift des/der Verbraucher(s)

Unterschrift des/der Verbraucher(s) (nur bei Mitteilung auf Papier)

Datum


( Unzutreffendes streichen )


Hinweis auf die Möglichkeit eines vorzeitigen Erlöschens des Widerrufsrechts

Ihr Widerrufsrecht erlischt, wenn wir unsere Leistung vollständig erbracht haben und mit der Ausführung der Leistung erst begonnen haben, nachdem Sie Ihre ausdrückliche Zustimmung gegeben haben und gleichzeitig Ihre Kenntnis davon bestätigt haben, dass Sie Ihr Widerrufsrecht bei vollständiger Vertragserfüllung durch uns verlieren.

Impressum HausHirsch GmbH
VERTRETUNGSBERECHTIGTE/R
Marius Wolf


Dreischeibenhaus 1
40211D Düsseldorf
DEU
Tel.: +49 0 800 000 1244
E-Mail: info@haushirsch.de
Fax: +49 211 8825025
Homepage: https://haushirsch.de

ZUSTÄNDIGE AUFSICHTSBEHÖRDE
Die Gewerbeanmeldung nach § 34 c GewO wurde durch Stadt Düsseldorf (www.duesseldorf.de) erteilt.

HANDELSREGISTER-EINTRAG
Amtsgericht Düsseldorf, HRB 99093


UST-ID-NUMMER
DE362155160
Anbieter kontaktieren

AGB, Datenschutz & Verbraucherhinweis wurden gelesen und akzeptiert.