Anbieter kontaktieren
DALEXIS ImmobilienService GmbH
Michael Kneissl
82031 Grünwald
- Mehr erfahren
bellevue.de-ID: 30635347
Attraktives Baugrundstück mit Panoramabergblick- Genehmigung zum Bau einer Landhausvilla
- Grundstück
- · 2.207 m² Grundstücksfläche
- · 1.780.000 € Kaufpreis
Objektbeschreibung
Inmitten des oberen Leitzachtals, zwischen Schliersee und Bayrischzell, bietet dieses real geteilte Baugrundstück in Fischbachau/Elbach eine seltene Gelegenheit im absoluten Premiumsegment. Die ruhige Wohnlage am Ortsrand überzeugt mit unverbaubarem
...mehr lesen
Inmitten des oberen Leitzachtals, zwischen Schliersee und Bayrischzell, bietet dieses real geteilte Baugrundstück in Fischbachau/Elbach eine seltene Gelegenheit im absoluten Premiumsegment. Die ruhige Wohnlage am Ortsrand überzeugt mit unverbaubarem Bergpanoramablick und „Postkarten-Ausblick“ über freie Wiesen auf den Ort Elbach.
Das Grundstück umfasst ca. 2.207 m², ist sehr sonnig nach Süden ausgerichtet und profitiert zusätzlich von Westsonne bis in die Abendstunden. Angrenzende Wiesenflächen betonen das offene Landschaftsbild, schaffen viel Privatsphäre und ein naturnahes Wohngefühl.
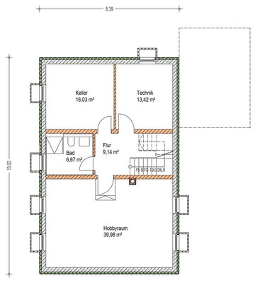
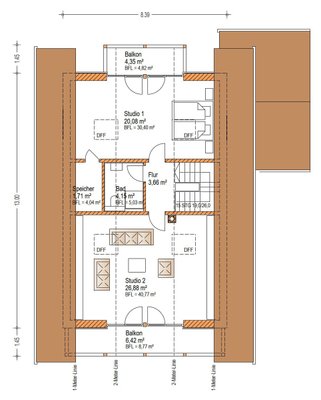
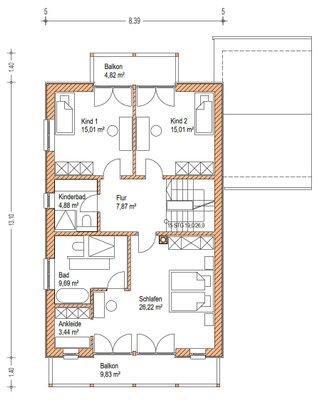
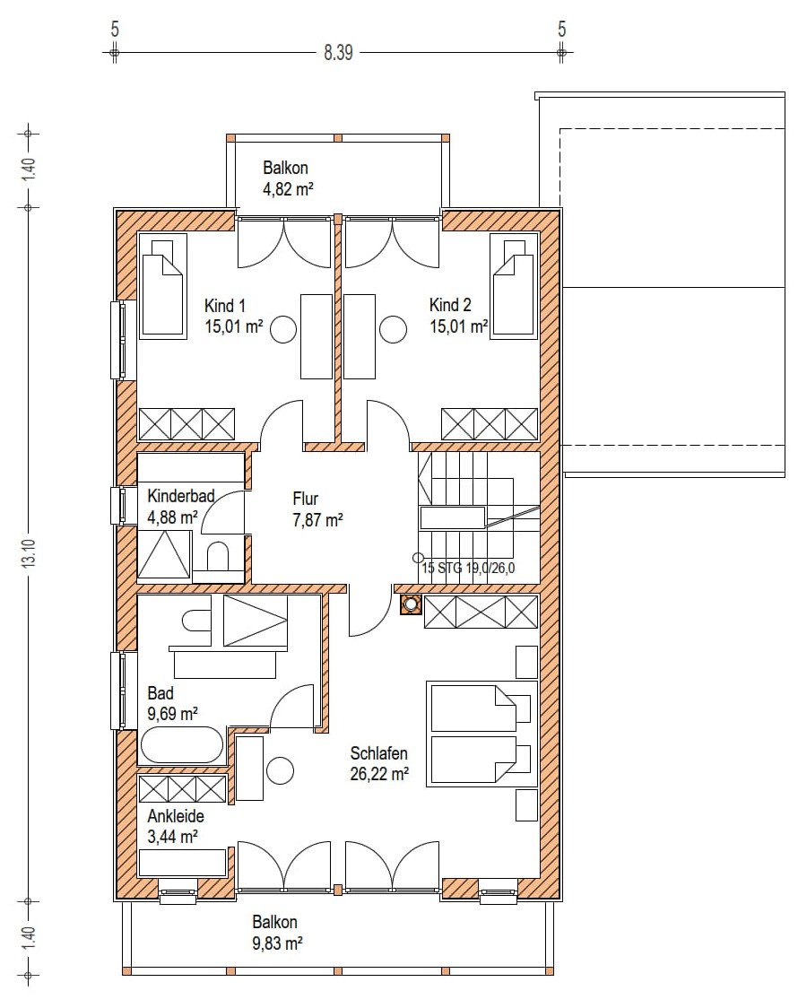
Für das Areal liegt eine Genehmigung zum Bau einer Landhausvilla in massiver Bauweise vor – Baubeginn sofort möglich. Die genehmigte Wohnfläche beträgt ca. 273 m² (inkl. 1/3 Terrasse sowie 1/2 Flur-/Hobbyräume). Denkbar sind zudem ein Dachstudio mit beeindruckendem Bergblick sowie hochwertige Wohnräume im Untergeschoss. Geplant werden kann eine sonnige Süd-Terrasse mit großem Südgarten. Es besteht keine Bindung an ein Bauunternehmen; auf Wunsch können regionale, bewährte Firmen empfohlen werden.
Die Anbindung ist trotz der ruhigen Lage hervorragend: A8 (Irschenberg) ca. 10 Fahrminuten, Bahnhof Fischbachau (BRB) ca. 4 Fahrminuten – ideal auch für Pendler Richtung München. Grund- und Mittelschule sind in wenigen Minuten fußläufig erreichbar, die Infrastruktur des täglichen Bedarfs liegt in unmittelbarer Nähe.
Kaufpreis Grundstück (Haus 2): € 1.780.000,-- (ca. € 806,--/m²).
Optional: Miterwerb eines benachbarten Grundstücks mit ca. 2.362 m² für € 385.000,--. Gesamtkaufpreis Variante 1+2: € 2.165.000,-- (ca. € 473,--/m²).
Darüber hinaus sind weitere Optionen, wie der Miterwerb des benachbarten Baugrundstücks für das Haus1, des denkmalgeschützten Einfirsthofes oder sogar des Gesamtareals mit 8.181 m², möglich.
Ein seltenes Angebot in traumhafter Lage mit exzellenter Perspektive für anspruchsvolle Bauherren.
Das Grundstück umfasst ca. 2.207 m², ist sehr sonnig nach Süden ausgerichtet und profitiert zusätzlich von Westsonne bis in die Abendstunden. Angrenzende Wiesenflächen betonen das offene Landschaftsbild, schaffen viel Privatsphäre und ein naturnahes Wohngefühl.
Für das Areal liegt eine Genehmigung zum Bau einer Landhausvilla in massiver Bauweise vor – Baubeginn sofort möglich. Die genehmigte Wohnfläche beträgt ca. 273 m² (inkl. 1/3 Terrasse sowie 1/2 Flur-/Hobbyräume). Denkbar sind zudem ein Dachstudio mit beeindruckendem Bergblick sowie hochwertige Wohnräume im Untergeschoss. Geplant werden kann eine sonnige Süd-Terrasse mit großem Südgarten. Es besteht keine Bindung an ein Bauunternehmen; auf Wunsch können regionale, bewährte Firmen empfohlen werden.
Die Anbindung ist trotz der ruhigen Lage hervorragend: A8 (Irschenberg) ca. 10 Fahrminuten, Bahnhof Fischbachau (BRB) ca. 4 Fahrminuten – ideal auch für Pendler Richtung München. Grund- und Mittelschule sind in wenigen Minuten fußläufig erreichbar, die Infrastruktur des täglichen Bedarfs liegt in unmittelbarer Nähe.
Kaufpreis Grundstück (Haus 2): € 1.780.000,-- (ca. € 806,--/m²).
Optional: Miterwerb eines benachbarten Grundstücks mit ca. 2.362 m² für € 385.000,--. Gesamtkaufpreis Variante 1+2: € 2.165.000,-- (ca. € 473,--/m²).
Darüber hinaus sind weitere Optionen, wie der Miterwerb des benachbarten Baugrundstücks für das Haus1, des denkmalgeschützten Einfirsthofes oder sogar des Gesamtareals mit 8.181 m², möglich.
Ein seltenes Angebot in traumhafter Lage mit exzellenter Perspektive für anspruchsvolle Bauherren.
Immobiliendetails
-
NutzungsartWohnen
-
ObjektartWohngrundstück
-
HauptobjektartGrundstück
-
VertragsartKauf
-
Grundstücksfläche (ca.)2.207 m²
-
DachformSatteldach
-
BauweiseMassivhaus
-
ErschließungVoll erschlossen
-
Anbieter-Objektnummer7729
Preise & Kosten
-
CourtageDas Angebot ist provisionspflichtig. Mit Abschluss des notariellen Kaufvertrages werden 3,57% inkl. 19% Umsatzsteuer fällig.
3,57 % inklusive der gesetzlichen Mehrwertsteuer
Energie
-
GebäudeartWohngebäude
Ausstattung
- Keller
Fischbachau-Elbach im oberen Leitzachtal zwischen dem Schliersee und Bayrischzell
- Attraktive Wohnlage am Ortsrand mit phantastischem Bergpanoramablick
- "Postkarten-Ausblick" über freie Wiesen auf den idyllischen Ort Elbach
- Äußerst sonnige ...mehr lesen
- Attraktive Wohnlage am Ortsrand mit phantastischem Bergpanoramablick
- "Postkarten-Ausblick" über freie Wiesen auf den idyllischen Ort Elbach
- Äußerst sonnige ...mehr lesen
Fischbachau-Elbach im oberen Leitzachtal zwischen dem Schliersee und Bayrischzell
- Attraktive Wohnlage am Ortsrand mit phantastischem Bergpanoramablick
- "Postkarten-Ausblick" über freie Wiesen auf den idyllischen Ort Elbach
- Äußerst sonnige Süd-Ausrichtung mit Westsonne bis in die Abendstunden
- Verkehrsgünstig gelegen
- A8 Irschenberg in 10 Fahrminuten erreichbar
- Bahnhof Fischbachau (BRB) in ca. 4 Fahrminuten erreichbar
- Grund- und Mittelschule sind fußläufig in wenigen Minuten erreichbar
- Ideal für Pendler nach München
- Sehr gute Infrastruktur in unmittelbarer Nähe
Merkmale:
- Attraktives, real geteiltes Baugrundstück mit ca. 2.207 m²
- Genehmigung zum Bau einer Landhausvilla
- Kaufpreis Grundstück für das Haus 2 = 1.780.000,-- (entspricht ca. 806,-- /m²)
- Keine Bindung an ein Bauunternehmen
- Wir können Empfehlungen von regionalen Unternehmen aussprechen
- Absolutes Premiumsegment
- Phantastischer Ausblick
- Grundstück grenzt an freie Wiesen oberhalb des Orts Elbach
- Baubeginn ist sofort möglich
- Genehmigte Wohnfläche ca. 273 m² (inklusive 1/3 anteiliger Terrasse und 1/2 Flur/Hobbyräume)
- Dachstudio mit atemberaubendem Ausblick in die Berge über den Ort hinweg möglich
- Wohnraumqualität im Untergeschoss möglich
- Sonnige Süd-Terrasse mit großem Südgarten
Ankaufsoptionen:
- Variante 1: Grundstücksfläche von 2.207 m² / Kaufpreis = € 1.780.000,--
- Variante 2: Miterwerb des benachbarten Grundstücks von 2. 362 m² / Kaufpreis = € 385.000,--
- Kaufpreis Gesamtgrundstück Variante 1 und 2 = € 2.165.000,-- (entspricht ca. € 473,--/ m²)
Besondere Optionen:
- Miterwerb des benachbarten Baugrundstücks für das Haus 1 1.641 m²
- Miterwerb des ehemaligen, denkmalgeschützten Einfirsthofes ist möglich / Grundstück 1.971 m²
- Erwerb des Gesamtareals mit 8.181 m² Grundstück
- Attraktive Wohnlage am Ortsrand mit phantastischem Bergpanoramablick
- "Postkarten-Ausblick" über freie Wiesen auf den idyllischen Ort Elbach
- Äußerst sonnige Süd-Ausrichtung mit Westsonne bis in die Abendstunden
- Verkehrsgünstig gelegen
- A8 Irschenberg in 10 Fahrminuten erreichbar
- Bahnhof Fischbachau (BRB) in ca. 4 Fahrminuten erreichbar
- Grund- und Mittelschule sind fußläufig in wenigen Minuten erreichbar
- Ideal für Pendler nach München
- Sehr gute Infrastruktur in unmittelbarer Nähe
Merkmale:
- Attraktives, real geteiltes Baugrundstück mit ca. 2.207 m²
- Genehmigung zum Bau einer Landhausvilla
- Kaufpreis Grundstück für das Haus 2 = 1.780.000,-- (entspricht ca. 806,-- /m²)
- Keine Bindung an ein Bauunternehmen
- Wir können Empfehlungen von regionalen Unternehmen aussprechen
- Absolutes Premiumsegment
- Phantastischer Ausblick
- Grundstück grenzt an freie Wiesen oberhalb des Orts Elbach
- Baubeginn ist sofort möglich
- Genehmigte Wohnfläche ca. 273 m² (inklusive 1/3 anteiliger Terrasse und 1/2 Flur/Hobbyräume)
- Dachstudio mit atemberaubendem Ausblick in die Berge über den Ort hinweg möglich
- Wohnraumqualität im Untergeschoss möglich
- Sonnige Süd-Terrasse mit großem Südgarten
Ankaufsoptionen:
- Variante 1: Grundstücksfläche von 2.207 m² / Kaufpreis = € 1.780.000,--
- Variante 2: Miterwerb des benachbarten Grundstücks von 2. 362 m² / Kaufpreis = € 385.000,--
- Kaufpreis Gesamtgrundstück Variante 1 und 2 = € 2.165.000,-- (entspricht ca. € 473,--/ m²)
Besondere Optionen:
- Miterwerb des benachbarten Baugrundstücks für das Haus 1 1.641 m²
- Miterwerb des ehemaligen, denkmalgeschützten Einfirsthofes ist möglich / Grundstück 1.971 m²
- Erwerb des Gesamtareals mit 8.181 m² Grundstück
Standort & Lage
Die wichtigsten Entfernungen
- Schulbus nach Miesbach (Gymnasium, Realschule) = ca. 10 km
- Autobahnanschluss A8 (Irschenberg) = ca. 12 km
- Bahnhof Fischbachau (BRB) = ca. 2,9 km
- Innenstadt München = ca. 60 km
- Rosenheim = ca. 24 km
- Schliersee = ca. ...mehr lesen
- Schulbus nach Miesbach (Gymnasium, Realschule) = ca. 10 km
- Autobahnanschluss A8 (Irschenberg) = ca. 12 km
- Bahnhof Fischbachau (BRB) = ca. 2,9 km
- Innenstadt München = ca. 60 km
- Rosenheim = ca. 24 km
- Schliersee = ca. ...mehr lesen
Die wichtigsten Entfernungen
- Schulbus nach Miesbach (Gymnasium, Realschule) = ca. 10 km
- Autobahnanschluss A8 (Irschenberg) = ca. 12 km
- Bahnhof Fischbachau (BRB) = ca. 2,9 km
- Innenstadt München = ca. 60 km
- Rosenheim = ca. 24 km
- Schliersee = ca. 12 km
- Tegernsee = ca. 18 km
- Chiemsee = ca. 30 km
Das Ihnen von uns exklusiv angebotene Baugrundstück befindet sich in einer wunderschönen Wohngegend mit atemberaubendem Bergpanoramablick am Rande des sehr beliebten Fischbachauer Ortsteils Elbach, am Fuße des Breitensteins.
Die Wendelsteinregion mit dem Leitzachtal, dem Schliersee und seinem Umland zählen zu den schönsten Plätzen in den bayerischen Alpen.
Das Grundstück liegt verkehrsgünstig und die Einkaufsmöglichkeiten für den täglichen Bedarf sind auch fußläufig in wenigen Minuten erreichbar. Die Grund- und Mittelschule ist nur wenige hundert Meter vom Haus entfernt.
Durch die Lage an den nahen Seen und in den Bergen ist der Freizeitwert für Sport- und Naturbegeisterte sowohl im Sommer, wie auch im Winter hervorragend. Mountain-Biker beginnen ihre Touren direkt vom Grundstück aus. Die benachbarten Skigebiete Spitzingsee und Sudlfeld sowie ein großes Loipennetz befinden sich in unmittelbarer Nähe. Im Sommer bieten Wanderwege unzählige Möglichkeiten für Wanderer und Radfahrer in allen Schweregraden. Oder man genießt einfach sonnige Stunden am Ufer der mitunter schönsten Badeseen in ganz Deutschland.
Über die sehr gut ausgebaute Infrastruktur ist die Landeshauptstadt München auch mit dem öffentlichen Nahverkehr (Bayerische Regionalbahn BRB) über die nahe Haltestelle Fischbachau-Aurach sehr gut erreichbar. Zur Münchner Innenstadt gelangt man per Auto in ca. einer Stunde über die nahegelegene Autobahn A8. Auch zum Münchener Messegelände und dem Flughafen ist die Verbindung über die A8 und die A99 sehr komfortabel.
In Summe eine optimale Wohn- & Verkehrslage, insbesondere für Familien mit Kindern und berufstätige Pendler.
- Schulbus nach Miesbach (Gymnasium, Realschule) = ca. 10 km
- Autobahnanschluss A8 (Irschenberg) = ca. 12 km
- Bahnhof Fischbachau (BRB) = ca. 2,9 km
- Innenstadt München = ca. 60 km
- Rosenheim = ca. 24 km
- Schliersee = ca. 12 km
- Tegernsee = ca. 18 km
- Chiemsee = ca. 30 km
Das Ihnen von uns exklusiv angebotene Baugrundstück befindet sich in einer wunderschönen Wohngegend mit atemberaubendem Bergpanoramablick am Rande des sehr beliebten Fischbachauer Ortsteils Elbach, am Fuße des Breitensteins.
Die Wendelsteinregion mit dem Leitzachtal, dem Schliersee und seinem Umland zählen zu den schönsten Plätzen in den bayerischen Alpen.
Das Grundstück liegt verkehrsgünstig und die Einkaufsmöglichkeiten für den täglichen Bedarf sind auch fußläufig in wenigen Minuten erreichbar. Die Grund- und Mittelschule ist nur wenige hundert Meter vom Haus entfernt.
Durch die Lage an den nahen Seen und in den Bergen ist der Freizeitwert für Sport- und Naturbegeisterte sowohl im Sommer, wie auch im Winter hervorragend. Mountain-Biker beginnen ihre Touren direkt vom Grundstück aus. Die benachbarten Skigebiete Spitzingsee und Sudlfeld sowie ein großes Loipennetz befinden sich in unmittelbarer Nähe. Im Sommer bieten Wanderwege unzählige Möglichkeiten für Wanderer und Radfahrer in allen Schweregraden. Oder man genießt einfach sonnige Stunden am Ufer der mitunter schönsten Badeseen in ganz Deutschland.
Über die sehr gut ausgebaute Infrastruktur ist die Landeshauptstadt München auch mit dem öffentlichen Nahverkehr (Bayerische Regionalbahn BRB) über die nahe Haltestelle Fischbachau-Aurach sehr gut erreichbar. Zur Münchner Innenstadt gelangt man per Auto in ca. einer Stunde über die nahegelegene Autobahn A8. Auch zum Münchener Messegelände und dem Flughafen ist die Verbindung über die A8 und die A99 sehr komfortabel.
In Summe eine optimale Wohn- & Verkehrslage, insbesondere für Familien mit Kindern und berufstätige Pendler.
Anbieter
DALEXIS ImmobilienService GmbH
Herr Florian Bauer
Hirtenweg 6
82031 Grünwald
82031 Grünwald
Ansprechpartner
Michael Kneissl
Hirtenweg 6
82031 Grünwald
82031 Grünwald