Angebot 6699 von 22604

Anbieter kontaktieren

AGB, Datenschutz & Verbraucherhinweis wurden gelesen und akzeptiert.

DALEXIS ImmobilienService GmbH

Michael Kneissl
82031 Grünwald
  • Mehr erfahren
bellevue.de-ID: 30635345

Attraktives Baugrundstück mit Panoramabergblick- Genehmigung zum Bau einer Landhausvilla

  • Grundstück
  • · 1.641 m² Grundstücksfläche
  • · 1.240.000 € Kaufpreis
Anbieter kontaktieren

Objektbeschreibung

In absoluter Premiumlage von Fischbachau-Elbach im oberen Leitzachtal – zwischen Schliersee und Bayrischzell – präsentiert sich dieses real geteilte Baugrundstück als seltene Gelegenheit für anspruchsvolles Wohnen mit beeindruckendem Bergpanorama. Am ...mehr lesen
In absoluter Premiumlage von Fischbachau-Elbach im oberen Leitzachtal – zwischen Schliersee und Bayrischzell – präsentiert sich dieses real geteilte Baugrundstück als seltene Gelegenheit für anspruchsvolles Wohnen mit beeindruckendem Bergpanorama. Am Ortsrand gelegen, eröffnet sich ein „Postkarten-Ausblick“ über freie Wiesen hinweg auf den idyllischen Ort Elbach und die umliegende Bergwelt.

Das Grundstück mit ca. 1.641 m² überzeugt durch seine äußerst sonnige Süd-Ausrichtung sowie angenehme Westsonne bis in die Abendstunden. Die direkte Nachbarschaft zu unverbaubaren Wiesenflächen unterstreicht den außergewöhnlichen Charakter dieses Angebots und schafft ein Höchstmaß an Ruhe, Weite und Privatsphäre – ohne auf eine sehr gute Infrastruktur verzichten zu müssen.

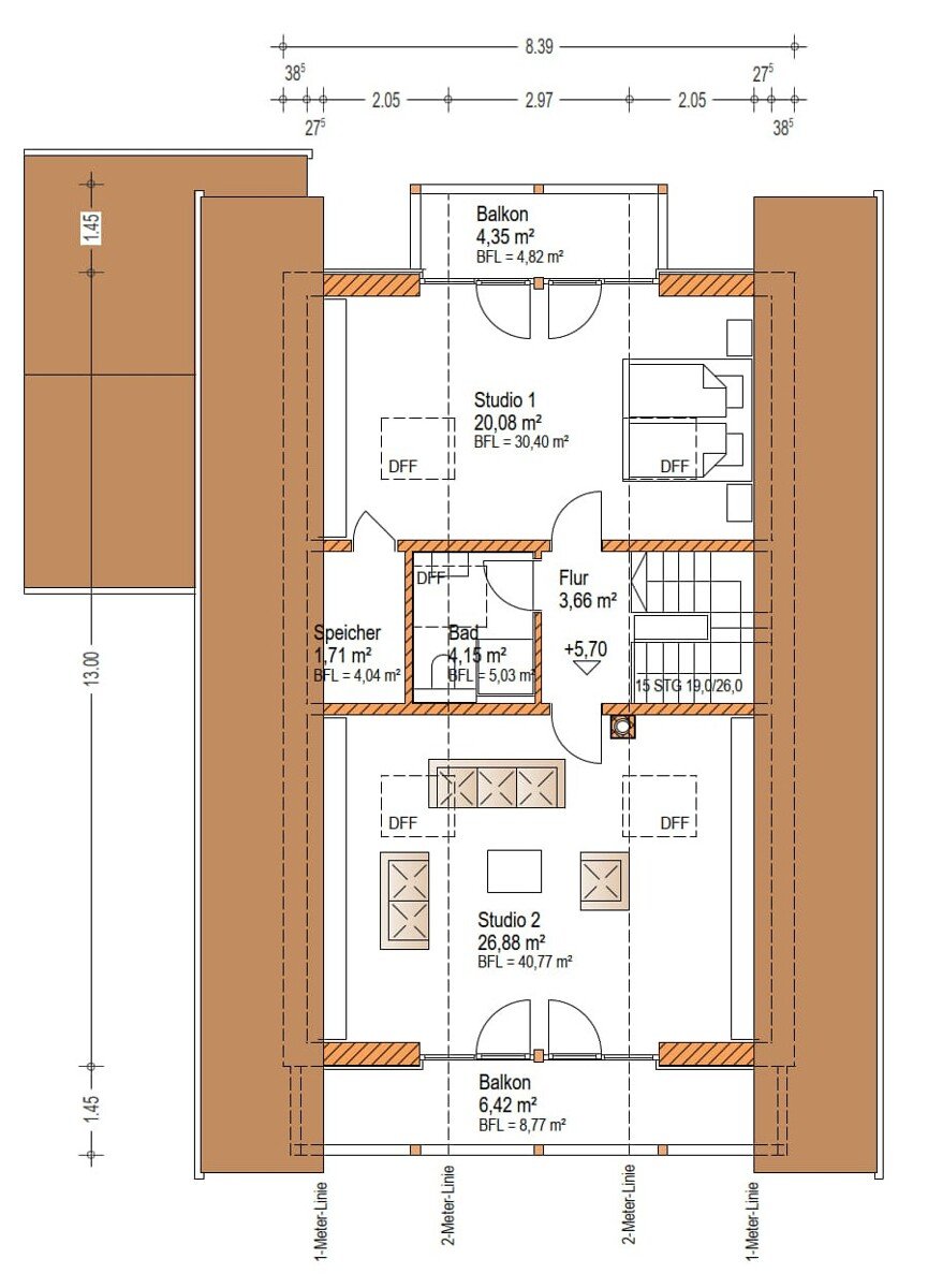
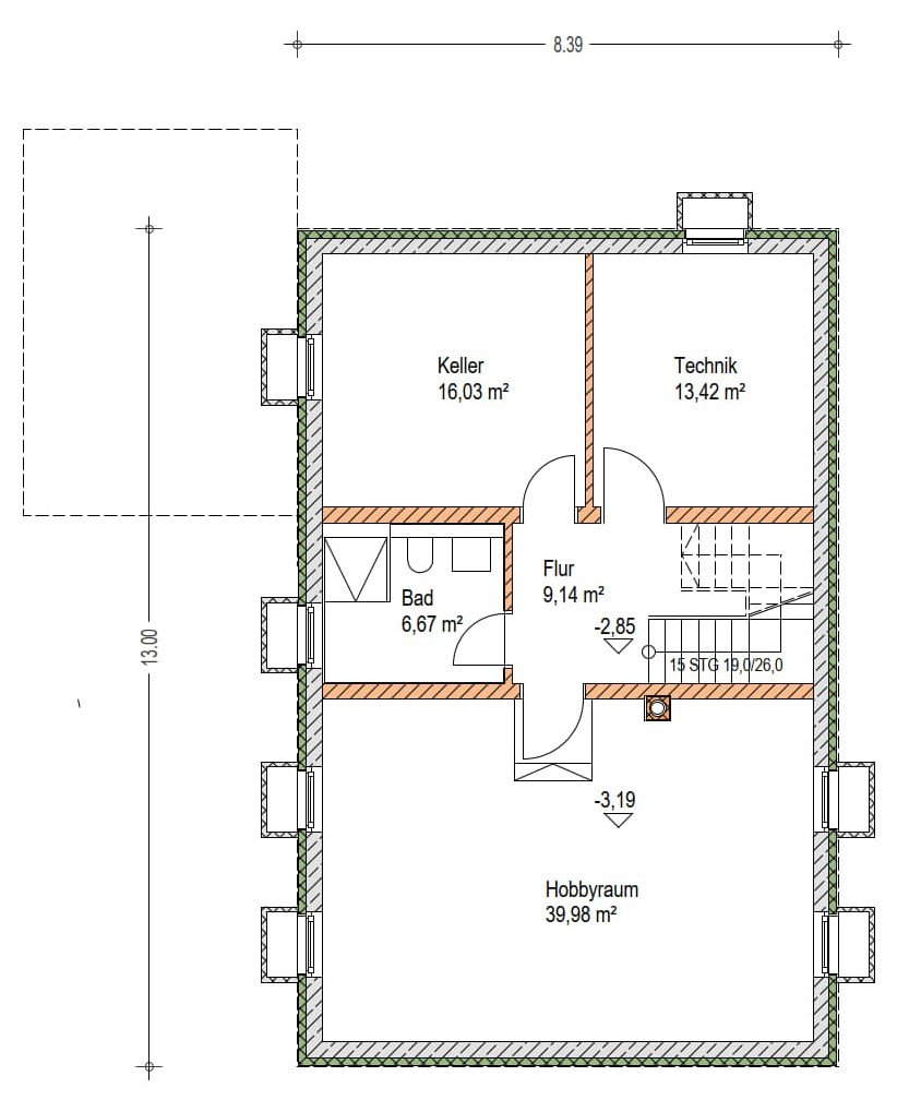
Für das Grundstück liegt bereits eine Genehmigung zum Bau einer Landhausvilla vor. Die genehmigte Wohnfläche beträgt ca. 273 m² (inkl. 1/3 anteiliger Terrasse sowie 1/2 Flur-/Hobbyräume). Ein Dachstudio mit atemberaubendem Weitblick über den Ort in die Berge ist möglich. Zudem bietet das Konzept Wohnraumqualität im Untergeschoss sowie eine sonnige Süd-Terrasse mit großzügigem Südgarten. Der Baubeginn ist sofort möglich. Eine Bindung an ein Bauunternehmen besteht nicht; auf Wunsch können Empfehlungen regionaler Fachbetriebe ausgesprochen werden.

Die Lage ist zugleich ideal für Pendler: Die A8 (Anschlussstelle Irschenberg) erreichen Sie in ca. 10 Fahrminuten, den Bahnhof Fischbachau (BRB) in etwa 4 Fahrminuten. Grund- und Mittelschule sind fußläufig in wenigen Minuten erreichbar – ein weiterer Pluspunkt für Familien.

Der Kaufpreis beträgt 1.240.000,-- € (entspricht ca. 755,-- €/m²).

Optional besteht die Möglichkeit zum Miterwerb angrenzender Flächen: Das benachbarte Grundstück kann mit 2.207 m² bis 4.569 m² hinzuerworben werden. Der Miterwerb eines ehemaligen, denkmalgeschützten Einfirsthofes (Grundstück ca. 1.971 m²) ist möglich. Alternativ kann das Gesamtareal mit insgesamt ca. 8.181 m² erworben werden.

Immobiliendetails

  • Nutzungsart
    Wohnen
  • Objektart
    Wohngrundstück
  • Hauptobjektart
    Grundstück
  • Vertragsart
    Kauf
  • Grundstücksfläche (ca.)
    1.641 m²
  • Dachform
    Satteldach
  • Bauweise
    Massivhaus
  • Erschließung
    Voll erschlossen
  • Anbieter-Objektnummer
    7728

Preise & Kosten

  • Courtage
    Das Angebot ist provisionspflichtig. Mit Abschluss des notariellen Kaufvertrages werden 3,57% inkl. 19% Umsatzsteuer fällig.

    3,57 % inklusive der gesetzlichen Mehrwertsteuer

Energie

  • Gebäudeart
    Wohngebäude

Standort & Lage

Die wichtigsten Entfernungen
- Schulbus nach Miesbach (Gymnasium, Realschule) = ca. 10 km
- Autobahnanschluss A8 (Irschenberg) = ca. 12 km
- Bahnhof Fischbachau (BRB) = ca. 2,9 km
- Innenstadt München = ca. 60 km
- Rosenheim = ca. 24 km
- Schliersee = ca. ...mehr lesen
Die wichtigsten Entfernungen
- Schulbus nach Miesbach (Gymnasium, Realschule) = ca. 10 km
- Autobahnanschluss A8 (Irschenberg) = ca. 12 km
- Bahnhof Fischbachau (BRB) = ca. 2,9 km
- Innenstadt München = ca. 60 km
- Rosenheim = ca. 24 km
- Schliersee = ca. 12 km
- Tegernsee = ca. 18 km
- Chiemsee = ca. 30 km

Das Ihnen von uns exklusiv angebotene Baugrundstück befindet sich in einer wunderschönen Wohngegend mit atemberaubendem Bergpanoramablick am Rande des sehr beliebten Fischbachauer Ortsteils Elbach, am Fuße des Breitensteins.

Die Wendelsteinregion mit dem Leitzachtal, dem Schliersee und seinem Umland zählen zu den schönsten Plätzen in den bayerischen Alpen.

Das Grundstück liegt verkehrsgünstig und die Einkaufsmöglichkeiten für den täglichen Bedarf sind auch fußläufig in wenigen Minuten erreichbar. Die Grund- und Mittelschule ist nur wenige hundert Meter vom Haus entfernt.

Durch die Lage an den nahen Seen und in den Bergen ist der Freizeitwert für Sport- und Naturbegeisterte sowohl im Sommer, wie auch im Winter hervorragend. Mountain-Biker beginnen ihre Touren direkt vom Grundstück aus. Die benachbarten Skigebiete Spitzingsee und Sudlfeld sowie ein großes Loipennetz befinden sich in unmittelbarer Nähe. Im Sommer bieten Wanderwege unzählige Möglichkeiten für Wanderer und Radfahrer in allen Schweregraden. Oder man genießt einfach sonnige Stunden am Ufer der mitunter schönsten Badeseen in ganz Deutschland.

Über die sehr gut ausgebaute Infrastruktur ist die Landeshauptstadt München auch mit dem öffentlichen Nahverkehr (Bayerische Regionalbahn BRB) über die nahe Haltestelle Fischbachau-Aurach sehr gut erreichbar. Zur Münchner Innenstadt gelangt man per Auto in ca. einer Stunde über die nahegelegene Autobahn A8. Auch zum Münchener Messegelände und dem Flughafen ist die Verbindung über die A8 und die A99 sehr komfortabel.

In Summe eine optimale Wohn- & Verkehrslage, insbesondere für Familien mit Kindern und berufstätige Pendler.

83730 Fischbachau / Elbach · DEU

Die genaue Anschrift erfahren Sie vom Anbieter

Anbieter

Logo von DALEXIS ImmobilienService GmbH
2026 Best Property Agents
Verbraucherhinweis

Widerrufsbelehrung des Anbieters

Gilt nicht für Wohnraummiete in Deutschland

Widerrufsrecht für Verbraucher

Sie haben das Recht, binnen vierzehn Tagen ohne Angabe von Gründen diesen Vertrag zu widerrufen. Die Widerrufsfrist beträgt vierzehn Tage ab dem Tag des Vertragsabschlusses.

Um Ihr Widerrufsrecht auszuüben, müssen Sie uns (DALEXIS ImmobilienService GmbH, Grünwalder Strasse 5, 82064 Straßlach, Fax: 089.200067588, Tel: 0800.3253947, fb@dalexis-immobilien.de) mittels einer eindeutigen Erklärung (z. B. ein mit der Post versandter Brief, Telefax oder E-Mail) über Ihren Entschluss, diesen Vertrag zu widerrufen, informieren. Sie können dafür das beigefügte Muster-Widerrufsformular verwenden, das jedoch nicht vorgeschrieben ist. Zur Wahrung der Widerrufsfrist reicht es aus, dass Sie die Mitteilung über die Ausübung des Widerrufsrechts vor Ablauf der Widerrufsfrist absenden.

Folgen des Widerrufs

Wenn Sie diesen Vertrag widerrufen, haben wir Ihnen alle Zahlungen, die wir von Ihnen erhalten haben, einschließlich der Lieferkosten (mit Ausnahme der zusätzlichen Kosten, die sich daraus ergeben, dass Sie eine andere Art der Lieferung als die von uns angebotene, günstigste Standardlieferung gewählt haben), unverzüglich und spätestens binnen vierzehn Tagen ab dem Tag zurückzuzahlen, an dem die Mitteilung über Ihren Widerruf dieses Vertrags bei uns eingegangen ist. Für diese Rückzahlung verwenden wir dasselbe Zahlungsmittel, das Sie bei der ursprünglichen Transaktion eingesetzt haben, es sei denn, mit Ihnen wurde ausdrücklich etwas anderes vereinbart; in keinem Fall werden Ihnen wegen dieser Rückzahlung Entgelte berechnet. Haben Sie verlangt, dass die Dienstleistungen während der Widerrufsfrist beginnen soll, so haben Sie uns einen angemessenen Betrag zu zahlen, der dem Anteil der bis zu dem Zeitpunkt, zu dem Sie uns von der Ausübung des Widerrufsrechts hinsichtlich dieses Vertrags unterrichten, bereits erbrachten Dienstleistungen im Vergleich zum Gesamtumfang der im Vertrag vorgesehenen Dienstleistungen entspricht.

Muster-Widerrufsformular

(Wenn Sie den Vertrag widerrufen wollen, dann füllen Sie dieses Formular aus und senden Sie es zurück.)

An DALEXIS ImmobilienService GmbH, Baierbrunner Strasse 3, 81379 München, Fax: 089.200067588, fb@dalexis-immobilien.de
Hiermit widerrufe(n) ich/wir (*) den von mir/uns (*) abgeschlossenen Vertrag über den Kauf der folgenden Waren (*)/die Erbringung der folgenden Dienstleistung (*)


- Bestellt am (*)/erhalten am (*)

- Name des/der Verbraucher(s)

- Anschrift des/der Verbraucher(s)

- Unterschrift des/der Verbraucher(s) (nur bei Mitteilung auf Papier)
- Datum


(*) Unzutreffendes streichen

Hinweis auf die Möglichkeit eines vorzeitigen Erlöschens des Widerrufsrechts

Ihr Widerrufsrecht erlischt, wenn wir unsere Leistung vollständig erbracht haben und mit der Ausführung der Leistung erst begonnen haben, nachdem Sie Ihre ausdrückliche Zustimmung gegeben haben und gleichzeitig Ihre Kenntnis davon bestätigt haben, dass Sie Ihr Widerrufsrecht bei vollständiger Vertragserfüllung durch uns verlieren.

Impressum DALEXIS ImmobilienService GmbH
VERTRETUNGSBERECHTIGTE/R
Florian Bauer


Grünwalder Strasse 5
82064 Straßlach-Dingharting
DEU
Tel.: 0800.3253947
E-Mail: fb@dalexis-immobilien.de
Fax: 089.200067588
Homepage: http://www.dalexis-immobilien.de

ZUSTÄNDIGE AUFSICHTSBEHÖRDE
LH München / Erlaubnis nach §34c GewO

HANDELSREGISTER-EINTRAG
Handelsregister B des Amtsgerichts München HRB 215897


UST-ID-NUMMER
DE297724273

ZUSÄTZLICHER TEXT
Verbraucherinformationen Online-Streitbeilegung gemäß Art. 14 Abs. 1 ODR-VO: Die Europäische Kommission stellt eine Plattform zur Online-Streitbeilegung (OS) bereit, die Sie hier finden: http://ec.europa.eu/consumers/odr
Anbieter kontaktieren

AGB, Datenschutz & Verbraucherhinweis wurden gelesen und akzeptiert.