Anbieter kontaktieren
DALEXIS ImmobilienService GmbH
Michael Kneissl
82031 Grünwald
- Mehr erfahren
bellevue.de-ID: 30633619
Attraktive Premium-Landhausvilla- Panoramabergblick- 2.207 m² in höher gelegener Ortsrandlage
- Haus
- · 7 Zimmer
- · 273 m² Wohnfläche
- · 2.207 m² Grundstücksfläche
- · 2.780.000 € Kaufpreis
Objektbeschreibung
Premiumsegment:
Attraktive Landhausvilla mit Panoramabergblick
- separater Grundstückserwerb ist möglich
- optionaler Zusatzerwerb des angrenzenden Freizeit- und Wiesengrundstücks
In traumhafter Ortsrandlage von Elbach (Fischbachau), eingebettet zwischen ...mehr lesen
Attraktive Landhausvilla mit Panoramabergblick
- separater Grundstückserwerb ist möglich
- optionaler Zusatzerwerb des angrenzenden Freizeit- und Wiesengrundstücks
In traumhafter Ortsrandlage von Elbach (Fischbachau), eingebettet zwischen ...mehr lesen
Premiumsegment:
Attraktive Landhausvilla mit Panoramabergblick
- separater Grundstückserwerb ist möglich
- optionaler Zusatzerwerb des angrenzenden Freizeit- und Wiesengrundstücks
In traumhafter Ortsrandlage von Elbach (Fischbachau), eingebettet zwischen Schliersee und Bayrischzell, entsteht eine schlüsselfertige Landhausvilla im Premiumsegment. Die sonnige Süd- und Westausrichtung sowie der unverbaubare Blick über Wiesen auf den Ort und die umliegende Bergwelt schaffen ein einzigartiges Wohngefühl.
Das ca. 2.207 m² große Grundstück liegt oberhalb des Ortes und grenzt direkt an freie Natur. Optional kann ein angrenzendes Freizeitgrundstück (ca. 2.362 m²) erworben werden, wodurch sich eine Gesamtfläche von rund 4.569 m² ergibt. Die Fertigstellung ist für Sommer/Herbst 2027 geplant.
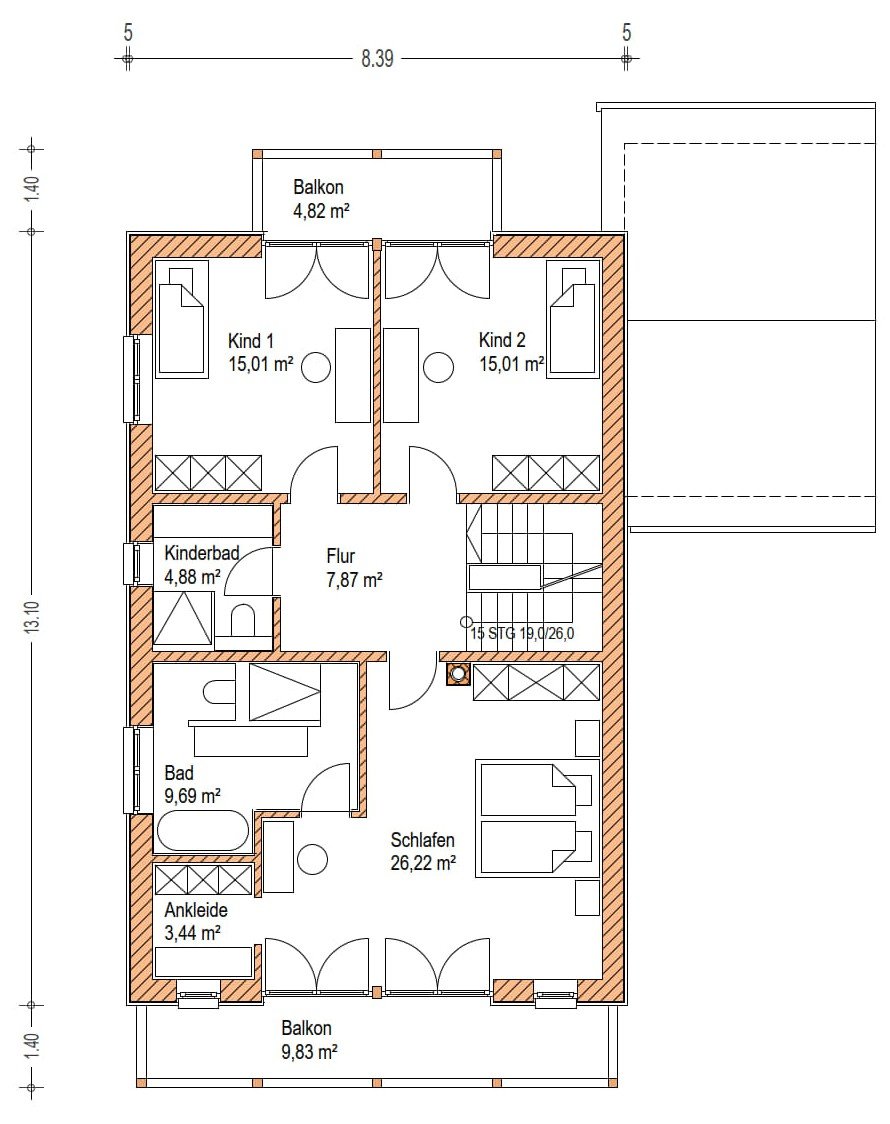
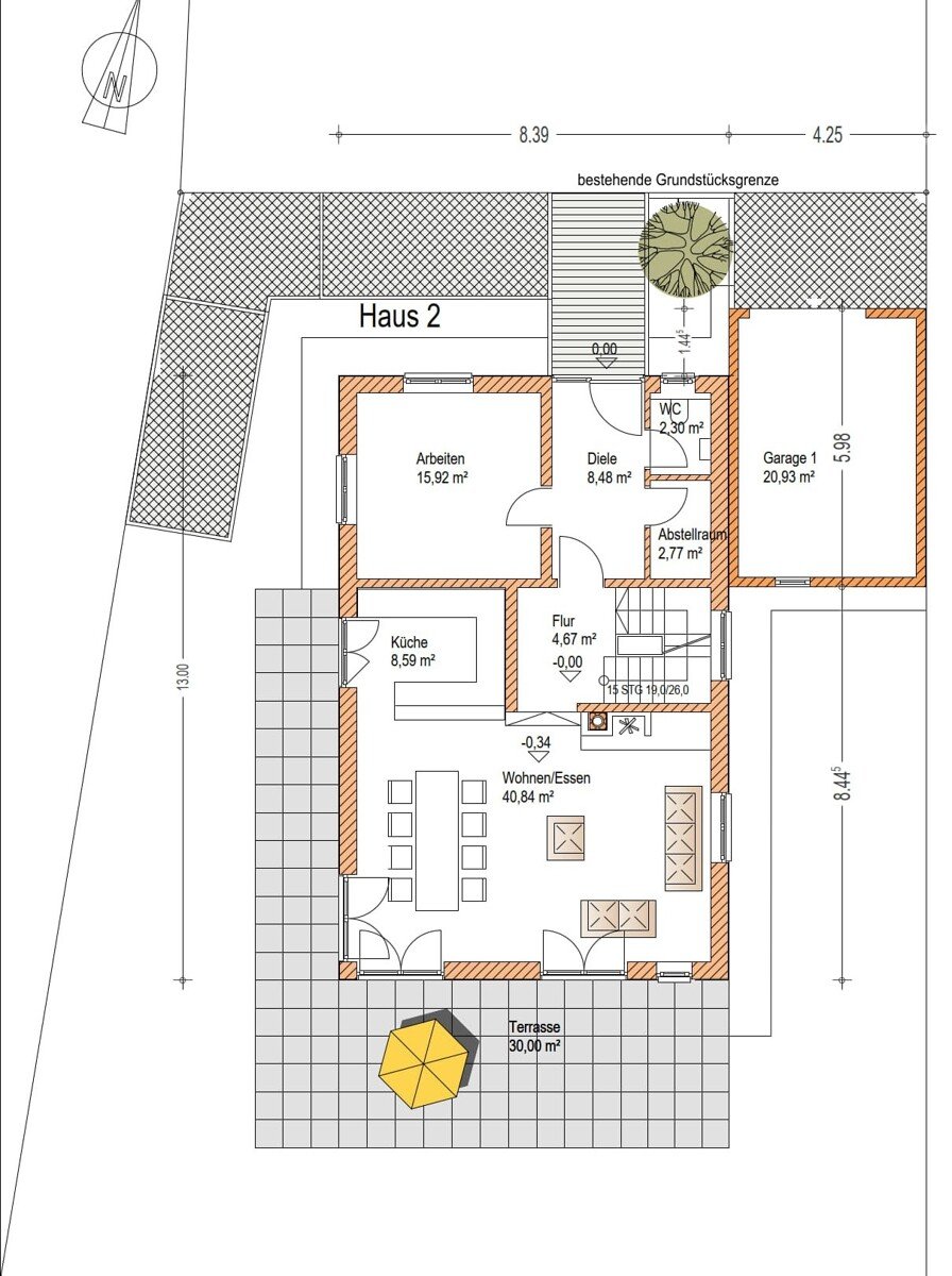
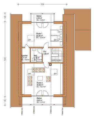
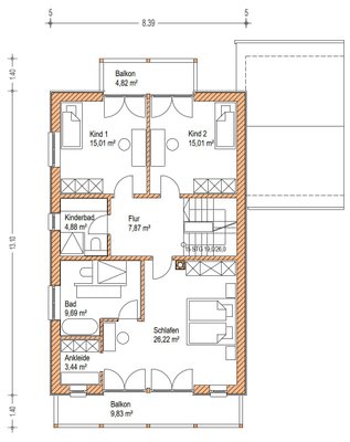
Die Villa wird in hochwertiger Ziegel-Massivbauweise errichtet und bietet auf vier Ebenen ca. 273 m² Wohnfläche. Sieben Zimmer, darunter fünf Schlafzimmer, vier Badezimmer und ein Gäste-WC, bieten viel Platz für Familie, Gäste und Homeoffice. Ein Kamin, großzügige Fensterflächen sowie Terrasse, Balkon und Garten schaffen eine besondere Wohnatmosphäre. Highlight ist das Dachstudio mit beeindruckendem Bergblick.
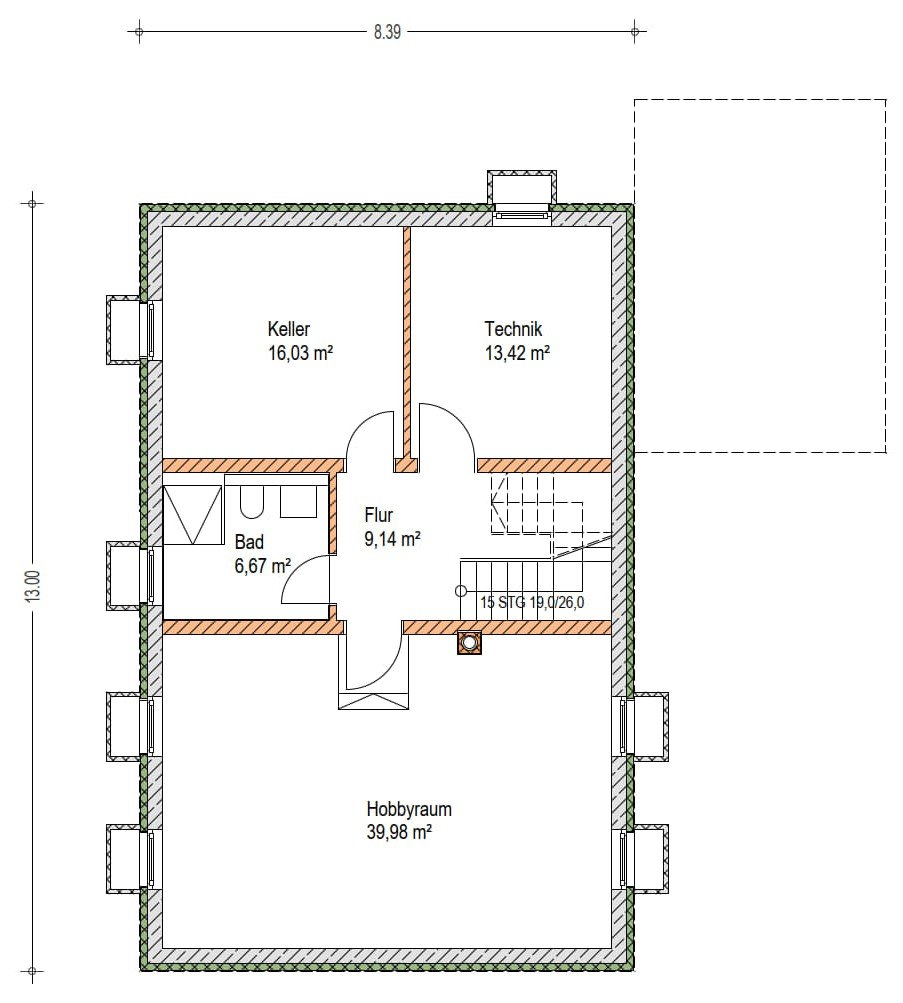
Auch das Untergeschoss überzeugt mit einem großen Hobbyraum und eigenem Bad – ideal für Fitness, Gäste oder Arbeiten. Eine Einzelgarage, zwei Außenstellplätze sowie die Vorbereitung für E-Mobilität runden das Angebot ab.
Moderne Ausstattung wie Fußbodenheizung, Dreifachverglasung, Luft-Wärmepumpe und Photovoltaikanlage mit Speicher sorgen für nachhaltigen Komfort und niedrige Energiekosten.
Für Pendler und Familien ideal: Die A8 (Irschenberg) ist in ca. 10 Minuten erreichbar, der Bahnhof Fischbachau in ca. 4 Minuten. Schulen und Infrastruktur befinden sich in unmittelbarer Nähe.
Der Grundstückserwerb ist auch separat möglich. Es besteht keine Bauverpflichtung; Empfehlungen regionaler Fachbetriebe sind auf Wunsch verfügbar.
Attraktive Landhausvilla mit Panoramabergblick
- separater Grundstückserwerb ist möglich
- optionaler Zusatzerwerb des angrenzenden Freizeit- und Wiesengrundstücks
In traumhafter Ortsrandlage von Elbach (Fischbachau), eingebettet zwischen Schliersee und Bayrischzell, entsteht eine schlüsselfertige Landhausvilla im Premiumsegment. Die sonnige Süd- und Westausrichtung sowie der unverbaubare Blick über Wiesen auf den Ort und die umliegende Bergwelt schaffen ein einzigartiges Wohngefühl.
Das ca. 2.207 m² große Grundstück liegt oberhalb des Ortes und grenzt direkt an freie Natur. Optional kann ein angrenzendes Freizeitgrundstück (ca. 2.362 m²) erworben werden, wodurch sich eine Gesamtfläche von rund 4.569 m² ergibt. Die Fertigstellung ist für Sommer/Herbst 2027 geplant.
Die Villa wird in hochwertiger Ziegel-Massivbauweise errichtet und bietet auf vier Ebenen ca. 273 m² Wohnfläche. Sieben Zimmer, darunter fünf Schlafzimmer, vier Badezimmer und ein Gäste-WC, bieten viel Platz für Familie, Gäste und Homeoffice. Ein Kamin, großzügige Fensterflächen sowie Terrasse, Balkon und Garten schaffen eine besondere Wohnatmosphäre. Highlight ist das Dachstudio mit beeindruckendem Bergblick.
Auch das Untergeschoss überzeugt mit einem großen Hobbyraum und eigenem Bad – ideal für Fitness, Gäste oder Arbeiten. Eine Einzelgarage, zwei Außenstellplätze sowie die Vorbereitung für E-Mobilität runden das Angebot ab.
Moderne Ausstattung wie Fußbodenheizung, Dreifachverglasung, Luft-Wärmepumpe und Photovoltaikanlage mit Speicher sorgen für nachhaltigen Komfort und niedrige Energiekosten.
Für Pendler und Familien ideal: Die A8 (Irschenberg) ist in ca. 10 Minuten erreichbar, der Bahnhof Fischbachau in ca. 4 Minuten. Schulen und Infrastruktur befinden sich in unmittelbarer Nähe.
Der Grundstückserwerb ist auch separat möglich. Es besteht keine Bauverpflichtung; Empfehlungen regionaler Fachbetriebe sind auf Wunsch verfügbar.
Immobiliendetails
-
NutzungsartWohnen
-
ObjektartEinfamilienhaus
-
HauptobjektartHaus
-
VertragsartKauf
-
Baujahr2026
-
Zimmer (gesamt)7
-
Anzahl Schlafzimmer5
-
Anzahl Badezimmer4
-
Anzahl separate WC1
-
Anzahl Parkflächen3
-
Wohnfläche (ca.)273 m²
-
Grundstücksfläche (ca.)2.207 m²
-
Freier Stellplatz2
-
Garagenstellplätze1
-
Anzahl Etagen4
-
DachformSatteldach
-
BauweiseMassivhaus
-
Anbieter-Objektnummer7713
Preise & Kosten
-
CourtageDas Angebot ist provisionspflichtig. Mit Abschluss des notariellen Kaufvertrages werden je 2,38% inkl. 19% Umsatzsteuer fällig.
2,38 % inklusive der gesetzlichen Mehrwertsteuer
Energie
-
HeizungsartFussbodenheizung
-
BefeuerungsartLuft-/Wasserwärme
-
GebäudeartWohngebäude
Ausstattung
- Keller
Fischbachau-Elbach im oberen Leitzachtal zwischen dem Schliersee und Bayrischzell
- Attraktive Wohnlage am Ortsrand mit phantastischem Bergpanoramablick
- "Postkarten-Ausblick" über freie Wiesen auf den idyllischen Ort Elbach
- Äußerst sonnige ...mehr lesen
- Attraktive Wohnlage am Ortsrand mit phantastischem Bergpanoramablick
- "Postkarten-Ausblick" über freie Wiesen auf den idyllischen Ort Elbach
- Äußerst sonnige ...mehr lesen
Fischbachau-Elbach im oberen Leitzachtal zwischen dem Schliersee und Bayrischzell
- Attraktive Wohnlage am Ortsrand mit phantastischem Bergpanoramablick
- "Postkarten-Ausblick" über freie Wiesen auf den idyllischen Ort Elbach
- Äußerst sonnige Süd-Ausrichtung mit Westsonne bis in die Abendstunden
- Verkehrsgünstig gelegen
- A8 Irschenberg in 10 Fahrminuten erreichbar
- Bahnhof Fischbachau (BRB) in ca. 4 Fahrminuten erreichbar
- Grund- und Mittelschule sind fußläufig in wenigen Minuten erreichbar
- Ideal für Pendler nach München
- Sehr gute Infrastruktur in unmittelbarer Nähe
Ankaufsoptionen:
- Variante 1: Grundstücksfläche von 2.207 m²
- Variante 2: Miterwerb des Freizeit- und Wiesengrundstücks von 2. 362 m²
- Gesamtgrundstücksfläche Variante 1 und 2 = 4.569 m² (entspricht ca. 473,-- / m²)
Merkmale:
- Schlüsselfertige Landhausvilla mit attraktiver Ausstattung
- Absolutes Premiumsegment
- Phantastischer Ausblick
- Grundstück grenzt an freie Wiesen oberhalb des Orts Elbach
- Geplante Fertigstellung bis Sommer/Herbst 2027 realisierbar
- Ziegel-Massivbauweise
- Hohe Energieeffizienz
- Real geteiltes Grundstück mit ca. 2.207 m²
- Wohnfläche ca. 273 m² (inklusive 1/3 anteiliger Terrasse und 1/2 Flur/Hobbyräume)
- Dachstudio mit atemberaubendem Ausblick in die Berge über den Ort hinweg
- Wohnraumqualität im Untergeschoss
- Sonnige Süd-Terrasse mit großem Südgarten
Besondere Optionen direkter Grundstückserwerb:
- Separater Erwerb des Grundstücks ist möglich
- Variante 1: Kaufpreis Baugrundstück = 1.780.000,-- (entspricht ca. 806,-- /m²)
- Variante 2: Kaufpreis Freizeit- und Wiesengrundstück = 385.000,--
- Kaufpreis Gesamtgrundstück Variante 1 und 2 = 2.165.000,-- (entspricht ca. 473,--/ m²)
- Keine Bindung an ein Bauunternehmen
- Wir können Empfehlungen von regionalen Unternehmen aussprechen
- Attraktive Wohnlage am Ortsrand mit phantastischem Bergpanoramablick
- "Postkarten-Ausblick" über freie Wiesen auf den idyllischen Ort Elbach
- Äußerst sonnige Süd-Ausrichtung mit Westsonne bis in die Abendstunden
- Verkehrsgünstig gelegen
- A8 Irschenberg in 10 Fahrminuten erreichbar
- Bahnhof Fischbachau (BRB) in ca. 4 Fahrminuten erreichbar
- Grund- und Mittelschule sind fußläufig in wenigen Minuten erreichbar
- Ideal für Pendler nach München
- Sehr gute Infrastruktur in unmittelbarer Nähe
Ankaufsoptionen:
- Variante 1: Grundstücksfläche von 2.207 m²
- Variante 2: Miterwerb des Freizeit- und Wiesengrundstücks von 2. 362 m²
- Gesamtgrundstücksfläche Variante 1 und 2 = 4.569 m² (entspricht ca. 473,-- / m²)
Merkmale:
- Schlüsselfertige Landhausvilla mit attraktiver Ausstattung
- Absolutes Premiumsegment
- Phantastischer Ausblick
- Grundstück grenzt an freie Wiesen oberhalb des Orts Elbach
- Geplante Fertigstellung bis Sommer/Herbst 2027 realisierbar
- Ziegel-Massivbauweise
- Hohe Energieeffizienz
- Real geteiltes Grundstück mit ca. 2.207 m²
- Wohnfläche ca. 273 m² (inklusive 1/3 anteiliger Terrasse und 1/2 Flur/Hobbyräume)
- Dachstudio mit atemberaubendem Ausblick in die Berge über den Ort hinweg
- Wohnraumqualität im Untergeschoss
- Sonnige Süd-Terrasse mit großem Südgarten
Besondere Optionen direkter Grundstückserwerb:
- Separater Erwerb des Grundstücks ist möglich
- Variante 1: Kaufpreis Baugrundstück = 1.780.000,-- (entspricht ca. 806,-- /m²)
- Variante 2: Kaufpreis Freizeit- und Wiesengrundstück = 385.000,--
- Kaufpreis Gesamtgrundstück Variante 1 und 2 = 2.165.000,-- (entspricht ca. 473,--/ m²)
- Keine Bindung an ein Bauunternehmen
- Wir können Empfehlungen von regionalen Unternehmen aussprechen
Standort & Lage
Die wichtigsten Entfernungen
- Schulbus nach Miesbach (Gymnasium, Realschule) = ca. 10 km
- Autobahnanschluss A8 (Irschenberg) = ca. 12 km
- Bahnhof Fischbachau (BRB) = ca. 2,9 km
- Innenstadt München = ca. 60 km
- Rosenheim = ca. 24 km
- Schliersee = ca. ...mehr lesen
- Schulbus nach Miesbach (Gymnasium, Realschule) = ca. 10 km
- Autobahnanschluss A8 (Irschenberg) = ca. 12 km
- Bahnhof Fischbachau (BRB) = ca. 2,9 km
- Innenstadt München = ca. 60 km
- Rosenheim = ca. 24 km
- Schliersee = ca. ...mehr lesen
Die wichtigsten Entfernungen
- Schulbus nach Miesbach (Gymnasium, Realschule) = ca. 10 km
- Autobahnanschluss A8 (Irschenberg) = ca. 12 km
- Bahnhof Fischbachau (BRB) = ca. 2,9 km
- Innenstadt München = ca. 60 km
- Rosenheim = ca. 24 km
- Schliersee = ca. 12 km
- Tegernsee = ca. 18 km
- Chiemsee = ca. 30 km
Die Ihnen von uns exklusiv angebotene Landhausvilla befindet sich in einer wunderschönen Wohngegend mit atemberaubendem Bergpanoramablick am Rande des sehr beliebten Fischbachauer Ortsteils Elbach, am Fuße des Breitensteins.
Die Wendelsteinregion mit dem Leitzachtal, dem Schliersee und seinem Umland zählen zu den schönsten Plätzen in den bayerischen Alpen.
Die Landhausvillenhälfte liegt verkehrsgünstig und die Einkaufsmöglichkeiten für den täglichen Bedarf sind auch fußläufig in wenigen Minuten erreichbar. Die Grund- und Mittelschule ist nur wenige hundert Meter vom Haus entfernt.
Durch die Lage an den nahen Seen und in den Bergen ist der Freizeitwert für Sport- und Naturbegeisterte sowohl im Sommer, wie auch im Winter hervorragend. Mountain-Biker beginnen ihre Touren direkt vom Grundstück aus. Die benachbarten Skigebiete Spitzingsee und Sudlfeld sowie ein großes Loipennetz befinden sich in unmittelbarer Nähe. Im Sommer bieten Wanderwege unzählige Möglichkeiten für Wanderer und Radfahrer in allen Schweregraden. Oder man genießt einfach sonnige Stunden am Ufer der mitunter schönsten Badeseen in ganz Deutschland.
Über die sehr gut ausgebaute Infrastruktur ist die Landeshauptstadt München auch mit dem öffentlichen Nahverkehr (Bayerische Regionalbahn BRB) über die nahe Haltestelle Fischbachau-Aurach sehr gut erreichbar. Zur Münchner Innenstadt gelangt man per Auto in ca. einer Stunde über die nahegelegene Autobahn A8. Auch zum Münchener Messegelände und dem Flughafen ist die Verbindung über die A8 und die A99 sehr komfortabel.
In Summe eine optimale Wohn- & Verkehrslage, insbesondere für Familien mit Kindern und berufstätige Pendler.
- Schulbus nach Miesbach (Gymnasium, Realschule) = ca. 10 km
- Autobahnanschluss A8 (Irschenberg) = ca. 12 km
- Bahnhof Fischbachau (BRB) = ca. 2,9 km
- Innenstadt München = ca. 60 km
- Rosenheim = ca. 24 km
- Schliersee = ca. 12 km
- Tegernsee = ca. 18 km
- Chiemsee = ca. 30 km
Die Ihnen von uns exklusiv angebotene Landhausvilla befindet sich in einer wunderschönen Wohngegend mit atemberaubendem Bergpanoramablick am Rande des sehr beliebten Fischbachauer Ortsteils Elbach, am Fuße des Breitensteins.
Die Wendelsteinregion mit dem Leitzachtal, dem Schliersee und seinem Umland zählen zu den schönsten Plätzen in den bayerischen Alpen.
Die Landhausvillenhälfte liegt verkehrsgünstig und die Einkaufsmöglichkeiten für den täglichen Bedarf sind auch fußläufig in wenigen Minuten erreichbar. Die Grund- und Mittelschule ist nur wenige hundert Meter vom Haus entfernt.
Durch die Lage an den nahen Seen und in den Bergen ist der Freizeitwert für Sport- und Naturbegeisterte sowohl im Sommer, wie auch im Winter hervorragend. Mountain-Biker beginnen ihre Touren direkt vom Grundstück aus. Die benachbarten Skigebiete Spitzingsee und Sudlfeld sowie ein großes Loipennetz befinden sich in unmittelbarer Nähe. Im Sommer bieten Wanderwege unzählige Möglichkeiten für Wanderer und Radfahrer in allen Schweregraden. Oder man genießt einfach sonnige Stunden am Ufer der mitunter schönsten Badeseen in ganz Deutschland.
Über die sehr gut ausgebaute Infrastruktur ist die Landeshauptstadt München auch mit dem öffentlichen Nahverkehr (Bayerische Regionalbahn BRB) über die nahe Haltestelle Fischbachau-Aurach sehr gut erreichbar. Zur Münchner Innenstadt gelangt man per Auto in ca. einer Stunde über die nahegelegene Autobahn A8. Auch zum Münchener Messegelände und dem Flughafen ist die Verbindung über die A8 und die A99 sehr komfortabel.
In Summe eine optimale Wohn- & Verkehrslage, insbesondere für Familien mit Kindern und berufstätige Pendler.
Anbieter
DALEXIS ImmobilienService GmbH
Herr Florian Bauer
Hirtenweg 6
82031 Grünwald
82031 Grünwald
Ansprechpartner
Michael Kneissl
Hirtenweg 6
82031 Grünwald
82031 Grünwald