Angebot 3303 von 19038

Anbieter kontaktieren

AGB, Datenschutz & Verbraucherhinweis wurden gelesen und akzeptiert.

Properstar SA

TEKCE Real Estate
  • Mehr erfahren
bellevue.de-ID: 30632995

Haus zu kaufen in Bektaş Mahallesi, Türkiye

  • Haus
  • · 5 Zimmer
  • · 568 m² Wohnfläche
  • · 3.975.000 € Kaufpreis
Anbieter kontaktieren

Objektbeschreibung

Meerblick-Immobilien mit großzügiger Fläche zum Verkauf in Alanya Bektaş


Bektaş, in Alanya gelegen, ist eine einzigartige Lage, die Besucher mit ihren angenehmen Lebensbedingungen und einem Blick, der den Glanz des Meeres persönlich erleben lässt, ...mehr lesen

Meerblick-Immobilien mit großzügiger Fläche zum Verkauf in Alanya Bektaş


Bektaş, in Alanya gelegen, ist eine einzigartige Lage, die Besucher mit ihren angenehmen Lebensbedingungen und einem Blick, der den Glanz des Meeres persönlich erleben lässt, begeistert. Bektaş ist eine Wohngegend, die die gesamte Stadt zu Ihren Füßen bringt und sich kontinuierlich weiterentwickelt. Dank seiner Nähe zum Zentrum des Bezirks, der neu entwickelten modernen Wohngegend und den gesunden Umweltbedingungen ist Bektaş in den letzten Jahren zu einer der beliebtesten Wohngegenden von Alanya geworden.

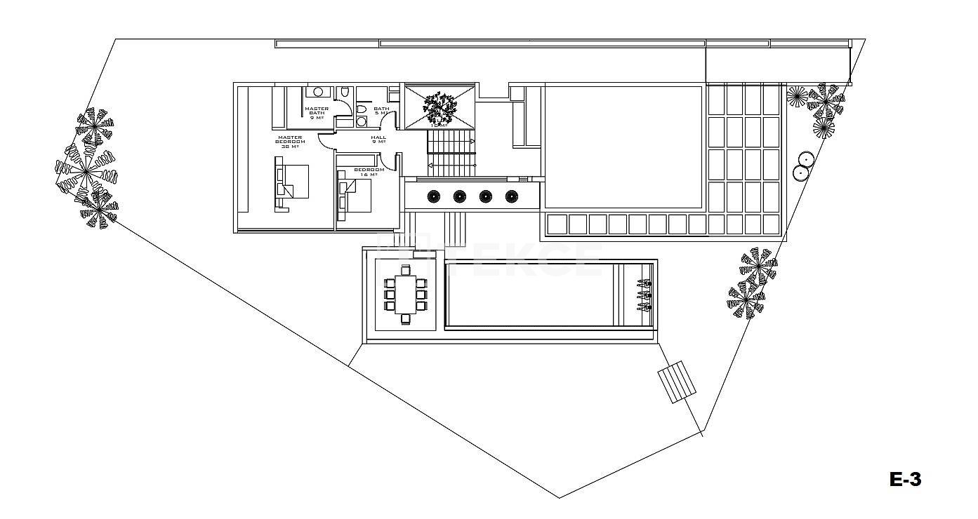
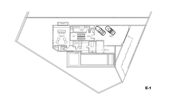
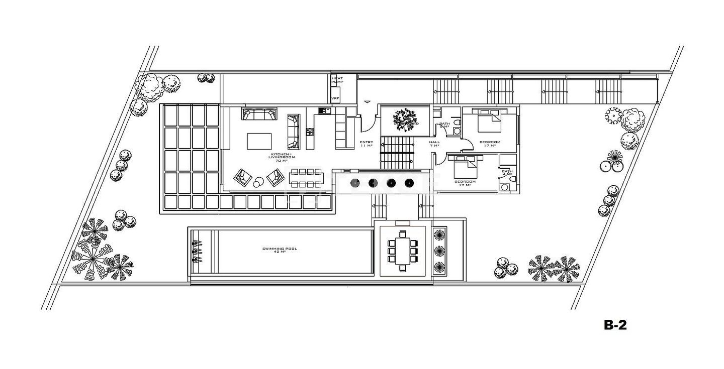
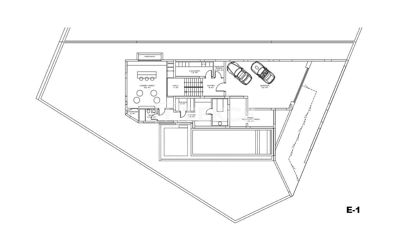
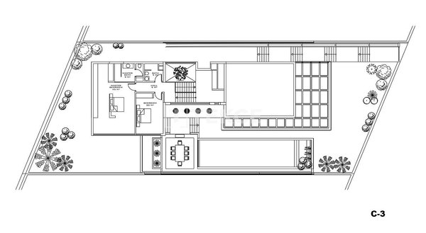
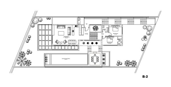
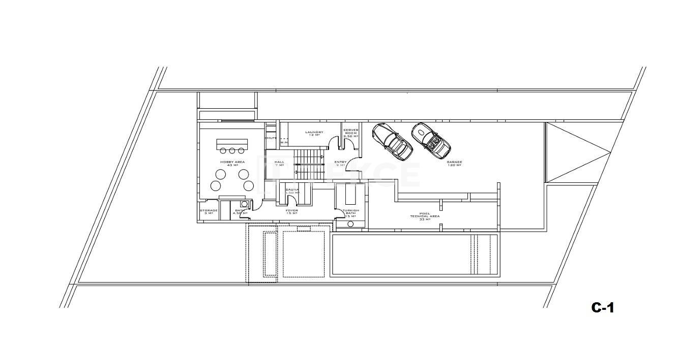
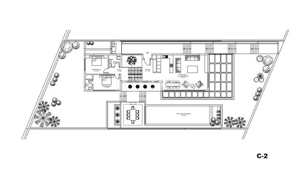
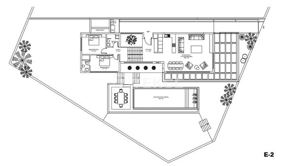
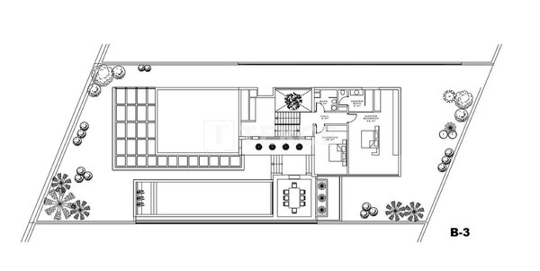
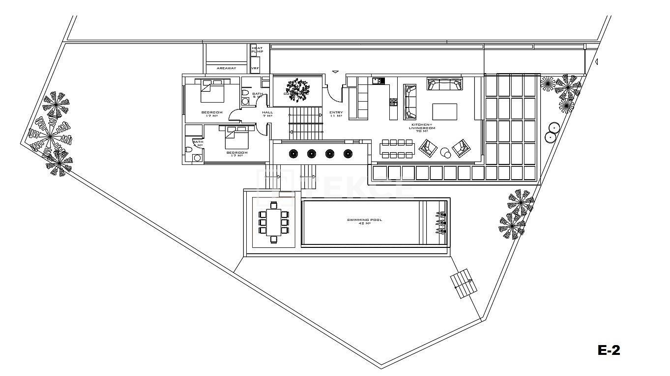
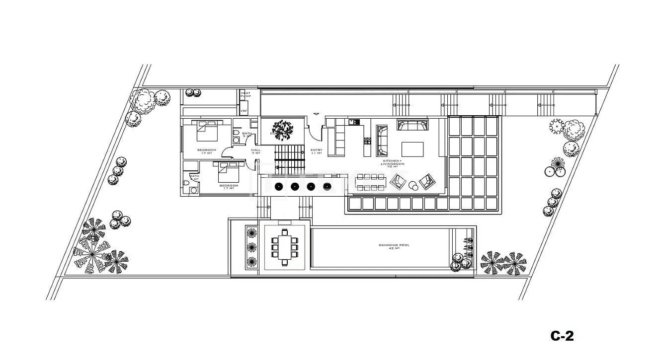
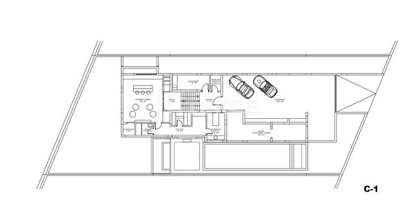
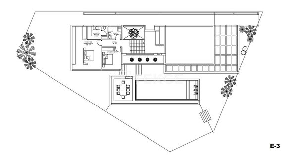
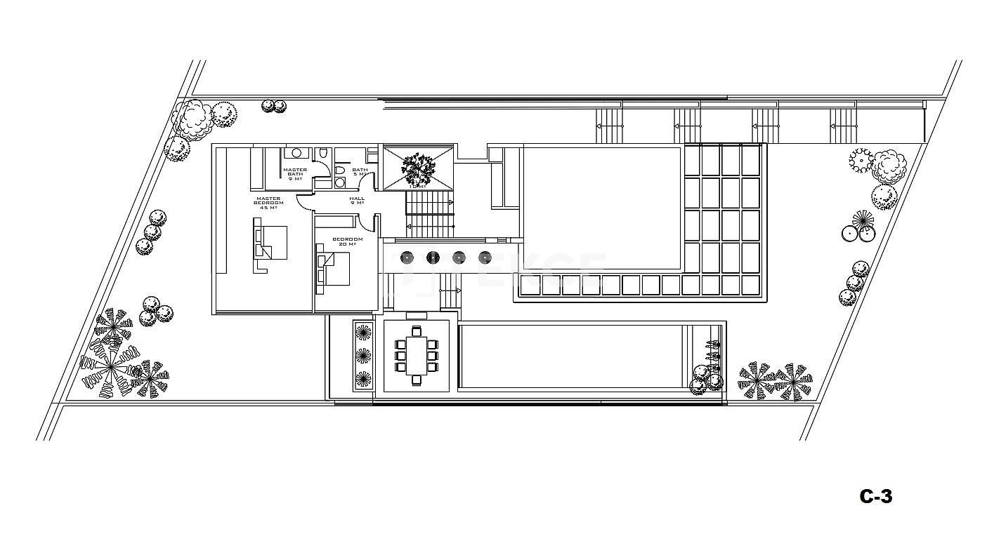
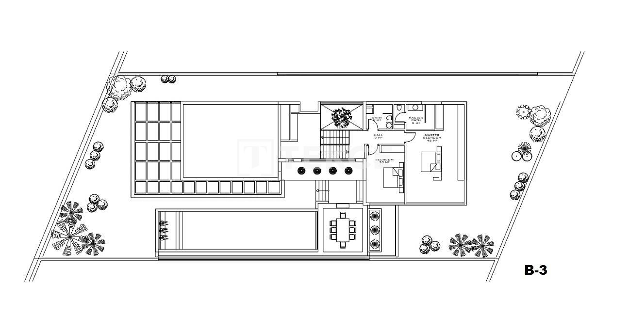
Die Immobilien mit Meerblick sind auf einer Gesamtfläche von 4.134 m² gebaut. Die Immobilien zum Verkauf in Alanya umfassen einen gepflegten abgegrenzten Garten, der mit Zoysia Japonica Gras bedeckt ist, einen Außenpool, einen Grillbereich, Innen- und Außenparkplätze, eine Sauna, einen Aufzug und Sicherheitskameras. Die Immobilien sind behindertenfreundlich und verfügen über ein umweltfreundliches und nachhaltiges architektonisches Design.

Mit 5-Schlafzimmer-Triplex- und 4-Schlafzimmer-Duplex-Optionen sind die Villen im Projekt mit qualitativ hochwertigen Isolationsmaterialien gebaut und mit energieeffizienter Ausstattung ausgestattet. Die Luxusvillen verfügen über eine offene Küche, einen Waschraum, einen Ankleideraum, einen Abstellraum, ein en-suite Badezimmer, eine Badewanne, eine Duschkabine, einen Kamin, ein Smart-Home-System, weiße Ware, eine eingebaute Küchenzeile, eine TV-Satellitenanlage, keramische und marmorne Böden, Fußbodenheizung, Klimaanlage und einen Generator.

AYT-02242

Immobiliendetails

  • Nutzungsart
    Wohnen
  • Objektart
    Einfamilienhaus
  • Hauptobjektart
    Haus
  • Vertragsart
    Kauf
  • Baujahr
    2023
  • Zimmer (gesamt)
    5
  • Anzahl Schlafzimmer
    4
  • Anzahl Badezimmer
    4
  • Wohnfläche (ca.)
    568 m²
  • Gesamtfläche (ca.)
    700 m²
  • Nutzfläche (ca.)
    568 m²
  • Anbieter-Objektnummer
    96140726

Preise & Kosten

  • Courtage
    Keine besondere Angabe.

Ausstattung

  • Sauna
  • Personenaufzug
  • Klimanalage
  • Swimmingpool
  • Kabelanschluss

Standort & Lage

Alanya Bektaş · 07400 Antalya · TUR

Verbraucherhinweis

Widerrufsbelehrung des Anbieters

(Gilt nicht für Wohnraummiete in Deutschland)

Widerrufsrecht für Verbraucher
Sie haben das Recht, binnen vierzehn Tagen ohne Angabe von Gründen diesen Vertrag zu widerrufen. Die Widerrufsfrist beträgt vierzehn Tage ab dem Tag des Vertragsabschlusses.
Um Ihr Widerrufsrecht auszuüben, müssen Sie uns (ListGlobally SA, Rue Mercerie 12, 1003 Lausanne, +49 800 0010536, support@listglobally.com) mittels einer eindeutigen Erklärung (z. B. ein mit der Post versandter Brief, Telefax oder E-Mail) über Ihren Entschluss, diesen Vertrag zu widerrufen, informieren. Sie können dafür das beigefügte Muster-Widerrufsformular verwenden, das jedoch nicht vorgeschrieben ist. Zur Wahrung der Widerrufsfrist reicht es aus, dass Sie die Mitteilung über die Ausübung des Widerrufsrechts vor Ablauf der Widerrufsfrist absenden.

Folgen des Widerrufs
Wenn Sie diesen Vertrag widerrufen, haben wir Ihnen alle Zahlungen, die wir von Ihnen erhalten haben, einschließlich der Lieferkosten (mit Ausnahme der zusätzlichen Kosten, die sich daraus ergeben, dass Sie eine andere Art der Lieferung als die von uns angebotene, günstigste Standardlieferung gewählt haben), unverzüglich und spätestens binnen vierzehn Tagen ab dem Tag zurückzuzahlen, an dem die Mitteilung über Ihren Widerruf dieses Vertrags bei uns eingegangen ist. Für diese Rückzahlung verwenden wir dasselbe Zahlungsmittel, das Sie bei der ursprünglichen Transaktion eingesetzt haben, es sei denn, mit Ihnen wurde ausdrücklich etwas anderes vereinbart; in keinem Fall werden Ihnen wegen dieser Rückzahlung Entgelte berechnet. Haben Sie verlangt, dass die Dienstleistungen während der Widerrufsfrist beginnen soll, so haben Sie uns einen angemessenen Betrag zu zahlen, der dem Anteil der bis zu dem Zeitpunkt, zu dem Sie uns von der Ausübung des Widerrufsrechts hinsichtlich dieses Vertrags unterrichten, bereits erbrachten Dienstleistungen im Vergleich zum Gesamtumfang der im Vertrag vorgesehenen Dienstleistungen entspricht.

Muster-Widerrufsformular
(Wenn Sie den Vertrag widerrufen wollen, dann füllen Sie dieses Formular aus und senden Sie es zurück.)

An ListGlobally SA, Rue Mercerie 12, 1003 Lausanne, +49 800 0010536, support@listglobally.com

Hiermit widerrufe ich/wir den von mir/uns abgeschlossenen Vertrag über den Kauf der folgenden Waren /die Erbringung der folgenden Dienstleistung


Bestellt am /erhalten am

Name des/der Verbraucher(s)

Anschrift des/der Verbraucher(s)

Unterschrift des/der Verbraucher(s) (nur bei Mitteilung auf Papier)

Datum


( Unzutreffendes streichen )


Hinweis auf die Möglichkeit eines vorzeitigen Erlöschens des Widerrufsrechts

Ihr Widerrufsrecht erlischt, wenn wir unsere Leistung vollständig erbracht haben und mit der Ausführung der Leistung erst begonnen haben, nachdem Sie Ihre ausdrückliche Zustimmung gegeben haben und gleichzeitig Ihre Kenntnis davon bestätigt haben, dass Sie Ihr Widerrufsrecht bei vollständiger Vertragserfüllung durch uns verlieren.

Impressum ListGlobally SA
VERTRETUNGSBERECHTIGTE/R
Properstar SA


Rue Mercerie 12
1003 Lausanne
CHE
Tel.: +49 800 0010536
E-Mail: support@listglobally.com
Homepage: https://www.listglobally.com/
Anbieter kontaktieren

AGB, Datenschutz & Verbraucherhinweis wurden gelesen und akzeptiert.