Angebot 3450 von 19006

Anbieter kontaktieren

AGB, Datenschutz & Verbraucherhinweis wurden gelesen und akzeptiert.

Balearic Properties Real Estate S.L.

Bild/Logo: Balearic  Properties
Balearic Properties
07460 Pollença
  • Mehr erfahren
bellevue.de-ID: 30631445

Rustikales Finca-Grundstück mit Baugenehmigung in Moscari, Selva

  • Haus
  • · 21.755 m² Grundstücksfläche
  • · 795.000 € Kaufpreis
Anbieter kontaktieren

Objektbeschreibung

Dieses außergewöhnliche rustikale Grundstück mit ca. 21.000 m² befindet sich in erhöhter Lage im Herzen Mallorcas und bietet fantastische, unverbaubare Panoramablicke bis zum Meer der Nordküste, nach Campanet sowie zum Puig de Santa Magdalena.

Es ...mehr lesen
Dieses außergewöhnliche rustikale Grundstück mit ca. 21.000 m² befindet sich in erhöhter Lage im Herzen Mallorcas und bietet fantastische, unverbaubare Panoramablicke bis zum Meer der Nordküste, nach Campanet sowie zum Puig de Santa Magdalena.

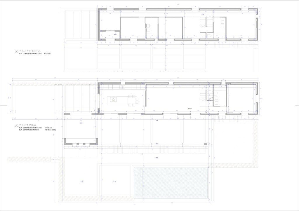
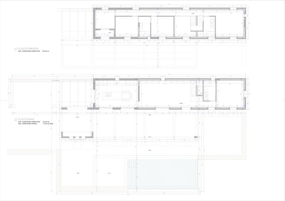
Es liegt eine genehmigte Baulizenz für die Sanierung und Erweiterung eines Einfamilienhauses mit insgesamt 220 m² Wohnfläche sowie einer 40 m² großen Poolanlage vor. Die geplante Aufteilung des Hauses ist modern und zugleich funktional:
Erdgeschoss: Großzügiger Wohn-/Essbereich mit offener Küche, 1 Schlafzimmer und 1 Badezimmer
Obergeschoss: 3 Schlafzimmer, Büro, 2 komplette Badezimmer sowie Hauswirtschaftsraum
Das leicht geneigte Grundstück überzeugt durch seinen besonderen Charme und ist eingebettet in die beeindruckende Landschaft der Serra de Tramuntana (UNESCO-Welterbe). Die Zufahrt erfolgt bequem über eine asphaltierte Straße.
Bestehend sind aktuell eine Garage mit 32 m², ein landwirtschaftliches Nebengebäude mit 27 m² sowie das Bestandsgebäude, welches gemäß Projekt umgebaut und erweitert wird.

Lage & Lebensqualität: Moscari wurde erstmals im Jahr 1230 urkundlich erwähnt und hat sich seinen authentischen, ruhigen Dorfcharakter bewahrt. Kopfsteinpflaster, traditionelle Architektur und ein entschleunigter Lebensrhythmus prägen das Ortsbild.
In wenigen Minuten erreicht man die Autobahn, zahlreiche Einkaufsmöglichkeiten in Inca, Sporteinrichtungen sowie Schulen. Die Inselhauptstadt Palma ist in weniger als 30 Minuten, die Strände von Puerto de Alcudia in etwa 23 Minuten erreichbar. Das Leben im Raiguer vereint zentrale Lage mit absoluter Ruhe. In Moscari scheint die Zeit langsamer zu vergehen – ein Ort der Gelassenheit, Weite und Herzlichkeit. Diese Finca mit Baugenehmigung bietet eine seltene Gelegenheit, ein ganz persönliches Refugium in einer der schönsten Regionen Mallorcas zu verwirklichen.

Immobiliendetails

  • Nutzungsart
    Wohnen
  • Objektart
    Landhaus
  • Hauptobjektart
    Haus
  • Vertragsart
    Kauf
  • Grundstücksfläche (ca.)
    21.755 m²
  • Anbieter-Objektnummer
    MOS52174

Preise & Kosten

  • Courtage
    Keine besondere Angabe.

Standort & Lage

07313 Moscari · Selva · ESP

Die genaue Anschrift erfahren Sie vom Anbieter

Anbieter

Logo von Balearic Properties Real Estate S.L.
2026 Best Property Agents

Ansprechpartner

Verbraucherhinweis

Widerrufsbelehrung des Anbieters

Gilt nicht für Wohnraummiete in Deutschland

Widerrufsrecht für Verbraucher

Sie haben das Recht, binnen vierzehn Tagen ohne Angabe von Gründen diesen Vertrag zu widerrufen. Die Widerrufsfrist beträgt vierzehn Tage ab dem Tag des Vertragsabschlusses.

Um Ihr Widerrufsrecht auszuüben, müssen Sie uns (Balearic Properties Real Estate S.L., Via Pollentia 3, 07460 Pollença, Fax: 0034-971534506, Tel: 0034-971532984, caroline@balearic-properties.com) mittels einer eindeutigen Erklärung (z. B. ein mit der Post versandter Brief, Telefax oder E-Mail) über Ihren Entschluss, diesen Vertrag zu widerrufen, informieren. Sie können dafür das beigefügte Muster-Widerrufsformular verwenden, das jedoch nicht vorgeschrieben ist. Zur Wahrung der Widerrufsfrist reicht es aus, dass Sie die Mitteilung über die Ausübung des Widerrufsrechts vor Ablauf der Widerrufsfrist absenden.

Folgen des Widerrufs

Wenn Sie diesen Vertrag widerrufen, haben wir Ihnen alle Zahlungen, die wir von Ihnen erhalten haben, einschließlich der Lieferkosten (mit Ausnahme der zusätzlichen Kosten, die sich daraus ergeben, dass Sie eine andere Art der Lieferung als die von uns angebotene, günstigste Standardlieferung gewählt haben), unverzüglich und spätestens binnen vierzehn Tagen ab dem Tag zurückzuzahlen, an dem die Mitteilung über Ihren Widerruf dieses Vertrags bei uns eingegangen ist. Für diese Rückzahlung verwenden wir dasselbe Zahlungsmittel, das Sie bei der ursprünglichen Transaktion eingesetzt haben, es sei denn, mit Ihnen wurde ausdrücklich etwas anderes vereinbart; in keinem Fall werden Ihnen wegen dieser Rückzahlung Entgelte berechnet. Haben Sie verlangt, dass die Dienstleistungen während der Widerrufsfrist beginnen soll, so haben Sie uns einen angemessenen Betrag zu zahlen, der dem Anteil der bis zu dem Zeitpunkt, zu dem Sie uns von der Ausübung des Widerrufsrechts hinsichtlich dieses Vertrags unterrichten, bereits erbrachten Dienstleistungen im Vergleich zum Gesamtumfang der im Vertrag vorgesehenen Dienstleistungen entspricht.

Muster-Widerrufsformular

(Wenn Sie den Vertrag widerrufen wollen, dann füllen Sie dieses Formular aus und senden Sie es zurück.)

An Balearic Properties Real Estate S.L., Via Pollentia 3, 07460 Pollença, Fax: 0034-971534506, caroline@balearic-properties.com
Hiermit widerrufe(n) ich/wir (*) den von mir/uns (*) abgeschlossenen Vertrag über den Kauf der folgenden Waren (*)/die Erbringung der folgenden Dienstleistung (*)


- Bestellt am (*)/erhalten am (*)

- Name des/der Verbraucher(s)

- Anschrift des/der Verbraucher(s)

- Unterschrift des/der Verbraucher(s) (nur bei Mitteilung auf Papier)
- Datum


(*) Unzutreffendes streichen

Hinweis auf die Möglichkeit eines vorzeitigen Erlöschens des Widerrufsrechts

Ihr Widerrufsrecht erlischt, wenn wir unsere Leistung vollständig erbracht haben und mit der Ausführung der Leistung erst begonnen haben, nachdem Sie Ihre ausdrückliche Zustimmung gegeben haben und gleichzeitig Ihre Kenntnis davon bestätigt haben, dass Sie Ihr Widerrufsrecht bei vollständiger Vertragserfüllung durch uns verlieren.

Impressum Balearic Properties Real Estate S.L.
VERTRETUNGSBERECHTIGTE/R
Balearic Properties Team


Via Pollentia 3 3
07460 Pollença
ESP
Tel.: 0034-971532984
E-Mail: caroline@balearic-properties.com
Fax: 0034-971534506
Homepage: http://www.balearic-properties.com

ZUSTÄNDIGE AUFSICHTSBEHÖRDE
Amtsgericht Palma de Mallorca

HANDELSREGISTER-EINTRAG
Amtsgericht Palma de Mallorca, Mallorca 3 Mercantil, 1/2006/6.386,0


UST-ID-NUMMER
CIF: B57416752

ZUSÄTZLICHER TEXT
Verbraucherinformationen Online-Streitbeilegung gemäß Art. 14 Abs. 1 ODR-VO: Die Europäische Kommission stellt eine Plattform zur Online-Streitbeilegung (OS) bereit, die Sie hier finden: http://ec.europa.eu/consumers/odr
Anbieter kontaktieren

AGB, Datenschutz & Verbraucherhinweis wurden gelesen und akzeptiert.