Angebot 28 von 17398

Anbieter kontaktieren

AGB, Datenschutz & Verbraucherhinweis wurden gelesen und akzeptiert.

KITZIMMO - Real Estate - OG

Franz Gobec RR Bgm.a.D.
6370 Kitzbühel
  • Mehr erfahren
bellevue.de-ID: 30631137

ZENTRALE NEUBAUWOHNUNGEN - TOP 1

  • Wohnung
  • · 3 Zimmer
  • · 80 m² Wohnfläche
  • · 1.490.000 € Kaufpreis
Anbieter kontaktieren

Objektbeschreibung

5 ZENTRALE NEUBAUWOHNUNGEN - ZEITLOSES DESIGN IM ZENTRUM VON KITZBÜHEL

DATEN
- Wohn- / Nutzfläche 52 m² bis 133 m²
- Schlafzimmer 1 bis 3
- Badezimmer 1 bis 2
- Kaufpreis ab € 990.000,- bis 3.352.000,-
- Energiedaten in Arbeit.

FAKTEN
Fertigstellung Herbst ...mehr lesen
5 ZENTRALE NEUBAUWOHNUNGEN - ZEITLOSES DESIGN IM ZENTRUM VON KITZBÜHEL

DATEN
- Wohn- / Nutzfläche 52 m² bis 133 m²
- Schlafzimmer 1 bis 3
- Badezimmer 1 bis 2
- Kaufpreis ab € 990.000,- bis 3.352.000,-
- Energiedaten in Arbeit.

FAKTEN
Fertigstellung Herbst 2025, Wohnfläche von ca. 52 m² bis 133 m², 1 Schlafzimmer bis 2/3 Schlafzimmer, hochwertige Ausstattung, Raffstore, Erdwärme, Eichenböden, 3-fach-Verglasung, Tiefgarage, zentrale Lage

EINHEITEN
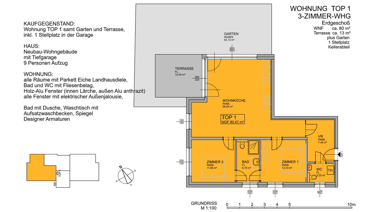
- Top 1 (EG) ca. 80 m² WNF, 2 Schlafzimmer, 1 Badezimmer € 1.490.000,-

- Top 2 (EG) ca. 52 m² WNF, 1 Schlafzimmer, 1 Badezimmer € 990.000,-

- Top 3 (EG) ca. 96 m² WNF, 2 Schlafzimmer, 2 Badezimmer € 1.990.000,-

- Top 4 (1. OG) ca. 134 m² WNF, 3 Schlafzimmer, 2 Badezimmer € 3.352.000,-

- Top 5 (1. OG) ca. 96 m² WNF, 2 Schlafzimmer, 2 Badezimmer € 2.536.000,-

Stellplatz
- Limousine € 40.000,- | Van € 50.000,-

CHARAKTERISTIK
Dieses exklusive Wohnprojekt im Herzen von Kitzbühel vereint modernes Wohnen mit traditionellem Tiroler Stil – eine perfekte Symbiose aus zeitgemäßer Architektur und alpinem Charme.

In zentraler Lage, mitten im pulsierenden Leben der berühmten Gamsstadt, sind alle wichtigen Einrichtungen wie Restaurants, Geschäfte und Freizeiteinrichtungen bequem fußläufig erreichbar.
Genauso wie die weltberühmte Hahnenkammbahn und die Streif. Hier finden Sie Ihr Zuhause im Herzen von Kitzbühel – perfekt für all jene, die urbanes Leben in einer der begehrtesten Alpendestinationen mit alpinem Flair genießen möchten.

Das Projekt umfasst insgesamt fünf hochwertige Wohneinheiten, die in Größen von 52 m² bis 133 m² variieren.

Vom charmanten Erdgeschoss bis hin zum Obergeschoss ist für jeden Geschmack was dabei. Jede Wohnung besticht durch intelligente Grundrisse, die eine optimale Raumnutzung und maximalen Wohnkomfort gewährleisten.

Große Fensterfronten sorgen für lichtdurchflutete Räume und bieten Ausblicke auf die umliegende Bergwelt. Modernste Haustechnik, darunter eine umweltfreundliche Erdwärmeheizung, sorgt für nachhaltiges und energieeffizientes Wohnen.

Eine hauseigene Tiefgarage bietet bequemen Parkraum, während der Tiroler Baustil mit zeitgemäßen Elementen das Gesamtbild dieses Wohnprojekts abrundet.

Immobiliendetails

  • Nutzungsart
    Wohnen
  • Objektart
    Erdgeschosswohnung
  • Hauptobjektart
    Wohnung
  • Vertragsart
    Kauf
  • Objektzustand
    Erstbezug
  • Baujahr
    2025
  • Zimmer (gesamt)
    3
  • Anzahl Schlafzimmer
    2
  • Anzahl Badezimmer
    1
  • Anzahl separate WC
    1
  • Anzahl Parkflächen
    2
  • Wohnfläche (ca.)
    80 m²
  • Küche
    Einbauküche (EBK)
  • Kellerfläche (ca.)
    5 m²
  • Balkon/Terrasse (ca.)
    12,93 m²
  • Gartenfläche (ca.)
    53,13 m²
  • Bad
    Duschbad, Bad mit Fenster
  • Tiefgaragenstellplätze
    2
  • Anzahl Etagen
    4
  • Ausrichtung
    Nord, Ost, West
  • Ausstattungskategorie
    Luxus
  • Fußboden
    Fliesen, Stein, Holz/Dielen
  • Verfügbarkeit
    ab sofort
  • Anbieter-Objektnummer
    MG-0002448_1

Preise & Kosten

  • Courtage
    3,0 %

Energie

  • Heizungsart
    Fussbodenheizung
  • Befeuerungsart
    Erdwärme
  • Gebäudeart
    Wohngebäude

Standort & Lage

6370 Kitzbühel · Tirol · AUT

Die genaue Anschrift erfahren Sie vom Anbieter

Anbieter

Logo von KITZIMMO - Real Estate - OG
2026 Best Property Agents

Ansprechpartner

Verbraucherhinweis

Widerrufsbelehrung des Anbieters

(Gilt nicht für Wohnraummiete in Deutschland)

Widerrufsrecht für Verbraucher
Sie haben das Recht, binnen vierzehn Tagen ohne Angabe von Gründen diesen Vertrag zu widerrufen. Die Widerrufsfrist beträgt vierzehn Tage ab dem Tag des Vertragsabschlusses.
Um Ihr Widerrufsrecht auszuüben, müssen Sie uns (KITZIMMO - Real Estate - OG, Im Gries 27, 6370 Kitzbühel, 0043-676-7047120, 0043-5356-67677, office@kitzimmo.at) mittels einer eindeutigen Erklärung (z. B. ein mit der Post versandter Brief, Telefax oder E-Mail) über Ihren Entschluss, diesen Vertrag zu widerrufen, informieren. Sie können dafür das beigefügte Muster-Widerrufsformular verwenden, das jedoch nicht vorgeschrieben ist. Zur Wahrung der Widerrufsfrist reicht es aus, dass Sie die Mitteilung über die Ausübung des Widerrufsrechts vor Ablauf der Widerrufsfrist absenden.

Folgen des Widerrufs
Wenn Sie diesen Vertrag widerrufen, haben wir Ihnen alle Zahlungen, die wir von Ihnen erhalten haben, einschließlich der Lieferkosten (mit Ausnahme der zusätzlichen Kosten, die sich daraus ergeben, dass Sie eine andere Art der Lieferung als die von uns angebotene, günstigste Standardlieferung gewählt haben), unverzüglich und spätestens binnen vierzehn Tagen ab dem Tag zurückzuzahlen, an dem die Mitteilung über Ihren Widerruf dieses Vertrags bei uns eingegangen ist. Für diese Rückzahlung verwenden wir dasselbe Zahlungsmittel, das Sie bei der ursprünglichen Transaktion eingesetzt haben, es sei denn, mit Ihnen wurde ausdrücklich etwas anderes vereinbart; in keinem Fall werden Ihnen wegen dieser Rückzahlung Entgelte berechnet. Haben Sie verlangt, dass die Dienstleistungen während der Widerrufsfrist beginnen soll, so haben Sie uns einen angemessenen Betrag zu zahlen, der dem Anteil der bis zu dem Zeitpunkt, zu dem Sie uns von der Ausübung des Widerrufsrechts hinsichtlich dieses Vertrags unterrichten, bereits erbrachten Dienstleistungen im Vergleich zum Gesamtumfang der im Vertrag vorgesehenen Dienstleistungen entspricht.

Muster-Widerrufsformular
(Wenn Sie den Vertrag widerrufen wollen, dann füllen Sie dieses Formular aus und senden Sie es zurück.)

An KITZIMMO - Real Estate - OG, Im Gries 27, 6370 Kitzbühel, 0043-676-7047120, 0043-5356-67677, office@kitzimmo.at

Hiermit widerrufe ich/wir den von mir/uns abgeschlossenen Vertrag über den Kauf der folgenden Waren /die Erbringung der folgenden Dienstleistung


Bestellt am /erhalten am

Name des/der Verbraucher(s)

Anschrift des/der Verbraucher(s)

Unterschrift des/der Verbraucher(s) (nur bei Mitteilung auf Papier)

Datum


( Unzutreffendes streichen )


Hinweis auf die Möglichkeit eines vorzeitigen Erlöschens des Widerrufsrechts

Ihr Widerrufsrecht erlischt, wenn wir unsere Leistung vollständig erbracht haben und mit der Ausführung der Leistung erst begonnen haben, nachdem Sie Ihre ausdrückliche Zustimmung gegeben haben und gleichzeitig Ihre Kenntnis davon bestätigt haben, dass Sie Ihr Widerrufsrecht bei vollständiger Vertragserfüllung durch uns verlieren.

Impressum KITZIMMO - Real Estate - OG
VERTRETUNGSBERECHTIGTE/R
Franz Gobec RR Bgm.a.D.


Im Gries 27
6370 Kitzbühel
AUT
Tel.: 0043-676-7047120
E-Mail: office@kitzimmo.at
Fax: 0043-5356-67677
Homepage: https://www.kitzimmo.at/

ZUSTÄNDIGE AUFSICHTSBEHÖRDE
Bezirkshauptmannschaft Kitzbühel

UST-ID-NUMMER
ATU76179109

ZUSÄTZLICHER TEXT
staatl. gepr. und konzess. Immobilientreuhänder, Immobilienmakler, Immobilienverwalter und Bauträger, Mitglied des Ehrenschiedsgerichtes Tirol
Anbieter kontaktieren

AGB, Datenschutz & Verbraucherhinweis wurden gelesen und akzeptiert.