Angebot 3733 von 19053

Anbieter kontaktieren

AGB, Datenschutz & Verbraucherhinweis wurden gelesen und akzeptiert.

Mayer & Dau Immobilien Mallorca S.L.

Anika Schubert
07400 Alcúdia
  • Mehr erfahren
bellevue.de-ID: 30630953

Exklusives Baugrundstück mit genehmigtem Projekt in Toplage, 10 min. vom Strand in Can Picafort entfernt / Obj. 8856

  • Grundstück
  • · 14.500 m² Grundstücksfläche
  • · 259.000 € Kaufpreis
Anbieter kontaktieren

Objektbeschreibung

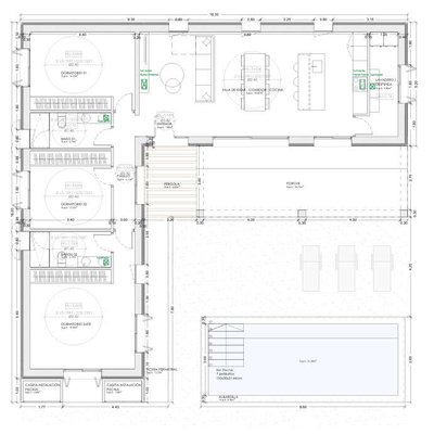
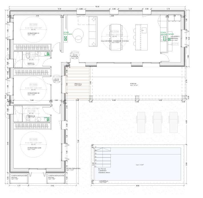
In herrlich ruhiger Lage erwartet Sie dieses großzügige Grundstück inklusive genehmigtem Bauprojekt – eine perfekte Gelegenheit, Ihren ganz persönlichen Rückzugsort zu verwirklichen.

Geplant ist ein modernes, lichtdurchflutetes Zuhause mit 3 ...mehr lesen
In herrlich ruhiger Lage erwartet Sie dieses großzügige Grundstück inklusive genehmigtem Bauprojekt – eine perfekte Gelegenheit, Ihren ganz persönlichen Rückzugsort zu verwirklichen.

Geplant ist ein modernes, lichtdurchflutetes Zuhause mit 3 Schlafzimmern, darunter ein Master-Schlafzimmer mit eigenem Bad, ein offener Wohn- und Essbereich mit integrierter Küche, eine großzügige Terrasse für entspannte Stunden im Freien sowie ein einladender Pool mit 26 m² – ideal zum Abkühlen an warmen Sommertagen.

Ein ideales Projekt für alle, die das authentische Insel leben in naturnaher Umgebung suchen – und dennoch nahe zu den schönsten Stränden und charmanten Dörfern wohnen möchten.

Im Kaufpreis enthalten ist eine bereits ausgestellte Genehmigung zur eigenen Brunnenbohrung – ein zusätzlicher Vorteil für mehr Unabhängigkeit und Komfort.

Haben Sie Fragen oder wünschen weitere Informationen?
Ihre Ansprechpartnerin: Anika Schubert - Tlf: +34 611 14 48 99.

Wir freuen uns darauf, Sie auf dem Weg zu Ihrem neuen Zuhause zu begleiten!

Immobiliendetails

  • Nutzungsart
    Wohnen
  • Objektart
    Land- und Forstwirtschaft
  • Hauptobjektart
    Grundstück
  • Vertragsart
    Kauf
  • Grundstücksfläche (ca.)
    14.500 m²
  • Anbieter-Objektnummer
    8856

Preise & Kosten

  • Courtage
    Keine besondere Angabe.

Energie

  • Gebäudeart
    Wohngebäude

Standort & Lage

Can Picafort, an der malerischen Nordküste Mallorcas gelegen, ist ein Ort, der modernes Leben, mediterranen Charme und eine hervorragende Infrastruktur perfekt vereint. Wer hier eine Immobilie erwirbt, profitiert nicht nur von der direkten Nähe zum ...mehr lesen
Can Picafort, an der malerischen Nordküste Mallorcas gelegen, ist ein Ort, der modernes Leben, mediterranen Charme und eine hervorragende Infrastruktur perfekt vereint. Wer hier eine Immobilie erwirbt, profitiert nicht nur von der direkten Nähe zum Meer, sondern auch von einer ausgezeichneten Anbindung an alle wichtigen Einrichtungen des täglichen Lebens. Der Ort bietet eine Vielzahl an Supermärkten, Geschäften, Restaurants und Bars, die sowohl Einheimische als auch Besucher ansprechen. Die medizinische Versorgung ist erstklassig, mit einem modernen Gesundheitszentrum direkt im Ort sowie dem nahegelegenen privaten Krankenhaus in Playa de Muro, das eine erstklassige medizinische Betreuung gewährleistet. Apotheken, Fachärzte und weitere Gesundheitsdienstleistungen sind ebenfalls problemlos erreichbar. Familien mit Kindern finden hier ideale Bedingungen, denn es gibt mehrere Kindergärten und Schulen, darunter die Schule von Can Picafort, die eine gute Ausbildung in einer freundlichen Umgebung bietet. Internationale Schulen sind mit einer kurzen Autofahrt zu erreichen. Sportbegeisterte kommen in Can Picafort voll auf ihre Kosten. Der Ort liegt in unmittelbarer Nähe zu erstklassigen Golfplätzen wie dem Golfclub Alcanada, der nicht nur mit seinen herausragenden Spielbedingungen, sondern auch mit einem spektakulären Meerblick beeindruckt. Wassersportler genießen das breite Angebot an Aktivitäten wie Segeln, Windsurfen oder Tauchen, während Naturliebhaber im nahegelegenen Naturpark S’Albufera ideale Bedingungen für Spaziergänge und Radtouren finden. Der Plaza de Muro ist ein lebendiger Treffpunkt mit traditionellen Märkten, gemütlichen Cafés und kulturellen Veranstaltungen, die das authentische Flair der Insel vermitteln. Dank der ruhigen und dennoch zentralen Lage ist Can Picafort ein perfekter Ausgangspunkt, um die gesamte Insel zu erkunden. Ob als ganzjähriger Wohnsitz oder als Ferienimmobilie – Can Picafort bietet eine hohe Lebensqualität.

07450 Santa Margalida · Mallorca · Balearische_Inseln · ESP

Die genaue Anschrift erfahren Sie vom Anbieter

Anbieter

Logo von Mayer & Dau Immobilien Mallorca S.L.

Mayer & Dau Immobilien Mallorca S.L.

Herr Benjamin Dau
Carrer d'Elionor Servera 77
07590 Cala Ratjada
2026 Best Property Agents

Ansprechpartner

Anika Schubert

Avinguda Príncep d’Espanya 2a
07400 Alcúdia
Verbraucherhinweis

Widerrufsbelehrung des Anbieters

(Gilt nicht für Wohnraummiete in Deutschland)

Widerrufsrecht für Verbraucher
Sie haben das Recht, binnen vierzehn Tagen ohne Angabe von Gründen diesen Vertrag zu widerrufen. Die Widerrufsfrist beträgt vierzehn Tage ab dem Tag des Vertragsabschlusses.
Um Ihr Widerrufsrecht auszuüben, müssen Sie uns (Mayer & Dau Immobilien GmbH, Am Hogen Hagen 31, 26160 Bad Zwischenahn, 04403 3099, 04403 937429, info@mayer-dau.de) mittels einer eindeutigen Erklärung (z. B. ein mit der Post versandter Brief, Telefax oder E-Mail) über Ihren Entschluss, diesen Vertrag zu widerrufen, informieren. Sie können dafür das beigefügte Muster-Widerrufsformular verwenden, das jedoch nicht vorgeschrieben ist. Zur Wahrung der Widerrufsfrist reicht es aus, dass Sie die Mitteilung über die Ausübung des Widerrufsrechts vor Ablauf der Widerrufsfrist absenden.

Folgen des Widerrufs
Wenn Sie diesen Vertrag widerrufen, haben wir Ihnen alle Zahlungen, die wir von Ihnen erhalten haben, einschließlich der Lieferkosten (mit Ausnahme der zusätzlichen Kosten, die sich daraus ergeben, dass Sie eine andere Art der Lieferung als die von uns angebotene, günstigste Standardlieferung gewählt haben), unverzüglich und spätestens binnen vierzehn Tagen ab dem Tag zurückzuzahlen, an dem die Mitteilung über Ihren Widerruf dieses Vertrags bei uns eingegangen ist. Für diese Rückzahlung verwenden wir dasselbe Zahlungsmittel, das Sie bei der ursprünglichen Transaktion eingesetzt haben, es sei denn, mit Ihnen wurde ausdrücklich etwas anderes vereinbart; in keinem Fall werden Ihnen wegen dieser Rückzahlung Entgelte berechnet. Haben Sie verlangt, dass die Dienstleistungen während der Widerrufsfrist beginnen soll, so haben Sie uns einen angemessenen Betrag zu zahlen, der dem Anteil der bis zu dem Zeitpunkt, zu dem Sie uns von der Ausübung des Widerrufsrechts hinsichtlich dieses Vertrags unterrichten, bereits erbrachten Dienstleistungen im Vergleich zum Gesamtumfang der im Vertrag vorgesehenen Dienstleistungen entspricht.

Muster-Widerrufsformular
(Wenn Sie den Vertrag widerrufen wollen, dann füllen Sie dieses Formular aus und senden Sie es zurück.)

An Mayer & Dau Immobilien GmbH, Am Hogen Hagen 31, 26160 Bad Zwischenahn, 04403 3099, 04403 937429, info@mayer-dau.de

Hiermit widerrufe ich/wir den von mir/uns abgeschlossenen Vertrag über den Kauf der folgenden Waren /die Erbringung der folgenden Dienstleistung


Bestellt am /erhalten am

Name des/der Verbraucher(s)

Anschrift des/der Verbraucher(s)

Unterschrift des/der Verbraucher(s) (nur bei Mitteilung auf Papier)

Datum


( Unzutreffendes streichen )


Hinweis auf die Möglichkeit eines vorzeitigen Erlöschens des Widerrufsrechts

Ihr Widerrufsrecht erlischt, wenn wir unsere Leistung vollständig erbracht haben und mit der Ausführung der Leistung erst begonnen haben, nachdem Sie Ihre ausdrückliche Zustimmung gegeben haben und gleichzeitig Ihre Kenntnis davon bestätigt haben, dass Sie Ihr Widerrufsrecht bei vollständiger Vertragserfüllung durch uns verlieren.

Impressum Mayer & Dau Immobilien GmbH
VERTRETUNGSBERECHTIGTE/R
Benjamin Dau


Am Hogen Hagen 31
26160 Bad Zwischenahn
DEU
Tel.: 04403 3099
E-Mail: info@mayer-dau.de
Fax: 04403 937429
Homepage: www.mayer-dau.de

ZUSTÄNDIGE AUFSICHTSBEHÖRDE
Oldenburgische Industrie- und Handelskammer, Moslestraße 6, 26122 Oldenburg, DEU

HANDELSREGISTER-EINTRAG
HRB 203067
Amtsgericht Oldenburg

UST-ID-NUMMER
DE263564717
Anbieter kontaktieren

AGB, Datenschutz & Verbraucherhinweis wurden gelesen und akzeptiert.