Angebot 3893 von 19036

Anbieter kontaktieren

AGB, Datenschutz & Verbraucherhinweis wurden gelesen und akzeptiert.

Green-acres

Green-Acres
  • Mehr erfahren
bellevue.de-ID: 30630357

T5-Wohnung im Premier Private Villa Resort in Faro

  • Haus
  • · 572 m² Wohnfläche
  • · 1.001 m² Grundstücksfläche
  • · 3.600.000 € Kaufpreis
Anbieter kontaktieren

Objektbeschreibung

Dieses atemberaubende T5-Haus befindet sich in einem exklusiven privaten Resort in Faro und erstreckt sich über 5 Hektar umzäuntes Gelände mit spektakulärer südöstlicher Aussicht auf die Formosa Lagune. Mit geräumigen Innenräumen, hochwertiger ...mehr lesen
Dieses atemberaubende T5-Haus befindet sich in einem exklusiven privaten Resort in Faro und erstreckt sich über 5 Hektar umzäuntes Gelände mit spektakulärer südöstlicher Aussicht auf die Formosa Lagune. Mit geräumigen Innenräumen, hochwertiger Verarbeitung und außergewöhnlichen Annehmlichkeiten bietet dieses Haus die perfekte Kombination aus Privatsphäre, modernem Komfort und natürlicher Schönheit – nur wenige Minuten vom Zentrum Faro und den atemberaubenden Stränden des Alentejo-/Algarve-Gebiets entfernt.

Erdgeschoss – Freizeit- und Aufenthaltsbereiche großzügig angelegt
Das Erdgeschoss ist so gestaltet, dass es Komfort und Funktionalität bietet, mit:
- Großzügigen offenen Wohn- und Essbereichen, Glasfronten, die sich zum Außen-Terrasse öffnen
- Voll ausgestatteter Küche mit Premium-Geräten von Samsung, LG oder Bosch
- 2 geräumige Suiten mit integrierten Kleiderschränken und Zugang nach außen
- Direkter Zugang zum Garten, privatem Pool und Terrasse – ideal zum Entspannen im Freien

Obergeschoss – Privates Haupt-Suite-Bereich mit Panoramablick
Das Obergeschoss ist der luxuriösen Suite gewidmet, einschließlich:
- 2 großzügige en-suite Schlafzimmer
- Privater Balkon mit atemberaubenden Ausblicken auf die Formosa Lagune und die umliegende Landschaft

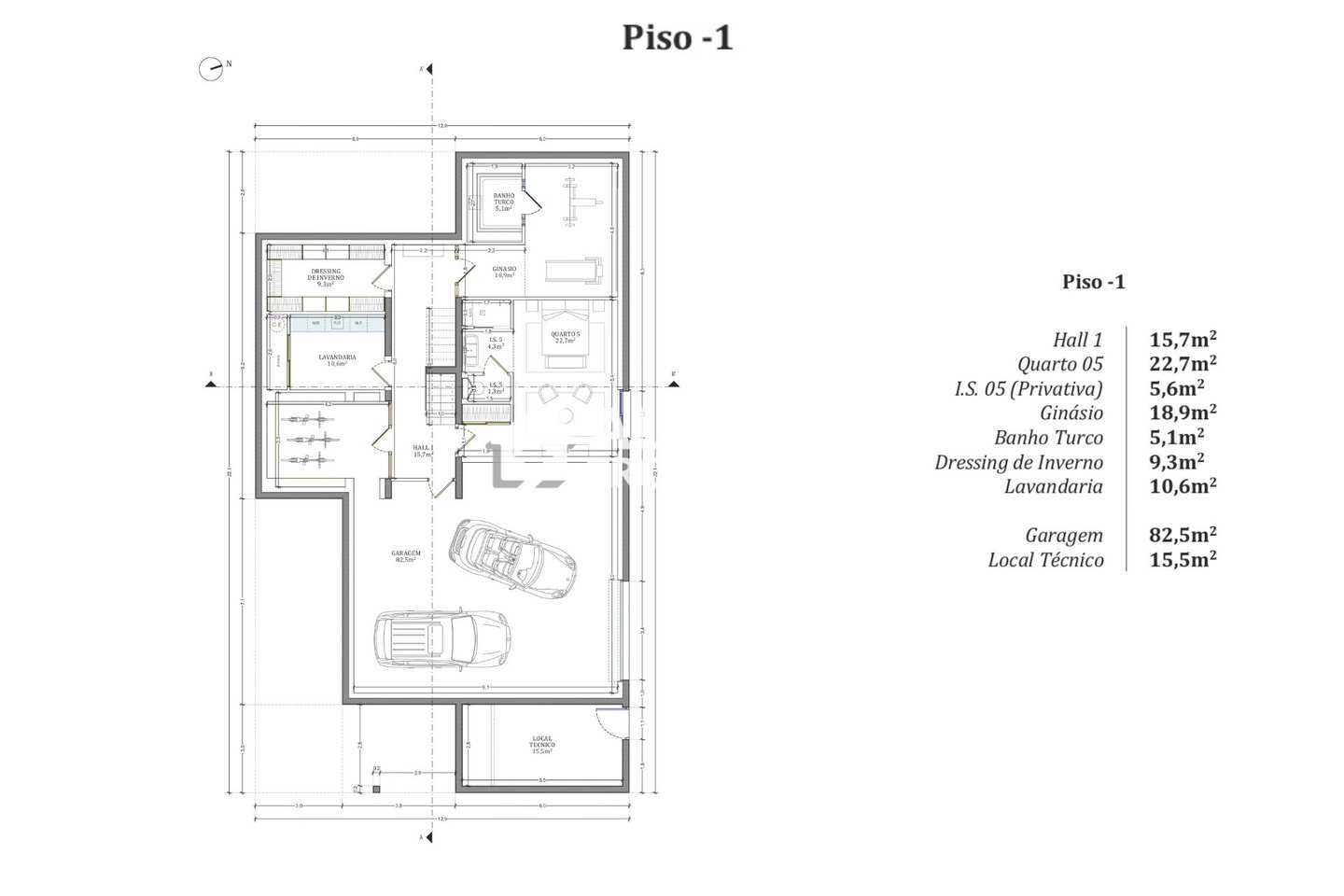
Keller – Wellnessbereich und zusätzlicher Raum
Der voll ausgestattete Keller bietet:
- 1 en-suite Schlafzimmer, ideal für Gäste oder Personalunterbringung
- Fitnessraum und Hamam für Entspannung und Wohlbefinden
- Weinkeller zur Lagerung und Ausstellung Ihrer Weinsammlung
- Wäscherei und zusätzliche Lagermöglichkeiten für mehr Bequemlichkeit
- Sicherer Carport mit automatischen Toren und direktem Innenzugang zum Wohnhaus

Premium-Eigenschaften & Außenbereiche
- Travertinböden und Marmorbäder
- Hohe Decken und großzügige Glasfronten für außergewöhnliches natürliches Licht
- Betonpool, anpassbar mit Salzwasser- oder Chlor-Filtersystem
- Mediterrane gestaltete Gärten mit Steinbrunnen, Mosaiken, Olivenbäumen, Bougainvillea und Lavendel
- Sicherer Zugang mit Video-Gegensprechanlage, 24h-Sicherheit und Videoüberwachung

Hochgelegene Lage & exklusive Gemeinschaft
Diese umzäunte Immobilie bietet ein unvergleichliches Lebensgefühl, das Ruhe und Privatsphäre mit einfachem Zugang zum pulsierenden Zentrum von Faro, preisgekrönten Stränden und ikonischen Attraktionen der Algarve verbindet.

Verpassen Sie nicht diese außergewöhnliche Gelegenheit – vereinbaren Sie jetzt eine Besichtigung!

- Ami: 2196 – Tel.:

Immobiliendetails

  • Nutzungsart
    Wohnen
  • Hauptobjektart
    Haus
  • Vertragsart
    Kauf
  • Wohnfläche (ca.)
    572 m²
  • Grundstücksfläche (ca.)
    1.001 m²
  • Anbieter-Objektnummer
    _em248259m

Preise & Kosten

  • Courtage
    Keine besondere Angabe.

Standort & Lage

8005 Montenegro · PRT

Die genaue Anschrift erfahren Sie vom Anbieter

Anbieter

Ansprechpartner

Verbraucherhinweis

Widerrufsbelehrung des Anbieters

(Gilt nicht für Wohnraummiete in Deutschland)

Widerrufsrecht für Verbraucher
Sie haben das Recht, binnen vierzehn Tagen ohne Angabe von Gründen diesen Vertrag zu widerrufen. Die Widerrufsfrist beträgt vierzehn Tage ab dem Tag des Vertragsabschlusses.
Um Ihr Widerrufsrecht auszuüben, müssen Sie uns (Green-acres, Boulevard du Montparnasse 100, 75014 Paris, ., valentin.fontaine@green-acres.com) mittels einer eindeutigen Erklärung (z. B. ein mit der Post versandter Brief, Telefax oder E-Mail) über Ihren Entschluss, diesen Vertrag zu widerrufen, informieren. Sie können dafür das beigefügte Muster-Widerrufsformular verwenden, das jedoch nicht vorgeschrieben ist. Zur Wahrung der Widerrufsfrist reicht es aus, dass Sie die Mitteilung über die Ausübung des Widerrufsrechts vor Ablauf der Widerrufsfrist absenden.

Folgen des Widerrufs
Wenn Sie diesen Vertrag widerrufen, haben wir Ihnen alle Zahlungen, die wir von Ihnen erhalten haben, einschließlich der Lieferkosten (mit Ausnahme der zusätzlichen Kosten, die sich daraus ergeben, dass Sie eine andere Art der Lieferung als die von uns angebotene, günstigste Standardlieferung gewählt haben), unverzüglich und spätestens binnen vierzehn Tagen ab dem Tag zurückzuzahlen, an dem die Mitteilung über Ihren Widerruf dieses Vertrags bei uns eingegangen ist. Für diese Rückzahlung verwenden wir dasselbe Zahlungsmittel, das Sie bei der ursprünglichen Transaktion eingesetzt haben, es sei denn, mit Ihnen wurde ausdrücklich etwas anderes vereinbart; in keinem Fall werden Ihnen wegen dieser Rückzahlung Entgelte berechnet. Haben Sie verlangt, dass die Dienstleistungen während der Widerrufsfrist beginnen soll, so haben Sie uns einen angemessenen Betrag zu zahlen, der dem Anteil der bis zu dem Zeitpunkt, zu dem Sie uns von der Ausübung des Widerrufsrechts hinsichtlich dieses Vertrags unterrichten, bereits erbrachten Dienstleistungen im Vergleich zum Gesamtumfang der im Vertrag vorgesehenen Dienstleistungen entspricht.

Muster-Widerrufsformular
(Wenn Sie den Vertrag widerrufen wollen, dann füllen Sie dieses Formular aus und senden Sie es zurück.)

An Green-acres, Boulevard du Montparnasse 100, 75014 Paris, ., valentin.fontaine@green-acres.com

Hiermit widerrufe ich/wir den von mir/uns abgeschlossenen Vertrag über den Kauf der folgenden Waren /die Erbringung der folgenden Dienstleistung


Bestellt am /erhalten am

Name des/der Verbraucher(s)

Anschrift des/der Verbraucher(s)

Unterschrift des/der Verbraucher(s) (nur bei Mitteilung auf Papier)

Datum


( Unzutreffendes streichen )


Hinweis auf die Möglichkeit eines vorzeitigen Erlöschens des Widerrufsrechts

Ihr Widerrufsrecht erlischt, wenn wir unsere Leistung vollständig erbracht haben und mit der Ausführung der Leistung erst begonnen haben, nachdem Sie Ihre ausdrückliche Zustimmung gegeben haben und gleichzeitig Ihre Kenntnis davon bestätigt haben, dass Sie Ihr Widerrufsrecht bei vollständiger Vertragserfüllung durch uns verlieren.

Impressum
VERTRETUNGSBERECHTIGTE/R
Valentin Fontaine


Boulevard du Montparnasse 100
75014 Paris
FRA
Tel.: .
E-Mail: valentin.fontaine@green-acres.com
Homepage: https://www.green-acres.com
Anbieter kontaktieren

AGB, Datenschutz & Verbraucherhinweis wurden gelesen und akzeptiert.