Angebot 4082 von 19105

Anbieter kontaktieren

AGB, Datenschutz & Verbraucherhinweis wurden gelesen und akzeptiert.

Properstar SA

Agence Mer Méditerranée
  • Mehr erfahren
bellevue.de-ID: 30630165

Grundstück zu kaufen in Grimaud, France

  • Grundstück
  • · 6.922 m² Grundstücksfläche
  • · 900.000 € Kaufpreis
Anbieter kontaktieren

Objektbeschreibung

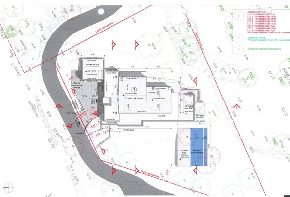
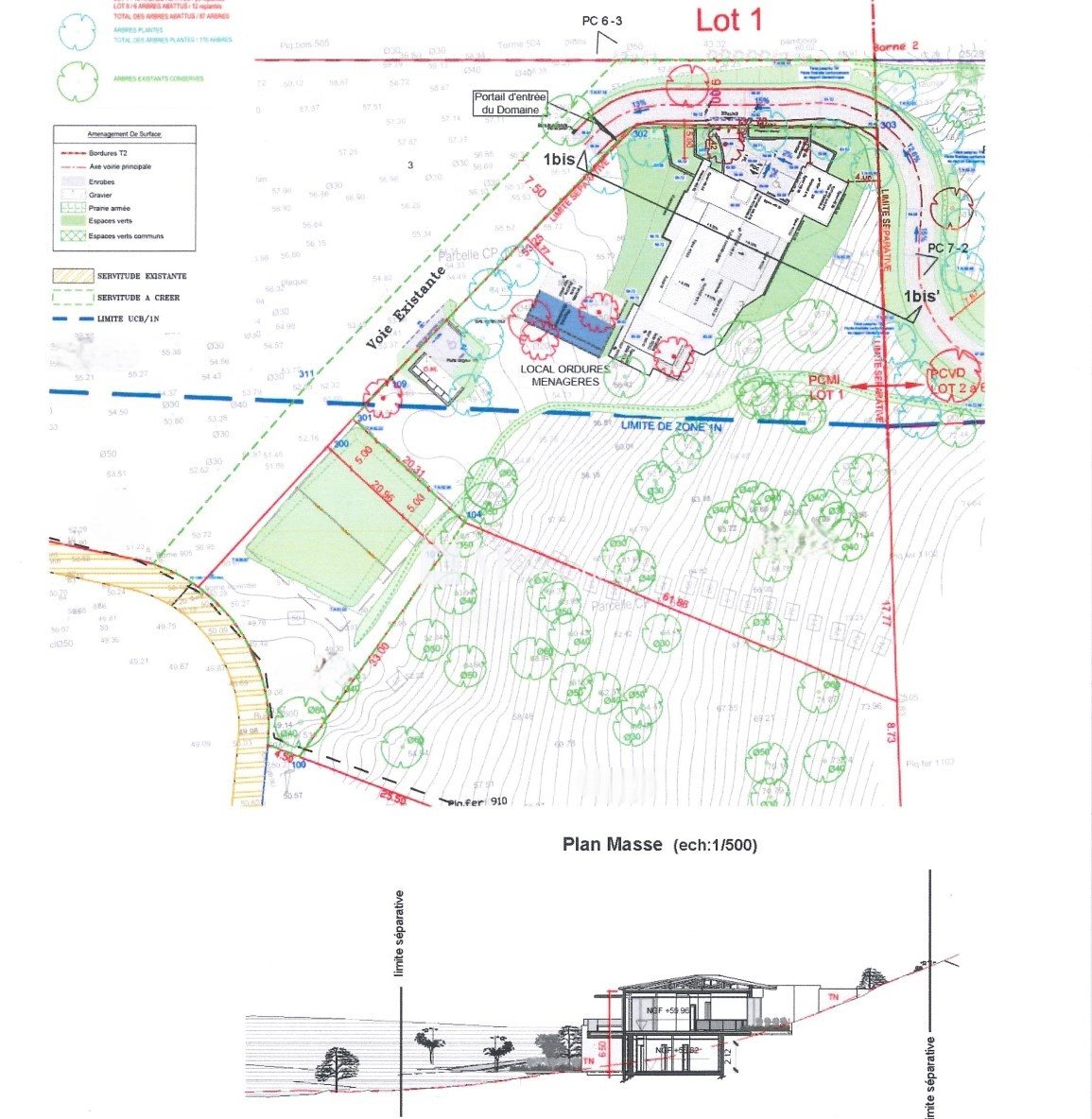
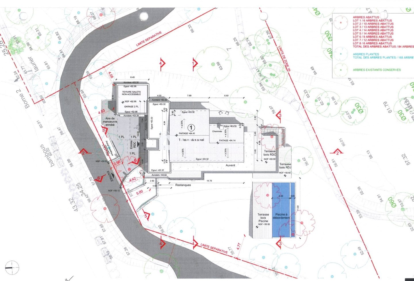
ZUM VERKAUF – BAUGRUNDSTÜCK: Dieses betreute Grundstück befindet sich in der Stadt Grimaud, in einer bewaldeten Gegend, und bietet einen idealen Standort für ein zukünftiges Gebäude. Es verfügt über viele Vorteile: eine sehr große Fläche von 6922 m², ...mehr lesen
ZUM VERKAUF – BAUGRUNDSTÜCK: Dieses betreute Grundstück befindet sich in der Stadt Grimaud, in einer bewaldeten Gegend, und bietet einen idealen Standort für ein zukünftiges Gebäude. Es verfügt über viele Vorteile: eine sehr große Fläche von 6922 m², eine ideale Ausrichtung nach Süden, eine ruhige ländliche Umgebung mit Nähe zu Geschäften und mit einer bereits erteilten und gesäuberten Baugenehmigung. Es bietet eine geräumige Villa auf zwei Ebenen: im Obergeschoss (auf der Gartenebene) vier Suiten und private Badezimmer, einen Waschraum, eine Bar auf der Holzterrasse; Im Erdgeschoss befindet sich ein großer Wohn- und Essbereich mit offener Küche, einem Büro, einer Speisekammer und einer Doppelgarage. Dieses Grundstück wird durch ein Schwimmbad ergänzt. Die Wohnfläche des gesamten Gebäudes beträgt 314 m², ohne Garagen und Terrassen.
Informationen zu den Risiken, denen diese Immobilie ausgesetzt ist, sind auf der Géorisques-Website verfügbar: www.georisques.gouv.fr.

Immobiliendetails

  • Nutzungsart
    Anlage
  • Objektart
    Wohngrundstück
  • Hauptobjektart
    Grundstück
  • Vertragsart
    Kauf
  • Wohnfläche (ca.)
    6.922 m²
  • Grundstücksfläche (ca.)
    6.922 m²
  • Nutzfläche (ca.)
    6.922 m²
  • Anbieter-Objektnummer
    114714130

Preise & Kosten

  • Courtage
    Keine besondere Angabe.

Standort & Lage

· 83310 Grimaud · FRA

Verbraucherhinweis

Widerrufsbelehrung des Anbieters

(Gilt nicht für Wohnraummiete in Deutschland)

Widerrufsrecht für Verbraucher
Sie haben das Recht, binnen vierzehn Tagen ohne Angabe von Gründen diesen Vertrag zu widerrufen. Die Widerrufsfrist beträgt vierzehn Tage ab dem Tag des Vertragsabschlusses.
Um Ihr Widerrufsrecht auszuüben, müssen Sie uns (ListGlobally SA, Rue Mercerie 12, 1003 Lausanne, +49 800 0010536, support@listglobally.com) mittels einer eindeutigen Erklärung (z. B. ein mit der Post versandter Brief, Telefax oder E-Mail) über Ihren Entschluss, diesen Vertrag zu widerrufen, informieren. Sie können dafür das beigefügte Muster-Widerrufsformular verwenden, das jedoch nicht vorgeschrieben ist. Zur Wahrung der Widerrufsfrist reicht es aus, dass Sie die Mitteilung über die Ausübung des Widerrufsrechts vor Ablauf der Widerrufsfrist absenden.

Folgen des Widerrufs
Wenn Sie diesen Vertrag widerrufen, haben wir Ihnen alle Zahlungen, die wir von Ihnen erhalten haben, einschließlich der Lieferkosten (mit Ausnahme der zusätzlichen Kosten, die sich daraus ergeben, dass Sie eine andere Art der Lieferung als die von uns angebotene, günstigste Standardlieferung gewählt haben), unverzüglich und spätestens binnen vierzehn Tagen ab dem Tag zurückzuzahlen, an dem die Mitteilung über Ihren Widerruf dieses Vertrags bei uns eingegangen ist. Für diese Rückzahlung verwenden wir dasselbe Zahlungsmittel, das Sie bei der ursprünglichen Transaktion eingesetzt haben, es sei denn, mit Ihnen wurde ausdrücklich etwas anderes vereinbart; in keinem Fall werden Ihnen wegen dieser Rückzahlung Entgelte berechnet. Haben Sie verlangt, dass die Dienstleistungen während der Widerrufsfrist beginnen soll, so haben Sie uns einen angemessenen Betrag zu zahlen, der dem Anteil der bis zu dem Zeitpunkt, zu dem Sie uns von der Ausübung des Widerrufsrechts hinsichtlich dieses Vertrags unterrichten, bereits erbrachten Dienstleistungen im Vergleich zum Gesamtumfang der im Vertrag vorgesehenen Dienstleistungen entspricht.

Muster-Widerrufsformular
(Wenn Sie den Vertrag widerrufen wollen, dann füllen Sie dieses Formular aus und senden Sie es zurück.)

An ListGlobally SA, Rue Mercerie 12, 1003 Lausanne, +49 800 0010536, support@listglobally.com

Hiermit widerrufe ich/wir den von mir/uns abgeschlossenen Vertrag über den Kauf der folgenden Waren /die Erbringung der folgenden Dienstleistung


Bestellt am /erhalten am

Name des/der Verbraucher(s)

Anschrift des/der Verbraucher(s)

Unterschrift des/der Verbraucher(s) (nur bei Mitteilung auf Papier)

Datum


( Unzutreffendes streichen )


Hinweis auf die Möglichkeit eines vorzeitigen Erlöschens des Widerrufsrechts

Ihr Widerrufsrecht erlischt, wenn wir unsere Leistung vollständig erbracht haben und mit der Ausführung der Leistung erst begonnen haben, nachdem Sie Ihre ausdrückliche Zustimmung gegeben haben und gleichzeitig Ihre Kenntnis davon bestätigt haben, dass Sie Ihr Widerrufsrecht bei vollständiger Vertragserfüllung durch uns verlieren.

Impressum ListGlobally SA
VERTRETUNGSBERECHTIGTE/R
Properstar SA


Rue Mercerie 12
1003 Lausanne
CHE
Tel.: +49 800 0010536
E-Mail: support@listglobally.com
Homepage: https://www.listglobally.com/
Anbieter kontaktieren

AGB, Datenschutz & Verbraucherhinweis wurden gelesen und akzeptiert.