Angebot 4164 von 19176

Anbieter kontaktieren

AGB, Datenschutz & Verbraucherhinweis wurden gelesen und akzeptiert.

RE/MAX Expert, Haubner Immobilien GmbH

Kevin Lehner
4020 Linz
  • Mehr erfahren
bellevue.de-ID: 30629971

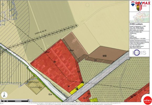
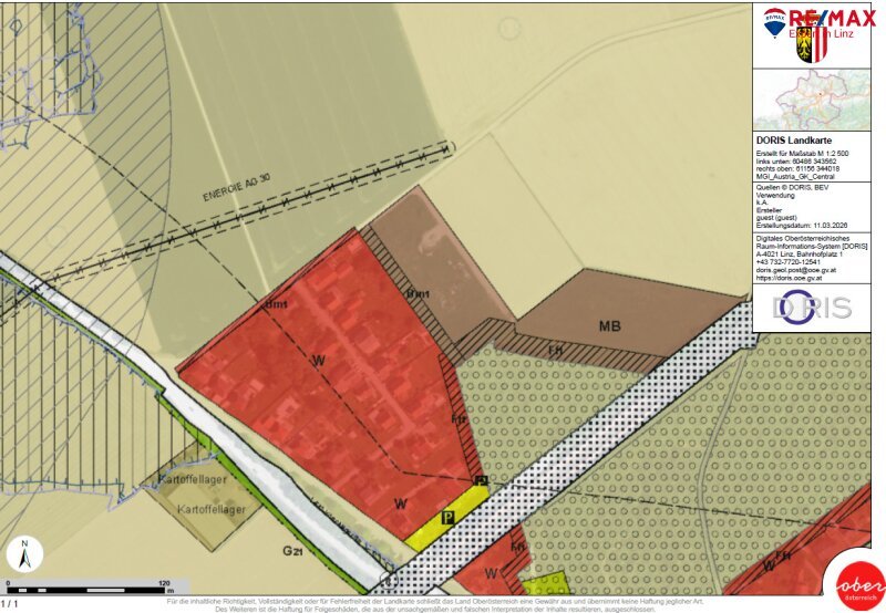
Neuer Firmensitz? ***Perfekte Möglichgkeit auf 3.541 m² in Oftering***

  • Grundstück
  • · 3.541 m² Grundstücksfläche
  • · 1.049.000 € Kaufpreis
Anbieter kontaktieren

Objektbeschreibung

Neuer Firmensitz? ***Perfekte Möglichgkeit auf 3.541 m² in Oftering***



Zum Verkauf steht ein großzügiges Betriebsgrundstück mit einer Gesamtfläche von rund 3.541 m² in einem aufstrebenden Mischbaugebiet von Oftering.



Das Grundstück bietet vielseitige

...mehr lesen

Neuer Firmensitz? ***Perfekte Möglichgkeit auf 3.541 m² in Oftering***



Zum Verkauf steht ein großzügiges Betriebsgrundstück mit einer Gesamtfläche von rund 3.541 m² in einem aufstrebenden Mischbaugebiet von Oftering.



Das Grundstück bietet vielseitige Nutzungsmöglichkeiten und ist daher ideal für unterschiedlichste gewerbliche Vorhaben geeignet.



Ein bereits mit der Gemeinde abgestimmter Vorentwurf liegt vor und kann bei Interesse zur Verfügung gestellt werden. (NOCH NICHT GENEHMIGT)



ALLES AUF EINEN BLICK

- Größe: 3.541 m²

- Flächenwidmung: Mischbaugebiet

- Bebauung laut Bebauungsplan 

- Kanal- und Wasseranschluss vorhanden

- Kaufpreis inklusive Infrastrukturkostenbeitrag

- top Lage

- viele Entwicklungsmöglichkeiten

- ideale Infrastruktur



Das Grundstück vereint zentralen Komfort, gute Infrastruktur und eine flexible Nutzungsmöglichkeit in einem attraktiven Umfeld.



Wir haben Ihr Interesse geweckt? - Dann vereinbaren Sie Ihren persönlichen Beratungstermin!



Gemäß § 5, Abs. 3 Maklergesetz weisen wir daraufhin, dass wir als Doppelmakler tätig sind.

Bitte beachten Sie, dass wir aufgrund der Nachweispflicht gegenüber dem Eigentümer nur Anfragen mit vollständiger Angabe der Anschrift und Telefonnummer bearbeiten können.

Wir weisen darauf hin, dass alle Angaben nach bestem Wissen und Gewissen erstellt wurden.

Für Auskünfte und Angaben, die uns von Seiten der Eigentümer und Dritten zur Verfügung gestellt wurden, übernehmen wir keine Haftung.

Dieses Angebot ist unverbindlich und freibleibend. Zwischenverwertung, Irrtümer, Druckfehler und Änderungen vorbehalten.


Der Vermittler ist als Doppelmakler tätig.


Infrastruktur / Entfernungen

Gesundheit
Arzt <2.500m
Apotheke <4.000m
Klinik <5.000m

Kinder & Schulen
Schule <500m
Kindergarten <4.000m

Nahversorgung
Supermarkt <3.500m
Bäckerei <5.500m
Einkaufszentrum <8.000m

Sonstige
Bank <500m
Geldautomat <3.000m
Post <4.000m
Polizei <4.000m

Verkehr
Bus <500m
Bahnhof <2.000m
Straßenbahn <7.500m
Autobahnanschluss <6.000m
Flughafen <4.500m

Angaben Entfernung Luftlinie / Quelle: OpenStreetMap

Immobiliendetails

  • Nutzungsart
    Wohnen
  • Objektart
    Gewerbegrundstück
  • Hauptobjektart
    Grundstück
  • Vertragsart
    Kauf
  • Grundstücksfläche (ca.)
    3.541 m²
  • Anbieter-Objektnummer
    3849/464

Preise & Kosten

  • Courtage
    3 % inklusive der gesetzlichen Mehrwertsteuer

Standort & Lage

· 4064 Oftering · AUT

Anbieter

Verbraucherhinweis

Widerrufsbelehrung des Anbieters

(Gilt nicht für Wohnraummiete in Deutschland)

Widerrufsrecht für Verbraucher
Sie haben das Recht, binnen vierzehn Tagen ohne Angabe von Gründen diesen Vertrag zu widerrufen. Die Widerrufsfrist beträgt vierzehn Tage ab dem Tag des Vertragsabschlusses.
Um Ihr Widerrufsrecht auszuüben, müssen Sie uns (Haubner Immobilien GmbH, Kollegiumgasse 5, 4020 Linz, 0043 732 69 48 17, office@remax-expert.at) mittels einer eindeutigen Erklärung (z. B. ein mit der Post versandter Brief, Telefax oder E-Mail) über Ihren Entschluss, diesen Vertrag zu widerrufen, informieren. Sie können dafür das beigefügte Muster-Widerrufsformular verwenden, das jedoch nicht vorgeschrieben ist. Zur Wahrung der Widerrufsfrist reicht es aus, dass Sie die Mitteilung über die Ausübung des Widerrufsrechts vor Ablauf der Widerrufsfrist absenden.

Folgen des Widerrufs
Wenn Sie diesen Vertrag widerrufen, haben wir Ihnen alle Zahlungen, die wir von Ihnen erhalten haben, einschließlich der Lieferkosten (mit Ausnahme der zusätzlichen Kosten, die sich daraus ergeben, dass Sie eine andere Art der Lieferung als die von uns angebotene, günstigste Standardlieferung gewählt haben), unverzüglich und spätestens binnen vierzehn Tagen ab dem Tag zurückzuzahlen, an dem die Mitteilung über Ihren Widerruf dieses Vertrags bei uns eingegangen ist. Für diese Rückzahlung verwenden wir dasselbe Zahlungsmittel, das Sie bei der ursprünglichen Transaktion eingesetzt haben, es sei denn, mit Ihnen wurde ausdrücklich etwas anderes vereinbart; in keinem Fall werden Ihnen wegen dieser Rückzahlung Entgelte berechnet. Haben Sie verlangt, dass die Dienstleistungen während der Widerrufsfrist beginnen soll, so haben Sie uns einen angemessenen Betrag zu zahlen, der dem Anteil der bis zu dem Zeitpunkt, zu dem Sie uns von der Ausübung des Widerrufsrechts hinsichtlich dieses Vertrags unterrichten, bereits erbrachten Dienstleistungen im Vergleich zum Gesamtumfang der im Vertrag vorgesehenen Dienstleistungen entspricht.

Muster-Widerrufsformular
(Wenn Sie den Vertrag widerrufen wollen, dann füllen Sie dieses Formular aus und senden Sie es zurück.)

An Haubner Immobilien GmbH, Kollegiumgasse 5, 4020 Linz, 0043 732 69 48 17, office@remax-expert.at

Hiermit widerrufe ich/wir den von mir/uns abgeschlossenen Vertrag über den Kauf der folgenden Waren /die Erbringung der folgenden Dienstleistung


Bestellt am /erhalten am

Name des/der Verbraucher(s)

Anschrift des/der Verbraucher(s)

Unterschrift des/der Verbraucher(s) (nur bei Mitteilung auf Papier)

Datum


( Unzutreffendes streichen )


Hinweis auf die Möglichkeit eines vorzeitigen Erlöschens des Widerrufsrechts

Ihr Widerrufsrecht erlischt, wenn wir unsere Leistung vollständig erbracht haben und mit der Ausführung der Leistung erst begonnen haben, nachdem Sie Ihre ausdrückliche Zustimmung gegeben haben und gleichzeitig Ihre Kenntnis davon bestätigt haben, dass Sie Ihr Widerrufsrecht bei vollständiger Vertragserfüllung durch uns verlieren.

Impressum Haubner Immobilien GmbH
VERTRETUNGSBERECHTIGTE/R
Oliver Haubner


Kollegiumgasse 5
4020 Linz
AUT
Tel.: 0043 732 69 48 17
E-Mail: office@remax-expert.at
Homepage: https://www.remax-expert.at

HANDELSREGISTER-EINTRAG
FN 589450 p


UST-ID-NUMMER
ATU78558026
Anbieter kontaktieren

AGB, Datenschutz & Verbraucherhinweis wurden gelesen und akzeptiert.