Angebot 126 von 16966

Anbieter kontaktieren

AGB, Datenschutz & Verbraucherhinweis wurden gelesen und akzeptiert.

HausHirsch GmbH

David Sidorski
Downtown, Dubai
  • Mehr erfahren
bellevue.de-ID: 30629535

Stilvolles 1-Zimmer-Apartment mit modernem Lifestyle und perfekter Lage

  • Wohnung
  • · 2 Zimmer
  • · 78 m² Wohnfläche
  • · 302.536 € Kaufpreis
Anbieter kontaktieren

Objektbeschreibung

Willkommen in dieser atemberaubenden 1-Zimmer-Wohnung, die sich sowohl für Singles als auch für Investoren eignet. Diese Wohnung verfügt über großartige Annehmlichkeiten wie eine moderne Küche mit Edelstahlgeräten, ein geräumiges Wohnzimmer mit ...mehr lesen
Willkommen in dieser atemberaubenden 1-Zimmer-Wohnung, die sich sowohl für Singles als auch für Investoren eignet. Diese Wohnung verfügt über großartige Annehmlichkeiten wie eine moderne Küche mit Edelstahlgeräten, ein geräumiges Wohnzimmer mit großen Fenstern, die viel natürliches Licht bieten, ein gemütliches Schlafzimmer mit begehbarem Kleiderschrank und ein luxuriöses Badezimmer mit einer Badewanne. Außerdem haben die Bewohner Zugang zu einem Fitnesscenter, einer Dachterrasse mit Panoramablick und einem 24-Stunden-Concierge-Service. Lassen Sie sich die Gelegenheit nicht entgehen, diese außergewöhnliche Immobilie im Herzen der Stadt zu besitzen.

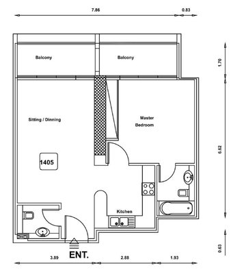
Immobiliendetails

  • Nutzungsart
    Wohnen
  • Objektart
    Etagenwohnung
  • Hauptobjektart
    Wohnung
  • Vertragsart
    Kauf
  • Zimmer (gesamt)
    2
  • Anzahl Schlafzimmer
    1
  • Anzahl Badezimmer
    1
  • Wohnfläche (ca.)
    78,41 m²
  • Küche
    Einbauküche (EBK)
  • Balkon
    1
  • Bad
    Duschbad, Bidet
  • Als Ferienobjekt nutzbar
  • Anbieter-Objektnummer
    Armada3 JLT 1BHK APT - DV-10107

Preise & Kosten

  • Courtage
    Provisionsfrei

Energie

  • Gebäudeart
    Wohngebäude

Ausstattung

  • Klimanalage
Willkommen in Armada 3, JLT, wo Luxus und Komfort in dieser atemberaubenden 1-Schlafzimmer-Wohnung aufeinandertreffen. Zum Preis von AED 1.280.000 voll möbliert (1.265.000 optional ohne Möbel), wartet dieses Juwel von 844 ft2 darauf, dass Sie es zu ...mehr lesen
Willkommen in Armada 3, JLT, wo Luxus und Komfort in dieser atemberaubenden 1-Schlafzimmer-Wohnung aufeinandertreffen. Zum Preis von AED 1.280.000 voll möbliert (1.265.000 optional ohne Möbel), wartet dieses Juwel von 844 ft2 darauf, dass Sie es zu Ihrem eigenen machen. Treten Sie auf den Balkon und genießen Sie den atemberaubenden Blick auf den Yachthafen - der perfekte Ort, um nach einem langen Tag zu entspannen. Diese Wohnung bietet Zugang zu einem Swimmingpool, einer Sauna und einem Fitnessstudio, so dass Sie sich entspannen und aktiv bleiben können, ohne das Haus zu verlassen. Mit einer jährlichen Servicegebühr von AED 11.000 (Chiller Free) können Sie alle Annehmlichkeiten ohne zusätzlichen Aufwand genießen. Nur 10 Gehminuten von der U-Bahn entfernt, bietet dieser Standort Komfort und Erreichbarkeit. Umgeben von 24/7 Carrefour, Park, Spielplätze, See, und Restaurants, werden Sie nie ausgehen von Dingen zu tun, in diesem lebendigen Viertel. Und mit 1 überdachten Parkplatz im Gebäude, wird Ihr Auto immer einen sicheren Platz zu bleiben. Lassen Sie sich die Gelegenheit nicht entgehen, diese fantastische Wohnung im Herzen von JLT zu besitzen. Sichern Sie sich diese Wohnung noch heute und beginnen Sie, den Luxus zu leben, den Sie verdienen.

Standort & Lage

· Dubai · ARE

Ansprechpartner

David Sidorski

Boulevard Plaza Tower 1
Downtown, Dubai
Verbraucherhinweis

Widerrufsbelehrung des Anbieters

(Gilt nicht für Wohnraummiete in Deutschland)

Widerrufsrecht für Verbraucher
Sie haben das Recht, binnen vierzehn Tagen ohne Angabe von Gründen diesen Vertrag zu widerrufen. Die Widerrufsfrist beträgt vierzehn Tage ab dem Tag des Vertragsabschlusses.
Um Ihr Widerrufsrecht auszuüben, müssen Sie uns (HausHirsch GmbH, Dreischeibenhaus 1, 40211D Düsseldorf, +49 0 800 000 1244, +49 211 8825025, info@haushirsch.de) mittels einer eindeutigen Erklärung (z. B. ein mit der Post versandter Brief, Telefax oder E-Mail) über Ihren Entschluss, diesen Vertrag zu widerrufen, informieren. Sie können dafür das beigefügte Muster-Widerrufsformular verwenden, das jedoch nicht vorgeschrieben ist. Zur Wahrung der Widerrufsfrist reicht es aus, dass Sie die Mitteilung über die Ausübung des Widerrufsrechts vor Ablauf der Widerrufsfrist absenden.

Folgen des Widerrufs
Wenn Sie diesen Vertrag widerrufen, haben wir Ihnen alle Zahlungen, die wir von Ihnen erhalten haben, einschließlich der Lieferkosten (mit Ausnahme der zusätzlichen Kosten, die sich daraus ergeben, dass Sie eine andere Art der Lieferung als die von uns angebotene, günstigste Standardlieferung gewählt haben), unverzüglich und spätestens binnen vierzehn Tagen ab dem Tag zurückzuzahlen, an dem die Mitteilung über Ihren Widerruf dieses Vertrags bei uns eingegangen ist. Für diese Rückzahlung verwenden wir dasselbe Zahlungsmittel, das Sie bei der ursprünglichen Transaktion eingesetzt haben, es sei denn, mit Ihnen wurde ausdrücklich etwas anderes vereinbart; in keinem Fall werden Ihnen wegen dieser Rückzahlung Entgelte berechnet. Haben Sie verlangt, dass die Dienstleistungen während der Widerrufsfrist beginnen soll, so haben Sie uns einen angemessenen Betrag zu zahlen, der dem Anteil der bis zu dem Zeitpunkt, zu dem Sie uns von der Ausübung des Widerrufsrechts hinsichtlich dieses Vertrags unterrichten, bereits erbrachten Dienstleistungen im Vergleich zum Gesamtumfang der im Vertrag vorgesehenen Dienstleistungen entspricht.

Muster-Widerrufsformular
(Wenn Sie den Vertrag widerrufen wollen, dann füllen Sie dieses Formular aus und senden Sie es zurück.)

An HausHirsch GmbH, Dreischeibenhaus 1, 40211D Düsseldorf, +49 0 800 000 1244, +49 211 8825025, info@haushirsch.de

Hiermit widerrufe ich/wir den von mir/uns abgeschlossenen Vertrag über den Kauf der folgenden Waren /die Erbringung der folgenden Dienstleistung


Bestellt am /erhalten am

Name des/der Verbraucher(s)

Anschrift des/der Verbraucher(s)

Unterschrift des/der Verbraucher(s) (nur bei Mitteilung auf Papier)

Datum


( Unzutreffendes streichen )


Hinweis auf die Möglichkeit eines vorzeitigen Erlöschens des Widerrufsrechts

Ihr Widerrufsrecht erlischt, wenn wir unsere Leistung vollständig erbracht haben und mit der Ausführung der Leistung erst begonnen haben, nachdem Sie Ihre ausdrückliche Zustimmung gegeben haben und gleichzeitig Ihre Kenntnis davon bestätigt haben, dass Sie Ihr Widerrufsrecht bei vollständiger Vertragserfüllung durch uns verlieren.

Impressum HausHirsch GmbH
VERTRETUNGSBERECHTIGTE/R
Marius Wolf


Dreischeibenhaus 1
40211D Düsseldorf
DEU
Tel.: +49 0 800 000 1244
E-Mail: info@haushirsch.de
Fax: +49 211 8825025
Homepage: https://haushirsch.de

ZUSTÄNDIGE AUFSICHTSBEHÖRDE
Die Gewerbeanmeldung nach § 34 c GewO wurde durch Stadt Düsseldorf (www.duesseldorf.de) erteilt.

HANDELSREGISTER-EINTRAG
Amtsgericht Düsseldorf, HRB 99093


UST-ID-NUMMER
DE362155160
Anbieter kontaktieren

AGB, Datenschutz & Verbraucherhinweis wurden gelesen und akzeptiert.