Angebot 419 von 16872

Anbieter kontaktieren

AGB, Datenschutz & Verbraucherhinweis wurden gelesen und akzeptiert.

Imitalia srl

Leonardo Luz
21016 Luino
  • Mehr erfahren
bellevue.de-ID: 30628315

Gepflegte Villa mit schönem Garten, privatem Pool und traumhaftem Seeblick

  • Haus
  • · 4 Zimmer
  • · 130 m² Wohnfläche
  • · 1.695 m² Grundstücksfläche
  • · 495.000 € Kaufpreis
Anbieter kontaktieren

Objektbeschreibung

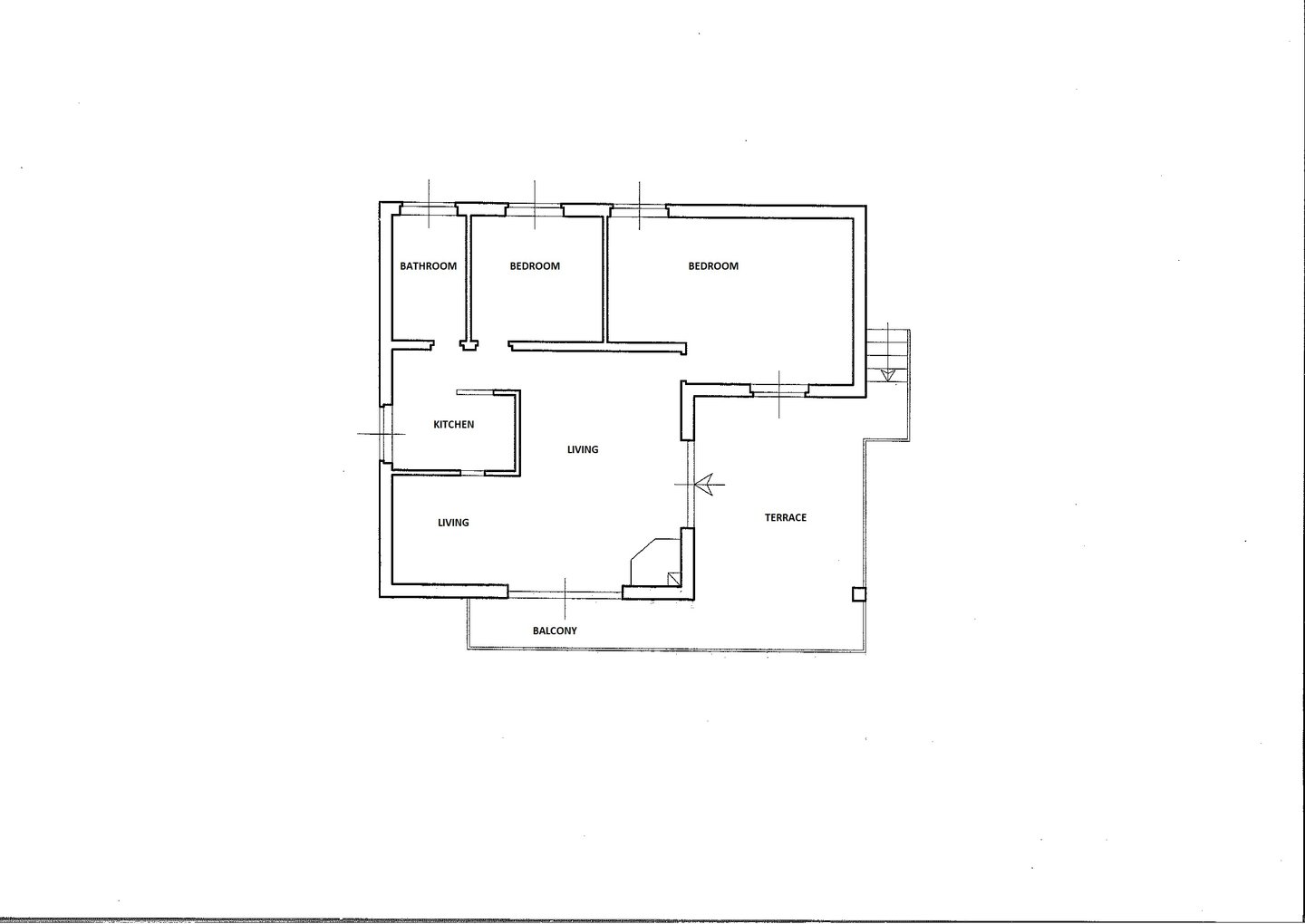
Das Haus bietet eine Wohnnutzfläche von ca. 130 qm und ist wie folgt aufgeteilt: Erdgeschoss: schöner und heller Wohnbereich mit Kamin und Ausgang auf die große „L-förmige“ Terrasse, Küche, 2 Doppelschlafzimmer und ein Badezimmer mit Tageslicht. ...mehr lesen
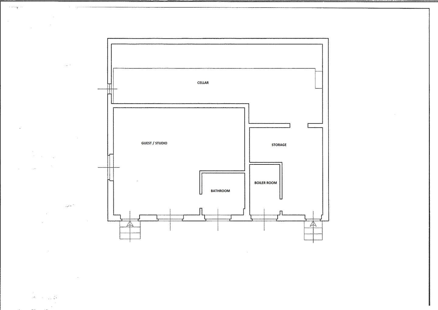
Das Haus bietet eine Wohnnutzfläche von ca. 130 qm und ist wie folgt aufgeteilt: Erdgeschoss: schöner und heller Wohnbereich mit Kamin und Ausgang auf die große „L-förmige“ Terrasse, Küche, 2 Doppelschlafzimmer und ein Badezimmer mit Tageslicht. Gartengeschoss: (mit separatem Zugang): 1-Zimmer-Einliegerwohnung bestehend aus:  Wohn-/Schlafbereich mit Küche und einem Badezimmer, 2 Kellerräume und der Technikraum. Das schöne Grundstück (mit 100 Jahre altem Olivenbaum, Kiwi Pergola und Grillplatz) hat eine Größe von ca. 1.695 qm. Eine eigene Garage und der private Pool runden dieses interessante Angebot ab.

Immobiliendetails

  • Nutzungsart
    Wohnen
  • Objektart
    Einfamilienhaus
  • Hauptobjektart
    Haus
  • Vertragsart
    Kauf
  • Objektzustand
    Gepflegt
  • Baujahr
    1973
  • Zimmer (gesamt)
    4
  • Wohnfläche (ca.)
    130 m²
  • Grundstücksfläche (ca.)
    1.695 m²
  • Küche
    2
  • Besichtigung
    Besichtigungstermin nach Vereinbarung
  • Bad
    Bad mit Fenster
  • Anzahl Terrassen
    2
  • Garagenstellplätze
    1
  • Anzahl Etagen
    2
  • Ausblick
    See
  • Ausrichtung
    Südwest
  • Letzte Modernisierung
    2002
  • Als Ferienobjekt nutzbar
  • Haustiere
  • Verfügbarkeit
    nach Vereinbarung
  • Anbieter-Objektnummer
    H 2310

Preise & Kosten

  • Courtage
    6,10 % inklusive der gesetzlichen Mehrwertsteuer

Energie

  • Heizungsart
    Zentralheizung
  • Befeuerungsart
    Öl

Ausstattung

  • Kamin
  • Möbliert
  • Freistehend
  • Terrasse
  • Swimmingpool
  • Einliegerwohnung
  • Keller
  • Deckenhöhe über 2,50 m

Standort & Lage

Diese Villa mit schönem Garten und traumhaftem Seeblick befindet in der Gemeinde von Porto Valtravaglia, in ruhiger und sonniger Lage, am Ende einer Sackgasse.

21010 Porto Valtravaglia · Muceno · Lombardia · ITA

Die genaue Anschrift erfahren Sie vom Anbieter

Anbieter

Logo von Imitalia srl
2026 Best Property Agents

Ansprechpartner

Leonardo Luz

Viale Dante Alighieri, 5/C
21016 Luino
Verbraucherhinweis

Widerrufsbelehrung des Anbieters

Gilt nicht für Wohnraummiete in Deutschland

Widerrufsrecht für Verbraucher

Sie haben das Recht, binnen vierzehn Tagen ohne Angabe von Gründen diesen Vertrag zu widerrufen. Die Widerrufsfrist beträgt vierzehn Tage ab dem Tag des Vertragsabschlusses.

Um Ihr Widerrufsrecht auszuüben, müssen Sie uns (Imitalia di Dr. L. Luz & C. s.a.s., Viale Dante Alighieri, 5/C, 21016 Luino- Lago Maggiore, Fax: 0332-537226, Tel: 0332-511429, info@imitalia.it) mittels einer eindeutigen Erklärung (z. B. ein mit der Post versandter Brief, Telefax oder E-Mail) über Ihren Entschluss, diesen Vertrag zu widerrufen, informieren. Sie können dafür das beigefügte Muster-Widerrufsformular verwenden, das jedoch nicht vorgeschrieben ist. Zur Wahrung der Widerrufsfrist reicht es aus, dass Sie die Mitteilung über die Ausübung des Widerrufsrechts vor Ablauf der Widerrufsfrist absenden.

Folgen des Widerrufs

Wenn Sie diesen Vertrag widerrufen, haben wir Ihnen alle Zahlungen, die wir von Ihnen erhalten haben, einschließlich der Lieferkosten (mit Ausnahme der zusätzlichen Kosten, die sich daraus ergeben, dass Sie eine andere Art der Lieferung als die von uns angebotene, günstigste Standardlieferung gewählt haben), unverzüglich und spätestens binnen vierzehn Tagen ab dem Tag zurückzuzahlen, an dem die Mitteilung über Ihren Widerruf dieses Vertrags bei uns eingegangen ist. Für diese Rückzahlung verwenden wir dasselbe Zahlungsmittel, das Sie bei der ursprünglichen Transaktion eingesetzt haben, es sei denn, mit Ihnen wurde ausdrücklich etwas anderes vereinbart; in keinem Fall werden Ihnen wegen dieser Rückzahlung Entgelte berechnet. Haben Sie verlangt, dass die Dienstleistungen während der Widerrufsfrist beginnen soll, so haben Sie uns einen angemessenen Betrag zu zahlen, der dem Anteil der bis zu dem Zeitpunkt, zu dem Sie uns von der Ausübung des Widerrufsrechts hinsichtlich dieses Vertrags unterrichten, bereits erbrachten Dienstleistungen im Vergleich zum Gesamtumfang der im Vertrag vorgesehenen Dienstleistungen entspricht.

Muster-Widerrufsformular

(Wenn Sie den Vertrag widerrufen wollen, dann füllen Sie dieses Formular aus und senden Sie es zurück.)

An Imitalia di Dr. L. Luz & C. s.a.s., Viale Dante Alighieri, 5/C, 21016 Luino- Lago Maggiore, Fax: 0332-537226, info@imitalia.it
Hiermit widerrufe(n) ich/wir (*) den von mir/uns (*) abgeschlossenen Vertrag über den Kauf der folgenden Waren (*)/die Erbringung der folgenden Dienstleistung (*)


- Bestellt am (*)/erhalten am (*)

- Name des/der Verbraucher(s)

- Anschrift des/der Verbraucher(s)

- Unterschrift des/der Verbraucher(s) (nur bei Mitteilung auf Papier)
- Datum


(*) Unzutreffendes streichen

Hinweis auf die Möglichkeit eines vorzeitigen Erlöschens des Widerrufsrechts

Ihr Widerrufsrecht erlischt, wenn wir unsere Leistung vollständig erbracht haben und mit der Ausführung der Leistung erst begonnen haben, nachdem Sie Ihre ausdrückliche Zustimmung gegeben haben und gleichzeitig Ihre Kenntnis davon bestätigt haben, dass Sie Ihr Widerrufsrecht bei vollständiger Vertragserfüllung durch uns verlieren.

Impressum Imitalia di Dr. L. Luz & C. s.a.s.
VERTRETUNGSBERECHTIGTE/R
Leonardo Luz


Viale Dante Alighieri 5/c
21016 Luino- Lago Maggiore
ITA
Tel.: 0332-511429
E-Mail: info@imitalia.it
Fax: 0332-537226
Homepage: http://www.imitalia.it/

ZUSÄTZLICHER TEXT
Verbraucherinformationen Online-Streitbeilegung gemäß Art. 14 Abs. 1 ODR-VO: Die Europäische Kommission stellt eine Plattform zur Online-Streitbeilegung (OS) bereit, die Sie hier finden: http://ec.europa.eu/consumers/odr
Anbieter kontaktieren

AGB, Datenschutz & Verbraucherhinweis wurden gelesen und akzeptiert.