Angebot 4168 von 18530

Anbieter kontaktieren

AGB, Datenschutz & Verbraucherhinweis wurden gelesen und akzeptiert.

Green-acres

Liane Bergstrom
  • Mehr erfahren
bellevue.de-ID: 30627515

Moderne V6 Villa in einer Wohnanlage mit Pool. In der Nähe von Vilamoura und Stränden, Algarve

  • Haus
  • · 393 m² Wohnfläche
  • · 850.000 € Kaufpreis
Anbieter kontaktieren

Objektbeschreibung

Diese außergewöhnliche und moderne Doppelhaushälfte mit 6 Schlafzimmern (V4+2) befindet sich in einer geschlossenen Wohnanlage mit Pool und Garten und bietet einen anspruchsvollen Lebensstil mit einer Vielzahl von Annehmlichkeiten. Ideal gelegen, nur ...mehr lesen
Diese außergewöhnliche und moderne Doppelhaushälfte mit 6 Schlafzimmern (V4+2) befindet sich in einer geschlossenen Wohnanlage mit Pool und Garten und bietet einen anspruchsvollen Lebensstil mit einer Vielzahl von Annehmlichkeiten. Ideal gelegen, nur 15 Minuten von Vilamoura und den Stränden entfernt, sowie zwei Gehminuten von Schulen und Supermärkten, kombiniert sie Komfort und Bequemlichkeit, was sie zur perfekten Wahl für das Familienleben macht.

Kürzlich renoviert, präsentiert sich diese beeindruckende Villa mit 393 m² modernen und hochwertigen Ausstattungen. Sie verfügt außerdem über einen eingezäunten Privatgarten mit einem Jacuzzi, einem ruhigen Rückzugsort, ideal für Entspannung oder geselliges Zusammensein im Freien. Der Außenbereich umfasst einen eingebauten Grill und eine großzügige Terrasse mit überdachtem Essbereich, die die perfekte Kulisse für Mahlzeiten im Freien oder besondere Momente mit Familie und Freunden bietet.

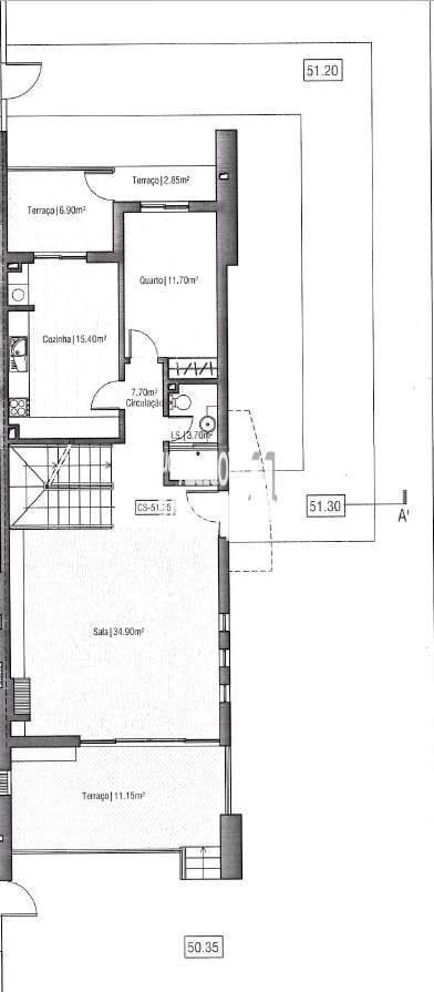
Im Inneren bietet das Erdgeschoss ein geräumiges und helles Wohnzimmer, einen Kamin und große Schiebefenster, die sich vollständig öffnen lassen und eine fließende Verbindung zwischen Innen- und Außenbereich schaffen. Die moderne, voll ausgestattete Küche mit Bosch-Geräten vereint Funktionalität mit elegantem Design. Diese Etage verfügt zudem über ein Schlafzimmer und ein komplettes Bad.

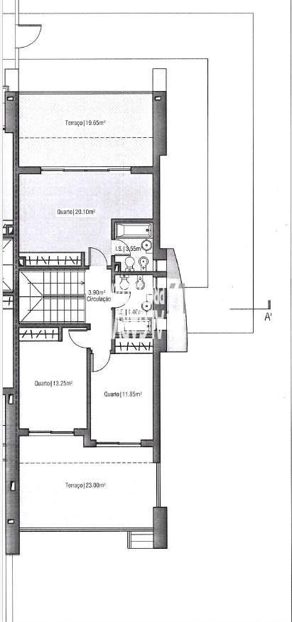
Im ersten Stock ist die Master-Suite ein privater Rückzugsort mit einem eleganten Kleiderschrank, modernem Bad und Balkon. Zwei zusätzliche Schlafzimmer teilen sich ein Bad und haben direkten Zugang zu einem großen Balkon mit Blick auf den Pool der Wohnanlage.

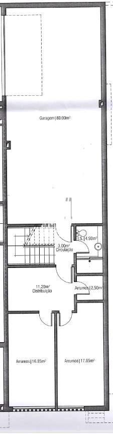
Der Keller fügt wertvollen Wohnraum hinzu, bestehend aus zwei zusätzlichen Schlafzimmern mit Tageslicht, einem großzügigen Freizeitbereich, der als Wohnzimmer, Spielzimmer oder Kino dienen kann, einem Bad, einer Waschküche und direktem Zugang zur privaten Garage mit Platz für zwei Autos. Das durchdachte Design der Villa bietet großzügige integrierte Stauräume und sorgt so für praktische und funktionale Organisation.

Strategisch an einem Ende der Wohnanlage gelegen, garantiert diese Villa Privatsphäre ohne gemeinschaftliche Zugänge zum Garten – eine seltene Eigenschaft in dieser Bauart. Mit hochwertigen Ausstattungen, Solarpaneelen, einem zentralen Staubsaugersystem, Klimaanlage und einer durchdachten Anordnung, um maximalen Komfort und Wohlbefinden zu bieten, stellt diese Villa eine einzigartige Gelegenheit für diejenigen dar, die ein elegantes und funktionales Zuhause an einem privilegierten Ort suchen.

Immobiliendetails

  • Nutzungsart
    Wohnen
  • Hauptobjektart
    Haus
  • Vertragsart
    Kauf
  • Wohnfläche (ca.)
    393 m²
  • Anbieter-Objektnummer
    _mg258525f

Preise & Kosten

  • Courtage
    Keine besondere Angabe.

Standort & Lage

8100 Boliqueime · PRT

Die genaue Anschrift erfahren Sie vom Anbieter

Anbieter

Verbraucherhinweis

Widerrufsbelehrung des Anbieters

(Gilt nicht für Wohnraummiete in Deutschland)

Widerrufsrecht für Verbraucher
Sie haben das Recht, binnen vierzehn Tagen ohne Angabe von Gründen diesen Vertrag zu widerrufen. Die Widerrufsfrist beträgt vierzehn Tage ab dem Tag des Vertragsabschlusses.
Um Ihr Widerrufsrecht auszuüben, müssen Sie uns (Green-acres, Boulevard du Montparnasse 100, 75014 Paris, ., valentin.fontaine@green-acres.com) mittels einer eindeutigen Erklärung (z. B. ein mit der Post versandter Brief, Telefax oder E-Mail) über Ihren Entschluss, diesen Vertrag zu widerrufen, informieren. Sie können dafür das beigefügte Muster-Widerrufsformular verwenden, das jedoch nicht vorgeschrieben ist. Zur Wahrung der Widerrufsfrist reicht es aus, dass Sie die Mitteilung über die Ausübung des Widerrufsrechts vor Ablauf der Widerrufsfrist absenden.

Folgen des Widerrufs
Wenn Sie diesen Vertrag widerrufen, haben wir Ihnen alle Zahlungen, die wir von Ihnen erhalten haben, einschließlich der Lieferkosten (mit Ausnahme der zusätzlichen Kosten, die sich daraus ergeben, dass Sie eine andere Art der Lieferung als die von uns angebotene, günstigste Standardlieferung gewählt haben), unverzüglich und spätestens binnen vierzehn Tagen ab dem Tag zurückzuzahlen, an dem die Mitteilung über Ihren Widerruf dieses Vertrags bei uns eingegangen ist. Für diese Rückzahlung verwenden wir dasselbe Zahlungsmittel, das Sie bei der ursprünglichen Transaktion eingesetzt haben, es sei denn, mit Ihnen wurde ausdrücklich etwas anderes vereinbart; in keinem Fall werden Ihnen wegen dieser Rückzahlung Entgelte berechnet. Haben Sie verlangt, dass die Dienstleistungen während der Widerrufsfrist beginnen soll, so haben Sie uns einen angemessenen Betrag zu zahlen, der dem Anteil der bis zu dem Zeitpunkt, zu dem Sie uns von der Ausübung des Widerrufsrechts hinsichtlich dieses Vertrags unterrichten, bereits erbrachten Dienstleistungen im Vergleich zum Gesamtumfang der im Vertrag vorgesehenen Dienstleistungen entspricht.

Muster-Widerrufsformular
(Wenn Sie den Vertrag widerrufen wollen, dann füllen Sie dieses Formular aus und senden Sie es zurück.)

An Green-acres, Boulevard du Montparnasse 100, 75014 Paris, ., valentin.fontaine@green-acres.com

Hiermit widerrufe ich/wir den von mir/uns abgeschlossenen Vertrag über den Kauf der folgenden Waren /die Erbringung der folgenden Dienstleistung


Bestellt am /erhalten am

Name des/der Verbraucher(s)

Anschrift des/der Verbraucher(s)

Unterschrift des/der Verbraucher(s) (nur bei Mitteilung auf Papier)

Datum


( Unzutreffendes streichen )


Hinweis auf die Möglichkeit eines vorzeitigen Erlöschens des Widerrufsrechts

Ihr Widerrufsrecht erlischt, wenn wir unsere Leistung vollständig erbracht haben und mit der Ausführung der Leistung erst begonnen haben, nachdem Sie Ihre ausdrückliche Zustimmung gegeben haben und gleichzeitig Ihre Kenntnis davon bestätigt haben, dass Sie Ihr Widerrufsrecht bei vollständiger Vertragserfüllung durch uns verlieren.

Impressum
VERTRETUNGSBERECHTIGTE/R
Valentin Fontaine


Boulevard du Montparnasse 100
75014 Paris
FRA
Tel.: .
E-Mail: valentin.fontaine@green-acres.com
Homepage: https://www.green-acres.com
Anbieter kontaktieren

AGB, Datenschutz & Verbraucherhinweis wurden gelesen und akzeptiert.