Angebot 5080 von 18982

Anbieter kontaktieren

AGB, Datenschutz & Verbraucherhinweis wurden gelesen und akzeptiert.

Properstar SA

INMOVIVA7
  • Mehr erfahren
bellevue.de-ID: 30626979

Haus zu kaufen in Adeje, Spain

  • Haus
  • · 4 Zimmer
  • · 328 m² Wohnfläche
  • · 551 m² Grundstücksfläche
  • · 1.800.000 € Kaufpreis
Anbieter kontaktieren

Objektbeschreibung

Wir präsentieren diese atemberaubende brandneue freistehende Villa in der prestigeträchtigen Urbanization El Madroñal, Costa Adeje, einem der exklusivsten und begehrtesten Wohngebiete im Süden Teneriffas. Die ausgezeichnete Lage ermöglicht Ihnen Ruhe ...mehr lesen
Wir präsentieren diese atemberaubende brandneue freistehende Villa in der prestigeträchtigen Urbanization El Madroñal, Costa Adeje, einem der exklusivsten und begehrtesten Wohngebiete im Süden Teneriffas. Die ausgezeichnete Lage ermöglicht Ihnen Ruhe und Privatsphäre, da Sie nur wenige Minuten von der Costa Adeje International School, dem Gran Sur Einkaufszentrum entfernt sind und eine einfache Anbindung an die TF-1-Autobahn bieten.

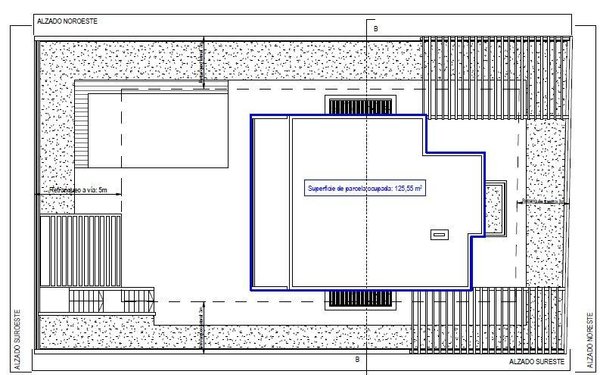
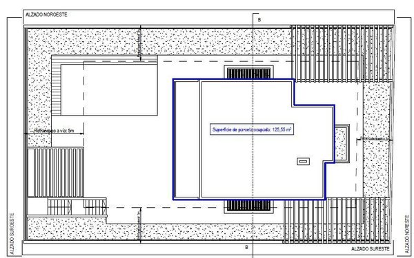
Das Grundstück befindet sich auf einem konsolidierten städtischen Grundstück von 551 m² und verfügt über eine ungefähr bebaute Fläche von 450 m², verteilt auf drei Etagen, die Geräumigkeit, Komfort und einen ausgezeichneten Zugang zu natürlichem Licht bietet.

Wohnungsverteilung

Erdgeschoss
Auf dieser Etage finden wir zwei geräumige Schlafzimmer, beide mit eigenen Badezimmern, großen Fenstern, die reichlich Tageslicht und Klimaanlage in jedem Zimmer bieten. Außerdem gibt es eine Garage mit Platz für 4–5 Fahrzeuge, einen Waschraum und einen Pool für Poolmaschinen.

Erster Stock
Geräumiges und helles Wohnzimmer mit direktem Zugang nach draußen, voll ausgestattete Küche und Gästetoilette.
Die großen Fenster verbinden mit einer prächtigen Terrasse, die das Haus vollständig umgibt, in der sich ein großes Solarium und ein privater Pool befinden, was einen idealen Raum schafft, um das privilegierte Klima der Insel zu genießen.

Zweiter Stock
Es gibt zwei zusätzliche Schlafzimmer, beide mit Klimaanlage und eigenem Bad, sowie große private Terrassen, von denen aus man einen Panoramablick genießen kann.

Komplett renovierte / brandneue Immobilie

Eine exklusive Immobilie, die modernes Design, Geräumigkeit und privilegierte Lage vereint, ideal sowohl als dauerhafter Wohnsitz als auch als Investition in einem der begehrtesten Gegenden im Süden Tenerfiskas. [IW]

Immobiliendetails

  • Nutzungsart
    Wohnen
  • Objektart
    Villa
  • Hauptobjektart
    Haus
  • Vertragsart
    Kauf
  • Zimmer (gesamt)
    4
  • Anzahl Schlafzimmer
    4
  • Anzahl Badezimmer
    4
  • Wohnfläche (ca.)
    328 m²
  • Grundstücksfläche (ca.)
    551 m²
  • Nutzfläche (ca.)
    328 m²
  • Anbieter-Objektnummer
    114528736

Preise & Kosten

  • Courtage
    Keine besondere Angabe.

Ausstattung

  • Klimanalage
  • Swimmingpool

Standort & Lage

38679 Costa Adeje · ESP

Die genaue Anschrift erfahren Sie vom Anbieter

Verbraucherhinweis

Widerrufsbelehrung des Anbieters

(Gilt nicht für Wohnraummiete in Deutschland)

Widerrufsrecht für Verbraucher
Sie haben das Recht, binnen vierzehn Tagen ohne Angabe von Gründen diesen Vertrag zu widerrufen. Die Widerrufsfrist beträgt vierzehn Tage ab dem Tag des Vertragsabschlusses.
Um Ihr Widerrufsrecht auszuüben, müssen Sie uns (ListGlobally SA, Rue Mercerie 12, 1003 Lausanne, +49 800 0010536, support@listglobally.com) mittels einer eindeutigen Erklärung (z. B. ein mit der Post versandter Brief, Telefax oder E-Mail) über Ihren Entschluss, diesen Vertrag zu widerrufen, informieren. Sie können dafür das beigefügte Muster-Widerrufsformular verwenden, das jedoch nicht vorgeschrieben ist. Zur Wahrung der Widerrufsfrist reicht es aus, dass Sie die Mitteilung über die Ausübung des Widerrufsrechts vor Ablauf der Widerrufsfrist absenden.

Folgen des Widerrufs
Wenn Sie diesen Vertrag widerrufen, haben wir Ihnen alle Zahlungen, die wir von Ihnen erhalten haben, einschließlich der Lieferkosten (mit Ausnahme der zusätzlichen Kosten, die sich daraus ergeben, dass Sie eine andere Art der Lieferung als die von uns angebotene, günstigste Standardlieferung gewählt haben), unverzüglich und spätestens binnen vierzehn Tagen ab dem Tag zurückzuzahlen, an dem die Mitteilung über Ihren Widerruf dieses Vertrags bei uns eingegangen ist. Für diese Rückzahlung verwenden wir dasselbe Zahlungsmittel, das Sie bei der ursprünglichen Transaktion eingesetzt haben, es sei denn, mit Ihnen wurde ausdrücklich etwas anderes vereinbart; in keinem Fall werden Ihnen wegen dieser Rückzahlung Entgelte berechnet. Haben Sie verlangt, dass die Dienstleistungen während der Widerrufsfrist beginnen soll, so haben Sie uns einen angemessenen Betrag zu zahlen, der dem Anteil der bis zu dem Zeitpunkt, zu dem Sie uns von der Ausübung des Widerrufsrechts hinsichtlich dieses Vertrags unterrichten, bereits erbrachten Dienstleistungen im Vergleich zum Gesamtumfang der im Vertrag vorgesehenen Dienstleistungen entspricht.

Muster-Widerrufsformular
(Wenn Sie den Vertrag widerrufen wollen, dann füllen Sie dieses Formular aus und senden Sie es zurück.)

An ListGlobally SA, Rue Mercerie 12, 1003 Lausanne, +49 800 0010536, support@listglobally.com

Hiermit widerrufe ich/wir den von mir/uns abgeschlossenen Vertrag über den Kauf der folgenden Waren /die Erbringung der folgenden Dienstleistung


Bestellt am /erhalten am

Name des/der Verbraucher(s)

Anschrift des/der Verbraucher(s)

Unterschrift des/der Verbraucher(s) (nur bei Mitteilung auf Papier)

Datum


( Unzutreffendes streichen )


Hinweis auf die Möglichkeit eines vorzeitigen Erlöschens des Widerrufsrechts

Ihr Widerrufsrecht erlischt, wenn wir unsere Leistung vollständig erbracht haben und mit der Ausführung der Leistung erst begonnen haben, nachdem Sie Ihre ausdrückliche Zustimmung gegeben haben und gleichzeitig Ihre Kenntnis davon bestätigt haben, dass Sie Ihr Widerrufsrecht bei vollständiger Vertragserfüllung durch uns verlieren.

Impressum ListGlobally SA
VERTRETUNGSBERECHTIGTE/R
Properstar SA


Rue Mercerie 12
1003 Lausanne
CHE
Tel.: +49 800 0010536
E-Mail: support@listglobally.com
Homepage: https://www.listglobally.com/
Anbieter kontaktieren

AGB, Datenschutz & Verbraucherhinweis wurden gelesen und akzeptiert.