Angebot 5400 von 18593

Anbieter kontaktieren

AGB, Datenschutz & Verbraucherhinweis wurden gelesen und akzeptiert.

HausHirsch GmbH

Laila Sari
40789 Monheim am Rhein
  • Mehr erfahren
bellevue.de-ID: 30624857

Designvilla mit Pool, Feldblick und Top-Ausstattung – Gewerbe möglich

  • Haus
  • · 11 Zimmer
  • · 300 m² Wohnfläche
  • · 825 m² Grundstücksfläche
  • · 2.900.000 € Kaufpreis
Anbieter kontaktieren

Objektbeschreibung

Diese moderne Designervilla in Leitershofen (Bestlage im Raum Augsburg) befindet sich in ruhiger Feldrandlage mit unverbaubarem Fernblick auf den Stadtberger Wald. Das von der Straße abseits gelegene Grundstück bietet maximale Privatsphäre.
Der ...mehr lesen
Diese moderne Designervilla in Leitershofen (Bestlage im Raum Augsburg) befindet sich in ruhiger Feldrandlage mit unverbaubarem Fernblick auf den Stadtberger Wald. Das von der Straße abseits gelegene Grundstück bietet maximale Privatsphäre.
Der liebevoll angelegte Wohngarten mit drei großen, überdachten Terrassen (Ost, Süd, West) lädt zu jeder Tageszeit zum Verweilen ein. Morgens genießen Sie Ihr Frühstück auf der 7 m breiten Ostterrasse, abends den Sonnenuntergang auf der 10 m breiten Westterrasse.
Der 5 x 8 m große, 1,50 m tiefe Außenpool mit römischer Treppe, elektrischer Abdeckung, automatischer Chlorung und eigener Wärmepumpe wurde vor drei Jahren vom Fachbetrieb errichtet (beige Folienbeschichtung der Marke Desjoyaux, türkisfarbenes Wasser). Eine überdachte Poolbar mit goldmosaikgefliester Theke, Pizzaholzofen sowie ein Teich mit Brunnen runden das Außenkonzept ab.
Im Winter sorgt ein hochwertiger Kamingrundofen mit beidseitigem Blick für gemütliche Atmosphäre. Die Wohnräume überzeugen mit teils weißen Holzvertäfelungen, exklusiven Designertapeten, apricotfarbenem Esszimmer mit Poolblick, Rundbogenfenstern im Wohnzimmer sowie hochwertiger Küche mit schwarzen Metrofliesen und beleuchtetem Lichtband. Ein separater TV-Raum mit 65-Zoll-Flatscreen ist ebenfalls vorhanden.
Das Obergeschoss unter offenem Dach bietet hohe Räume, einen separaten Kinderbereich mit Aufenthaltsraum sowie eine eigene Elternseite mit Schlafzimmer, Whirlpoolbad, separatem WC, Umkleide- und Fitnesszimmer.
Das Haus wurde 2023/2024 neu gestylt und eingerichtet.
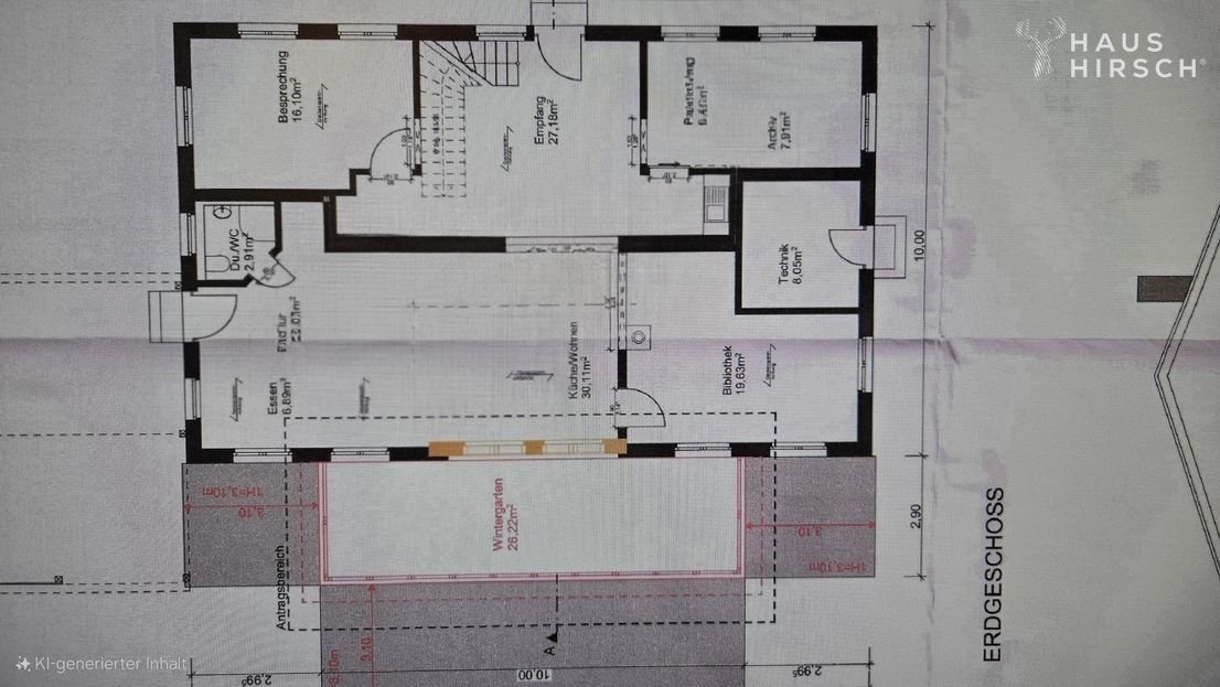
Erweiterung: Genehmigter Wintergarten (26 m², 10 m breit, 3 m tief) zur Westseite möglich.
Gewerbliche Nutzung bis zu 49 % gemäß Bebauungsplan zulässig (vormals Kanzlei; Trennung ohne großen Aufwand wiederherstellbar).

Immobiliendetails

  • Nutzungsart
    Wohnen
  • Objektart
    Villa
  • Hauptobjektart
    Haus
  • Vertragsart
    Kauf
  • Objektzustand
    Neuwertig
  • Baujahr
    2016
  • Zimmer (gesamt)
    11
  • Anzahl Schlafzimmer
    7
  • Anzahl Badezimmer
    3
  • Anzahl Parkflächen
    2
  • Wohnfläche (ca.)
    300 m²
  • Gesamtfläche (ca.)
    300 m²
  • Grundstücksfläche (ca.)
    825 m²
  • Küche
    Einbauküche (EBK)
  • Bad
    Duschbad, Bad mit Dusche und Badewanne, Bad mit Fenster
  • Stellplatzart
    Carport
  • Anzahl Etagen
    2
  • Ausstattungskategorie
    Luxus
  • Letzte Modernisierung
    2026
  • Anbieter-Objektnummer
    HA2531611

Preise & Kosten

  • Courtage
    Die angegebene Käuferprovision (inkl. MwSt.) ist verdient und fällig mit Beurkundung des notariellen Kaufvertrages.

    2,38 % inklusive der gesetzlichen Mehrwertsteuer

Energie

  • Energieausweis
    Energiebedarfsausweis
  • Energieverbrauch für Warmwasser
    nicht enthalten
  • Energieeffizienzklasse
    A
  • Wesentlicher Energieträger
    STROM
  • Ausgestellt
    nach dem 1.5.2014

Ausstattung

  • Kamin
  • Gäste-WC
  • Swimmingpool
  • Garten
KfW-55-Haus in Holzständerbauweise
2 Vollgeschosse, 25° Giebeldach
EG Raumhöhe 2,70 m, OG offen bis Dach
10.000 kWp Photovoltaikanlage (Hausstrom & Heizung)
Vaillant Wärmepumpe mit Kühlfunktion
Neuer Kompressor & Wärmetauscher mit Garantie
Zentralheizung ...mehr lesen
KfW-55-Haus in Holzständerbauweise
2 Vollgeschosse, 25° Giebeldach
EG Raumhöhe 2,70 m, OG offen bis Dach
10.000 kWp Photovoltaikanlage (Hausstrom & Heizung)
Vaillant Wärmepumpe mit Kühlfunktion
Neuer Kompressor & Wärmetauscher mit Garantie
Zentralheizung mit Fußbodenheizung & Fußbodenkühlung
Lüftungsanlage mit Wärmerückgewinnung
Wasserenthärtungsanlage
3-fach verglaste, bodentiefe Fenster
Antikmarmor in den Bädern
Hochwertige Zementfliesen („Via Fliese“) im EG
Whirlpoolwanne
Gäste-WC, Duschbad, Vollbad
Versteckte Abstellräume im EG und OG
Netzwerkanschlüsse zentral
Technik jährlich gewartet
Optional möbliert inkl. Elektrogeräte (TVs, Bose Soundsystem, ECM Espressomaschine etc.) erwerbbar.

Standort & Lage

Leitershofen zählt zu den begehrtesten Wohnlagen im Raum Augsburg. Der Dorfkern bietet Pizzeria, Metzger, Feinkost, mehrere Bäcker mit Café, Bioladen, Schneiderei, Post, Friseur und Apotheke.
Freizeitmöglichkeiten wie Freibad, Sporthalle, Tennisplätze ...mehr lesen
Leitershofen zählt zu den begehrtesten Wohnlagen im Raum Augsburg. Der Dorfkern bietet Pizzeria, Metzger, Feinkost, mehrere Bäcker mit Café, Bioladen, Schneiderei, Post, Friseur und Apotheke.
Freizeitmöglichkeiten wie Freibad, Sporthalle, Tennisplätze sowie die Westlichen Wälder befinden sich in unmittelbarer Nähe.
Die Augsburger Innenstadt ist mit Bus und Straßenbahn in ca. 15 Minuten, mit dem Auto in ca. 10 Minuten erreichbar. Über die nahegelegene B17 besteht schnelle Anbindung an die A8.
Infrastruktur im Umkreis von 5 km: Apotheke, Lebensmittel-Discount, Allgemeinmediziner, Kindergarten, Grundschule, öffentliche Verkehrsmittel.

86391 Stadtbergen · Bayern · DEU

Die genaue Anschrift erfahren Sie vom Anbieter

Sonstiges

Sämtliche Angaben in diesem Exposé beruhen auf den Informationen des Verkäufers bzw. Dritter. Trotz sorgfältiger Prüfung kann keine Gewähr für die Richtigkeit, Vollständigkeit oder Aktualität übernommen werden. Verbindlich sind allein die ...mehr lesen
Sämtliche Angaben in diesem Exposé beruhen auf den Informationen des Verkäufers bzw. Dritter. Trotz sorgfältiger Prüfung kann keine Gewähr für die Richtigkeit, Vollständigkeit oder Aktualität übernommen werden. Verbindlich sind allein die Vereinbarungen im notariellen Kaufvertrag.

Zur optimalen Präsentation können einzelne Bilder digital und teilweise KI-gestützt optimiert worden sein. Maßgeblich ist der tatsächliche Zustand vor Ort.

Ansprechpartner

Verbraucherhinweis

Widerrufsbelehrung des Anbieters

(Gilt nicht für Wohnraummiete in Deutschland)

Widerrufsrecht für Verbraucher
Sie haben das Recht, binnen vierzehn Tagen ohne Angabe von Gründen diesen Vertrag zu widerrufen. Die Widerrufsfrist beträgt vierzehn Tage ab dem Tag des Vertragsabschlusses.
Um Ihr Widerrufsrecht auszuüben, müssen Sie uns (HausHirsch GmbH, Dreischeibenhaus 1, 40211D Düsseldorf, +49 0 800 000 1244, +49 211 8825025, info@haushirsch.de) mittels einer eindeutigen Erklärung (z. B. ein mit der Post versandter Brief, Telefax oder E-Mail) über Ihren Entschluss, diesen Vertrag zu widerrufen, informieren. Sie können dafür das beigefügte Muster-Widerrufsformular verwenden, das jedoch nicht vorgeschrieben ist. Zur Wahrung der Widerrufsfrist reicht es aus, dass Sie die Mitteilung über die Ausübung des Widerrufsrechts vor Ablauf der Widerrufsfrist absenden.

Folgen des Widerrufs
Wenn Sie diesen Vertrag widerrufen, haben wir Ihnen alle Zahlungen, die wir von Ihnen erhalten haben, einschließlich der Lieferkosten (mit Ausnahme der zusätzlichen Kosten, die sich daraus ergeben, dass Sie eine andere Art der Lieferung als die von uns angebotene, günstigste Standardlieferung gewählt haben), unverzüglich und spätestens binnen vierzehn Tagen ab dem Tag zurückzuzahlen, an dem die Mitteilung über Ihren Widerruf dieses Vertrags bei uns eingegangen ist. Für diese Rückzahlung verwenden wir dasselbe Zahlungsmittel, das Sie bei der ursprünglichen Transaktion eingesetzt haben, es sei denn, mit Ihnen wurde ausdrücklich etwas anderes vereinbart; in keinem Fall werden Ihnen wegen dieser Rückzahlung Entgelte berechnet. Haben Sie verlangt, dass die Dienstleistungen während der Widerrufsfrist beginnen soll, so haben Sie uns einen angemessenen Betrag zu zahlen, der dem Anteil der bis zu dem Zeitpunkt, zu dem Sie uns von der Ausübung des Widerrufsrechts hinsichtlich dieses Vertrags unterrichten, bereits erbrachten Dienstleistungen im Vergleich zum Gesamtumfang der im Vertrag vorgesehenen Dienstleistungen entspricht.

Muster-Widerrufsformular
(Wenn Sie den Vertrag widerrufen wollen, dann füllen Sie dieses Formular aus und senden Sie es zurück.)

An HausHirsch GmbH, Dreischeibenhaus 1, 40211D Düsseldorf, +49 0 800 000 1244, +49 211 8825025, info@haushirsch.de

Hiermit widerrufe ich/wir den von mir/uns abgeschlossenen Vertrag über den Kauf der folgenden Waren /die Erbringung der folgenden Dienstleistung


Bestellt am /erhalten am

Name des/der Verbraucher(s)

Anschrift des/der Verbraucher(s)

Unterschrift des/der Verbraucher(s) (nur bei Mitteilung auf Papier)

Datum


( Unzutreffendes streichen )


Hinweis auf die Möglichkeit eines vorzeitigen Erlöschens des Widerrufsrechts

Ihr Widerrufsrecht erlischt, wenn wir unsere Leistung vollständig erbracht haben und mit der Ausführung der Leistung erst begonnen haben, nachdem Sie Ihre ausdrückliche Zustimmung gegeben haben und gleichzeitig Ihre Kenntnis davon bestätigt haben, dass Sie Ihr Widerrufsrecht bei vollständiger Vertragserfüllung durch uns verlieren.

Impressum HausHirsch GmbH
VERTRETUNGSBERECHTIGTE/R
Marius Wolf


Dreischeibenhaus 1
40211D Düsseldorf
DEU
Tel.: +49 0 800 000 1244
E-Mail: info@haushirsch.de
Fax: +49 211 8825025
Homepage: https://haushirsch.de

ZUSTÄNDIGE AUFSICHTSBEHÖRDE
Die Gewerbeanmeldung nach § 34 c GewO wurde durch Stadt Düsseldorf (www.duesseldorf.de) erteilt.

HANDELSREGISTER-EINTRAG
Amtsgericht Düsseldorf, HRB 99093


UST-ID-NUMMER
DE362155160
Anbieter kontaktieren

AGB, Datenschutz & Verbraucherhinweis wurden gelesen und akzeptiert.