Angebot 9699 von 21495

Anbieter kontaktieren

AGB, Datenschutz & Verbraucherhinweis wurden gelesen und akzeptiert.

HausHirsch GmbH

Mario Costa
Downtown, Dubai
  • Mehr erfahren
bellevue.de-ID: 30621953

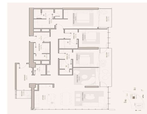
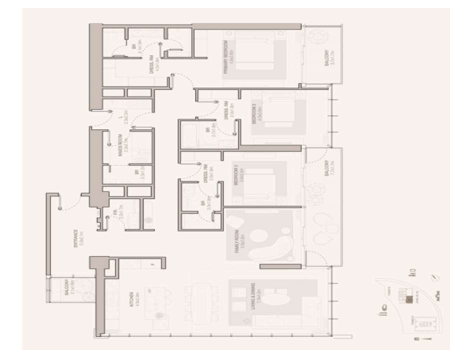
Stilvolle Drei-Zimmer-Wohnung mit modernem Design

  • Wohnung
  • · 4 Zimmer
  • · 238 m² Wohnfläche
  • · 4.775.000 € Kaufpreis
Anbieter kontaktieren

Objektbeschreibung

Willkommen in einem atemberaubenden Drei-Zimmer-Wohnung in einer erstaunlichen Gemeinschaft, ideal für Familien und Investoren gleichermaßen befindet. Diese schöne Eigenschaft verfügt über einen geräumigen Wohnbereich, moderne Küche mit ...mehr lesen
Willkommen in einem atemberaubenden Drei-Zimmer-Wohnung in einer erstaunlichen Gemeinschaft, ideal für Familien und Investoren gleichermaßen befindet. Diese schöne Eigenschaft verfügt über einen geräumigen Wohnbereich, moderne Küche mit Edelstahlgeräten und drei komfortable Schlafzimmer. Die Gemeinde bietet fantastische Annehmlichkeiten wie einen Swimmingpool, ein Fitnesscenter und einen Spielplatz, was sie ideal für Familien mit Kindern macht. Auch Investoren werden die potenziellen Mieteinnahmen an einem so begehrten Standort zu schätzen wissen. Lassen Sie sich die Gelegenheit nicht entgehen, diese außergewöhnliche Immobilie in einer lebendigen und einladenden Gemeinde zu besitzen.

Immobiliendetails

  • Nutzungsart
    Wohnen
  • Objektart
    Etagenwohnung
  • Hauptobjektart
    Wohnung
  • Vertragsart
    Kauf
  • Objektzustand
    Erstbezug
  • Zimmer (gesamt)
    4
  • Anzahl Schlafzimmer
    3
  • Anzahl Badezimmer
    3
  • Wohnfläche (ca.)
    237,55 m²
  • Nutzfläche (ca.)
    213,67 m²
  • Küche
    Einbauküche (EBK)
  • Balkon
    1
  • Denkmalschutzobjekt
  • Balkon/Terrasse (ca.)
    23,87 m²
  • Bad
    Duschbad, Bidet
  • Ausstattungskategorie
    Gehoben
  • Als Ferienobjekt nutzbar
  • Anbieter-Objektnummer
    Jumeirah Residences Emirates Tower 3BHK APT-DV-9660

Preise & Kosten

  • Courtage
    Provisionsfrei

Energie

  • Gebäudeart
    Wohngebäude

Ausstattung

  • Klimanalage
  • Garten
Willkommen in den Jumeirah Residences Emirates Towers by Meraas in Dubai, wo luxuriöses Wohnen auf unvergleichlichen Komfort trifft. Treten Sie ein in dieses Apartment mit drei Schlafzimmern und tauchen Sie ein in die Welt der Raffinesse und Eleganz. ...mehr lesen
Willkommen in den Jumeirah Residences Emirates Towers by Meraas in Dubai, wo luxuriöses Wohnen auf unvergleichlichen Komfort trifft. Treten Sie ein in dieses Apartment mit drei Schlafzimmern und tauchen Sie ein in die Welt der Raffinesse und Eleganz. Beim Betreten der Wohnung werden Sie von einem großzügigen Wohnbereich begrüßt, der sich perfekt für die Unterhaltung von Gästen oder zum Entspannen mit der Familie eignet. Die raumhohen Fenster bieten einen atemberaubenden Blick auf das ikonische Museum der Zukunft und schaffen eine ruhige und friedliche Atmosphäre. Die hochwertigen Annehmlichkeiten der Jumeirah Residences Emirates Towers sind so konzipiert, dass sie Ihr Wohnerlebnis aufwerten. Stellen Sie sich vor, Sie entspannen am Infinity Sky Pool nur für Erwachsene, genießen die Sonne und den Panoramablick auf die Skyline der Stadt. Für Erholungssuchende bietet der Wellness-Club mit einem Spa eine Reihe von verjüngenden Behandlungen und Dienstleistungen. Bleiben Sie aktiv und fit im hochmodernen Fitnessstudio, im Yoga- und Spinning-Studio oder spielen Sie eine Partie Padel auf dem Tennisplatz. Nach dem Training können Sie sich im Privatkino oder im Spielzimmer entspannen oder einen gemütlichen Spaziergang durch die wunderschön angelegten Gärten unternehmen. Für Liebhaber der gehobenen Küche bietet das exklusive Restaurant und die privaten Speisemöglichkeiten einen wahren Gaumenschmaus. Müssen Sie Ihre Arbeit nachholen? In der Co-Working-Lounge können Sie in einem stilvollen und komfortablen Ambiente produktiv bleiben. Der Concierge-Service der Jumeirah Residences Emirates Towers ist auf Ihre Bedürfnisse zugeschnitten. Vom 24/7-Sicherheitsdienst und Parkservice bis hin zum Wäsche- und Haushaltsservice wird auf jedes Detail geachtet, um ein nahtloses Wohnerlebnis zu gewährleisten.\n\nErleben Sie das Konzept der "Stadt in der Stadt" in den Jumeirah Residences Emirates Towers, wo Luxus, Komfort und Raffinesse in perfekter Harmonie zusammenkommen. Verpassen Sie nicht die Gelegenheit, ein Stück Paradies im Herzen von Dubai zu besitzen.

Standort & Lage

Mitten im Herzen der Stadt gelegen, bietet diese erstklassige Lage unvergleichlichen Komfort und Zugänglichkeit. Nur einen kurzen Spaziergang vom pulsierenden Stadtzentrum entfernt, finden Sie eine Reihe von Einkaufs-, Essens- und ...mehr lesen
Mitten im Herzen der Stadt gelegen, bietet diese erstklassige Lage unvergleichlichen Komfort und Zugänglichkeit. Nur einen kurzen Spaziergang vom pulsierenden Stadtzentrum entfernt, finden Sie eine Reihe von Einkaufs-, Essens- und Unterhaltungsmöglichkeiten direkt vor Ihrer Haustür. Die Nachbarschaft ist bekannt für ihre Sicherheit, ihren Charme und ihren Gemeinschaftsgeist, was sie zu einem idealen Ort für Ihr Zuhause macht. Dank der guten Anbindung an die wichtigsten Autobahnen und öffentlichen Verkehrsmittel ist das Pendeln ein Kinderspiel, egal ob Sie zur Arbeit fahren oder die Stadt erkunden möchten. Genießen Sie das Beste des städtischen Lebens mit malerischen Parks, erstklassigen Schulen und einer florierenden lokalen Wirtschaft, die alle in Reichweite liegen. Dies ist mehr als nur eine Adresse, es ist ein Lebensstil, der darauf wartet, von Ihnen angenommen zu werden.

Sheikh Zayed Road 95 · Dubai · ARE

Ansprechpartner

Verbraucherhinweis

Widerrufsbelehrung des Anbieters

(Gilt nicht für Wohnraummiete in Deutschland)

Widerrufsrecht für Verbraucher
Sie haben das Recht, binnen vierzehn Tagen ohne Angabe von Gründen diesen Vertrag zu widerrufen. Die Widerrufsfrist beträgt vierzehn Tage ab dem Tag des Vertragsabschlusses.
Um Ihr Widerrufsrecht auszuüben, müssen Sie uns (HausHirsch GmbH, Dreischeibenhaus 1, 40211D Düsseldorf, +49 0 800 000 1244, +49 211 8825025, info@haushirsch.de) mittels einer eindeutigen Erklärung (z. B. ein mit der Post versandter Brief, Telefax oder E-Mail) über Ihren Entschluss, diesen Vertrag zu widerrufen, informieren. Sie können dafür das beigefügte Muster-Widerrufsformular verwenden, das jedoch nicht vorgeschrieben ist. Zur Wahrung der Widerrufsfrist reicht es aus, dass Sie die Mitteilung über die Ausübung des Widerrufsrechts vor Ablauf der Widerrufsfrist absenden.

Folgen des Widerrufs
Wenn Sie diesen Vertrag widerrufen, haben wir Ihnen alle Zahlungen, die wir von Ihnen erhalten haben, einschließlich der Lieferkosten (mit Ausnahme der zusätzlichen Kosten, die sich daraus ergeben, dass Sie eine andere Art der Lieferung als die von uns angebotene, günstigste Standardlieferung gewählt haben), unverzüglich und spätestens binnen vierzehn Tagen ab dem Tag zurückzuzahlen, an dem die Mitteilung über Ihren Widerruf dieses Vertrags bei uns eingegangen ist. Für diese Rückzahlung verwenden wir dasselbe Zahlungsmittel, das Sie bei der ursprünglichen Transaktion eingesetzt haben, es sei denn, mit Ihnen wurde ausdrücklich etwas anderes vereinbart; in keinem Fall werden Ihnen wegen dieser Rückzahlung Entgelte berechnet. Haben Sie verlangt, dass die Dienstleistungen während der Widerrufsfrist beginnen soll, so haben Sie uns einen angemessenen Betrag zu zahlen, der dem Anteil der bis zu dem Zeitpunkt, zu dem Sie uns von der Ausübung des Widerrufsrechts hinsichtlich dieses Vertrags unterrichten, bereits erbrachten Dienstleistungen im Vergleich zum Gesamtumfang der im Vertrag vorgesehenen Dienstleistungen entspricht.

Muster-Widerrufsformular
(Wenn Sie den Vertrag widerrufen wollen, dann füllen Sie dieses Formular aus und senden Sie es zurück.)

An HausHirsch GmbH, Dreischeibenhaus 1, 40211D Düsseldorf, +49 0 800 000 1244, +49 211 8825025, info@haushirsch.de

Hiermit widerrufe ich/wir den von mir/uns abgeschlossenen Vertrag über den Kauf der folgenden Waren /die Erbringung der folgenden Dienstleistung


Bestellt am /erhalten am

Name des/der Verbraucher(s)

Anschrift des/der Verbraucher(s)

Unterschrift des/der Verbraucher(s) (nur bei Mitteilung auf Papier)

Datum


( Unzutreffendes streichen )


Hinweis auf die Möglichkeit eines vorzeitigen Erlöschens des Widerrufsrechts

Ihr Widerrufsrecht erlischt, wenn wir unsere Leistung vollständig erbracht haben und mit der Ausführung der Leistung erst begonnen haben, nachdem Sie Ihre ausdrückliche Zustimmung gegeben haben und gleichzeitig Ihre Kenntnis davon bestätigt haben, dass Sie Ihr Widerrufsrecht bei vollständiger Vertragserfüllung durch uns verlieren.

Impressum HausHirsch GmbH
VERTRETUNGSBERECHTIGTE/R
Marius Wolf


Dreischeibenhaus 1
40211D Düsseldorf
DEU
Tel.: +49 0 800 000 1244
E-Mail: info@haushirsch.de
Fax: +49 211 8825025
Homepage: https://haushirsch.de

ZUSTÄNDIGE AUFSICHTSBEHÖRDE
Die Gewerbeanmeldung nach § 34 c GewO wurde durch Stadt Düsseldorf (www.duesseldorf.de) erteilt.

HANDELSREGISTER-EINTRAG
Amtsgericht Düsseldorf, HRB 99093


UST-ID-NUMMER
DE362155160
Anbieter kontaktieren

AGB, Datenschutz & Verbraucherhinweis wurden gelesen und akzeptiert.