Anbieter kontaktieren
Schmidbauer Immobilien Kreta
Oskar Josef Schmidbauer
84100 Niederaichbach
- Mehr erfahren
bellevue.de-ID: 30621945
Kreta, Litsarda: Neubau-Projekt! Villa mit Meerblick zu verkaufen
- Haus
- · 3 Zimmer
- · 108 m² Wohnfläche
- · 1.000 m² Grundstücksfläche
- · 445.000 € Kaufpreis
Objektbeschreibung
Diese zweistöckige Villa steht in Litsarda, Apokoronas, Chania, in einer kleinen, gepflegten Anlage zum Verkauf. Mit einer Baugenehmigung für 108 m² Wohnfläche auf einem 1.000 m² großen Privatgrundstück fügt sich das moderne Design harmonisch in die
...mehr lesen
Diese zweistöckige Villa steht in Litsarda, Apokoronas, Chania, in einer kleinen, gepflegten Anlage zum Verkauf. Mit einer Baugenehmigung für 108 m² Wohnfläche auf einem 1.000 m² großen Privatgrundstück fügt sich das moderne Design harmonisch in die Landschaft ein und umfasst einen privaten Swimmingpool sowie einen pflegeleichten Garten.
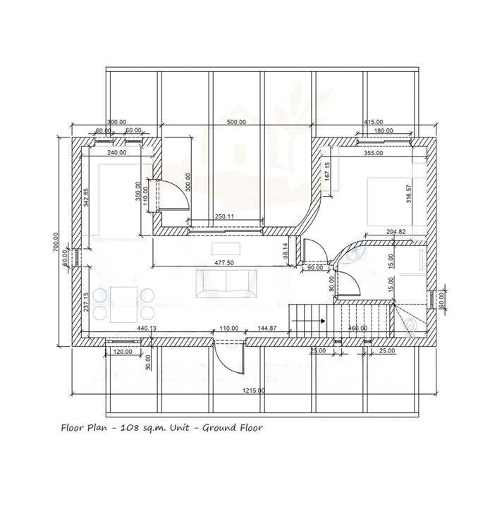
Das Erdgeschoss bietet einen offenen Wohn-, Ess- und Küchenbereich mit großen Türen, die sich zum Garten und Poolbereich öffnen. Dieser ist mit einer Außendusche, Sonnenliegen und einer Pergola für Mahlzeiten im Freien ausgestattet. Ein Doppelzimmer und ein Badezimmer vervollständigen diese Etage.
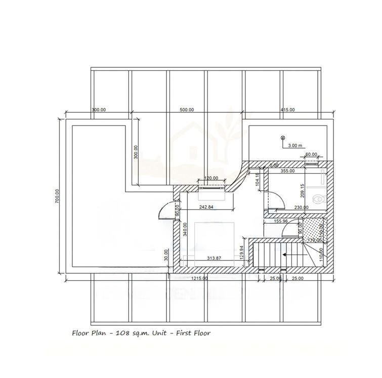
Im Obergeschoss befindet sich das Hauptschlafzimmer mit einer privaten Terrasse und Panoramablick auf die Berge und das Meer sowie einem zweiten Badezimmer.
Die Zufahrt erfolgt über eine Privatstraße, die zum Innenhof führt; für die Bewohner stehen ausgewiesene Parkplätze zur Verfügung.
Diese Villa ist ideal für alle, die eine hochwertige Immobilie in ruhiger, authentischer Umgebung suchen. Litsarda ist ein charmantes Dorf mit Steinhäusern, üppiger Vegetation und nahegelegenen Tavernen und Cafés – die perfekte Balance aus Privatsphäre, Naturschönheit und Komfort.
Das Erdgeschoss bietet einen offenen Wohn-, Ess- und Küchenbereich mit großen Türen, die sich zum Garten und Poolbereich öffnen. Dieser ist mit einer Außendusche, Sonnenliegen und einer Pergola für Mahlzeiten im Freien ausgestattet. Ein Doppelzimmer und ein Badezimmer vervollständigen diese Etage.
Im Obergeschoss befindet sich das Hauptschlafzimmer mit einer privaten Terrasse und Panoramablick auf die Berge und das Meer sowie einem zweiten Badezimmer.
Die Zufahrt erfolgt über eine Privatstraße, die zum Innenhof führt; für die Bewohner stehen ausgewiesene Parkplätze zur Verfügung.
Diese Villa ist ideal für alle, die eine hochwertige Immobilie in ruhiger, authentischer Umgebung suchen. Litsarda ist ein charmantes Dorf mit Steinhäusern, üppiger Vegetation und nahegelegenen Tavernen und Cafés – die perfekte Balance aus Privatsphäre, Naturschönheit und Komfort.
Immobiliendetails
-
NutzungsartWohnen
-
HauptobjektartHaus
-
VertragsartKauf
-
Zimmer (gesamt)3
-
Anzahl Schlafzimmer2
-
Anzahl Badezimmer2
-
Wohnfläche (ca.)108 m²
-
Grundstücksfläche (ca.)1.000 m²
-
KücheEinbauküche (EBK), 1
-
BadDuschbad, Bad mit Fenster
-
StellplatzartFreiplatz
-
Anzahl Etagen2
-
DachformFlachdach
-
AusblickMeer
-
Anbieter-ObjektnummerL-KH380h
Preise & Kosten
-
Courtage3,72 % inklusive der gesetzlichen Mehrwertsteuer
Energie
-
EnergieausweisEnergiebedarfsausweis
-
EnergieeffizienzklasseB
-
Ausgestelltohne / nicht vorhanden
Ausstattung
- Klimanalage
- Swimmingpool
- Garten
Standort & Lage
? Litsarda – Charmantes Dorf im Herzen des Apokoronas (PLZ 730 08)
Litsarda ist ein malerisches, traditionelles Dorf in der Präfektur Chania, eingebettet in die sanfte Hügellandschaft des begehrten Apokoronas. Auf einer leichten Anhöhe gelegen, bietet ...mehr lesen
Litsarda ist ein malerisches, traditionelles Dorf in der Präfektur Chania, eingebettet in die sanfte Hügellandschaft des begehrten Apokoronas. Auf einer leichten Anhöhe gelegen, bietet ...mehr lesen
? Litsarda – Charmantes Dorf im Herzen des Apokoronas (PLZ 730 08)
Litsarda ist ein malerisches, traditionelles Dorf in der Präfektur Chania, eingebettet in die sanfte Hügellandschaft des begehrten Apokoronas. Auf einer leichten Anhöhe gelegen, bietet der Ort oft spektakuläre Panoramablicke auf die Bucht von Souda und die majestätischen Weißen Berge (Lefka Ori). Umgeben von dichten Olivenhainen und gepflegten Weingärten, verkörpert Litsarda das ländliche und authentische Kreta. Es ist die ideale Wahl für Menschen, die eine ruhige, naturnahe Umgebung suchen, ohne auf die Nähe zu charmanten Küstenorten und der lebendigen Stadt Chania verzichten zu wollen.
? Charakter & Lebensgefühl
In Litsarda hat sich ein ursprünglicher und friedvoller Charakter bewahrt, der durch die traditionelle kretische Architektur und die verwinkelten Gassen unterstrichen wird. Das Dorfleben ist entspannt und zeichnet sich durch eine angenehme Mischung aus einheimischer Herzlichkeit und einer freundlichen, internationalen Gemeinschaft aus. Diese harmonische Atmosphäre macht den Ort besonders attraktiv für Menschen, die Entschleunigung suchen und gleichzeitig ein offenes, nachbarschaftliches Umfeld schätzen.
? Lage
Durch seine zentrale Position innerhalb des Apokoronas sind alle Annehmlichkeiten der Region schnell erreichbar. Die erhöhte Lage sorgt zudem für ein gesundes, mildes Klima und frische Luft, selbst in den warmen Sommermonaten.
? Entfernungen
Vryses (Zentrum): 4,3 km | 9 Min.
Almyrida (Zentrum): 6,7 km | 14 Min.
Chania (Zentrum): 30,5 km | 38 Min.
Flughafen Chania (CHQ): 36,9 km | 45 Min.
Flughafen Kastelli: 146,0 km | 2 Std. 8 Min.
? Natur & Ausflugsziele
Die Umgebung von Litsarda ist ein Eldorado für Natur- und Freizeitliebhaber. Die beliebten Sandstrände von Almyrida, Kalyves und Georgioupolis liegen nur eine kurze Autofahrt entfernt und bieten kristallklares Wasser für perfekte Badetage. Die grüne Natur des Apokoronas lädt zu ausgiebigen Wanderungen und Radtouren ein, während die historischen Städte Chania und Rethymno mit ihren venezianischen Häfen kulturelle Highlights und erstklassige Gastronomie bieten.
? Immobilienmarkt
Der Immobilienmarkt in Litsarda gilt als besonders exklusiv und wertstabil. Das Angebot reicht von historischen Steinhäusern mit großem Renovierungspotenzial bis hin zu hochwertigen modernen Villen, die oft über einen privaten Pool und weite Ausblicke verfügen. Auch attraktive Baugrundstücke in Panoramalage sind hier zu finden. Dank der exzellenten Anbindung und der hohen Lebensqualität bietet dieser Standort ein hervorragendes Potenzial für einen dauerhaften Wohnsitz oder ein gehobenes Ferienhaus. Als Ihr ausschließlich auf Kreta spezialisierter Immobilienmakler ist Schmidbauer Immobilien Kreta Ihr Partner für den Erwerb Ihrer Traumimmobilie in dieser begehrten Region.
https://www.youtube.com/watch?v=_ahUsQ9fDX4
Litsarda - Chania - Kreta - von oben - 4K Drohnenvideo
Litsarda ist ein malerisches, traditionelles Dorf in der Präfektur Chania, eingebettet in die sanfte Hügellandschaft des begehrten Apokoronas. Auf einer leichten Anhöhe gelegen, bietet der Ort oft spektakuläre Panoramablicke auf die Bucht von Souda und die majestätischen Weißen Berge (Lefka Ori). Umgeben von dichten Olivenhainen und gepflegten Weingärten, verkörpert Litsarda das ländliche und authentische Kreta. Es ist die ideale Wahl für Menschen, die eine ruhige, naturnahe Umgebung suchen, ohne auf die Nähe zu charmanten Küstenorten und der lebendigen Stadt Chania verzichten zu wollen.
? Charakter & Lebensgefühl
In Litsarda hat sich ein ursprünglicher und friedvoller Charakter bewahrt, der durch die traditionelle kretische Architektur und die verwinkelten Gassen unterstrichen wird. Das Dorfleben ist entspannt und zeichnet sich durch eine angenehme Mischung aus einheimischer Herzlichkeit und einer freundlichen, internationalen Gemeinschaft aus. Diese harmonische Atmosphäre macht den Ort besonders attraktiv für Menschen, die Entschleunigung suchen und gleichzeitig ein offenes, nachbarschaftliches Umfeld schätzen.
? Lage
Durch seine zentrale Position innerhalb des Apokoronas sind alle Annehmlichkeiten der Region schnell erreichbar. Die erhöhte Lage sorgt zudem für ein gesundes, mildes Klima und frische Luft, selbst in den warmen Sommermonaten.
? Entfernungen
Vryses (Zentrum): 4,3 km | 9 Min.
Almyrida (Zentrum): 6,7 km | 14 Min.
Chania (Zentrum): 30,5 km | 38 Min.
Flughafen Chania (CHQ): 36,9 km | 45 Min.
Flughafen Kastelli: 146,0 km | 2 Std. 8 Min.
? Natur & Ausflugsziele
Die Umgebung von Litsarda ist ein Eldorado für Natur- und Freizeitliebhaber. Die beliebten Sandstrände von Almyrida, Kalyves und Georgioupolis liegen nur eine kurze Autofahrt entfernt und bieten kristallklares Wasser für perfekte Badetage. Die grüne Natur des Apokoronas lädt zu ausgiebigen Wanderungen und Radtouren ein, während die historischen Städte Chania und Rethymno mit ihren venezianischen Häfen kulturelle Highlights und erstklassige Gastronomie bieten.
? Immobilienmarkt
Der Immobilienmarkt in Litsarda gilt als besonders exklusiv und wertstabil. Das Angebot reicht von historischen Steinhäusern mit großem Renovierungspotenzial bis hin zu hochwertigen modernen Villen, die oft über einen privaten Pool und weite Ausblicke verfügen. Auch attraktive Baugrundstücke in Panoramalage sind hier zu finden. Dank der exzellenten Anbindung und der hohen Lebensqualität bietet dieser Standort ein hervorragendes Potenzial für einen dauerhaften Wohnsitz oder ein gehobenes Ferienhaus. Als Ihr ausschließlich auf Kreta spezialisierter Immobilienmakler ist Schmidbauer Immobilien Kreta Ihr Partner für den Erwerb Ihrer Traumimmobilie in dieser begehrten Region.
https://www.youtube.com/watch?v=_ahUsQ9fDX4
Litsarda - Chania - Kreta - von oben - 4K Drohnenvideo
Sonstiges
Wir sind deutsche Immobilienmakler und haben uns spezialisiert auf Immobilien aus Kreta. Neben der Suche nach geeigneten Immobilien auf Kreta für Sie, gehört auch das Organisieren von Besichtigungsterminen auf Kreta zu unserem Portfolio.
Zu jeder ...mehr lesen
Zu jeder ...mehr lesen
Wir sind deutsche Immobilienmakler und haben uns spezialisiert auf Immobilien aus Kreta. Neben der Suche nach geeigneten Immobilien auf Kreta für Sie, gehört auch das Organisieren von Besichtigungsterminen auf Kreta zu unserem Portfolio.
Zu jeder Phase Ihres Immobilienerwerbs auf Kreta stehen wir Ihnen zur Seite und begleiten Sie vom ersten Gespräch bis über den Notarvertrag hinaus.
Uns sind Ihre Vorstellungen wichtig, wie zum Beispiel die Lage auf Kreta in Verbindung mit Meerblick, Strandnähe, Sandstrand, Steinhaus oder Swimmingpool. Zusätzlich gibt es wichtige Punkte zu beachten wie die Maße der Zimmer einer Immobilie. In Griechenland und somit auch auf Kreta werden die Wände miteingerechnet, also Außenwand zur Außenwand. Im Gegensatz zu deutschen Immobilien, hier wird von Innenwand zur Innenwand gemessen.
Wir empfehlen Ihnen unbedingt bei der Besichtigung auf Kreta die angegebene Wohnfläche zu überprüfen, da diese stark von deutschen Angaben abweichen kann (Berechnungs-, Wohnflächenverordnung, DIN-Normen) und Nutzflächen eventuell miteingerechnet wurden (Keller, Technikraum, Balkon, Terrasse etc.).
Bitte beachten Sie auch bei Standortangaben zu Immobilienangeboten auf Kreta, dass dies ungefähre Werte sind.
Der griechische Energieausweis (falls erforderlich) liegt bei der Besichtigung vor.
Zum angegebenen Kaufpreis kommen noch Nebenkosten wie Provision, Grunderwerbsteuer, Notargebühren und Anwaltskosten hinzu. Genaueres finden Sie auf unserer Homepage bei INFOS.
Alle über unser Portal angebotenen Immobilien aus Kreta wurden sorgfältig geprüft und übersetzt. Dennoch können sich Fehler einschleichen, so dass wir keine Gewähr auf Richtigkeit der Angaben übernehmen.
Für alle Fragen rund um das Thema - Kauf einer Immobilie oder Grundstück auf Kreta - stehen wir Ihnen gerne zur Verfügung und können weitere Details im Gespräch klären.
Es gelten unsere AGB, die Sie auf unserer Homepage bei AGB und Widerrufsrecht finden.
Zu jeder Phase Ihres Immobilienerwerbs auf Kreta stehen wir Ihnen zur Seite und begleiten Sie vom ersten Gespräch bis über den Notarvertrag hinaus.
Uns sind Ihre Vorstellungen wichtig, wie zum Beispiel die Lage auf Kreta in Verbindung mit Meerblick, Strandnähe, Sandstrand, Steinhaus oder Swimmingpool. Zusätzlich gibt es wichtige Punkte zu beachten wie die Maße der Zimmer einer Immobilie. In Griechenland und somit auch auf Kreta werden die Wände miteingerechnet, also Außenwand zur Außenwand. Im Gegensatz zu deutschen Immobilien, hier wird von Innenwand zur Innenwand gemessen.
Wir empfehlen Ihnen unbedingt bei der Besichtigung auf Kreta die angegebene Wohnfläche zu überprüfen, da diese stark von deutschen Angaben abweichen kann (Berechnungs-, Wohnflächenverordnung, DIN-Normen) und Nutzflächen eventuell miteingerechnet wurden (Keller, Technikraum, Balkon, Terrasse etc.).
Bitte beachten Sie auch bei Standortangaben zu Immobilienangeboten auf Kreta, dass dies ungefähre Werte sind.
Der griechische Energieausweis (falls erforderlich) liegt bei der Besichtigung vor.
Zum angegebenen Kaufpreis kommen noch Nebenkosten wie Provision, Grunderwerbsteuer, Notargebühren und Anwaltskosten hinzu. Genaueres finden Sie auf unserer Homepage bei INFOS.
Alle über unser Portal angebotenen Immobilien aus Kreta wurden sorgfältig geprüft und übersetzt. Dennoch können sich Fehler einschleichen, so dass wir keine Gewähr auf Richtigkeit der Angaben übernehmen.
Für alle Fragen rund um das Thema - Kauf einer Immobilie oder Grundstück auf Kreta - stehen wir Ihnen gerne zur Verfügung und können weitere Details im Gespräch klären.
Es gelten unsere AGB, die Sie auf unserer Homepage bei AGB und Widerrufsrecht finden.
Anbieter
Schmidbauer Immobilien Kreta
Herr Oskar Josef Schmidbauer
Kokkino Chorio 1
730 08 Kokkino Chorio
730 08 Kokkino Chorio
Ansprechpartner
Oskar Josef Schmidbauer
Adlerstrasse 2
84100 Niederaichbach
84100 Niederaichbach