Angebot 5019 von 17800

Anbieter kontaktieren

AGB, Datenschutz & Verbraucherhinweis wurden gelesen und akzeptiert.

HausHirsch GmbH

Mario Costa
Downtown, Dubai
  • Mehr erfahren
bellevue.de-ID: 30621769

Geräumige 2-Zimmer-Wohnung - bereit zum Einzug!

  • Wohnung
  • · 3 Zimmer
  • · 76 m² Wohnfläche
  • · 440.406 € Kaufpreis
Anbieter kontaktieren

Objektbeschreibung

Willkommen in Ihrem neuen Zuhause! Diese geräumige 2-Zimmer-Wohnung bietet großartige Annehmlichkeiten, die für Familien und Investoren gleichermaßen perfekt sind. Mit einer modernen Küche, aktualisierten Bädern und einem gemütlichen Wohnbereich hat ...mehr lesen
Willkommen in Ihrem neuen Zuhause! Diese geräumige 2-Zimmer-Wohnung bietet großartige Annehmlichkeiten, die für Familien und Investoren gleichermaßen perfekt sind. Mit einer modernen Küche, aktualisierten Bädern und einem gemütlichen Wohnbereich hat diese Wohnung alles, was Sie brauchen, um sich wohl zu fühlen. Das Gebäude verfügt außerdem über ein Fitnesscenter, einen Swimmingpool und einen Spielplatz und ist damit ideal für Familien mit Kindern. Investoren werden die potenziellen Mieteinnahmen und die hohe Nachfrage nach Immobilien in dieser Gegend zu schätzen wissen. Lassen Sie sich diese fantastische Gelegenheit nicht entgehen, eine Immobilie zu besitzen, die alle Kriterien für Komfort und Luxus erfüllt. Kontaktieren Sie uns noch heute, um einen Besichtigungstermin zu vereinbaren!

Immobiliendetails

  • Nutzungsart
    Wohnen
  • Objektart
    Etagenwohnung
  • Hauptobjektart
    Wohnung
  • Vertragsart
    Kauf
  • Objektzustand
    Erstbezug
  • Zimmer (gesamt)
    3
  • Anzahl Schlafzimmer
    2
  • Anzahl Badezimmer
    3
  • Wohnfläche (ca.)
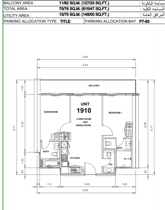
    75,75 m²
  • Küche
    Einbauküche (EBK)
  • Balkon
    1
  • Denkmalschutzobjekt
  • Bad
    Duschbad, Bidet
  • Ausstattungskategorie
    Gehoben
  • Als Ferienobjekt nutzbar
  • Anbieter-Objektnummer
    Aykon City2 TC 2BHK APT 1910 - DV-9536

Preise & Kosten

  • Courtage
    Provisionsfrei

Energie

  • Gebäudeart
    Wohngebäude

Ausstattung

  • Gäste-WC
  • Klimanalage
  • Garten
Wenn Sie diese atemberaubende 2-Schlafzimmer-Wohnung betreten, werden Sie sofort von einem atemberaubenden Blick auf das Meer und die Sheikh Zayed Road begrüßt. Das geräumige Wohnzimmer öffnet sich zu einer voll ausgestatteten Küche mit modernen ...mehr lesen
Wenn Sie diese atemberaubende 2-Schlafzimmer-Wohnung betreten, werden Sie sofort von einem atemberaubenden Blick auf das Meer und die Sheikh Zayed Road begrüßt. Das geräumige Wohnzimmer öffnet sich zu einer voll ausgestatteten Küche mit modernen Geräten, perfekt für die Zubereitung köstlicher Mahlzeiten, während Sie den Panoramablick genießen.

Die Wohnung verfügt über eine Reihe von Annehmlichkeiten wie einen Swimmingpool, ein Fitnessstudio, ein Kinderbecken, ein SPA, Einzelhandelsgeschäfte, einen Grillplatz, einen Kinderspielplatz und VASTU-Compliance. Ob Sie sich am Pool entspannen, im Fitnessstudio trainieren oder im SPA entspannen möchten, diese Wohnung bietet alles, was Sie für einen luxuriösen Lebensstil brauchen.

In einer erstklassigen Gegend gelegen, mit einfachem Zugang zu nahe gelegenen Einkaufszentren, Restaurants und Unterhaltungsmöglichkeiten, bietet diese Wohnung die perfekte Kombination aus Komfort und Luxus. Verpassen Sie nicht die Gelegenheit, ein Stück vom Paradies im Herzen der Stadt zu besitzen. Leben Sie das gehobene Leben in dieser exquisiten 2-Zimmer-Wohnung, die alles hat, was Sie für ein komfortables und gehobenes Wohnerlebnis brauchen.

Standort & Lage

Die Business Bay im Herzen Dubais ist ein pulsierendes und geschäftiges Viertel, das für seine eleganten Wolkenkratzer, seine moderne Infrastruktur und seinen atemberaubenden Blick aufs Wasser bekannt ist. Dieses blühende Geschäfts- und Wohnviertel ...mehr lesen
Die Business Bay im Herzen Dubais ist ein pulsierendes und geschäftiges Viertel, das für seine eleganten Wolkenkratzer, seine moderne Infrastruktur und seinen atemberaubenden Blick aufs Wasser bekannt ist. Dieses blühende Geschäfts- und Wohnviertel bietet eine perfekte Mischung aus Luxus und Komfort.

Die Nachbarschaft ist mit allen Dingen des täglichen Bedarfs gut ausgestattet, denn eine Vielzahl von Supermärkten, Arztpraxen und Apotheken sind nur einen Steinwurf entfernt. Die Bewohner haben leichten Zugang zu erstklassigen Bildungseinrichtungen - von Kindergärten und Grundschulen bis hin zu renommierten Universitäten - und können so eine umfassende akademische Erfahrung für Familien gewährleisten.

An Freizeit- und Unterhaltungsmöglichkeiten mangelt es in der Business Bay nicht. Von Einkaufszentren und Restaurants bis hin zu kulturellen Attraktionen und Freizeiteinrichtungen können die Bewohner ein pulsierendes Leben direkt vor ihrer Haustür genießen. Der wunderschöne Dubai-Kanal verleiht der Gegend einen zusätzlichen Charme und ist der perfekte Ort für entspannte Spaziergänge oder ein Essen am Wasser.

Was die Verkehrsanbindung betrifft, so bietet Business Bay eine hervorragende Anbindung an die öffentlichen Verkehrsmittel und die wichtigsten Autobahnen. Die nächste Bushaltestelle ist nur einen kurzen Spaziergang entfernt, während die nächste Autobahnauffahrt ein reibungsloses Pendeln in andere Teile der Stadt ermöglicht.

Insgesamt ist Business Bay ein idealer Standort für alle, die ein luxuriöses Stadtleben in Dubai erleben möchten. Mit seiner erstklassigen Lage, einer Fülle von Annehmlichkeiten und einer atemberaubenden Aussicht bietet dieses Viertel wirklich das Beste des Stadtlebens.

· Dubai · ARE

Ansprechpartner

Verbraucherhinweis

Widerrufsbelehrung des Anbieters

(Gilt nicht für Wohnraummiete in Deutschland)

Widerrufsrecht für Verbraucher
Sie haben das Recht, binnen vierzehn Tagen ohne Angabe von Gründen diesen Vertrag zu widerrufen. Die Widerrufsfrist beträgt vierzehn Tage ab dem Tag des Vertragsabschlusses.
Um Ihr Widerrufsrecht auszuüben, müssen Sie uns (HausHirsch GmbH, Dreischeibenhaus 1, 40211D Düsseldorf, +49 0 800 000 1244, +49 211 8825025, info@haushirsch.de) mittels einer eindeutigen Erklärung (z. B. ein mit der Post versandter Brief, Telefax oder E-Mail) über Ihren Entschluss, diesen Vertrag zu widerrufen, informieren. Sie können dafür das beigefügte Muster-Widerrufsformular verwenden, das jedoch nicht vorgeschrieben ist. Zur Wahrung der Widerrufsfrist reicht es aus, dass Sie die Mitteilung über die Ausübung des Widerrufsrechts vor Ablauf der Widerrufsfrist absenden.

Folgen des Widerrufs
Wenn Sie diesen Vertrag widerrufen, haben wir Ihnen alle Zahlungen, die wir von Ihnen erhalten haben, einschließlich der Lieferkosten (mit Ausnahme der zusätzlichen Kosten, die sich daraus ergeben, dass Sie eine andere Art der Lieferung als die von uns angebotene, günstigste Standardlieferung gewählt haben), unverzüglich und spätestens binnen vierzehn Tagen ab dem Tag zurückzuzahlen, an dem die Mitteilung über Ihren Widerruf dieses Vertrags bei uns eingegangen ist. Für diese Rückzahlung verwenden wir dasselbe Zahlungsmittel, das Sie bei der ursprünglichen Transaktion eingesetzt haben, es sei denn, mit Ihnen wurde ausdrücklich etwas anderes vereinbart; in keinem Fall werden Ihnen wegen dieser Rückzahlung Entgelte berechnet. Haben Sie verlangt, dass die Dienstleistungen während der Widerrufsfrist beginnen soll, so haben Sie uns einen angemessenen Betrag zu zahlen, der dem Anteil der bis zu dem Zeitpunkt, zu dem Sie uns von der Ausübung des Widerrufsrechts hinsichtlich dieses Vertrags unterrichten, bereits erbrachten Dienstleistungen im Vergleich zum Gesamtumfang der im Vertrag vorgesehenen Dienstleistungen entspricht.

Muster-Widerrufsformular
(Wenn Sie den Vertrag widerrufen wollen, dann füllen Sie dieses Formular aus und senden Sie es zurück.)

An HausHirsch GmbH, Dreischeibenhaus 1, 40211D Düsseldorf, +49 0 800 000 1244, +49 211 8825025, info@haushirsch.de

Hiermit widerrufe ich/wir den von mir/uns abgeschlossenen Vertrag über den Kauf der folgenden Waren /die Erbringung der folgenden Dienstleistung


Bestellt am /erhalten am

Name des/der Verbraucher(s)

Anschrift des/der Verbraucher(s)

Unterschrift des/der Verbraucher(s) (nur bei Mitteilung auf Papier)

Datum


( Unzutreffendes streichen )


Hinweis auf die Möglichkeit eines vorzeitigen Erlöschens des Widerrufsrechts

Ihr Widerrufsrecht erlischt, wenn wir unsere Leistung vollständig erbracht haben und mit der Ausführung der Leistung erst begonnen haben, nachdem Sie Ihre ausdrückliche Zustimmung gegeben haben und gleichzeitig Ihre Kenntnis davon bestätigt haben, dass Sie Ihr Widerrufsrecht bei vollständiger Vertragserfüllung durch uns verlieren.

Impressum HausHirsch GmbH
VERTRETUNGSBERECHTIGTE/R
Marius Wolf


Dreischeibenhaus 1
40211D Düsseldorf
DEU
Tel.: +49 0 800 000 1244
E-Mail: info@haushirsch.de
Fax: +49 211 8825025
Homepage: https://haushirsch.de

ZUSTÄNDIGE AUFSICHTSBEHÖRDE
Die Gewerbeanmeldung nach § 34 c GewO wurde durch Stadt Düsseldorf (www.duesseldorf.de) erteilt.

HANDELSREGISTER-EINTRAG
Amtsgericht Düsseldorf, HRB 99093


UST-ID-NUMMER
DE362155160
Anbieter kontaktieren

AGB, Datenschutz & Verbraucherhinweis wurden gelesen und akzeptiert.