Angebot 65 von 15392

Anbieter kontaktieren

AGB, Datenschutz & Verbraucherhinweis wurden gelesen und akzeptiert.

Properstar SA

Vendo
  • Mehr erfahren
bellevue.de-ID: 30621373

Haus zu kaufen in Cascais, Portugal

  • Haus
  • · 5 Zimmer
  • · 253 m² Wohnfläche
  • · 163 m² Grundstücksfläche
  • · 1.800.000 € Kaufpreis
Anbieter kontaktieren

Objektbeschreibung

Iconic Location: Experience the Authenticity of Cascais~Imagine stepping out of your home and, within a few steps, being at the beach, the finest restaurants, charming shops, and the fruit and flower market. This is the reality in this exclusive ...mehr lesen
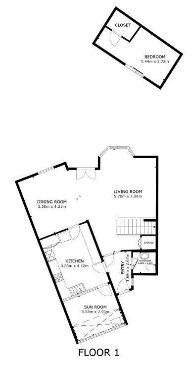
Iconic Location: Experience the Authenticity of Cascais~Imagine stepping out of your home and, within a few steps, being at the beach, the finest restaurants, charming shops, and the fruit and flower market. This is the reality in this exclusive villa in the Historic Center of Cascais, just 400m from the Cascais bay. The location is perfect for those who value convenience and a unique lifestyle.~~---~~✨ What Makes This House Unique:~~· Sea View & Private Patio: Wake up to the sea light streaming in from the balcony and enjoy meals outdoors in your sunny, tranquil patio. An absolute rarity in the center!~· Space & Total Comfort: With 254m2, it offers 4 en-suites and 1 additional bedroom, ensuring privacy and comfort for family or guests.~· Large kitchen with laundry room attached.~· Plenty of storage space both in the kitchen, bedrooms, and common areas.~· The garden annex can be an extra bedroom, office, or garage – the choice is yours.~· Private Parking: An invaluable benefit in central Cascais. Forget the worry of finding a parking spot.~~---~~ Property Description:~~More than a house, this is a haven of charm and light in the middle of the vibrancy. The spaces are spacious and flow naturally from the living room to the patio, creating the perfect environment for daily life or entertaining friends.~~The combination of typical architecture with modern comfort offers the perfect balance. The street is calm and safe, allowing you to enjoy the best of both worlds: the tranquility of a home and the vibrant life of Cascais at your doorstep.~~---~~ Key Information for Your Decision:~~· Gross Private Area: 254 m2~· Bedrooms: 5 (4 en-suites + 1 bedroom)~· Bathrooms: 5 (4 en-suite + guest bathroom)~· Exclusive Location: Historic Center of Cascais~· Unique Features: Sea View, Patio, Balcony, Private Parking, Flexible Annex.~· Move-In Ready: Excellent condition.~~---~~ Why Choose This House?:~~This is not just a purchase; it is a high-value investment in one of Europe's most stable and prestigious markets. It is the rare opportunity to own a property with space, privacy, and the best attributes in the most desired location on the Cascais Line.~~The next owner of this house will hold the key to an unrivalled lifestyle.~~---~~➡️ Schedule Your Viewing Now!:~~Don't let this unique opportunity pass you by. Properties with this profile in central Cascais are extremely rare.~~Click the contact link, send a message, and let's schedule your private viewing. Come and feel what it's like to live here.

Immobiliendetails

  • Nutzungsart
    Wohnen
  • Objektart
    Einfamilienhaus
  • Hauptobjektart
    Haus
  • Vertragsart
    Kauf
  • Zimmer (gesamt)
    5
  • Anzahl Schlafzimmer
    5
  • Anzahl Badezimmer
    5
  • Wohnfläche (ca.)
    253 m²
  • Grundstücksfläche (ca.)
    163 m²
  • Nutzfläche (ca.)
    253 m²
  • Anbieter-Objektnummer
    108062819

Preise & Kosten

  • Courtage
    Keine besondere Angabe.

Energie

  • Energieeffizienzklasse
    E

Standort & Lage

2750-195 Cascais · PRT

Die genaue Anschrift erfahren Sie vom Anbieter

Videos

Verbraucherhinweis

Widerrufsbelehrung des Anbieters

(Gilt nicht für Wohnraummiete in Deutschland)

Widerrufsrecht für Verbraucher
Sie haben das Recht, binnen vierzehn Tagen ohne Angabe von Gründen diesen Vertrag zu widerrufen. Die Widerrufsfrist beträgt vierzehn Tage ab dem Tag des Vertragsabschlusses.
Um Ihr Widerrufsrecht auszuüben, müssen Sie uns (ListGlobally SA, Rue Mercerie 12, 1003 Lausanne, +49 800 0010536, support@listglobally.com) mittels einer eindeutigen Erklärung (z. B. ein mit der Post versandter Brief, Telefax oder E-Mail) über Ihren Entschluss, diesen Vertrag zu widerrufen, informieren. Sie können dafür das beigefügte Muster-Widerrufsformular verwenden, das jedoch nicht vorgeschrieben ist. Zur Wahrung der Widerrufsfrist reicht es aus, dass Sie die Mitteilung über die Ausübung des Widerrufsrechts vor Ablauf der Widerrufsfrist absenden.

Folgen des Widerrufs
Wenn Sie diesen Vertrag widerrufen, haben wir Ihnen alle Zahlungen, die wir von Ihnen erhalten haben, einschließlich der Lieferkosten (mit Ausnahme der zusätzlichen Kosten, die sich daraus ergeben, dass Sie eine andere Art der Lieferung als die von uns angebotene, günstigste Standardlieferung gewählt haben), unverzüglich und spätestens binnen vierzehn Tagen ab dem Tag zurückzuzahlen, an dem die Mitteilung über Ihren Widerruf dieses Vertrags bei uns eingegangen ist. Für diese Rückzahlung verwenden wir dasselbe Zahlungsmittel, das Sie bei der ursprünglichen Transaktion eingesetzt haben, es sei denn, mit Ihnen wurde ausdrücklich etwas anderes vereinbart; in keinem Fall werden Ihnen wegen dieser Rückzahlung Entgelte berechnet. Haben Sie verlangt, dass die Dienstleistungen während der Widerrufsfrist beginnen soll, so haben Sie uns einen angemessenen Betrag zu zahlen, der dem Anteil der bis zu dem Zeitpunkt, zu dem Sie uns von der Ausübung des Widerrufsrechts hinsichtlich dieses Vertrags unterrichten, bereits erbrachten Dienstleistungen im Vergleich zum Gesamtumfang der im Vertrag vorgesehenen Dienstleistungen entspricht.

Muster-Widerrufsformular
(Wenn Sie den Vertrag widerrufen wollen, dann füllen Sie dieses Formular aus und senden Sie es zurück.)

An ListGlobally SA, Rue Mercerie 12, 1003 Lausanne, +49 800 0010536, support@listglobally.com

Hiermit widerrufe ich/wir den von mir/uns abgeschlossenen Vertrag über den Kauf der folgenden Waren /die Erbringung der folgenden Dienstleistung


Bestellt am /erhalten am

Name des/der Verbraucher(s)

Anschrift des/der Verbraucher(s)

Unterschrift des/der Verbraucher(s) (nur bei Mitteilung auf Papier)

Datum


( Unzutreffendes streichen )


Hinweis auf die Möglichkeit eines vorzeitigen Erlöschens des Widerrufsrechts

Ihr Widerrufsrecht erlischt, wenn wir unsere Leistung vollständig erbracht haben und mit der Ausführung der Leistung erst begonnen haben, nachdem Sie Ihre ausdrückliche Zustimmung gegeben haben und gleichzeitig Ihre Kenntnis davon bestätigt haben, dass Sie Ihr Widerrufsrecht bei vollständiger Vertragserfüllung durch uns verlieren.

Impressum ListGlobally SA
VERTRETUNGSBERECHTIGTE/R
Properstar SA


Rue Mercerie 12
1003 Lausanne
CHE
Tel.: +49 800 0010536
E-Mail: support@listglobally.com
Homepage: https://www.listglobally.com/
Anbieter kontaktieren

AGB, Datenschutz & Verbraucherhinweis wurden gelesen und akzeptiert.