Angebot 10 von 15426

Anbieter kontaktieren

AGB, Datenschutz & Verbraucherhinweis wurden gelesen und akzeptiert.

HausHirsch GmbH

Marina Glaubrecht
Al Karama Dubai
  • Mehr erfahren
bellevue.de-ID: 30620959

Atemberaubendes Studio-Apartment mit Resort-ähnlichem Wohnen

  • Wohnung
  • · 1 Zimmer
  • · 40 m² Wohnfläche
  • · 296.067 € Kaufpreis
Anbieter kontaktieren

Objektbeschreibung

Willkommen in Ihrem neuen Zuhause mit atemberaubendem Blick auf den Ozean! Dieses Studio-Apartment ist der perfekte Ort für Singles und Investoren, die eine erstklassige Lage mit atemberaubender Landschaft suchen. Stellen Sie sich vor, Sie wachen ...mehr lesen
Willkommen in Ihrem neuen Zuhause mit atemberaubendem Blick auf den Ozean! Dieses Studio-Apartment ist der perfekte Ort für Singles und Investoren, die eine erstklassige Lage mit atemberaubender Landschaft suchen. Stellen Sie sich vor, Sie wachen jeden Morgen mit dem Rauschen der Wellen und dem Anblick der über dem Wasser aufgehenden Sonne auf. Der offene Grundriss dieser Wohnung lässt viel natürliches Licht in den Raum und schafft eine helle und luftige Atmosphäre. Die moderne Küche ist mit hochwertigen Geräten und glatten Arbeitsflächen ausgestattet und eignet sich perfekt, um Mahlzeiten zuzubereiten und dabei die Aussicht zu genießen. Der Schlafbereich ist gemütlich und einladend, mit viel Stauraum, um Ihre Habseligkeiten zu organisieren. Mit leichtem Zugang zum Strand und den nahe gelegenen Annehmlichkeiten ist dieses Studio-Apartment ein wahres Juwel für alle, die luxuriöses Wohnen am Meer schätzen. Verpassen Sie nicht diese Gelegenheit, ein Stück vom Paradies zu besitzen!

Immobiliendetails

  • Nutzungsart
    Wohnen
  • Objektart
    Etagenwohnung
  • Hauptobjektart
    Wohnung
  • Vertragsart
    Kauf
  • Objektzustand
    Erstbezug
  • Zimmer (gesamt)
    1
  • Anzahl Schlafzimmer
    1
  • Anzahl Badezimmer
    1
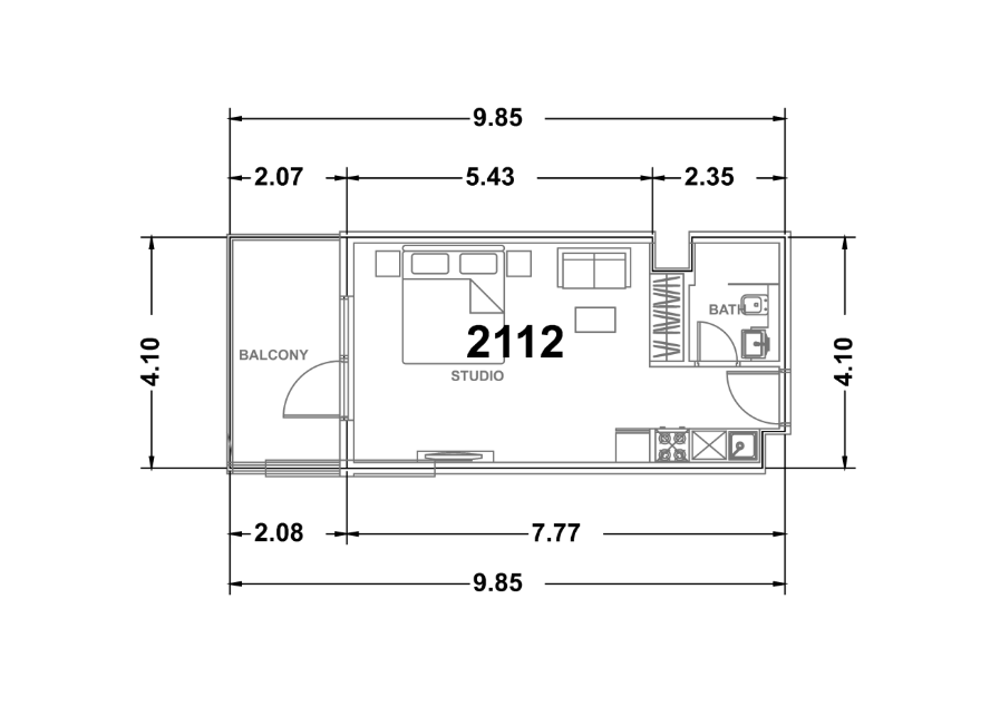
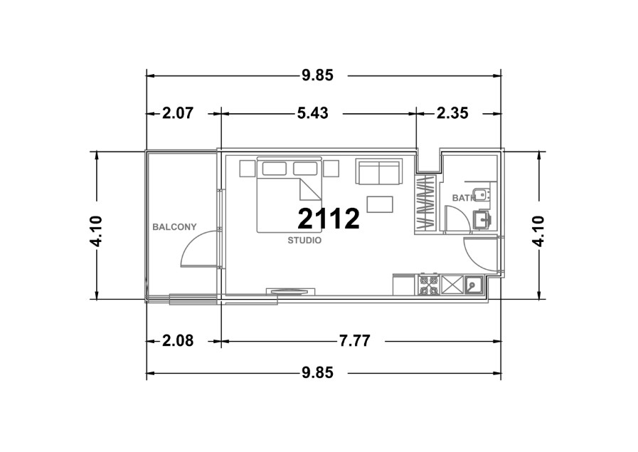
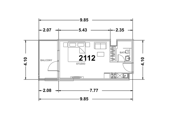
  • Wohnfläche (ca.)
    39,7 m²
  • Küche
    Einbauküche (EBK)
  • Balkon
    1
  • Denkmalschutzobjekt
  • Bad
    Duschbad, Bidet
  • Ausstattungskategorie
    Gehoben
  • Als Ferienobjekt nutzbar
  • Anbieter-Objektnummer
    Oceanz STD APT 2112 - DV-9574

Preise & Kosten

  • Courtage
    Provisionsfrei

Energie

  • Gebäudeart
    Wohngebäude

Ausstattung

  • Klimanalage
  • Garten
Wenn Sie dieses exquisite Studioapartment betreten, werden Sie sofort von dem atemberaubenden Meerblick, der sich vor Ihnen ausbreitet, in den Bann gezogen. Der unnachahmliche italienische Stil der Wohnung strahlt Eleganz und Raffinesse aus und ...mehr lesen
Wenn Sie dieses exquisite Studioapartment betreten, werden Sie sofort von dem atemberaubenden Meerblick, der sich vor Ihnen ausbreitet, in den Bann gezogen. Der unnachahmliche italienische Stil der Wohnung strahlt Eleganz und Raffinesse aus und bietet ein luxuriöses Wohnerlebnis.

Die Annehmlichkeiten, die Ihnen in dieser Residenz zur Verfügung stehen, sind unvergleichlich. Stellen Sie sich vor, Sie beginnen Ihren Tag mit einem erfrischenden Bad im Infinity-Pool, gefolgt von einer entspannenden Sitzung im Sky-Jacuzzi. Sie können sich im gut ausgestatteten Fitnessstudio in Form halten oder auf den gepflegten Plätzen eine Partie Paddle-Tennis oder Basketball spielen.

Das schwimmende Kino und der Grillplatz eignen sich hervorragend für ein Treffen mit Freunden und Familie. Wenn die Sonne untergeht, können Sie sich auf der Sonnenterrasse entspannen und den atemberaubenden Blick auf die Küste genießen.

Eltern können sich beruhigt zurücklehnen, denn auf dem Gelände befindet sich eine Kindertagesstätte, während die Kinder auf dem Kinderspielplatz herumtollen oder ihre Cricket-Fähigkeiten auf dem ausgewiesenen Spielfeld trainieren können. Der Wassergymnastikraum bietet ein einzigartiges Workout-Erlebnis, und die Joggingstrecke ist ideal für alle, die sich gerne im Freien bewegen.

Lassen Sie sich in den SPA- und Therapieeinrichtungen verwöhnen oder entspannen Sie einfach in der ruhigen Relaxzone. Ein Arzt auf Abruf kümmert sich um alle Bedürfnisse und sorgt dafür, dass Sie sich jederzeit wohlfühlen.

Dieses Studio-Apartment ist mehr als nur ein Ort zum Wohnen - es ist ein Refugium des Luxus und der Freizeit. Lassen Sie sich die Gelegenheit nicht entgehen, diese Wohnung zu Ihrem Zuhause zu machen und das ultimative, gehobene Leben zu erleben.

Standort & Lage

In der pulsierenden Stadt Dubai gelegen, bietet Maritime City eine erstklassige Lage für alle, die ein luxuriöses Leben in einer pulsierenden Metropole suchen. Dieses exklusive Viertel bietet einen atemberaubenden Blick auf die Uferpromenade und ...mehr lesen
In der pulsierenden Stadt Dubai gelegen, bietet Maritime City eine erstklassige Lage für alle, die ein luxuriöses Leben in einer pulsierenden Metropole suchen. Dieses exklusive Viertel bietet einen atemberaubenden Blick auf die Uferpromenade und einen einfachen Zugang zu einer Fülle von Annehmlichkeiten und Attraktionen.

Für den täglichen Bedarf gibt es Supermärkte, Arztpraxen und Apotheken in Gehweite, was den Bewohnern Bequemlichkeit und Komfort garantiert. Was die Bildung betrifft, so gibt es in der Nähe Kindergärten, Grundschulen, weiterführende Schulen und Universitäten, die Familien erstklassige Bildungsmöglichkeiten bieten.

Was die Freizeitgestaltung anbelangt, liegt Maritime City in der Nähe von Einkaufszentren, Unterhaltungszentren und dem belebten Stadtzentrum. Für diejenigen, die mehr als nur die Nachbarschaft erkunden möchten, ist die pulsierende Stadt Dubai nur einen Katzensprung entfernt.

Dank der ausgezeichneten Verkehrsanbindung können die Bewohner die nächstgelegenen Bushaltestellen und Autobahnen leicht erreichen und so eine nahtlose Verbindung zum Rest der Stadt herstellen. Ganz gleich, ob Sie sich am Wasser entspannen oder die pulsierende Kultur der Stadt erkunden möchten, Maritime City ist der ideale Ort für luxuriöses Wohnen in Dubai.

· Dubai · ARE

Ansprechpartner

Marina Glaubrecht

Hamsah Building, 1st Floor Office 112-6
Al Karama Dubai
Verbraucherhinweis

Widerrufsbelehrung des Anbieters

(Gilt nicht für Wohnraummiete in Deutschland)

Widerrufsrecht für Verbraucher
Sie haben das Recht, binnen vierzehn Tagen ohne Angabe von Gründen diesen Vertrag zu widerrufen. Die Widerrufsfrist beträgt vierzehn Tage ab dem Tag des Vertragsabschlusses.
Um Ihr Widerrufsrecht auszuüben, müssen Sie uns (HausHirsch GmbH, Dreischeibenhaus 1, 40211D Düsseldorf, +49 0 800 000 1244, +49 211 8825025, info@haushirsch.de) mittels einer eindeutigen Erklärung (z. B. ein mit der Post versandter Brief, Telefax oder E-Mail) über Ihren Entschluss, diesen Vertrag zu widerrufen, informieren. Sie können dafür das beigefügte Muster-Widerrufsformular verwenden, das jedoch nicht vorgeschrieben ist. Zur Wahrung der Widerrufsfrist reicht es aus, dass Sie die Mitteilung über die Ausübung des Widerrufsrechts vor Ablauf der Widerrufsfrist absenden.

Folgen des Widerrufs
Wenn Sie diesen Vertrag widerrufen, haben wir Ihnen alle Zahlungen, die wir von Ihnen erhalten haben, einschließlich der Lieferkosten (mit Ausnahme der zusätzlichen Kosten, die sich daraus ergeben, dass Sie eine andere Art der Lieferung als die von uns angebotene, günstigste Standardlieferung gewählt haben), unverzüglich und spätestens binnen vierzehn Tagen ab dem Tag zurückzuzahlen, an dem die Mitteilung über Ihren Widerruf dieses Vertrags bei uns eingegangen ist. Für diese Rückzahlung verwenden wir dasselbe Zahlungsmittel, das Sie bei der ursprünglichen Transaktion eingesetzt haben, es sei denn, mit Ihnen wurde ausdrücklich etwas anderes vereinbart; in keinem Fall werden Ihnen wegen dieser Rückzahlung Entgelte berechnet. Haben Sie verlangt, dass die Dienstleistungen während der Widerrufsfrist beginnen soll, so haben Sie uns einen angemessenen Betrag zu zahlen, der dem Anteil der bis zu dem Zeitpunkt, zu dem Sie uns von der Ausübung des Widerrufsrechts hinsichtlich dieses Vertrags unterrichten, bereits erbrachten Dienstleistungen im Vergleich zum Gesamtumfang der im Vertrag vorgesehenen Dienstleistungen entspricht.

Muster-Widerrufsformular
(Wenn Sie den Vertrag widerrufen wollen, dann füllen Sie dieses Formular aus und senden Sie es zurück.)

An HausHirsch GmbH, Dreischeibenhaus 1, 40211D Düsseldorf, +49 0 800 000 1244, +49 211 8825025, info@haushirsch.de

Hiermit widerrufe ich/wir den von mir/uns abgeschlossenen Vertrag über den Kauf der folgenden Waren /die Erbringung der folgenden Dienstleistung


Bestellt am /erhalten am

Name des/der Verbraucher(s)

Anschrift des/der Verbraucher(s)

Unterschrift des/der Verbraucher(s) (nur bei Mitteilung auf Papier)

Datum


( Unzutreffendes streichen )


Hinweis auf die Möglichkeit eines vorzeitigen Erlöschens des Widerrufsrechts

Ihr Widerrufsrecht erlischt, wenn wir unsere Leistung vollständig erbracht haben und mit der Ausführung der Leistung erst begonnen haben, nachdem Sie Ihre ausdrückliche Zustimmung gegeben haben und gleichzeitig Ihre Kenntnis davon bestätigt haben, dass Sie Ihr Widerrufsrecht bei vollständiger Vertragserfüllung durch uns verlieren.

Impressum HausHirsch GmbH
VERTRETUNGSBERECHTIGTE/R
Marius Wolf


Dreischeibenhaus 1
40211D Düsseldorf
DEU
Tel.: +49 0 800 000 1244
E-Mail: info@haushirsch.de
Fax: +49 211 8825025
Homepage: https://haushirsch.de

ZUSTÄNDIGE AUFSICHTSBEHÖRDE
Die Gewerbeanmeldung nach § 34 c GewO wurde durch Stadt Düsseldorf (www.duesseldorf.de) erteilt.

HANDELSREGISTER-EINTRAG
Amtsgericht Düsseldorf, HRB 99093


UST-ID-NUMMER
DE362155160
Anbieter kontaktieren

AGB, Datenschutz & Verbraucherhinweis wurden gelesen und akzeptiert.