Angebot 41 von 15379

Anbieter kontaktieren

AGB, Datenschutz & Verbraucherhinweis wurden gelesen und akzeptiert.

RE/MAX First, REM Immobilienmakler GmbH & Co KG

Karin Prosenik-Resch
1130 Wien
  • Mehr erfahren
bellevue.de-ID: 30620559

ERSTBEZUG I BALKONWOHNUNG I PROVISIONSFREI

  • Wohnung
  • · 3 Zimmer
  • · 77 m² Wohnfläche
  • · 688.200 € Kaufpreis
Anbieter kontaktieren

Objektbeschreibung

In einer ruhigen und grünen Lage am Fuße des Gallitzinbergs entsteht ein moderner Neubau mit 16 freifinanzierten Eigentumswohnungen. Jede Wohnung bietet großzügige Freiflächen wie Balkone, Terrassen oder Gärten – ideal, um die Natur zu genießen.



Diese

...mehr lesen

In einer ruhigen und grünen Lage am Fuße des Gallitzinbergs entsteht ein moderner Neubau mit 16 freifinanzierten Eigentumswohnungen. Jede Wohnung bietet großzügige Freiflächen wie Balkone, Terrassen oder Gärten – ideal, um die Natur zu genießen.



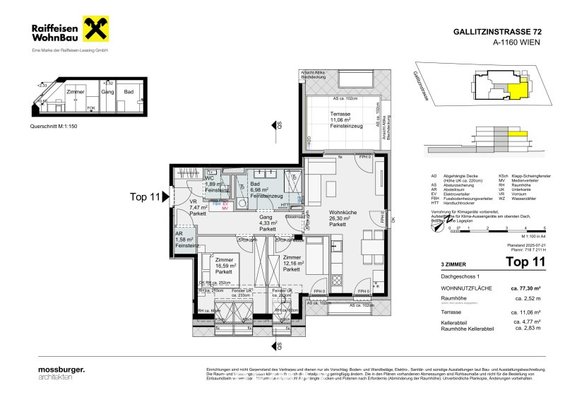
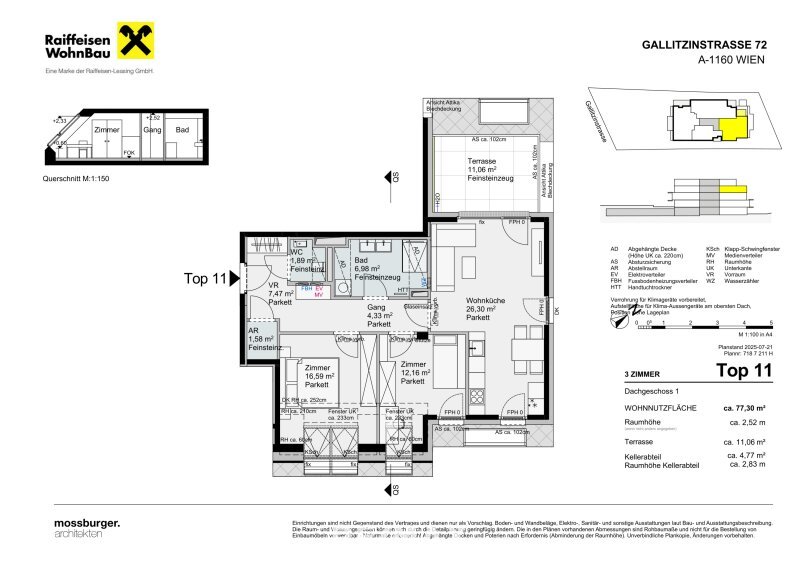
Diese attraktive Dachgeschoßwohnung besticht mit einer Wohnfläche von 77,30 m² sowie einer Terrasse von 11,06 m², die zum Entspannen einlädt.



Die Wohnung Top 11 umfasst:

- Einen großzügigen Wohn-Essbereich

- Zwei Schlafzimmer

- Ein Badezimmer

- Ein separates WC

- Einen Abstellraum

- Eine Terrasse mit 11,06 m²



Zusätzlich steht ein Kellerabteil mit 4,77 m² zur Verfügung.



Ausstattung:

Die Wohnung überzeugt mit einer hochwertigen Ausstattung, inklusive edlem Parkett, modernen Sanitäranlagen und einer Fußbodenheizung für maximalen Komfort. Eine umweltfreundliche Sole-Wasser-Wärmepumpe sorgt für angenehme Temperaturen. Zudem stehen eine Tiefgarage, ein Fahrradraum und eine Glasfaseranbindung zur Verfügung.



Lage:

Die Anbindung an den öffentlichen Verkehr ist hervorragend – die Buslinie 45A führt direkt zur U3-Station Ottakring. In der Umgebung finden sich zahlreiche Einkaufsmöglichkeiten sowie zahlreiche Grünflächen und Freizeitangebote. Der Wienerwald und der Pötzleinsdorfer Schlosspark sind ebenfalls schnell erreichbar.



Ein Garagenstellplatz steht zum Kauf für 37.000 € zur Verfügung.



Hinweis: Die beigefügten Fotos sind unverbindliche Visualisierungsbeispiele für mögliche Einrichtungsideen.

Visualisierungen: © JamJam


Wir weisen darauf hin, dass zwischen dem Vermittler und dem zu vermittelnden Dritten ein familiäres oder wirtschaftliches Naheverhältnis besteht.


Der Vermittler ist als Doppelmakler tätig.


Infrastruktur / Entfernungen

Gesundheit
Arzt <1.250m
Apotheke <1.250m
Klinik <750m
Krankenhaus <1.000m

Kinder & Schulen
Schule <1.250m
Kindergarten <1.000m
Universität <750m
Höhere Schule <2.250m

Nahversorgung
Supermarkt <1.250m
Bäckerei <1.250m
Einkaufszentrum <1.500m

Sonstige
Geldautomat <1.250m
Bank <1.250m
Post <1.500m
Polizei <1.250m

Verkehr
Bus <250m
U-Bahn <1.750m
Straßenbahn <1.250m
Bahnhof <1.750m
Autobahnanschluss <5.500m

Angaben Entfernung Luftlinie / Quelle: OpenStreetMap

Immobiliendetails

  • Nutzungsart
    Wohnen
  • Objektart
    Dachgeschosswohnung
  • Hauptobjektart
    Wohnung
  • Vertragsart
    Kauf
  • Objektzustand
    Neubau
  • Baujahr
    2025
  • Zimmer (gesamt)
    3
  • Anzahl Badezimmer
    1
  • Anzahl separate WC
    1
  • Wohnfläche (ca.)
    77,3 m²
  • Balkon
    1
  • Kellerfläche (ca.)
    4,77 m²
  • Balkon/Terrasse (ca.)
    11,06 m²
  • Stellplatzart
    Garage
  • Garagenstellplätze
    1
  • Objektzustand
    Neubau
  • Anbieter-Objektnummer
    1609/42368

Preise & Kosten

  • Courtage
    Provisionsfrei

Energie

  • Heizungsart
    Fussbodenheizung, Zentralheizung
  • Befeuerungsart
    Luft-/Wasserwärme
  • Energieausweis
    Energiebedarfsausweis
  • Energiepass gültig bis
    2034-09-05

Standort & Lage

Gallitzinstraße · 1160 Wien,Ottakring · AUT

Dokumente

Anbieter

Logo von RE/MAX First, REM Immobilienmakler GmbH & Co KG

RE/MAX First, REM Immobilienmakler GmbH & Co KG

Frau Johanna Prosenik
Hietzinger Hauptstr. 22/D/9
1130 Wien, Hietzing

Ansprechpartner

Karin Prosenik-Resch

Hietzinger Hauptstraße 22/D/ 2. Stock/ 9
1130 Wien
Verbraucherhinweis

Widerrufsbelehrung des Anbieters

(Gilt nicht für Wohnraummiete in Deutschland)

Widerrufsrecht für Verbraucher
Sie haben das Recht, binnen vierzehn Tagen ohne Angabe von Gründen diesen Vertrag zu widerrufen. Die Widerrufsfrist beträgt vierzehn Tage ab dem Tag des Vertragsabschlusses.
Um Ihr Widerrufsrecht auszuüben, müssen Sie uns (REM Immobilienmakler GmbH & Co KG, Hietzinger Hauptstr. 22/D/9, 1130 Wien, Hietzing, 0043 1 997 1000, hietzing@remax-first.at) mittels einer eindeutigen Erklärung (z. B. ein mit der Post versandter Brief, Telefax oder E-Mail) über Ihren Entschluss, diesen Vertrag zu widerrufen, informieren. Sie können dafür das beigefügte Muster-Widerrufsformular verwenden, das jedoch nicht vorgeschrieben ist. Zur Wahrung der Widerrufsfrist reicht es aus, dass Sie die Mitteilung über die Ausübung des Widerrufsrechts vor Ablauf der Widerrufsfrist absenden.

Folgen des Widerrufs
Wenn Sie diesen Vertrag widerrufen, haben wir Ihnen alle Zahlungen, die wir von Ihnen erhalten haben, einschließlich der Lieferkosten (mit Ausnahme der zusätzlichen Kosten, die sich daraus ergeben, dass Sie eine andere Art der Lieferung als die von uns angebotene, günstigste Standardlieferung gewählt haben), unverzüglich und spätestens binnen vierzehn Tagen ab dem Tag zurückzuzahlen, an dem die Mitteilung über Ihren Widerruf dieses Vertrags bei uns eingegangen ist. Für diese Rückzahlung verwenden wir dasselbe Zahlungsmittel, das Sie bei der ursprünglichen Transaktion eingesetzt haben, es sei denn, mit Ihnen wurde ausdrücklich etwas anderes vereinbart; in keinem Fall werden Ihnen wegen dieser Rückzahlung Entgelte berechnet. Haben Sie verlangt, dass die Dienstleistungen während der Widerrufsfrist beginnen soll, so haben Sie uns einen angemessenen Betrag zu zahlen, der dem Anteil der bis zu dem Zeitpunkt, zu dem Sie uns von der Ausübung des Widerrufsrechts hinsichtlich dieses Vertrags unterrichten, bereits erbrachten Dienstleistungen im Vergleich zum Gesamtumfang der im Vertrag vorgesehenen Dienstleistungen entspricht.

Muster-Widerrufsformular
(Wenn Sie den Vertrag widerrufen wollen, dann füllen Sie dieses Formular aus und senden Sie es zurück.)

An REM Immobilienmakler GmbH & Co KG, Hietzinger Hauptstr. 22/D/9, 1130 Wien, Hietzing, 0043 1 997 1000, hietzing@remax-first.at

Hiermit widerrufe ich/wir den von mir/uns abgeschlossenen Vertrag über den Kauf der folgenden Waren /die Erbringung der folgenden Dienstleistung


Bestellt am /erhalten am

Name des/der Verbraucher(s)

Anschrift des/der Verbraucher(s)

Unterschrift des/der Verbraucher(s) (nur bei Mitteilung auf Papier)

Datum


( Unzutreffendes streichen )


Hinweis auf die Möglichkeit eines vorzeitigen Erlöschens des Widerrufsrechts

Ihr Widerrufsrecht erlischt, wenn wir unsere Leistung vollständig erbracht haben und mit der Ausführung der Leistung erst begonnen haben, nachdem Sie Ihre ausdrückliche Zustimmung gegeben haben und gleichzeitig Ihre Kenntnis davon bestätigt haben, dass Sie Ihr Widerrufsrecht bei vollständiger Vertragserfüllung durch uns verlieren.

Impressum REM Immobilienmakler GmbH & Co KG
VERTRETUNGSBERECHTIGTE/R
Johanna Prosenik


Hietzinger Hauptstr. 22/D/9
1130 Wien, Hietzing
AUT
Tel.: 0043 1 997 1000
E-Mail: hietzing@remax-first.at
Homepage: https://www.remax-first.at

HANDELSREGISTER-EINTRAG
FN 301467i


UST-ID-NUMMER
ATU64073512
Anbieter kontaktieren

AGB, Datenschutz & Verbraucherhinweis wurden gelesen und akzeptiert.