Angebot 71 von 15378

Anbieter kontaktieren

AGB, Datenschutz & Verbraucherhinweis wurden gelesen und akzeptiert.

HausHirsch GmbH

Marina Glaubrecht
Al Karama Dubai
  • Mehr erfahren
bellevue.de-ID: 30620495

Atemberaubende 2Schlafzimmer-Wohnung, bezugsfertig

  • Wohnung
  • · 3 Zimmer
  • · 76 m² Wohnfläche
  • · 413.466 € Kaufpreis
Anbieter kontaktieren

Objektbeschreibung

Willkommen in einer geräumigen 2-Zimmer-Wohnung mit großem Grundriss, ideal für Familien und Investoren, die einen komfortablen und stilvollen Wohnraum suchen. Diese Wohnung bietet viel Platz für Entspannung und Unterhaltung, mit einem großzügigen ...mehr lesen
Willkommen in einer geräumigen 2-Zimmer-Wohnung mit großem Grundriss, ideal für Familien und Investoren, die einen komfortablen und stilvollen Wohnraum suchen. Diese Wohnung bietet viel Platz für Entspannung und Unterhaltung, mit einem großzügigen Wohnbereich und zwei gut ausgestatteten Schlafzimmern. Der offene Grundriss ermöglicht einen reibungslosen Übergang zwischen dem Wohnzimmer, dem Essbereich und der modernen Küche.

Die Wohnung ist geschmackvoll mit hochwertigen Oberflächen und Einrichtungsgegenständen gestaltet, die eine luxuriöse und einladende Atmosphäre schaffen. Die Schlafzimmer bieten viel Platz zum Ausruhen und Entspannen, mit großen Fenstern, die die Räume mit natürlichem Licht durchfluten.

Die Wohnung verfügt über moderne Annehmlichkeiten wie eine Waschmaschine und einen Trockner, eine Zentralheizung und eine Klimaanlage sowie reichlich Stauraum. Das Gebäude bietet außerdem Annehmlichkeiten wie ein Fitnesscenter, einen Swimmingpool und sichere Parkplätze.

Verpassen Sie nicht die Gelegenheit, diese atemberaubende Wohnung zu Ihrem neuen Zuhause oder zu Ihrem Anlageobjekt zu machen. Kontaktieren Sie uns noch heute, um einen Besichtigungstermin zu vereinbaren und erleben Sie den Charme und den Komfort dieser 2-Zimmer-Wohnung.

Immobiliendetails

  • Nutzungsart
    Wohnen
  • Objektart
    Etagenwohnung
  • Hauptobjektart
    Wohnung
  • Vertragsart
    Kauf
  • Objektzustand
    Erstbezug
  • Zimmer (gesamt)
    3
  • Anzahl Schlafzimmer
    2
  • Anzahl Badezimmer
    2
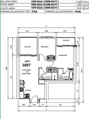
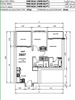
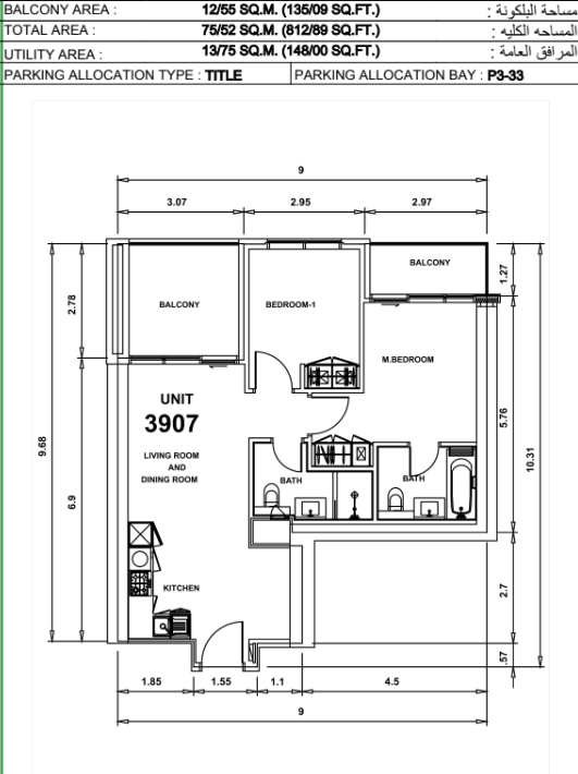
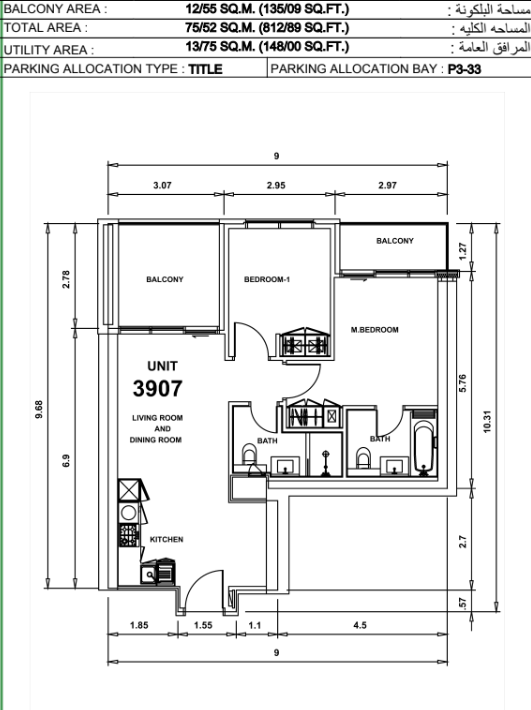
  • Wohnfläche (ca.)
    75,51 m²
  • Küche
    Einbauküche (EBK)
  • Balkon
    1
  • Denkmalschutzobjekt
  • Bad
    Duschbad, Bidet
  • Ausstattungskategorie
    Gehoben
  • Als Ferienobjekt nutzbar
  • Anbieter-Objektnummer
    Aykon City2 TC 2BHK APT 3907 - DV-9537

Preise & Kosten

  • Courtage
    Provisionsfrei

Energie

  • Gebäudeart
    Wohngebäude

Ausstattung

  • Garten
Wenn Sie diese exquisite 2-Schlafzimmer-Wohnung betreten, werden Sie sofort von einem atemberaubenden Blick auf das Meer, den Pool und das Stadtzentrum begrüßt. Der geräumige Wohnbereich ist perfekt, um Gäste zu empfangen oder einfach zu entspannen ...mehr lesen
Wenn Sie diese exquisite 2-Schlafzimmer-Wohnung betreten, werden Sie sofort von einem atemberaubenden Blick auf das Meer, den Pool und das Stadtzentrum begrüßt. Der geräumige Wohnbereich ist perfekt, um Gäste zu empfangen oder einfach zu entspannen und die atemberaubende Landschaft zu genießen.

Die moderne Küche ist mit erstklassigen Geräten und Annehmlichkeiten ausgestattet, die die Zubereitung von Mahlzeiten zum Kinderspiel machen. Stellen Sie sich vor, Sie kochen Ihr Abendessen, während Sie den Sonnenuntergang über dem Meer von Ihrem Küchenfenster aus beobachten.

Die Bewohner dieses luxuriösen Gebäudes haben Zugang zu einer Reihe von Annehmlichkeiten, darunter ein Schwimmbad, eine Sporthalle, ein Kinderbecken, ein SPA, Einzelhandelsgeschäfte, ein Grillplatz, ein Kinderspielplatz und ein VASTU-konformes Design. Ob Sie sich beim Schwimmen entspannen, im Fitnessstudio trainieren oder im Spa entspannen möchten, dieses Gebäude bietet alles, was Sie für einen komfortablen Lebensstil brauchen.

Die erstklassige Lage des Gebäudes bietet auch einen einfachen Zugang zu den nahe gelegenen Attraktionen und Annehmlichkeiten. Mit einer Vielzahl von Einkaufsmöglichkeiten, Restaurants und Unterhaltungsangeboten in unmittelbarer Nähe werden Sie nie genug zu tun haben. Außerdem ist das Gebäude so konzipiert, dass es eine friedliche und ruhige Umgebung bietet und somit der perfekte Rückzugsort vom Trubel der Stadt ist.

Lassen Sie sich die Gelegenheit nicht entgehen, diese atemberaubende 2-Zimmer-Wohnung zu besitzen und das ultimative Luxusleben zu erleben. Vereinbaren Sie noch heute einen Besichtigungstermin und überzeugen Sie sich selbst von der Schönheit und Eleganz dieser Wohnung.

Standort & Lage

Die Business Bay im Herzen von Dubai ist ein pulsierendes und geschäftiges Viertel, das eine Mischung aus Wohn-, Geschäfts- und Freizeitmöglichkeiten bietet.

- Mit Supermärkten, Arztpraxen und Apotheken in der Nähe sind die Dinge des täglichen ...mehr lesen
Die Business Bay im Herzen von Dubai ist ein pulsierendes und geschäftiges Viertel, das eine Mischung aus Wohn-, Geschäfts- und Freizeitmöglichkeiten bietet.

- Mit Supermärkten, Arztpraxen und Apotheken in der Nähe sind die Dinge des täglichen Bedarfs leicht zu erreichen. Die Bewohner finden hier alles, was sie für ihren täglichen Bedarf benötigen.

- Familien mit kleinen Kindern werden die Nähe zu verschiedenen Bildungsangeboten zu schätzen wissen, darunter Kindertagesstätten, Grundschulen, weiterführende Schulen und Universitäten, die eine hochwertige Ausbildung für jede Altersgruppe gewährleisten.

- Für Freizeit und Unterhaltung können die Bewohner die nahe gelegenen Einzelhandelszentren, gastronomischen Einrichtungen und Freizeitanlagen erkunden. Da das Stadtzentrum und andere beliebte Gegenden nur eine kurze Autofahrt entfernt sind, gibt es immer etwas Neues zu entdecken.

- Business Bay ist gut an die öffentlichen Verkehrsmittel angebunden, einschließlich der nächsten Bushaltestelle und Autobahnauffahrt. Das Pendeln in die verschiedenen Stadtteile ist problemlos möglich, so dass es ein idealer Standort für alle ist, die Wert auf Bequemlichkeit und Erreichbarkeit legen.

Mit seiner günstigen Lage und der Fülle an Annehmlichkeiten ist Business Bay der perfekte Ort zum Leben, Arbeiten und Spielen in der pulsierenden Stadt Dubai.

· Dubai · ARE

Ansprechpartner

Marina Glaubrecht

Hamsah Building, 1st Floor Office 112-6
Al Karama Dubai
Verbraucherhinweis

Widerrufsbelehrung des Anbieters

(Gilt nicht für Wohnraummiete in Deutschland)

Widerrufsrecht für Verbraucher
Sie haben das Recht, binnen vierzehn Tagen ohne Angabe von Gründen diesen Vertrag zu widerrufen. Die Widerrufsfrist beträgt vierzehn Tage ab dem Tag des Vertragsabschlusses.
Um Ihr Widerrufsrecht auszuüben, müssen Sie uns (HausHirsch GmbH, Dreischeibenhaus 1, 40211D Düsseldorf, +49 0 800 000 1244, +49 211 8825025, info@haushirsch.de) mittels einer eindeutigen Erklärung (z. B. ein mit der Post versandter Brief, Telefax oder E-Mail) über Ihren Entschluss, diesen Vertrag zu widerrufen, informieren. Sie können dafür das beigefügte Muster-Widerrufsformular verwenden, das jedoch nicht vorgeschrieben ist. Zur Wahrung der Widerrufsfrist reicht es aus, dass Sie die Mitteilung über die Ausübung des Widerrufsrechts vor Ablauf der Widerrufsfrist absenden.

Folgen des Widerrufs
Wenn Sie diesen Vertrag widerrufen, haben wir Ihnen alle Zahlungen, die wir von Ihnen erhalten haben, einschließlich der Lieferkosten (mit Ausnahme der zusätzlichen Kosten, die sich daraus ergeben, dass Sie eine andere Art der Lieferung als die von uns angebotene, günstigste Standardlieferung gewählt haben), unverzüglich und spätestens binnen vierzehn Tagen ab dem Tag zurückzuzahlen, an dem die Mitteilung über Ihren Widerruf dieses Vertrags bei uns eingegangen ist. Für diese Rückzahlung verwenden wir dasselbe Zahlungsmittel, das Sie bei der ursprünglichen Transaktion eingesetzt haben, es sei denn, mit Ihnen wurde ausdrücklich etwas anderes vereinbart; in keinem Fall werden Ihnen wegen dieser Rückzahlung Entgelte berechnet. Haben Sie verlangt, dass die Dienstleistungen während der Widerrufsfrist beginnen soll, so haben Sie uns einen angemessenen Betrag zu zahlen, der dem Anteil der bis zu dem Zeitpunkt, zu dem Sie uns von der Ausübung des Widerrufsrechts hinsichtlich dieses Vertrags unterrichten, bereits erbrachten Dienstleistungen im Vergleich zum Gesamtumfang der im Vertrag vorgesehenen Dienstleistungen entspricht.

Muster-Widerrufsformular
(Wenn Sie den Vertrag widerrufen wollen, dann füllen Sie dieses Formular aus und senden Sie es zurück.)

An HausHirsch GmbH, Dreischeibenhaus 1, 40211D Düsseldorf, +49 0 800 000 1244, +49 211 8825025, info@haushirsch.de

Hiermit widerrufe ich/wir den von mir/uns abgeschlossenen Vertrag über den Kauf der folgenden Waren /die Erbringung der folgenden Dienstleistung


Bestellt am /erhalten am

Name des/der Verbraucher(s)

Anschrift des/der Verbraucher(s)

Unterschrift des/der Verbraucher(s) (nur bei Mitteilung auf Papier)

Datum


( Unzutreffendes streichen )


Hinweis auf die Möglichkeit eines vorzeitigen Erlöschens des Widerrufsrechts

Ihr Widerrufsrecht erlischt, wenn wir unsere Leistung vollständig erbracht haben und mit der Ausführung der Leistung erst begonnen haben, nachdem Sie Ihre ausdrückliche Zustimmung gegeben haben und gleichzeitig Ihre Kenntnis davon bestätigt haben, dass Sie Ihr Widerrufsrecht bei vollständiger Vertragserfüllung durch uns verlieren.

Impressum HausHirsch GmbH
VERTRETUNGSBERECHTIGTE/R
Marius Wolf


Dreischeibenhaus 1
40211D Düsseldorf
DEU
Tel.: +49 0 800 000 1244
E-Mail: info@haushirsch.de
Fax: +49 211 8825025
Homepage: https://haushirsch.de

ZUSTÄNDIGE AUFSICHTSBEHÖRDE
Die Gewerbeanmeldung nach § 34 c GewO wurde durch Stadt Düsseldorf (www.duesseldorf.de) erteilt.

HANDELSREGISTER-EINTRAG
Amtsgericht Düsseldorf, HRB 99093


UST-ID-NUMMER
DE362155160
Anbieter kontaktieren

AGB, Datenschutz & Verbraucherhinweis wurden gelesen und akzeptiert.