Angebot 92 von 1618

Anbieter kontaktieren

AGB, Datenschutz & Verbraucherhinweis wurden gelesen und akzeptiert.

Properstar SA

Porta Da Frente - Christie`s International Real Estate
  • Mehr erfahren
bellevue.de-ID: 30620423

Wohnung zu kaufen in Cascais e Estoril, Portugal

  • Wohnung
  • · 3 Zimmer
  • · 141 m² Wohnfläche
  • · 1.895.000 € Kaufpreis
Anbieter kontaktieren

Objektbeschreibung

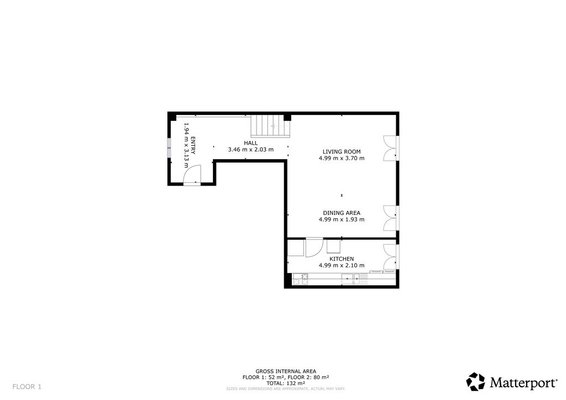
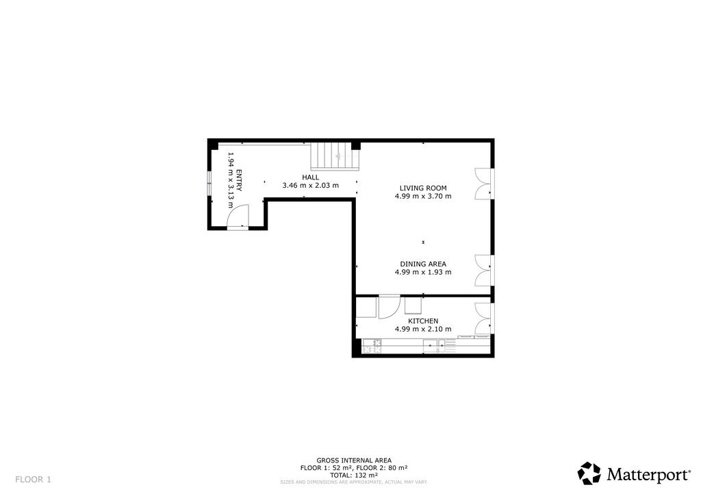
3 bedroom duplex apartment, fully furnished, inserted in a condominium with swimming pool in the center of Monte Estoril.~Apartment with 163m2 of private gross area, with great sun exposure and excellent sea view.~Composed of:~- hall with 11m2~- ...mehr lesen
3 bedroom duplex apartment, fully furnished, inserted in a condominium with swimming pool in the center of Monte Estoril.~Apartment with 163m2 of private gross area, with great sun exposure and excellent sea view.~Composed of:~- hall with 11m2~- living room with 29m2 with exit to balcony with 11m2~- kitchen with 11.5m2 fully equipped~Upper floor~- suite with 13m2 with wardrobes~- 2 bedrooms with 17m2 and 15.5m2 with wardrobes~- full bathroom~Apartment on the top floor of building, storage room with 5m2 and two parking spaces.~Located in one of the most privileged places on the Cascais line, close to the beach, local shops and easy access.~~Cascais is a Portuguese village known for its bay of beaches, commerce and cosmopolitanism. Considered the most sophisticated destination in the Lisbon region, the palaces and the refined elegance of all buildings prevail. With the sea at its feet, Cascais can boast of having 7 golf courses, a casino, a marina and numerous leisure spaces. 30 minutes from Lisbon and the international airport.

Immobiliendetails

  • Nutzungsart
    Wohnen
  • Objektart
    Apartment
  • Hauptobjektart
    Wohnung
  • Vertragsart
    Kauf
  • Zimmer (gesamt)
    3
  • Anzahl Schlafzimmer
    3
  • Anzahl Badezimmer
    2
  • Wohnfläche (ca.)
    141 m²
  • Nutzfläche (ca.)
    141 m²
  • Etage
    5
  • Anbieter-Objektnummer
    113250977

Preise & Kosten

  • Courtage
    Keine besondere Angabe.

Energie

  • Energieeffizienzklasse
    D

Ausstattung

  • Personenaufzug
  • Swimmingpool

Standort & Lage

2765- Cascais · PRT

Die genaue Anschrift erfahren Sie vom Anbieter

Videos

Ansprechpartner

Porta Da Frente - Christie`s International Real Estate


Verbraucherhinweis

Widerrufsbelehrung des Anbieters

(Gilt nicht für Wohnraummiete in Deutschland)

Widerrufsrecht für Verbraucher
Sie haben das Recht, binnen vierzehn Tagen ohne Angabe von Gründen diesen Vertrag zu widerrufen. Die Widerrufsfrist beträgt vierzehn Tage ab dem Tag des Vertragsabschlusses.
Um Ihr Widerrufsrecht auszuüben, müssen Sie uns (ListGlobally SA, Rue Mercerie 12, 1003 Lausanne, +49 800 0010536, support@listglobally.com) mittels einer eindeutigen Erklärung (z. B. ein mit der Post versandter Brief, Telefax oder E-Mail) über Ihren Entschluss, diesen Vertrag zu widerrufen, informieren. Sie können dafür das beigefügte Muster-Widerrufsformular verwenden, das jedoch nicht vorgeschrieben ist. Zur Wahrung der Widerrufsfrist reicht es aus, dass Sie die Mitteilung über die Ausübung des Widerrufsrechts vor Ablauf der Widerrufsfrist absenden.

Folgen des Widerrufs
Wenn Sie diesen Vertrag widerrufen, haben wir Ihnen alle Zahlungen, die wir von Ihnen erhalten haben, einschließlich der Lieferkosten (mit Ausnahme der zusätzlichen Kosten, die sich daraus ergeben, dass Sie eine andere Art der Lieferung als die von uns angebotene, günstigste Standardlieferung gewählt haben), unverzüglich und spätestens binnen vierzehn Tagen ab dem Tag zurückzuzahlen, an dem die Mitteilung über Ihren Widerruf dieses Vertrags bei uns eingegangen ist. Für diese Rückzahlung verwenden wir dasselbe Zahlungsmittel, das Sie bei der ursprünglichen Transaktion eingesetzt haben, es sei denn, mit Ihnen wurde ausdrücklich etwas anderes vereinbart; in keinem Fall werden Ihnen wegen dieser Rückzahlung Entgelte berechnet. Haben Sie verlangt, dass die Dienstleistungen während der Widerrufsfrist beginnen soll, so haben Sie uns einen angemessenen Betrag zu zahlen, der dem Anteil der bis zu dem Zeitpunkt, zu dem Sie uns von der Ausübung des Widerrufsrechts hinsichtlich dieses Vertrags unterrichten, bereits erbrachten Dienstleistungen im Vergleich zum Gesamtumfang der im Vertrag vorgesehenen Dienstleistungen entspricht.

Muster-Widerrufsformular
(Wenn Sie den Vertrag widerrufen wollen, dann füllen Sie dieses Formular aus und senden Sie es zurück.)

An ListGlobally SA, Rue Mercerie 12, 1003 Lausanne, +49 800 0010536, support@listglobally.com

Hiermit widerrufe ich/wir den von mir/uns abgeschlossenen Vertrag über den Kauf der folgenden Waren /die Erbringung der folgenden Dienstleistung


Bestellt am /erhalten am

Name des/der Verbraucher(s)

Anschrift des/der Verbraucher(s)

Unterschrift des/der Verbraucher(s) (nur bei Mitteilung auf Papier)

Datum


( Unzutreffendes streichen )


Hinweis auf die Möglichkeit eines vorzeitigen Erlöschens des Widerrufsrechts

Ihr Widerrufsrecht erlischt, wenn wir unsere Leistung vollständig erbracht haben und mit der Ausführung der Leistung erst begonnen haben, nachdem Sie Ihre ausdrückliche Zustimmung gegeben haben und gleichzeitig Ihre Kenntnis davon bestätigt haben, dass Sie Ihr Widerrufsrecht bei vollständiger Vertragserfüllung durch uns verlieren.

Impressum ListGlobally SA
VERTRETUNGSBERECHTIGTE/R
Properstar SA


Rue Mercerie 12
1003 Lausanne
CHE
Tel.: +49 800 0010536
E-Mail: support@listglobally.com
Homepage: https://www.listglobally.com/
Anbieter kontaktieren

AGB, Datenschutz & Verbraucherhinweis wurden gelesen und akzeptiert.