Angebot 6878 von 18696

Anbieter kontaktieren

AGB, Datenschutz & Verbraucherhinweis wurden gelesen und akzeptiert.

Green-acres

Niccolò Cellini
  • Mehr erfahren
bellevue.de-ID: 30620157

Historische Immobilie, in die man sich verlieben kann

  • Haus
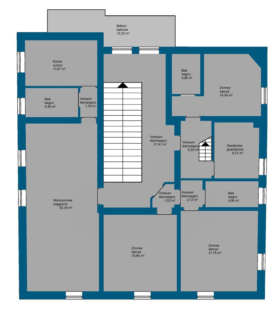
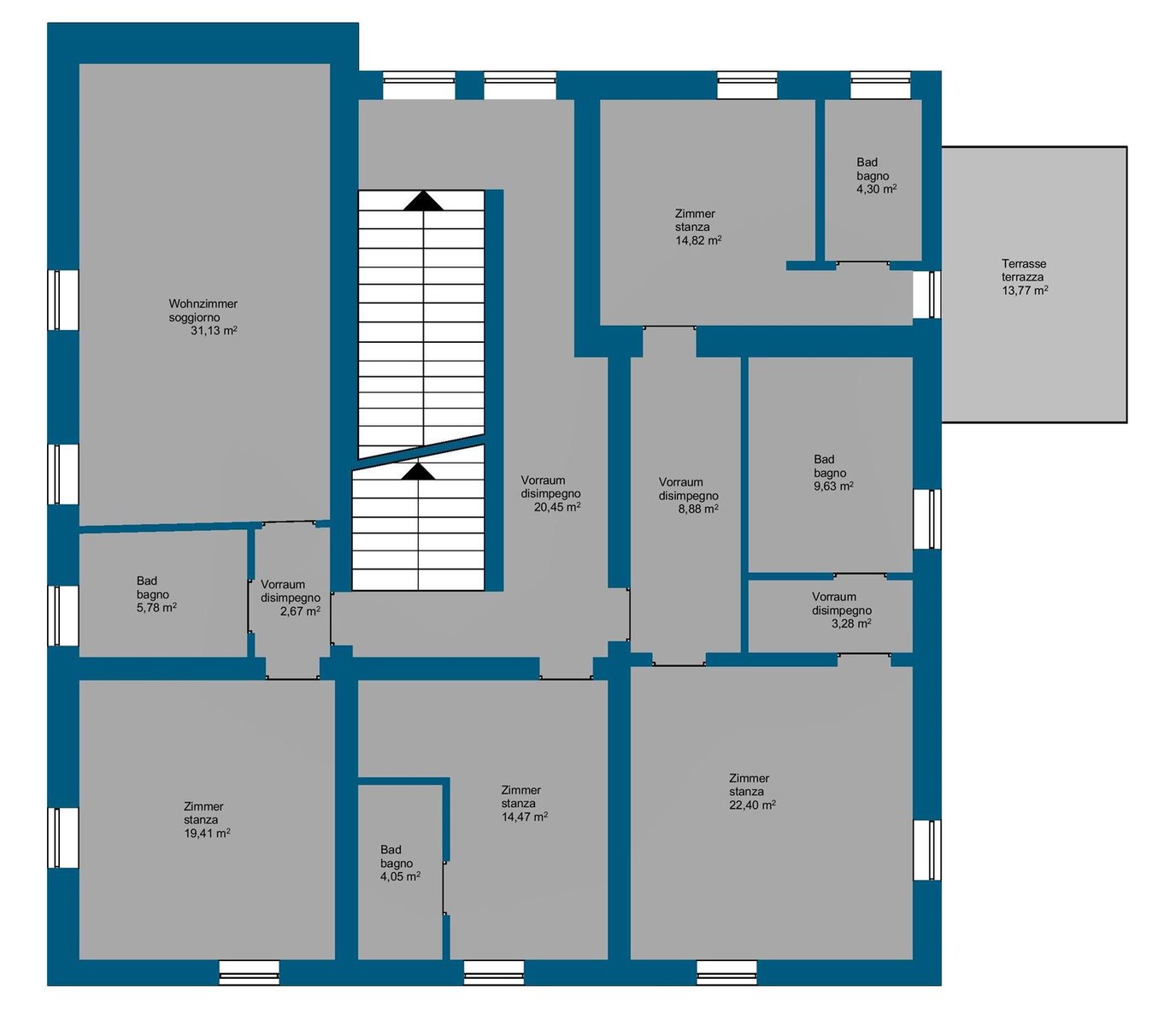
  • · 1.650 m² Wohnfläche
  • · 190.000 m² Grundstücksfläche
  • · 7.500.000 € Kaufpreis
Anbieter kontaktieren

Objektbeschreibung

Diese prächtige Villa ist eine historische Residenz mit besonderem Charme, eingebettet in eine ruhige und exklusive Hügellandschaft, nur wenige Minuten von Pistoia entfernt. Sie wurde Anfang des neunzehnten Jahrhunderts vom Ingenieur Parri erbaut, ...mehr lesen
Diese prächtige Villa ist eine historische Residenz mit besonderem Charme, eingebettet in eine ruhige und exklusive Hügellandschaft, nur wenige Minuten von Pistoia entfernt. Sie wurde Anfang des neunzehnten Jahrhunderts vom Ingenieur Parri erbaut, dem Entwerfer der ersten Eisenbahnlinie in Mittelitalien. Anlässlich der Einweihung dieser Eisenbahnlinie wohnten auch der Großherzog von Toskana Leopold II. und der Kronprinz von Italien in der Villa, was ihre historische Bedeutung bis heute greifbar macht.
Nach einer sorgfältigen Restaurierung in den 80er Jahren und einer kompletten Neurenovierung 2011/2012 verbindet die Villa heute den Charme vergangener Zeiten mit modernem Komfort. Elegante Deluxe-Zimmer, Suiten und Apartments bieten eine entspannte Atmosphäre, die harmonisch in den großzügigen Park einfügt. Umgeben von Blumen, Zypressen, Obstbäumen, aromatischen Kräutern und imposanten, jahrhundertealten Magnolien, lädt das Anwesen mit seinem panoramischen Infinity-Pool, einer gemütlichen Poolbar, einem Outdoor-Wellnessbereich mit Sauna und Whirlpool sowie einem kleinen Fitnessraum zum Verweilen ein. Mehrere terrassierte Gärten mit Pavillons und liebevoll gestalteten Entspannungsbereichen schaffen zusätzliche Rückzugsorte, umgeben von Grünflächen.
Das historische Limonaia ist heute ein einladender Frühstücksraum mit eigener Küche, Holzofen und Kamin. Die Villa verfügt außerdem über eine weitere professionelle Küche. In einem separaten Gebäude, das 2015 renoviert wurde, der ehemaligen Werkstatt, wurden zwei charmante Apartments mit einer privaten Terrasse und Räumen als Keller, Lagerhaus und Speisekammer geschaffen. Ein weiteres kleines Holzgebäude beherbergt die Wäscherei, den Bügelraum und die Toiletten für das Personal.
Auf einer höheren Terrasse, umgeben von Olivenbäumen, befindet sich das elegante Restaurant mit Veranda und professioneller offener Küche. Ein isolierter Behälter dient als Vorratskammer, während ein kleines Holzhaus mit zwei Toiletten für Gäste zur Verfügung steht. Zwei große Parkplätze am Rand des Grundstücks garantieren einen bequemen Zugang.
Das Anwesen umfasst insgesamt etwa 19 Hektar Land, das bis zum Gipfel des Hügels reicht. Neben etwa 800 Olivenbäumen und 15.000 Heilpflanzen gibt es auch eine Bienenzucht mit 40 Bienenstöcken; Ein Teil des Landes ist bewaldet. Die Verwaltung wird durch zahlreiche landwirtschaftliche Geräte unterstützt, sodass Villa Parri seine einzigartige natürliche Umgebung in all ihrer Pracht bewahren kann.

Immobiliendetails

  • Nutzungsart
    Wohnen
  • Hauptobjektart
    Haus
  • Vertragsart
    Kauf
  • Wohnfläche (ca.)
    1.650 m²
  • Grundstücksfläche (ca.)
    190.000 m²
  • Anbieter-Objektnummer
    R06692PIAG

Preise & Kosten

  • Courtage
    Keine besondere Angabe.

Standort & Lage

51100 Pistoia · ITA

Die genaue Anschrift erfahren Sie vom Anbieter

Anbieter

Verbraucherhinweis

Widerrufsbelehrung des Anbieters

(Gilt nicht für Wohnraummiete in Deutschland)

Widerrufsrecht für Verbraucher
Sie haben das Recht, binnen vierzehn Tagen ohne Angabe von Gründen diesen Vertrag zu widerrufen. Die Widerrufsfrist beträgt vierzehn Tage ab dem Tag des Vertragsabschlusses.
Um Ihr Widerrufsrecht auszuüben, müssen Sie uns (Green-acres, Boulevard du Montparnasse 100, 75014 Paris, ., valentin.fontaine@green-acres.com) mittels einer eindeutigen Erklärung (z. B. ein mit der Post versandter Brief, Telefax oder E-Mail) über Ihren Entschluss, diesen Vertrag zu widerrufen, informieren. Sie können dafür das beigefügte Muster-Widerrufsformular verwenden, das jedoch nicht vorgeschrieben ist. Zur Wahrung der Widerrufsfrist reicht es aus, dass Sie die Mitteilung über die Ausübung des Widerrufsrechts vor Ablauf der Widerrufsfrist absenden.

Folgen des Widerrufs
Wenn Sie diesen Vertrag widerrufen, haben wir Ihnen alle Zahlungen, die wir von Ihnen erhalten haben, einschließlich der Lieferkosten (mit Ausnahme der zusätzlichen Kosten, die sich daraus ergeben, dass Sie eine andere Art der Lieferung als die von uns angebotene, günstigste Standardlieferung gewählt haben), unverzüglich und spätestens binnen vierzehn Tagen ab dem Tag zurückzuzahlen, an dem die Mitteilung über Ihren Widerruf dieses Vertrags bei uns eingegangen ist. Für diese Rückzahlung verwenden wir dasselbe Zahlungsmittel, das Sie bei der ursprünglichen Transaktion eingesetzt haben, es sei denn, mit Ihnen wurde ausdrücklich etwas anderes vereinbart; in keinem Fall werden Ihnen wegen dieser Rückzahlung Entgelte berechnet. Haben Sie verlangt, dass die Dienstleistungen während der Widerrufsfrist beginnen soll, so haben Sie uns einen angemessenen Betrag zu zahlen, der dem Anteil der bis zu dem Zeitpunkt, zu dem Sie uns von der Ausübung des Widerrufsrechts hinsichtlich dieses Vertrags unterrichten, bereits erbrachten Dienstleistungen im Vergleich zum Gesamtumfang der im Vertrag vorgesehenen Dienstleistungen entspricht.

Muster-Widerrufsformular
(Wenn Sie den Vertrag widerrufen wollen, dann füllen Sie dieses Formular aus und senden Sie es zurück.)

An Green-acres, Boulevard du Montparnasse 100, 75014 Paris, ., valentin.fontaine@green-acres.com

Hiermit widerrufe ich/wir den von mir/uns abgeschlossenen Vertrag über den Kauf der folgenden Waren /die Erbringung der folgenden Dienstleistung


Bestellt am /erhalten am

Name des/der Verbraucher(s)

Anschrift des/der Verbraucher(s)

Unterschrift des/der Verbraucher(s) (nur bei Mitteilung auf Papier)

Datum


( Unzutreffendes streichen )


Hinweis auf die Möglichkeit eines vorzeitigen Erlöschens des Widerrufsrechts

Ihr Widerrufsrecht erlischt, wenn wir unsere Leistung vollständig erbracht haben und mit der Ausführung der Leistung erst begonnen haben, nachdem Sie Ihre ausdrückliche Zustimmung gegeben haben und gleichzeitig Ihre Kenntnis davon bestätigt haben, dass Sie Ihr Widerrufsrecht bei vollständiger Vertragserfüllung durch uns verlieren.

Impressum
VERTRETUNGSBERECHTIGTE/R
Valentin Fontaine


Boulevard du Montparnasse 100
75014 Paris
FRA
Tel.: .
E-Mail: valentin.fontaine@green-acres.com
Homepage: https://www.green-acres.com
Anbieter kontaktieren

AGB, Datenschutz & Verbraucherhinweis wurden gelesen und akzeptiert.