Angebot 770 von 15391

Anbieter kontaktieren

AGB, Datenschutz & Verbraucherhinweis wurden gelesen und akzeptiert.

Immobilien Berger

Bild/Logo: Dietmar Pursch
Dietmar Pursch
69115 Heidelberg
  • Mehr erfahren
bellevue.de-ID: 30619169

Zum Wohlfühlen! Hell, freundlich, super Grundriss und mit Tiefgaragen-Stellplatz!

  • Wohnung
  • · 2 Zimmer
  • · 52 m² Wohnfläche
  • · 189.000 € Kaufpreis
Anbieter kontaktieren

Objektbeschreibung

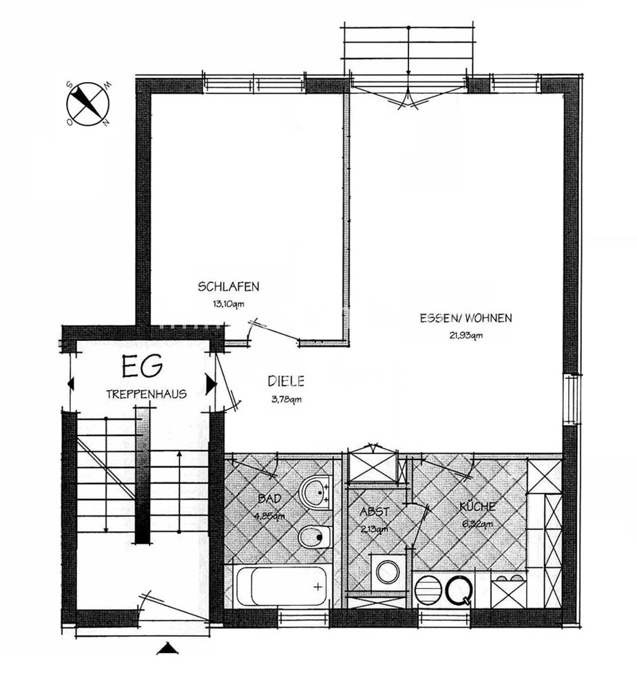
Ansprechende 2-Zimmer-Wohnung in einem attraktiven Wohngebäude mit begrüntem Innenhof. Das Gebäude wurde in gefälliger und aufgelockerter Bauweise im Dossenheimer Ortskern erstellt.
Die im Erdgeschoss gelegene Wohnung bietet Ihnen ein zum ruhigen ...mehr lesen
Ansprechende 2-Zimmer-Wohnung in einem attraktiven Wohngebäude mit begrüntem Innenhof. Das Gebäude wurde in gefälliger und aufgelockerter Bauweise im Dossenheimer Ortskern erstellt.
Die im Erdgeschoss gelegene Wohnung bietet Ihnen ein zum ruhigen Innenhof ausgerichtetes Schlafzimmer und ein Wohnzimmer mit bodentiefen Fenstern, durch welches Sie auf die Terrasse gelangen. Der offene Dielenbereich, die helle Tageslichtküche mit Einbauküche, ein Tageslichtbad mit Wanne und ein separater Abstellraum mit Waschmaschinenanschluss, ein separater Kellerraum sowie der Tiefgaragenstellplatz für Ihr Auto runden das Angebot ab.
Ausgestattet ist die Wohnung mit Fliesen- und Vinylboden, beheizt sie wird mittels einer Gaszentralheizung. Sie ist seit 2017 an einen solventen Mieter vermietet, der jährliche Nettomieteingang inkl. TG-Stellplatz beträgt € 6.480,--.
Gerne stellen wir Ihnen die Wohnung bei einer persönlichen Besichtigung vor!

Immobiliendetails

  • Nutzungsart
    Wohnen
  • Objektart
    Erdgeschosswohnung
  • Hauptobjektart
    Wohnung
  • Vertragsart
    Kauf
  • Baujahr
    1997
  • Zimmer (gesamt)
    2
  • Anzahl Schlafzimmer
    1
  • Anzahl Badezimmer
    1
  • Anzahl Parkflächen
    1
  • Wohnfläche (ca.)
    52 m²
  • Küche
    Einbauküche (EBK)
  • Bad
    Bad mit Dusche und Badewanne, Bad mit Fenster
  • Tiefgaragenstellplätze
    1
  • Anzahl Etagen
    3
  • Anbieter-Objektnummer
    250064

Preise & Kosten

  • Courtage
    3,57 % inklusive der gesetzlichen Mehrwertsteuer

Energie

  • Heizungsart
    Zentralheizung
  • Befeuerungsart
    Gas
  • Energieausweis
    Energieverbrauchsausweis
  • Endenergieverbrauch
    130 kWh/(m²*a)
  • Baujahr (laut Energieausweis)
    1997
  • Energiepass gültig bis
    2028-03-07
  • Energieeffizienzklasse
    E
  • Gebäudeart
    Wohngebäude
  • Wesentlicher Energieträger
    GAS
  • Ausgestellt
    nach dem 1.5.2014

Ausstattung

  • Keller

Standort & Lage

Dossenheim ist eine über 1200 Jahre alte Gemeinde mit ca. 12.000 Einwohnern. Die Gemeinde liegt an der landschaftlich reizvollen Bergstraße in direkter Nachbarschaft zu Heidelberg. Weinberge schließen sich an den Hängen dem Wald an und prägen die ...mehr lesen
Dossenheim ist eine über 1200 Jahre alte Gemeinde mit ca. 12.000 Einwohnern. Die Gemeinde liegt an der landschaftlich reizvollen Bergstraße in direkter Nachbarschaft zu Heidelberg. Weinberge schließen sich an den Hängen dem Wald an und prägen die Bergstraßenlandschaft. Wander- und Radwege laden zu erholsamen Spaziergängen ein. Ebenfalls beliebte Ausflugsziele sind die Ruine Schauenburg, eine unter Denkmalschutz stehende Burgruine aus dem 13. bis 15. Jahrhundert und der 550 m hohe Weiße Stein, der höchste Punkt der Gemeinde am Rande des Odenwalds. Dossenheim hat ein reges Vereinsleben. Mehr als 60 Sport- und Kulturvereine bieten ein vielfältiges Freizeitangebot.

69221 Dossenheim · Dossenheim · Baden-Württemberg · DEU

Die genaue Anschrift erfahren Sie vom Anbieter

Sonstiges

Bitte haben Sie Verständnis, dass wir Ihre Anfrage nur mit vollständigen Kontaktdaten bearbeiten können (Name, Adresse, Straße, PLZ/Ort, Telefon, Email).

2025: Laut Focus-Immobilien-Spezial haben uns Kunden und Kollegen auch in diesem Jahr wieder zu ...mehr lesen
Bitte haben Sie Verständnis, dass wir Ihre Anfrage nur mit vollständigen Kontaktdaten bearbeiten können (Name, Adresse, Straße, PLZ/Ort, Telefon, Email).

2025: Laut Focus-Immobilien-Spezial haben uns Kunden und Kollegen auch in diesem Jahr wieder zu Deutschlands Top-Immobilienmaklern gewählt.

Sie wollen auch eine Immobilie verkaufen oder vermieten?
Dann rufen Sie uns doch einfach an.
Gerne stehen wir Ihnen für ein erstes unverbindliches Gespräch zur Verfügung.

Anbieter

Logo von Immobilien Berger
2026 Best Property Agents

Ansprechpartner

Verbraucherhinweis

Im Falle eines zustande kommenden Vertrages haben Verbraucher das folgende Widerrufsrecht: Sie können Ihre Vertragserklärung innerhalb von 14 Tagen ohne Angabe von Gründen in Textform (z. B. Brief, Fax, E-Mail) widerrufen. Die Frist beginnt nach Erhalt dieser Belehrung in Textform, jedoch nicht vor Vertragsschluss und auch nicht vor Erfüllung unserer Informationspflichten gemäß Artikel 246 § 2 in Verbindung mit § 1 Absatz 1 und 2 EGBGB sowie unserer Pflichten gemäß § 312e Abs. 1 Satz 1 BGB in Verbindung mit Artikel 246 § 3 EGBGB. Zur Wahrung der Widerrufsfrist genügt die rechtzeitige Absendung des Widerrufs. Der Widerruf ist zu richten an: Immobilien Berger Poststr. 46 69115 Heidelberg Fax-Nr.: 06221 820010 info@immobilien-berger.com Widerrufsfolgen: Im Falle eines wirksamen Widerrufs sind die beiderseits empfangenen Leistungen zurück zu gewähren und ggf. gezogene Nutzungen (z. B. Zinsen) herauszugeben. Können Sie uns die empfangene Leistung ganz oder teilweise nicht oder nur in verschlechtertem Zustand zurückgewähren, müssen Sie uns insoweit ggf. Wertersatz leisten. Dies kann dazu führen, dass Sie die vertraglichen Zahlungsverpflichtungen für den Zeitraum bis zum Widerruf gleichwohl erfüllen müssen. Verpflichtungen zur Erstattung von Zahlungen müssen innerhalb von 30 Tagen erfüllt werden. Die Frist beginnt für Sie mit der Absendung Ihrer Widerrufserklärung, für uns mit deren Empfang. Besondere Hinweise: Ihr Widerrufsrecht erlischt vorzeitig, wenn der Vertrag von beiden Seiten auf Ihren ausdrücklichen Wunsch vollständig erfüllt ist, bevor Sie Ihr Widerrufsrecht ausgeübt haben.

Impressum Immobilien Berger e.K.
VERTRETUNGSBERECHTIGTE/R
Rüdiger Berger


Poststraße 46
69115 Heidelberg
DEU
Tel.: 06221 8200-0
E-Mail: info@immobilien-berger.com
Fax: 0622108200-10
Homepage: www.immobilien-berger.com

ZUSTÄNDIGE AUFSICHTSBEHÖRDE
IHK Rhein-Neckar L1, 2 68161 Mannheim

HANDELSREGISTER-EINTRAG
AG Mannheim, HRA 332788
Stadt Heidelberg

UST-ID-NUMMER
DE143265836
Anbieter kontaktieren

AGB, Datenschutz & Verbraucherhinweis wurden gelesen und akzeptiert.