Angebot 63 von 14904

Anbieter kontaktieren

AGB, Datenschutz & Verbraucherhinweis wurden gelesen und akzeptiert.

HausHirsch GmbH

Alexander Ferati
Al Karama Dubai
  • Mehr erfahren
bellevue.de-ID: 30618685

Direkt am Meer gelegenes Super-Luxus-Apartment mit 2 Schlafzimmern und riesigem Balkon mit Meerblick

  • Wohnung
  • · 3 Zimmer
  • · 324 m² Wohnfläche
  • · 5.951.793 € Kaufpreis
Anbieter kontaktieren

Objektbeschreibung

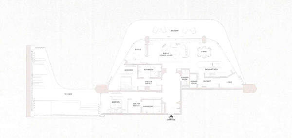
Diese 2-Schlafzimmer-Superluxuswohnung ist der Inbegriff von Raffinesse und Eleganz. Ideal für Familien und Investoren, die die perfekte Kombination aus Komfort und Stil suchen, bietet diese Wohnung eine Reihe von Premium-Merkmalen, die sie vom Rest ...mehr lesen
Diese 2-Schlafzimmer-Superluxuswohnung ist der Inbegriff von Raffinesse und Eleganz. Ideal für Familien und Investoren, die die perfekte Kombination aus Komfort und Stil suchen, bietet diese Wohnung eine Reihe von Premium-Merkmalen, die sie vom Rest abheben. Vom geräumigen Wohnzimmer mit bodentiefen Fenstern, die eine atemberaubende Aussicht bieten, bis hin zur Gourmet-Küche, die mit erstklassigen Geräten ausgestattet ist, wurde jedes Detail sorgfältig bedacht, um ein wahrhaft luxuriöses Wohnerlebnis zu schaffen. Die beiden Schlafzimmer sind großzügig geschnitten und bieten viel Stauraum, während die beiden Bäder mit modernen Armaturen und Oberflächen ausgestattet sind. Mit dem Zugang zu einer Reihe von Annehmlichkeiten wie einem Fitnesscenter, einer Dachterrasse und einem 24-Stunden-Concierge-Service bietet diese Wohnung wahrhaftig das Nonplusultra des Luxuslebens. Verpassen Sie nicht die Gelegenheit, ein Stück Luxus in dieser exklusiven Lage zu besitzen!

Immobiliendetails

  • Nutzungsart
    Wohnen
  • Objektart
    Etagenwohnung
  • Hauptobjektart
    Wohnung
  • Vertragsart
    Kauf
  • Objektzustand
    Erstbezug
  • Zimmer (gesamt)
    3
  • Anzahl Schlafzimmer
    2
  • Anzahl Badezimmer
    2
  • Wohnfläche (ca.)
    324,42 m²
  • Nutzfläche (ca.)
    185,44 m²
  • Küche
    Einbauküche (EBK)
  • Balkon
    1
  • Denkmalschutzobjekt
  • Balkon/Terrasse (ca.)
    138,98 m²
  • Bad
    Duschbad, Bad mit Dusche und Badewanne, Bidet
  • Stellplatzart
    Parkhaus
  • Ausstattungskategorie
    Luxus
  • Anbieter-Objektnummer
    Peninsula Residences T1-B-601 2BHK APT - DV-9424

Preise & Kosten

  • Courtage
    Provisionsfrei

Energie

  • Gebäudeart
    Wohngebäude

Ausstattung

  • Gäste-WC
  • Klimanalage
Wenn Sie dieses Super-Luxus-Apartment mit 2 Schlafzimmern betreten, werden Sie von einer Welt unvergleichlicher Wellness- und Erholungseinrichtungen begrüßt. Nehmen Sie ein Bad in einem der zahlreichen Infinity-Pools, die alle einen atemberaubenden ...mehr lesen
Wenn Sie dieses Super-Luxus-Apartment mit 2 Schlafzimmern betreten, werden Sie von einer Welt unvergleichlicher Wellness- und Erholungseinrichtungen begrüßt. Nehmen Sie ein Bad in einem der zahlreichen Infinity-Pools, die alle einen atemberaubenden Blick auf den Arabischen Golf und die Skyline von Dubai bieten. Halten Sie sich im hochmodernen Fitnesscenter in Form oder gönnen Sie sich etwas Entspannung in den luxuriösen Spa-Bereichen und der Sauna. Finden Sie Ihren inneren Frieden in den Yoga- und Meditationsstudios, oder fordern Sie Ihre Freunde zu einem Spiel auf den Tennis- oder Volleyballplätzen heraus. Erkunden Sie die Uferpromenade, die zu einem gemütlichen Spaziergang einlädt und direkten Zugang zu den Docks des Yachthafens bietet. Tauchen Sie ein in die wunderschön angelegten Gärten mit Boulevards und geschützten Lounges. Aktiven Bewohnern stehen Jogging- und Fahrradwege zur Verfügung, während die großen Aufenthaltsräume und Gemeinschaftsräume für gesellige Abende genutzt werden können. Gönnen Sie sich eine Mahlzeit in einem der feinen Restaurants an der Promenade oder sehen Sie sich einen Film im Freiluftkino an. Für die Kinder gibt es eigene Spielbereiche und einen Kids' Club, der für endlose Unterhaltung sorgt. Verlassen Sie sich auf den 24/7-Concierge-Service für alle Ihre Bedürfnisse, und seien Sie sicher, dass Sie rund um die Uhr von einem professionellen Sicherheitsdienst betreut werden. Freuen Sie sich auf die Zukunft mit integrierter Smart-Home-Technologie in jeder Wohnung und schaffen Sie unvergessliche Erinnerungen in dem für gesellige Zusammenkünfte vorgesehenen Grillbereich im Freien. Günstig gelegene Einzelhandelsgeschäfte ermöglichen einen einfachen Zugang zu Supermärkten und Dingen des täglichen Bedarfs innerhalb des Komplexes. Erleben Sie den Inbegriff des luxuriösen Wohnens in diesem Super-Luxus-Apartment mit 2 Schlafzimmern, wo jedes Detail durchdacht ist, um Ihren Lebensstil zu verbessern.

Standort & Lage

Diese atemberaubende Immobilie befindet sich im prestigeträchtigen Viertel Jumeirah Second in Dubai und bietet eine unvergleichliche Lage mit einer Fülle von Annehmlichkeiten und Attraktionen in der Nähe. Höhepunkte der Nachbarschaft: - Ein ...mehr lesen
Diese atemberaubende Immobilie befindet sich im prestigeträchtigen Viertel Jumeirah Second in Dubai und bietet eine unvergleichliche Lage mit einer Fülle von Annehmlichkeiten und Attraktionen in der Nähe. Höhepunkte der Nachbarschaft: - Ein Supermarkt, Arztpraxen und Apotheken befinden sich in unmittelbarer Nähe, so dass die Dinge des täglichen Bedarfs leicht erreichbar sind. - Die Gegend bietet eine Reihe von Bildungseinrichtungen, darunter Kindergärten, Grundschulen, weiterführende Schulen und Universitäten. - Die Bewohner können in der Nähe zahlreiche Freizeitaktivitäten genießen, mit verschiedenen Unterhaltungsmöglichkeiten, einem pulsierenden Stadtzentrum und einfachem Zugang zur pulsierenden Stadt Dubai. - Die nächste Bushaltestelle und die Autobahnauffahrt sind nur wenige Schritte entfernt. Vergessen Sie nicht, die nahe gelegenen Attraktionen und Einrichtungen zu erwähnen, um den Wert der Immobilie zu steigern!

Al Ghelaan Street · Dubai · ARE

Ansprechpartner

Alexander Ferati

Hamsah Building, 1st Floor Office 112-6
Al Karama Dubai
Verbraucherhinweis

Widerrufsbelehrung des Anbieters

(Gilt nicht für Wohnraummiete in Deutschland)

Widerrufsrecht für Verbraucher
Sie haben das Recht, binnen vierzehn Tagen ohne Angabe von Gründen diesen Vertrag zu widerrufen. Die Widerrufsfrist beträgt vierzehn Tage ab dem Tag des Vertragsabschlusses.
Um Ihr Widerrufsrecht auszuüben, müssen Sie uns (HausHirsch GmbH, Dreischeibenhaus 1, 40211D Düsseldorf, +49 0 800 000 1244, +49 211 8825025, info@haushirsch.de) mittels einer eindeutigen Erklärung (z. B. ein mit der Post versandter Brief, Telefax oder E-Mail) über Ihren Entschluss, diesen Vertrag zu widerrufen, informieren. Sie können dafür das beigefügte Muster-Widerrufsformular verwenden, das jedoch nicht vorgeschrieben ist. Zur Wahrung der Widerrufsfrist reicht es aus, dass Sie die Mitteilung über die Ausübung des Widerrufsrechts vor Ablauf der Widerrufsfrist absenden.

Folgen des Widerrufs
Wenn Sie diesen Vertrag widerrufen, haben wir Ihnen alle Zahlungen, die wir von Ihnen erhalten haben, einschließlich der Lieferkosten (mit Ausnahme der zusätzlichen Kosten, die sich daraus ergeben, dass Sie eine andere Art der Lieferung als die von uns angebotene, günstigste Standardlieferung gewählt haben), unverzüglich und spätestens binnen vierzehn Tagen ab dem Tag zurückzuzahlen, an dem die Mitteilung über Ihren Widerruf dieses Vertrags bei uns eingegangen ist. Für diese Rückzahlung verwenden wir dasselbe Zahlungsmittel, das Sie bei der ursprünglichen Transaktion eingesetzt haben, es sei denn, mit Ihnen wurde ausdrücklich etwas anderes vereinbart; in keinem Fall werden Ihnen wegen dieser Rückzahlung Entgelte berechnet. Haben Sie verlangt, dass die Dienstleistungen während der Widerrufsfrist beginnen soll, so haben Sie uns einen angemessenen Betrag zu zahlen, der dem Anteil der bis zu dem Zeitpunkt, zu dem Sie uns von der Ausübung des Widerrufsrechts hinsichtlich dieses Vertrags unterrichten, bereits erbrachten Dienstleistungen im Vergleich zum Gesamtumfang der im Vertrag vorgesehenen Dienstleistungen entspricht.

Muster-Widerrufsformular
(Wenn Sie den Vertrag widerrufen wollen, dann füllen Sie dieses Formular aus und senden Sie es zurück.)

An HausHirsch GmbH, Dreischeibenhaus 1, 40211D Düsseldorf, +49 0 800 000 1244, +49 211 8825025, info@haushirsch.de

Hiermit widerrufe ich/wir den von mir/uns abgeschlossenen Vertrag über den Kauf der folgenden Waren /die Erbringung der folgenden Dienstleistung


Bestellt am /erhalten am

Name des/der Verbraucher(s)

Anschrift des/der Verbraucher(s)

Unterschrift des/der Verbraucher(s) (nur bei Mitteilung auf Papier)

Datum


( Unzutreffendes streichen )


Hinweis auf die Möglichkeit eines vorzeitigen Erlöschens des Widerrufsrechts

Ihr Widerrufsrecht erlischt, wenn wir unsere Leistung vollständig erbracht haben und mit der Ausführung der Leistung erst begonnen haben, nachdem Sie Ihre ausdrückliche Zustimmung gegeben haben und gleichzeitig Ihre Kenntnis davon bestätigt haben, dass Sie Ihr Widerrufsrecht bei vollständiger Vertragserfüllung durch uns verlieren.

Impressum HausHirsch GmbH
VERTRETUNGSBERECHTIGTE/R
Marius Wolf


Dreischeibenhaus 1
40211D Düsseldorf
DEU
Tel.: +49 0 800 000 1244
E-Mail: info@haushirsch.de
Fax: +49 211 8825025
Homepage: https://haushirsch.de

ZUSTÄNDIGE AUFSICHTSBEHÖRDE
Die Gewerbeanmeldung nach § 34 c GewO wurde durch Stadt Düsseldorf (www.duesseldorf.de) erteilt.

HANDELSREGISTER-EINTRAG
Amtsgericht Düsseldorf, HRB 99093


UST-ID-NUMMER
DE362155160
Anbieter kontaktieren

AGB, Datenschutz & Verbraucherhinweis wurden gelesen und akzeptiert.