Angebot 6815 von 18187

Anbieter kontaktieren

AGB, Datenschutz & Verbraucherhinweis wurden gelesen und akzeptiert.

Properstar SA

Atrium Real Estate
  • Mehr erfahren
bellevue.de-ID: 30618069

Haus zu kaufen in União das freguesias de Oeiras e São Julião da Barra, Paço de Arcos e Caxias, Portugal

  • Haus
  • · 15 Zimmer
  • · 1.139 m² Wohnfläche
  • · 5.600 m² Grundstücksfläche
  • · 12.500.000 € Kaufpreis
Anbieter kontaktieren

Objektbeschreibung

Willkommen in der Quinta do Relógio, einem majestätischen Palast aus dem 19. Jahrhundert am Ufer des Paço de Arcos, in der angesehenen Küstengemeinde Oeiras, westlich von Lissabon. Um 1860 unter der Leitung des Architekten Cinatti de Siena erbaut, ...mehr lesen
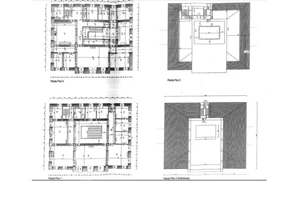
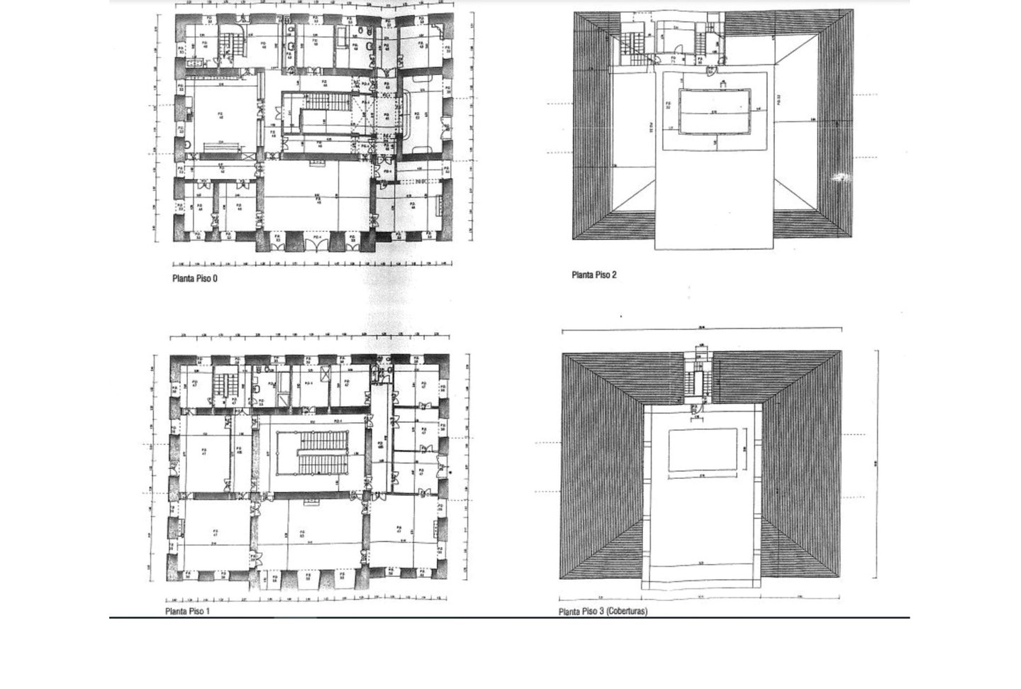
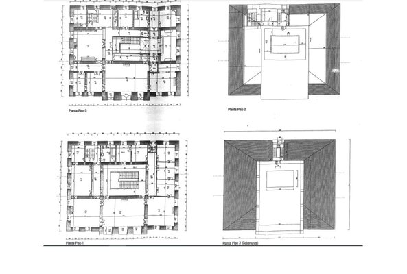
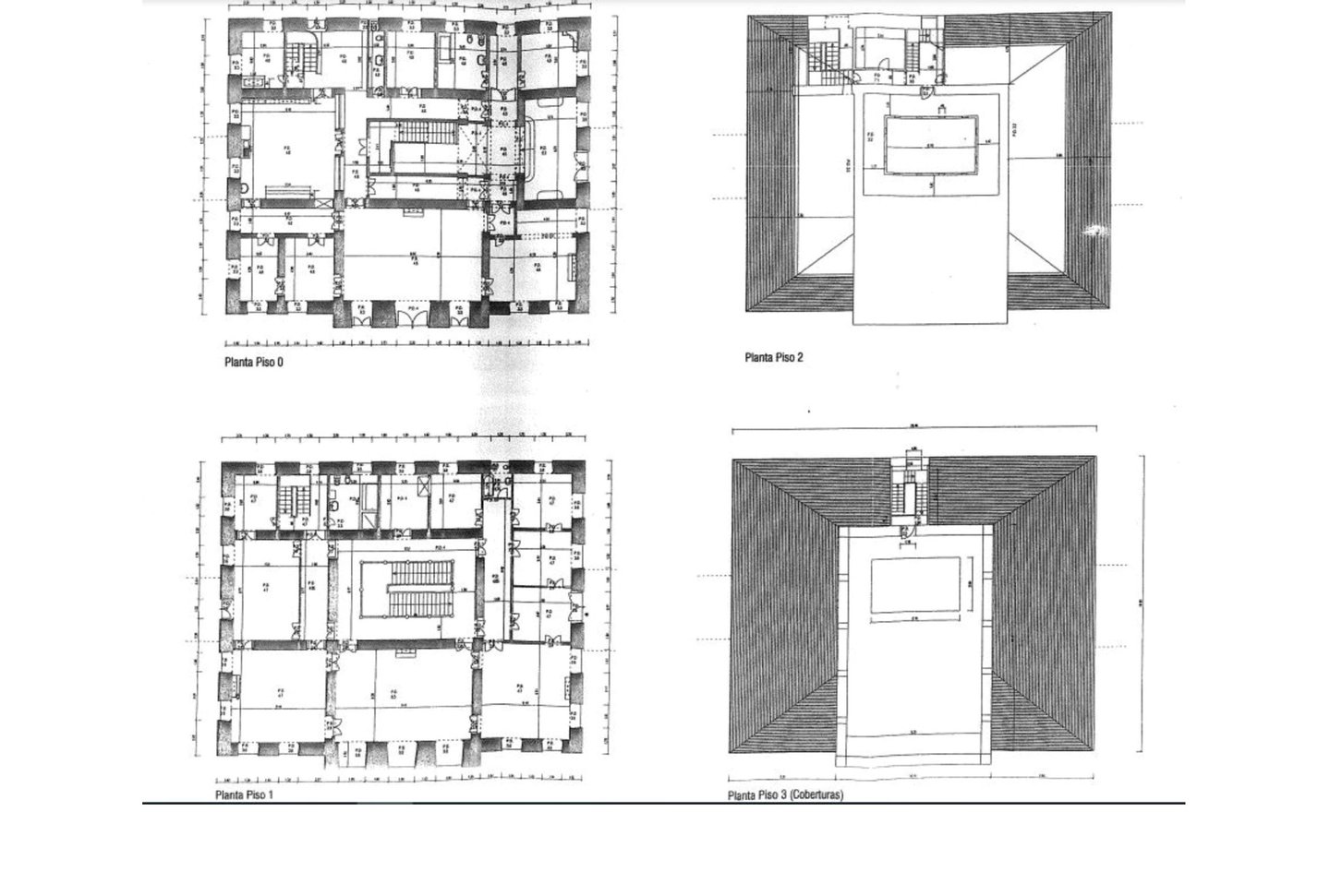
Willkommen in der Quinta do Relógio, einem majestätischen Palast aus dem 19. Jahrhundert am Ufer des Paço de Arcos, in der angesehenen Küstengemeinde Oeiras, westlich von Lissabon. Um 1860 unter der Leitung des Architekten Cinatti de Siena erbaut, bietet dieses historische Anwesen etwa 1.616 m² Innenraum in 15 Schlafzimmern und fast 37 Zimmern, umgeben von etwa 5.600 m² reifen, terrassierten Gärten.

Das Grundstück ist vollständig ummauert, was völlige Privatsphäre und Abgeschiedenheit gewährleistet. Eines seiner bemerkenswertesten Merkmale ist seine Eigenständigkeit mit Wasser, getragen von einem ursprünglichen Aquädukt zur Regenwassersammlung, der unter dem Estrada Margin hindurchläuft und bis zum Meer reicht. Dieses seltene technische Detail hebt die historische Bedeutung des Anwesens und seine Verbindung zur maritimen Landschaft hervor.

Im Inneren präsentiert das Palacete imposante neoklassizistische Architektur, eine symmetrische Fassade und prächtige Innenräume, die sich um eine dramatische, mit Wolken beleuchtete Eingangshalle und eine weite Treppe konzentrieren. Das Erdgeschoss umfasst einen eleganten Speisesalon mit Jakaranda-Möbeln aus dem 19. Jahrhundert, eine elegante Bibliothek und zusätzliche Gesellschaftsräume. Auf der oberen Ebene öffnen sich drei Empfangsräume, darunter eine charmante Café-Lounge, auf Terrassen mit Blick auf die Gärten und den schimmernden Tejo, wo das Grundstück etwa 145 Meter Flussufer bietet.

Das angelegte Gelände ist mit jahrhundertealten Bäumen gefüllt, darunter Araucarias, Platanen und Dracaenas. Der historische Uhrturm, die Ställe, die Personalunterkünfte und die Garagen vervollständigen dieses außergewöhnliche Anwesen und bieten sowohl Pracht als auch Funktionalität auf seinem weitläufigen Grundriss.

Paço de Arcos ist bekannt für seine Küstenschönheit, entspannte Raffinesse und hervorragende Zugänglichkeit. Von der Siedlung aus sind Sie nur 30 Minuten vom Flughafen Lissabon und etwa 15 Kilometer vom Stadtzentrum Lissabons entfernt, was dies zu einer idealen Adresse für internationale Käufer macht, die Ruhe suchen, ohne den Komfort zu beeinträchtigen.

Die Immobilie ist nach dem Oeiras-Architektur- und Kulturerbeschutzplan eingestuft und profitiert von der vollständigen Befreiung von IMI und IMT. Es besteht außerdem eine anerkannte Möglichkeit, die bestehende Konstruktion zu erweitern, was zukünftigen Eigentümern außergewöhnliche Flexibilität bietet.

Ob als Privatresidenz, luxuriöses Boutique-Hotel, diplomatische Residenz oder kulturelle Institution konzipiert – Quinta do Relógio ist eine seltene und unersetzliche Gelegenheit an der portugiesischen Küste.

Immobiliendetails

  • Nutzungsart
    Wohnen
  • Objektart
    Einfamilienhaus
  • Hauptobjektart
    Haus
  • Vertragsart
    Kauf
  • Zimmer (gesamt)
    15
  • Anzahl Schlafzimmer
    15
  • Anzahl Badezimmer
    7
  • Wohnfläche (ca.)
    1.139 m²
  • Gesamtfläche (ca.)
    1.616 m²
  • Grundstücksfläche (ca.)
    5.600 m²
  • Nutzfläche (ca.)
    1.139 m²
  • Anbieter-Objektnummer
    111849599

Preise & Kosten

  • Courtage
    Keine besondere Angabe.

Standort & Lage

Oeiras e São Julião da Barra, Paço de Arcos e Caxias · PRT

Die genaue Anschrift erfahren Sie vom Anbieter

Videos

Verbraucherhinweis

Widerrufsbelehrung des Anbieters

(Gilt nicht für Wohnraummiete in Deutschland)

Widerrufsrecht für Verbraucher
Sie haben das Recht, binnen vierzehn Tagen ohne Angabe von Gründen diesen Vertrag zu widerrufen. Die Widerrufsfrist beträgt vierzehn Tage ab dem Tag des Vertragsabschlusses.
Um Ihr Widerrufsrecht auszuüben, müssen Sie uns (ListGlobally SA, Rue Mercerie 12, 1003 Lausanne, +49 800 0010536, support@listglobally.com) mittels einer eindeutigen Erklärung (z. B. ein mit der Post versandter Brief, Telefax oder E-Mail) über Ihren Entschluss, diesen Vertrag zu widerrufen, informieren. Sie können dafür das beigefügte Muster-Widerrufsformular verwenden, das jedoch nicht vorgeschrieben ist. Zur Wahrung der Widerrufsfrist reicht es aus, dass Sie die Mitteilung über die Ausübung des Widerrufsrechts vor Ablauf der Widerrufsfrist absenden.

Folgen des Widerrufs
Wenn Sie diesen Vertrag widerrufen, haben wir Ihnen alle Zahlungen, die wir von Ihnen erhalten haben, einschließlich der Lieferkosten (mit Ausnahme der zusätzlichen Kosten, die sich daraus ergeben, dass Sie eine andere Art der Lieferung als die von uns angebotene, günstigste Standardlieferung gewählt haben), unverzüglich und spätestens binnen vierzehn Tagen ab dem Tag zurückzuzahlen, an dem die Mitteilung über Ihren Widerruf dieses Vertrags bei uns eingegangen ist. Für diese Rückzahlung verwenden wir dasselbe Zahlungsmittel, das Sie bei der ursprünglichen Transaktion eingesetzt haben, es sei denn, mit Ihnen wurde ausdrücklich etwas anderes vereinbart; in keinem Fall werden Ihnen wegen dieser Rückzahlung Entgelte berechnet. Haben Sie verlangt, dass die Dienstleistungen während der Widerrufsfrist beginnen soll, so haben Sie uns einen angemessenen Betrag zu zahlen, der dem Anteil der bis zu dem Zeitpunkt, zu dem Sie uns von der Ausübung des Widerrufsrechts hinsichtlich dieses Vertrags unterrichten, bereits erbrachten Dienstleistungen im Vergleich zum Gesamtumfang der im Vertrag vorgesehenen Dienstleistungen entspricht.

Muster-Widerrufsformular
(Wenn Sie den Vertrag widerrufen wollen, dann füllen Sie dieses Formular aus und senden Sie es zurück.)

An ListGlobally SA, Rue Mercerie 12, 1003 Lausanne, +49 800 0010536, support@listglobally.com

Hiermit widerrufe ich/wir den von mir/uns abgeschlossenen Vertrag über den Kauf der folgenden Waren /die Erbringung der folgenden Dienstleistung


Bestellt am /erhalten am

Name des/der Verbraucher(s)

Anschrift des/der Verbraucher(s)

Unterschrift des/der Verbraucher(s) (nur bei Mitteilung auf Papier)

Datum


( Unzutreffendes streichen )


Hinweis auf die Möglichkeit eines vorzeitigen Erlöschens des Widerrufsrechts

Ihr Widerrufsrecht erlischt, wenn wir unsere Leistung vollständig erbracht haben und mit der Ausführung der Leistung erst begonnen haben, nachdem Sie Ihre ausdrückliche Zustimmung gegeben haben und gleichzeitig Ihre Kenntnis davon bestätigt haben, dass Sie Ihr Widerrufsrecht bei vollständiger Vertragserfüllung durch uns verlieren.

Impressum ListGlobally SA
VERTRETUNGSBERECHTIGTE/R
Properstar SA


Rue Mercerie 12
1003 Lausanne
CHE
Tel.: +49 800 0010536
E-Mail: support@listglobally.com
Homepage: https://www.listglobally.com/
Anbieter kontaktieren

AGB, Datenschutz & Verbraucherhinweis wurden gelesen und akzeptiert.