Angebot 7014 von 18215

Anbieter kontaktieren

AGB, Datenschutz & Verbraucherhinweis wurden gelesen und akzeptiert.

Minkner & Bonitz S.L.

OFICINA SANTANYI | Mirjana Antic
07650 Santanyí
  • Mehr erfahren
bellevue.de-ID: 30617599

Moderne, komplett renovierte Wohnung in Cala d`Or mit großer Terrasse nur wenige Gehminuten vom Meer entfernt

  • Wohnung
  • · 3 Zimmer
  • · 60 m² Wohnfläche
  • · 330.000 € Kaufpreis
Anbieter kontaktieren

Objektbeschreibung

Diese modernisierte Wohnung befindet sich in begehrter Lage von Cala d’Or. Das Ortszentrum mit seinen vielfältigen Restaurants, Cafés und Einkaufsmöglichkeiten ist bequem in wenigen Gehminuten erreichbar. Auch der traumhafte Sandstrand Cala Esmeralda ...mehr lesen
Diese modernisierte Wohnung befindet sich in begehrter Lage von Cala d’Or. Das Ortszentrum mit seinen vielfältigen Restaurants, Cafés und Einkaufsmöglichkeiten ist bequem in wenigen Gehminuten erreichbar. Auch der traumhafte Sandstrand Cala Esmeralda sowie zwei weitere malerische Badebuchten liegen ganz in der Nähe.

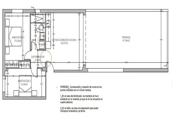
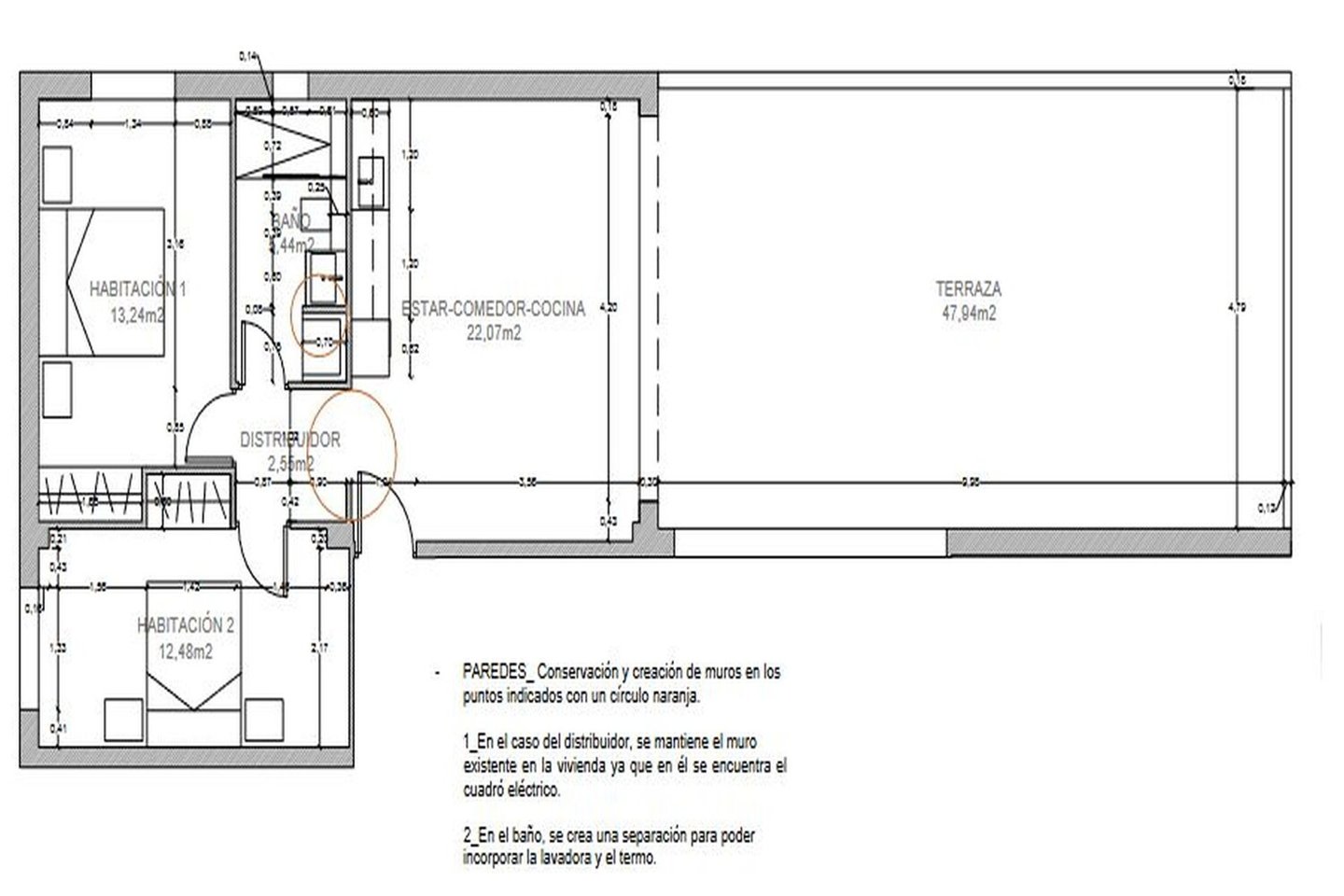
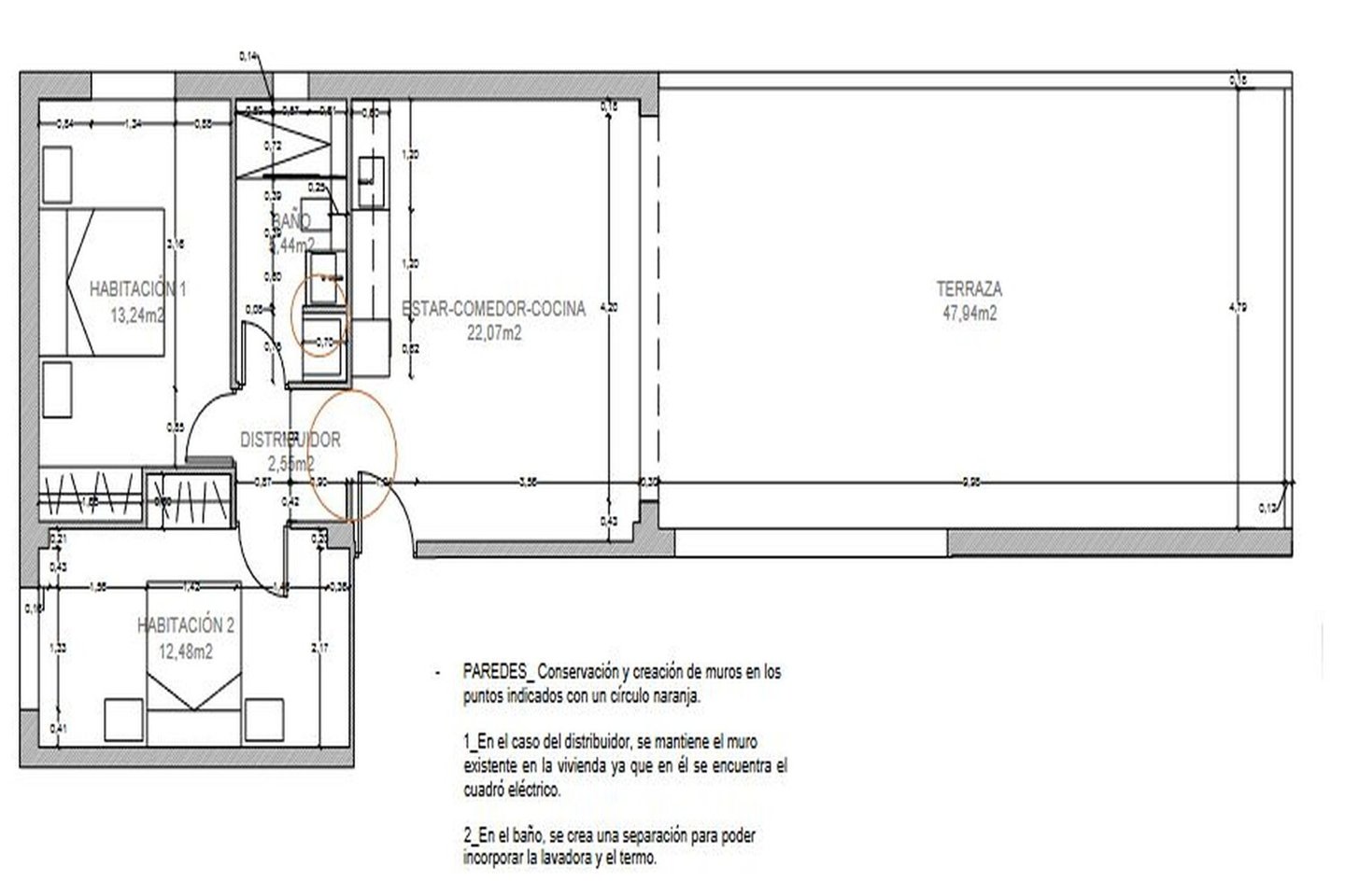
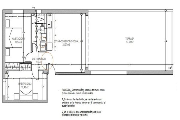
Die Wohnung bietet einen hellen, offen gestalteten Wohn- und Essbereich, zwei Schlafzimmer sowie ein Badezimmer. Ein besonderes Highlight ist die großzügige Terrasse, die ideale Voraussetzungen für einen entspannten Lounge- oder Chill-out-Bereich schafft. Gestalten Sie sich hier Ihren persönlichen Rückzugsort und genießen Sie entspannte Stunden im Freien.

Optional besteht die Möglichkeit, auch die benachbarte Wohneinheit über uns zu erwerben. Gerne informieren wir Sie unverbindlich über weitere Details.

Immobiliendetails

  • Nutzungsart
    Wohnen
  • Objektart
    Etagenwohnung
  • Hauptobjektart
    Wohnung
  • Vertragsart
    Kauf
  • Objektzustand
    Teil- oder vollrenoviert
  • Baujahr
    1973
  • Zimmer (gesamt)
    3
  • Anzahl Schlafzimmer
    2
  • Anzahl Badezimmer
    1
  • Wohnfläche (ca.)
    60 m²
  • Balkon/Terrasse (ca.)
    48 m²
  • Fußboden
    Fliesen
  • Anbieter-Objektnummer
    15237

Preise & Kosten

  • Courtage
    Keine besondere Angabe.

Standort & Lage

07660 Cala d`Or · Balearische Inseln · ESP

Die genaue Anschrift erfahren Sie vom Anbieter

Anbieter

Logo von Minkner & Bonitz S.L.
2026 Best Property Agents

Ansprechpartner

OFICINA SANTANYI | Mirjana Antic

Calle Sebastián Vila, 6
07650 Santanyí
Verbraucherhinweis

Widerrufsbelehrung des Anbieters

Gilt nicht für Wohnraummiete in Deutschland

Widerrufsrecht für Verbraucher

Sie haben das Recht, binnen vierzehn Tagen ohne Angabe von Gründen diesen Vertrag zu widerrufen. Die Widerrufsfrist beträgt vierzehn Tage ab dem Tag des Vertragsabschlusses.

Um Ihr Widerrufsrecht auszuüben, müssen Sie uns (Minkner & Partner PROFI KONZEPT S.L., Avenida Rey Jaime I, 109, 07180 Santa Ponsa / Mallorca, Fax: +34 971 695 695, Tel: +34 971 695 255, bellevue@minkner.com) mittels einer eindeutigen Erklärung (z. B. ein mit der Post versandter Brief, Telefax oder E-Mail) über Ihren Entschluss, diesen Vertrag zu widerrufen, informieren. Sie können dafür das beigefügte Muster-Widerrufsformular verwenden, das jedoch nicht vorgeschrieben ist. Zur Wahrung der Widerrufsfrist reicht es aus, dass Sie die Mitteilung über die Ausübung des Widerrufsrechts vor Ablauf der Widerrufsfrist absenden.

Folgen des Widerrufs

Wenn Sie diesen Vertrag widerrufen, haben wir Ihnen alle Zahlungen, die wir von Ihnen erhalten haben, einschließlich der Lieferkosten (mit Ausnahme der zusätzlichen Kosten, die sich daraus ergeben, dass Sie eine andere Art der Lieferung als die von uns angebotene, günstigste Standardlieferung gewählt haben), unverzüglich und spätestens binnen vierzehn Tagen ab dem Tag zurückzuzahlen, an dem die Mitteilung über Ihren Widerruf dieses Vertrags bei uns eingegangen ist. Für diese Rückzahlung verwenden wir dasselbe Zahlungsmittel, das Sie bei der ursprünglichen Transaktion eingesetzt haben, es sei denn, mit Ihnen wurde ausdrücklich etwas anderes vereinbart; in keinem Fall werden Ihnen wegen dieser Rückzahlung Entgelte berechnet. Haben Sie verlangt, dass die Dienstleistungen während der Widerrufsfrist beginnen soll, so haben Sie uns einen angemessenen Betrag zu zahlen, der dem Anteil der bis zu dem Zeitpunkt, zu dem Sie uns von der Ausübung des Widerrufsrechts hinsichtlich dieses Vertrags unterrichten, bereits erbrachten Dienstleistungen im Vergleich zum Gesamtumfang der im Vertrag vorgesehenen Dienstleistungen entspricht.

Muster-Widerrufsformular

(Wenn Sie den Vertrag widerrufen wollen, dann füllen Sie dieses Formular aus und senden Sie es zurück.)

An Minkner & Partner PROFI KONZEPT S.L., Avenida Rey Jaime I, 109, 07180 Santa Ponsa / Mallorca, Fax: +34 971 695 695, bellevue@minkner.com
Hiermit widerrufe(n) ich/wir (*) den von mir/uns (*) abgeschlossenen Vertrag über den Kauf der folgenden Waren (*)/die Erbringung der folgenden Dienstleistung (*)


- Bestellt am (*)/erhalten am (*)

- Name des/der Verbraucher(s)

- Anschrift des/der Verbraucher(s)

- Unterschrift des/der Verbraucher(s) (nur bei Mitteilung auf Papier)
- Datum


(*) Unzutreffendes streichen

Hinweis auf die Möglichkeit eines vorzeitigen Erlöschens des Widerrufsrechts

Ihr Widerrufsrecht erlischt, wenn wir unsere Leistung vollständig erbracht haben und mit der Ausführung der Leistung erst begonnen haben, nachdem Sie Ihre ausdrückliche Zustimmung gegeben haben und gleichzeitig Ihre Kenntnis davon bestätigt haben, dass Sie Ihr Widerrufsrecht bei vollständiger Vertragserfüllung durch uns verlieren.

Impressum Minkner & Bonitz S.L.
VERTRETUNGSBERECHTIGTE/R
Edith Minkner, Lutz MInkner, Marvin Bonitz


Avenida Rey Jaime I 109
07180 Santa Ponsa
ESP
Tel.: +34 971 695 255
E-Mail: bellevue@minkner.com
Fax: +34 971 695 695
Homepage: https://www.minkner.com

ZUSTÄNDIGE AUFSICHTSBEHÖRDE
nicht genehmigungspflichtig

HANDELSREGISTER-EINTRAG
Sociedad inscr. Al folio 163, Tomo 1.309, Hoja n°. PM 21.889, inscr. 1°


UST-ID-NUMMER
ES B 07748213

ZUSÄTZLICHER TEXT
Minkner & Partner ist ein spanisches Unternehmen mit deutschen Inhabern. Für Edith und Lutz Minkner ist Mallorca nicht ein Gastgeberland, sondern sie haben auf der Insel ihr Zuhause gefunden. Sie wurden mit großer Gastfreundschaft aufgenommen, und auch als Unternehmer werden sie von ihren spanischen Geschäftspartnern geachtet und respektiert. Die Unternehmensphilosophie von Minkner & Partner legt die Werte fest, nach denen sich das Unternehmen in der Gesellschaft, gegenüber dem Wettbewerb, gegenüber Kunden und Mitarbeitern ausrichtet. Sie zeigt die Kultur, das Leitbild und die auf Nachhaltigkeit angelegte Strategie des Unternehmens. Wichtigste Säulen dieser Unternehmensphilosophie sind Respekt, Verantwortungsbewusstsein, Integrität, Zuverlässigkeit, Teamgeist und Innovation. Verbraucherinformationen Online-Streitbeilegung gemäß Art. 14 Abs. 1 ODR-VO: Die Europäische Kommission stellt eine Plattform zur Online-Streitbeilegung (OS) bereit, die Sie hier finden: http://ec.europa.eu/consumers/odr
Anbieter kontaktieren

AGB, Datenschutz & Verbraucherhinweis wurden gelesen und akzeptiert.