Angebot 4142 von 16376

Anbieter kontaktieren

AGB, Datenschutz & Verbraucherhinweis wurden gelesen und akzeptiert.

KITZIMMO - Real Estate - OG

Franz Gobec RR Bgm.a.D.
6370 Kitzbühel
  • Mehr erfahren
bellevue.de-ID: 30617193

Grundstück mit Baugenehmigung für 3-Luxuswohnungen

  • Grundstück
  • · 13 Zimmer
  • · 825 m² Grundstücksfläche
  • · 2.490.000 € Kaufpreis
Anbieter kontaktieren

Objektbeschreibung

Visavis des Golfclubs Eichenheim, in ruhiger Lage am Fuße des Hahnenkamm ist dieses 825 m² große Baugrundstück gelegen.

Vom Grundstück hat man einen schönen Ausblick auf das Kitzbüheler Horn, den Wilden Kaiser, die Bichlalm bis hin zu den Südbergen.

Di ...mehr lesen
Visavis des Golfclubs Eichenheim, in ruhiger Lage am Fuße des Hahnenkamm ist dieses 825 m² große Baugrundstück gelegen.

Vom Grundstück hat man einen schönen Ausblick auf das Kitzbüheler Horn, den Wilden Kaiser, die Bichlalm bis hin zu den Südbergen.

Die Besonderheit bei diesem Angebot ist, dass bereits eine rechtskräftige Baugenehmigung für ein exklusives Mehrfamilienhaus mit 3 Wohnungen vorliegt.
Der neue Eigentümer kann somit sofort mit dem Bau beginnen und spart sich mindestens 2 Jahre, welche es dauert, eine Baugenehmigung zu erhalten.
Das ist somit nicht nur eine große Zeitersparnis, sondern auch eine große finanzielle Entlastung.

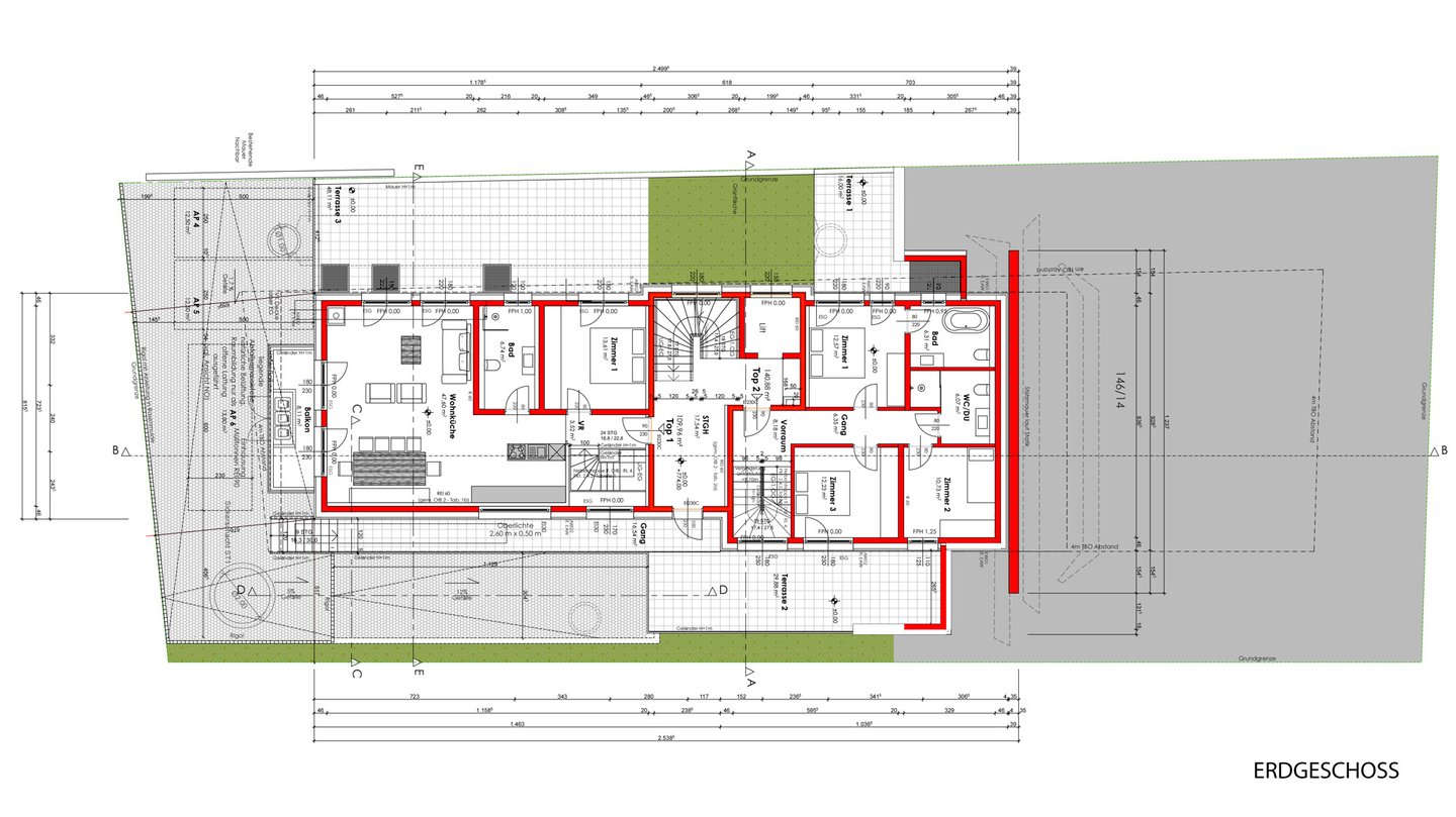
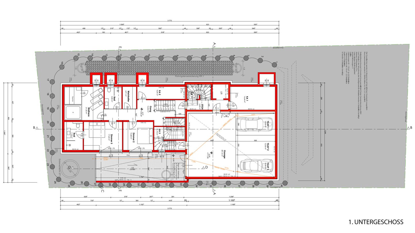
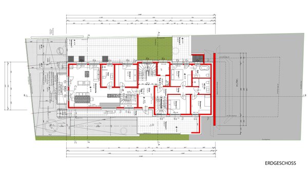
Die drei Wohnungen bieten eine Wohn-/Nutzfläche von insgesamt 409,25 m², zuzüglich Nebenräume mit 75,70 m² und die Tiefgarage mit 89,15 m².

- Wohnung Top 1 befindet sich im Erdgeschoss und erstreckt sich bis in das Untergeschoss und hat 158,38 m²
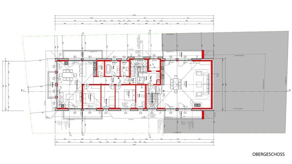
- Wohnung Top 2 befindet sich im Erdgeschoss und erstreckt sich bis in das Dachgeschoss und hat 140,88 m²
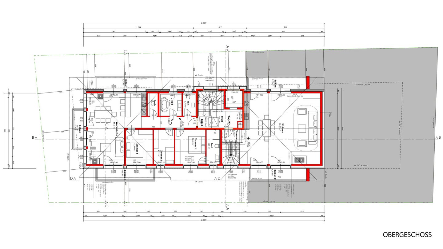
- Wohnung Top 3 befindet sich im Dachgeschoss und hat 109,99 m².

Jede Wohnung verfügt über großzügige Balkon- und Terrassenflächen, eigene geräumige Kellerräume sowie einen Tiefgaragenstellplatz und einen Freistellplatz. Ein Personenlift verbindet alle drei Geschosse.

Laut Baubewilligung vom 10.12.2025 beträgt die bebaute Fläche 267,14 m².
Summe der Bruttogeschossflächen lt. § 4 der Kanalgebührenordnung der Stadtgemeinde Kitzbühel:
1. UG: 293,52 m²
EG: 217,39 m²
1. OG: 267,14 m²
Gesamt: 778,05 m²
Baumasse lt. § 2 (5) Tiroler Verkehrsaufschließungs- und Ausgleichsabgabengesetz LGBL.NR. 58/2011 i.d.g.F.: 2.732,90 m3
Baumasse lt. § 61 (3) TROG 2022: 1.937,66 m3

Das Grundstück ist noch nicht erschlossen. Sämtliche Ver- und Entsorgungsleitungen befinden sich direkt in der angrenzenden Zufahrtsstraße.

Vom Grundstück gelangt man unmittelbar auf die Achenpromenade, über welche man zu Fuß in ca. 15 Minuten in das Stadtzentrum gelangt.
Der Skibus hält nur wenige Meter vom Haus entfernt und auch die Langlaufloipe ist fußläufig erreichbar.

Energiedaten: HWB 46 Klasse B, fGEE 0,68 Klasse A+

Immobiliendetails

  • Nutzungsart
    Wohnen
  • Objektart
    Wohngrundstück
  • Hauptobjektart
    Grundstück
  • Vertragsart
    Kauf
  • Objektzustand
    Erstbezug
  • Zimmer (gesamt)
    13
  • Anzahl Schlafzimmer
    9
  • Anzahl Badezimmer
    7
  • Anzahl separate WC
    1
  • Gesamtfläche (ca.)
    574,1 m²
  • Grundstücksfläche (ca.)
    825 m²
  • Nutzfläche (ca.)
    574,1 m²
  • Ausrichtung
    Nordost, Nordwest, Südost
  • Ausstattungskategorie
    Luxus
  • Erschließung
    Teilweise erschlossen
  • Verfügbarkeit
    ab sofort
  • Anbieter-Objektnummer
    MG-0002352

Preise & Kosten

  • Courtage
    3,0 %

Energie

  • Energiepass gültig bis
    2033-03-27
  • Gebäudeart
    Wohngebäude
  • Ausgestellt
    nach dem 1.5.2014

Standort & Lage

6370 Kitzbühel · Tirol · AUT

Die genaue Anschrift erfahren Sie vom Anbieter

Anbieter

Logo von KITZIMMO - Real Estate - OG
2026 Best Property Agents

Ansprechpartner

Verbraucherhinweis

Widerrufsbelehrung des Anbieters

(Gilt nicht für Wohnraummiete in Deutschland)

Widerrufsrecht für Verbraucher
Sie haben das Recht, binnen vierzehn Tagen ohne Angabe von Gründen diesen Vertrag zu widerrufen. Die Widerrufsfrist beträgt vierzehn Tage ab dem Tag des Vertragsabschlusses.
Um Ihr Widerrufsrecht auszuüben, müssen Sie uns (KITZIMMO - Real Estate - OG, Im Gries 27, 6370 Kitzbühel, 0043-676-7047120, 0043-5356-67677, office@kitzimmo.at) mittels einer eindeutigen Erklärung (z. B. ein mit der Post versandter Brief, Telefax oder E-Mail) über Ihren Entschluss, diesen Vertrag zu widerrufen, informieren. Sie können dafür das beigefügte Muster-Widerrufsformular verwenden, das jedoch nicht vorgeschrieben ist. Zur Wahrung der Widerrufsfrist reicht es aus, dass Sie die Mitteilung über die Ausübung des Widerrufsrechts vor Ablauf der Widerrufsfrist absenden.

Folgen des Widerrufs
Wenn Sie diesen Vertrag widerrufen, haben wir Ihnen alle Zahlungen, die wir von Ihnen erhalten haben, einschließlich der Lieferkosten (mit Ausnahme der zusätzlichen Kosten, die sich daraus ergeben, dass Sie eine andere Art der Lieferung als die von uns angebotene, günstigste Standardlieferung gewählt haben), unverzüglich und spätestens binnen vierzehn Tagen ab dem Tag zurückzuzahlen, an dem die Mitteilung über Ihren Widerruf dieses Vertrags bei uns eingegangen ist. Für diese Rückzahlung verwenden wir dasselbe Zahlungsmittel, das Sie bei der ursprünglichen Transaktion eingesetzt haben, es sei denn, mit Ihnen wurde ausdrücklich etwas anderes vereinbart; in keinem Fall werden Ihnen wegen dieser Rückzahlung Entgelte berechnet. Haben Sie verlangt, dass die Dienstleistungen während der Widerrufsfrist beginnen soll, so haben Sie uns einen angemessenen Betrag zu zahlen, der dem Anteil der bis zu dem Zeitpunkt, zu dem Sie uns von der Ausübung des Widerrufsrechts hinsichtlich dieses Vertrags unterrichten, bereits erbrachten Dienstleistungen im Vergleich zum Gesamtumfang der im Vertrag vorgesehenen Dienstleistungen entspricht.

Muster-Widerrufsformular
(Wenn Sie den Vertrag widerrufen wollen, dann füllen Sie dieses Formular aus und senden Sie es zurück.)

An KITZIMMO - Real Estate - OG, Im Gries 27, 6370 Kitzbühel, 0043-676-7047120, 0043-5356-67677, office@kitzimmo.at

Hiermit widerrufe ich/wir den von mir/uns abgeschlossenen Vertrag über den Kauf der folgenden Waren /die Erbringung der folgenden Dienstleistung


Bestellt am /erhalten am

Name des/der Verbraucher(s)

Anschrift des/der Verbraucher(s)

Unterschrift des/der Verbraucher(s) (nur bei Mitteilung auf Papier)

Datum


( Unzutreffendes streichen )


Hinweis auf die Möglichkeit eines vorzeitigen Erlöschens des Widerrufsrechts

Ihr Widerrufsrecht erlischt, wenn wir unsere Leistung vollständig erbracht haben und mit der Ausführung der Leistung erst begonnen haben, nachdem Sie Ihre ausdrückliche Zustimmung gegeben haben und gleichzeitig Ihre Kenntnis davon bestätigt haben, dass Sie Ihr Widerrufsrecht bei vollständiger Vertragserfüllung durch uns verlieren.

Impressum KITZIMMO - Real Estate - OG
VERTRETUNGSBERECHTIGTE/R
Franz Gobec RR Bgm.a.D.


Im Gries 27
6370 Kitzbühel
AUT
Tel.: 0043-676-7047120
E-Mail: office@kitzimmo.at
Fax: 0043-5356-67677
Homepage: https://www.kitzimmo.at/

ZUSTÄNDIGE AUFSICHTSBEHÖRDE
Bezirkshauptmannschaft Kitzbühel

UST-ID-NUMMER
ATU76179109

ZUSÄTZLICHER TEXT
staatl. gepr. und konzess. Immobilientreuhänder, Immobilienmakler, Immobilienverwalter und Bauträger, Mitglied des Ehrenschiedsgerichtes Tirol
Anbieter kontaktieren

AGB, Datenschutz & Verbraucherhinweis wurden gelesen und akzeptiert.