Angebot 7025 von 18140

Anbieter kontaktieren

AGB, Datenschutz & Verbraucherhinweis wurden gelesen und akzeptiert.

Reker Immobilien d.o.o.

Bild/Logo: Heiner Reker
Heiner Reker
22211 Vodice
  • Mehr erfahren
bellevue.de-ID: 30617033

Atemberaubend-Unverbaubar-Unvergesslich: Luxusvilla mit Panorama und Infinitypool

  • Haus
  • · 5 Zimmer
  • · 280 m² Wohnfläche
  • · 1.100 m² Grundstücksfläche
  • · 3.500.000 € Kaufpreis
Anbieter kontaktieren

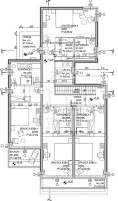
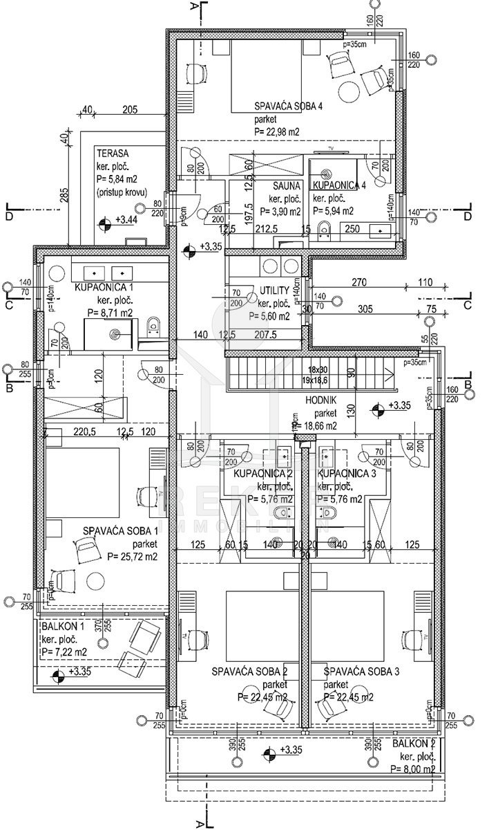
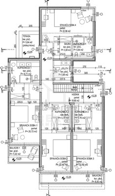
Objektbeschreibung

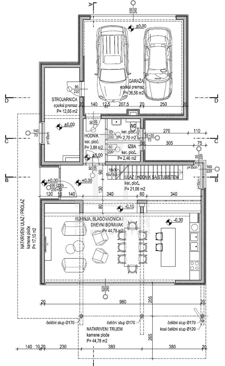
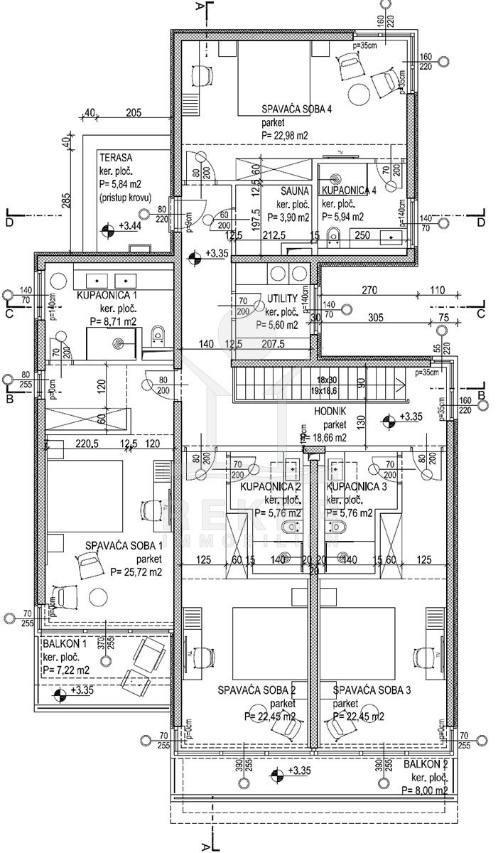
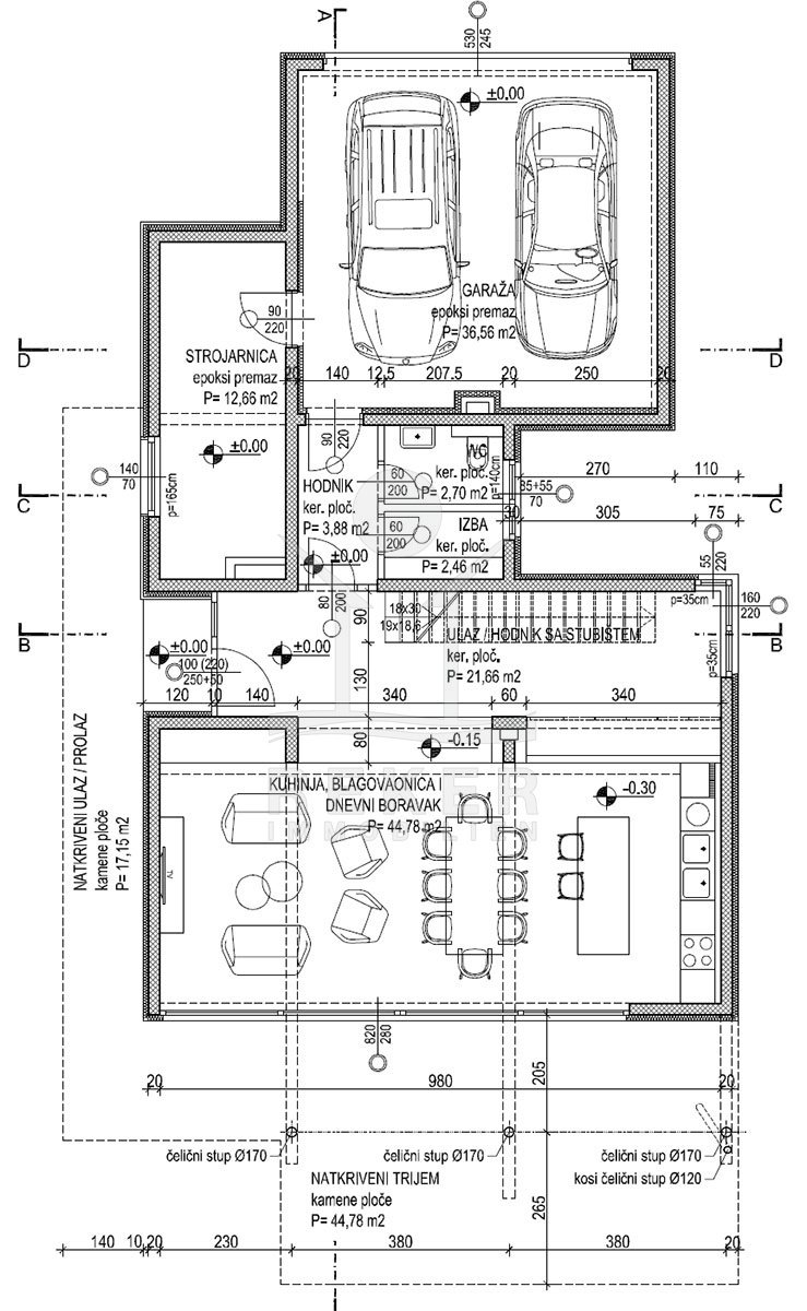
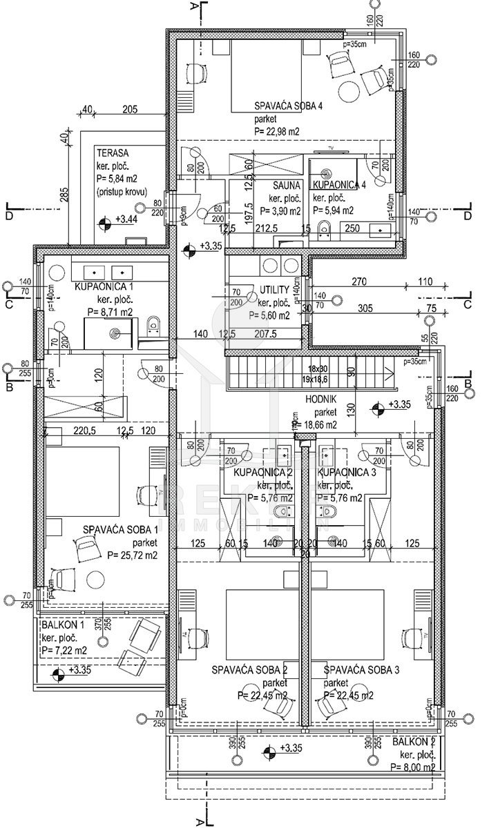
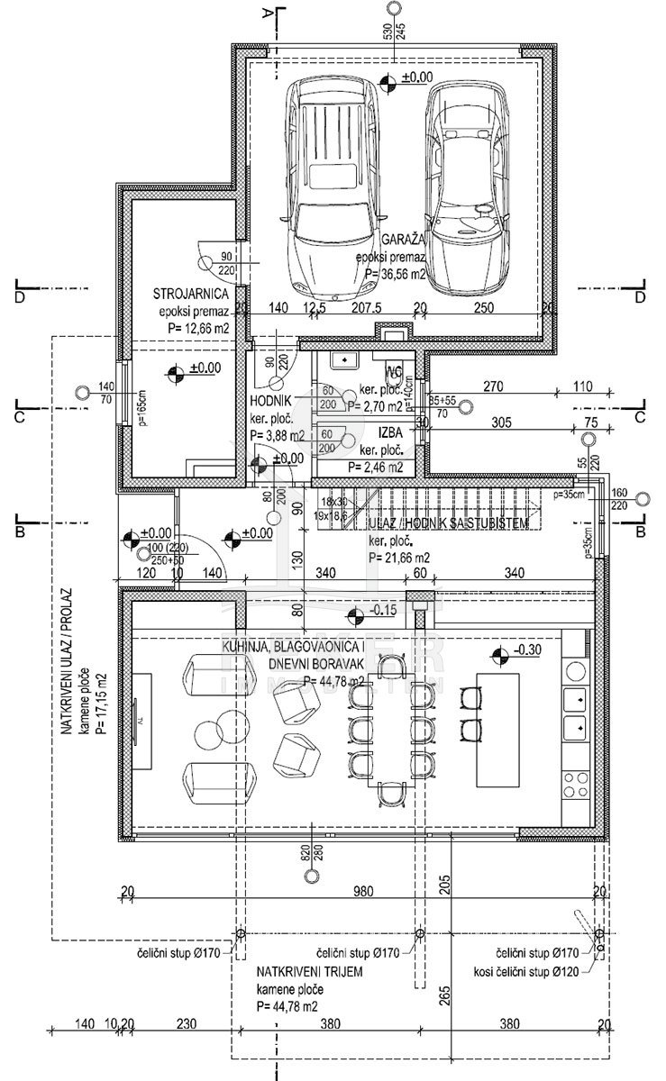
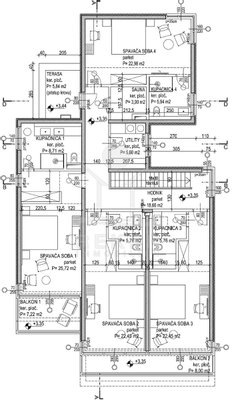
Solche Lagen sind nicht reproduzierbar. Unverbaubarer Meerblick, Betonqualität über Standard und jährliche Mieteinnahmen von rund 90.000 Euro machen diese Villa zu einer einmaligen Chance für Investoren und Selbstnutzer mit Weitblick.

Immobiliendetails

  • Nutzungsart
    Wohnen
  • Objektart
    Villa
  • Hauptobjektart
    Haus
  • Vertragsart
    Kauf
  • Objektzustand
    Neuwertig
  • Baujahr
    2022
  • Zimmer (gesamt)
    5
  • Anzahl Schlafzimmer
    4
  • Anzahl Badezimmer
    4
  • Anzahl Parkflächen
    5
  • Wohnfläche (ca.)
    280 m²
  • Grundstücksfläche (ca.)
    1.100 m²
  • Anzahl Terrassen
    1
  • Stellplatzart
    Garage
  • Garagenstellplätze
    5
  • Anzahl Etagen
    2
  • Ausblick
    Meer
  • Ausrichtung
    Süd
  • Anbieter-Objektnummer
    9555

Preise & Kosten

  • Courtage
    3,75 % inklusive der gesetzlichen Mehrwertsteuer

Energie

  • Heizungsart
    Fussbodenheizung
  • Gebäudeart
    Wohngebäude

Standort & Lage

Die Villa befindet sich in ruhiger Höhenlage nahe Trogir in Dalmatien, am Ende einer Sackgasse mit sehr wenig Verkehr. Das sorgt für Privatsphäre und entspannte Abläufe. Der Flughafen Split ist ca. 10 km entfernt, die Stadt Split ca. 30 km. Richtung ...mehr lesen
Die Villa befindet sich in ruhiger Höhenlage nahe Trogir in Dalmatien, am Ende einer Sackgasse mit sehr wenig Verkehr. Das sorgt für Privatsphäre und entspannte Abläufe. Der Flughafen Split ist ca. 10 km entfernt, die Stadt Split ca. 30 km. Richtung Westen erreichen Sie Rogoznica, Primošten, Šibenik sowie den Krka-Nationalpark im Umkreis bis 60 km. Zur Adria gehen Sie in etwa 10 Minuten durch den Wald, in der Nähe des Hotel Medena. Das Grundstück befindet sich rund 60 m über dem Meer und ist nach Süden ausgerichtet. Der Blick reicht über ein geschütztes Waldgebiet bis zur gegliederten Küste mit zahlreichen Inseln.

Die Zufahrt erfolgt über eine 3,5 bis 5 m breite Straße, rund 300 m bis zum Tor. Parken ist komfortabel in der Doppelgarage sowie auf dem großzügigen Vorplatz möglich. Das Grundstück umfasst ca. 1.100 m², davon rund 850 m² frei nutzbare Fläche. Es gliedert sich in Gartenbereiche, Wege und klar definierte Zonen mit weißen, abgerundeten Natursteinen. Mittelpunkt des Außenbereichs ist der 48 m² große, beheizte Infinity-Pool mit moderner Salzwasseraufbereitung. Direkt angeschlossen ist ein ca. 150 m² großes Sonnendeck mit rutschhemmenden Porzellanfliesen. Eine elektrische Biopergola mit 12 m² sowie eine Außendusche ergänzen diesen Bereich. Fünf quer verlaufende Stützmauern, mit poliertem weißem Stein verkleidet, folgen der leichten Hanglage mit einer Höhendifferenz von rund 6 m und betonen die Aussicht. Das Areal ist vollständig eingefriedet und über ein Automatiktor zugänglich. Zusätzlich stehen auf der Nord- und Südseite Fußgängertore zur Verfügung. Die Außenbeleuchtung wird per LUXOMAT gesteuert und verbindet Orientierung mit Sicherheit, unterstützt durch 9 Kameras (CCTV) und eine Alarmanlage. Vor der Garage steht eine großzügige Rangierfläche für mindestens drei weitere Fahrzeuge zur Verfügung. Die Liegenschaft ist an einen eigenen Abwassertank angeschlossen, mit 100 mm Leitung und Entleerung per Saugfahrzeug. Der öffentliche Kanalbau ist im Gange und soll im gesamten Quartier bis Ende 2026 abgeschlossen sein.

21220 Trogir · Trogir/Ciovo · HRV

Die genaue Anschrift erfahren Sie vom Anbieter

Anbieter

Logo von Reker Immobilien d.o.o.
2026 Best Property Agents
Verbraucherhinweis

Widerrufsbelehrung des Anbieters

(Gilt nicht für Wohnraummiete in Deutschland)

Widerrufsrecht für Verbraucher
Sie haben das Recht, binnen vierzehn Tagen ohne Angabe von Gründen diesen Vertrag zu widerrufen. Die Widerrufsfrist beträgt vierzehn Tage ab dem Tag des Vertragsabschlusses.
Um Ihr Widerrufsrecht auszuüben, müssen Sie uns (Reker Immobilien d.o.o., Micin Stanka 28 A, 22211 Vodice, +49 5207 77227, +49 5207 923455, info@reker-immobilien.de) mittels einer eindeutigen Erklärung (z. B. ein mit der Post versandter Brief, Telefax oder E-Mail) über Ihren Entschluss, diesen Vertrag zu widerrufen, informieren. Sie können dafür das beigefügte Muster-Widerrufsformular verwenden, das jedoch nicht vorgeschrieben ist. Zur Wahrung der Widerrufsfrist reicht es aus, dass Sie die Mitteilung über die Ausübung des Widerrufsrechts vor Ablauf der Widerrufsfrist absenden.

Folgen des Widerrufs
Wenn Sie diesen Vertrag widerrufen, haben wir Ihnen alle Zahlungen, die wir von Ihnen erhalten haben, einschließlich der Lieferkosten (mit Ausnahme der zusätzlichen Kosten, die sich daraus ergeben, dass Sie eine andere Art der Lieferung als die von uns angebotene, günstigste Standardlieferung gewählt haben), unverzüglich und spätestens binnen vierzehn Tagen ab dem Tag zurückzuzahlen, an dem die Mitteilung über Ihren Widerruf dieses Vertrags bei uns eingegangen ist. Für diese Rückzahlung verwenden wir dasselbe Zahlungsmittel, das Sie bei der ursprünglichen Transaktion eingesetzt haben, es sei denn, mit Ihnen wurde ausdrücklich etwas anderes vereinbart; in keinem Fall werden Ihnen wegen dieser Rückzahlung Entgelte berechnet. Haben Sie verlangt, dass die Dienstleistungen während der Widerrufsfrist beginnen soll, so haben Sie uns einen angemessenen Betrag zu zahlen, der dem Anteil der bis zu dem Zeitpunkt, zu dem Sie uns von der Ausübung des Widerrufsrechts hinsichtlich dieses Vertrags unterrichten, bereits erbrachten Dienstleistungen im Vergleich zum Gesamtumfang der im Vertrag vorgesehenen Dienstleistungen entspricht.

Muster-Widerrufsformular
(Wenn Sie den Vertrag widerrufen wollen, dann füllen Sie dieses Formular aus und senden Sie es zurück.)

An Reker Immobilien d.o.o., Micin Stanka 28 A, 22211 Vodice, +49 5207 77227, +49 5207 923455, info@reker-immobilien.de

Hiermit widerrufe ich/wir den von mir/uns abgeschlossenen Vertrag über den Kauf der folgenden Waren /die Erbringung der folgenden Dienstleistung


Bestellt am /erhalten am

Name des/der Verbraucher(s)

Anschrift des/der Verbraucher(s)

Unterschrift des/der Verbraucher(s) (nur bei Mitteilung auf Papier)

Datum


( Unzutreffendes streichen )


Hinweis auf die Möglichkeit eines vorzeitigen Erlöschens des Widerrufsrechts

Ihr Widerrufsrecht erlischt, wenn wir unsere Leistung vollständig erbracht haben und mit der Ausführung der Leistung erst begonnen haben, nachdem Sie Ihre ausdrückliche Zustimmung gegeben haben und gleichzeitig Ihre Kenntnis davon bestätigt haben, dass Sie Ihr Widerrufsrecht bei vollständiger Vertragserfüllung durch uns verlieren.

Impressum Reker Immobilien d.o.o.
VERTRETUNGSBERECHTIGTE/R
Heiner Reker


Micin Stanka 28 A
22211 Vodice
HRV
Tel.: +49 5207 77227
E-Mail: info@reker-immobilien.de
Fax: +49 5207 923455
Homepage: https://www.reker-immobilien.de

ZUSTÄNDIGE AUFSICHTSBEHÖRDE
Handelsgericht in Zagreb

HANDELSREGISTER-EINTRAG
081239791
Kroatische Wirtschaftskammer

UST-ID-NUMMER
HR 83 76066 2355
Anbieter kontaktieren

AGB, Datenschutz & Verbraucherhinweis wurden gelesen und akzeptiert.