Angebot 98 von 17200

Anbieter kontaktieren

AGB, Datenschutz & Verbraucherhinweis wurden gelesen und akzeptiert.

Apolloni & Blom S.r.l.

Apolloni and Blom Real Estate - Immobiliare
  • Mehr erfahren
bellevue.de-ID: 30615913

Freistehendes Haus mit Olivenhain in der Nähe von Montepulciano, Siena - Toskana

  • Haus
  • · 15 Zimmer
  • · 370 m² Wohnfläche
  • · 3.470 m² Grundstücksfläche
  • · 285.000 € Kaufpreis
Anbieter kontaktieren

Objektbeschreibung

Umgeben von eingezäunten Garten und Olivenhain, freistehendes Haus auf drei Ebenen, auch gut für mehrere Einheiten, mit zwei Nebengebäuden, Garage zu verkaufen in der Nähe von Montepulciano. In einer charmanten Ecke des Val di Chiana, südlich von ...mehr lesen
Umgeben von eingezäunten Garten und Olivenhain, freistehendes Haus auf drei Ebenen, auch gut für mehrere Einheiten, mit zwei Nebengebäuden, Garage zu verkaufen in der Nähe von Montepulciano. In einer charmanten Ecke des Val di Chiana, südlich von Siena, ist dieses Anwesen von einem eingezäunten Garten und einem üppigen Olivenhain umgeben. Nur wenige Minuten von den wichtigsten Einrichtungen und dem historischen Zentrum von Montepulciano entfernt, befindet sich das Anwesen in einer ruhigen, grünen Umgebung, ideal für diejenigen, die Privatsphäre suchen, ohne auf Komfort verzichten zu müssen, auf einem privaten Grundstück von 3.470 Quadratmetern. Das Hauptgebäude mit einer Fläche von 370 Quadratmetern erstreckt sich über drei Etagen. Im Erdgeschoss und im ersten Stock befinden sich zwei Wohneinheiten, die dank ihrer Aufteilung sehr vielseitig sind und zwei Wohnzimmer, zwei Küchen, sechs Schlafzimmer, zwei Bäder und zwei Terrassen umfassen. Im Untergeschoss befinden sich ein Keller, ein Abstellraum, ein Technikraum und eine Garage mit Außenauffahrt. Die gesamte Immobilie verfügt über eine Kalkfassade und befindet sich in einem guten baulichen Zustand, erfordert jedoch einige Teilrestaurierungsarbeiten, wie die Erneuerung von Einbauten, Anstrichen und Installationen. Das Potenzial dieser Immobilie ist vielfältig: Sie kann leicht in eine einzige Villa im modernen zeitgenössischen Stil umgewandelt werden, oder, dank ihres Grundrisses, in mehrere Einheiten unterteilt werden, um unterschiedlichen Bedürfnissen gerecht zu werden. Im Garten, vor dem Hauptgebäude, befinden sich zwei separate Nebengebäude, ein 39 m² großer Abstellraum und eine 16 m² große Garage, die sich perfekt für Werkzeuge und landwirtschaftliche Fahrzeuge eignen, oder sogar für den Bau eines Poolhauses, dank der Möglichkeit, einen Swimmingpool im Garten zu bauen (Projekt vorzulegen). Das umliegende Land wird durch einen Olivenhain mit ca. 100 Bäumen bereichert, die einen reizvollen natürlichen Rahmen für das Grundstück bilden. Ein Brunnen für die Bewässerung und ein bequemer Zugang über eine asphaltierte Straße runden das Angebot ab. Die ideale Wahl für diejenigen, die geräumige und helle Wohnräume suchen, mit der Möglichkeit, eine kleine Olivenproduktion zu starten, inmitten der Schönheit der toskanischen Landschaft.
PROPERTY Ref: MTP3158
Wo: Montepulciano, Provinz: Siena, Region: Toskana
Typ: Freistehendes Haus von ca. 370 m² auf drei Ebenen, bestehend aus 2 Wohneinheiten, 2 separaten Nebengebäuden mit Garage und Lager, Garten, Land mit 100 Olivenbäumen und Nebengebäude
Baujahr: 1980
Grundstück/Garten: 0,34 Hektar, davon 1400 qm eingezäunter Garten und 2.070 qm Grundstück mit 100 Olivenbäumen
Terrasse/Balkon: 3 Terrassen im ersten Stock

Immobiliendetails

  • Nutzungsart
    Wohnen
  • Objektart
    Einfamilienhaus
  • Hauptobjektart
    Haus
  • Vertragsart
    Kauf
  • Baujahr
    1980
  • Zimmer (gesamt)
    15
  • Anzahl Schlafzimmer
    6
  • Anzahl Badezimmer
    2
  • Wohneinheiten
    1
  • Wohnfläche (ca.)
    370 m²
  • Grundstücksfläche (ca.)
    3.470 m²
  • Gartenfläche (ca.)
    3.470 m²
  • Anzahl Terrassen
    1
  • Stellplatzart
    Garage
  • Anzahl Etagen
    3
  • Letzte Modernisierung
    2005
  • Anbieter-Objektnummer
    MTP3158

Preise & Kosten

  • Kaufpreis pro m²
    670,59 €
  • Courtage
    Keine besondere Angabe.

Energie

  • Heizungsart
    Etagenheizung
  • Energieausweis
    Energiebedarfsausweis
  • Energieeffizienzklasse
    G
  • Gebäudeart
    Wohngebäude

Standort & Lage

Entfernung von Dienstleistungen: 750mt, 7 km Montepulciano
Entfernung von den wichtigsten Flughäfen: Florenz 130km, Rom 200km

Via degli Archi 5 · 53045 Montepulciano · ITA

Sonstiges

Land/Garten: 6670 Quadratmeter, davon 3200 Quadratmeter eingezäunter Garten und 3470 Quadratmeter Olivenhain mit 100 Bäumen in voller Produktion
Terrasse/Balkon: 3 Terrassen auf der ersten Etage
Schwimmbad: unterirdisches Schwimmbad möglich, Projekt ...mehr lesen
Land/Garten: 6670 Quadratmeter, davon 3200 Quadratmeter eingezäunter Garten und 3470 Quadratmeter Olivenhain mit 100 Bäumen in voller Produktion
Terrasse/Balkon: 3 Terrassen auf der ersten Etage
Schwimmbad: unterirdisches Schwimmbad möglich, Projekt wird noch vorgestelltParken: Außenparkplatz + 2 Garagen
Aufteilung:
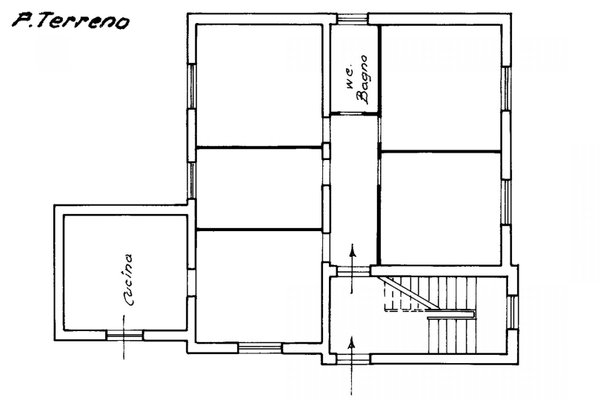
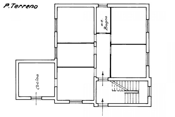
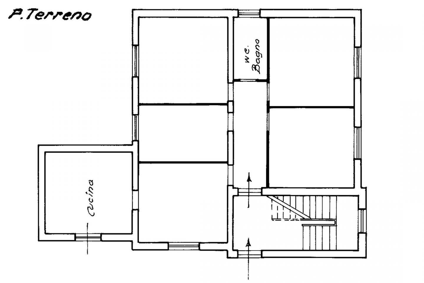
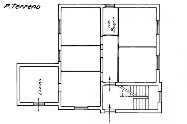
Erdgeschoss: Wohn-/Esszimmer, Küche, Diele, 2 Doppelschlafzimmer, 1 Einzelschlafzimmer, 1 Badezimmer und Treppenhaus
Obergeschoss: Wohn-/Esszimmer, Küche, Terrasse, Flur, 2 Doppelschlafzimmer mit direktem Zugang zu einer Terrasse, 1 Einzelschlafzimmer, 1 Badezimmer und Treppenhaus
Untergeschoss: Kellerraum, Abstellraum, Heizungsanlage, Garage. Es gibt einen zusätzlichen Abstellraum, der nur von außen zugänglich ist.

Ansprechpartner

Verbraucherhinweis

Widerrufsbelehrung des Anbieters

(Gilt nicht für Wohnraummiete in Deutschland)

Widerrufsrecht für Verbraucher
Sie haben das Recht, binnen vierzehn Tagen ohne Angabe von Gründen diesen Vertrag zu widerrufen. Die Widerrufsfrist beträgt vierzehn Tage ab dem Tag des Vertragsabschlusses.
Um Ihr Widerrufsrecht auszuüben, müssen Sie uns (Apolloni & Blom S.r.l., Via del progresso 7, 06061 Castiglione del Lago, +390578717016, info@apolloniblom.com) mittels einer eindeutigen Erklärung (z. B. ein mit der Post versandter Brief, Telefax oder E-Mail) über Ihren Entschluss, diesen Vertrag zu widerrufen, informieren. Sie können dafür das beigefügte Muster-Widerrufsformular verwenden, das jedoch nicht vorgeschrieben ist. Zur Wahrung der Widerrufsfrist reicht es aus, dass Sie die Mitteilung über die Ausübung des Widerrufsrechts vor Ablauf der Widerrufsfrist absenden.

Folgen des Widerrufs
Wenn Sie diesen Vertrag widerrufen, haben wir Ihnen alle Zahlungen, die wir von Ihnen erhalten haben, einschließlich der Lieferkosten (mit Ausnahme der zusätzlichen Kosten, die sich daraus ergeben, dass Sie eine andere Art der Lieferung als die von uns angebotene, günstigste Standardlieferung gewählt haben), unverzüglich und spätestens binnen vierzehn Tagen ab dem Tag zurückzuzahlen, an dem die Mitteilung über Ihren Widerruf dieses Vertrags bei uns eingegangen ist. Für diese Rückzahlung verwenden wir dasselbe Zahlungsmittel, das Sie bei der ursprünglichen Transaktion eingesetzt haben, es sei denn, mit Ihnen wurde ausdrücklich etwas anderes vereinbart; in keinem Fall werden Ihnen wegen dieser Rückzahlung Entgelte berechnet. Haben Sie verlangt, dass die Dienstleistungen während der Widerrufsfrist beginnen soll, so haben Sie uns einen angemessenen Betrag zu zahlen, der dem Anteil der bis zu dem Zeitpunkt, zu dem Sie uns von der Ausübung des Widerrufsrechts hinsichtlich dieses Vertrags unterrichten, bereits erbrachten Dienstleistungen im Vergleich zum Gesamtumfang der im Vertrag vorgesehenen Dienstleistungen entspricht.

Muster-Widerrufsformular
(Wenn Sie den Vertrag widerrufen wollen, dann füllen Sie dieses Formular aus und senden Sie es zurück.)

An Apolloni & Blom S.r.l., Via del progresso 7, 06061 Castiglione del Lago, +390578717016, info@apolloniblom.com

Hiermit widerrufe ich/wir den von mir/uns abgeschlossenen Vertrag über den Kauf der folgenden Waren /die Erbringung der folgenden Dienstleistung


Bestellt am /erhalten am

Name des/der Verbraucher(s)

Anschrift des/der Verbraucher(s)

Unterschrift des/der Verbraucher(s) (nur bei Mitteilung auf Papier)

Datum


( Unzutreffendes streichen )


Hinweis auf die Möglichkeit eines vorzeitigen Erlöschens des Widerrufsrechts

Ihr Widerrufsrecht erlischt, wenn wir unsere Leistung vollständig erbracht haben und mit der Ausführung der Leistung erst begonnen haben, nachdem Sie Ihre ausdrückliche Zustimmung gegeben haben und gleichzeitig Ihre Kenntnis davon bestätigt haben, dass Sie Ihr Widerrufsrecht bei vollständiger Vertragserfüllung durch uns verlieren.

Impressum Apolloni & Blom S.r.l.
VERTRETUNGSBERECHTIGTE/R
Blom Niklas Alvar Jonathan


Via del progresso 7
06061 Castiglione del Lago
ITA
Tel.: +390578717016
E-Mail: info@apolloniblom.com
Homepage: https://www.apolloniblom.com/it/index.html

HANDELSREGISTER-EINTRAG
03142470545
Camera di Commercio Industria e artigianato e Agricoltura dell'Umbria

UST-ID-NUMMER
03142470545
Anbieter kontaktieren

AGB, Datenschutz & Verbraucherhinweis wurden gelesen und akzeptiert.