Angebot 243 von 17200

Anbieter kontaktieren

AGB, Datenschutz & Verbraucherhinweis wurden gelesen und akzeptiert.

Properstar SA

Porta Da Frente - Christie`s International Real Estate
  • Mehr erfahren
bellevue.de-ID: 30615623

Wohnung zu kaufen in Lisbon, Portugal

  • Wohnung
  • · 4 Zimmer
  • · 268 m² Wohnfläche
  • · 4.250.000 € Kaufpreis
Anbieter kontaktieren

Objektbeschreibung

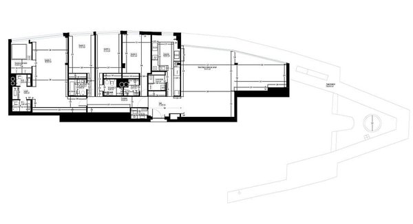
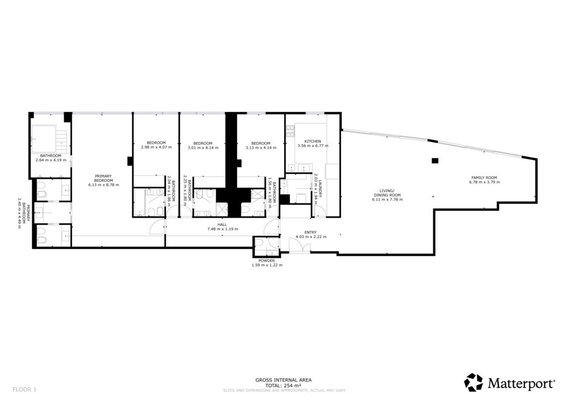
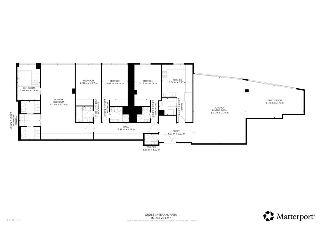
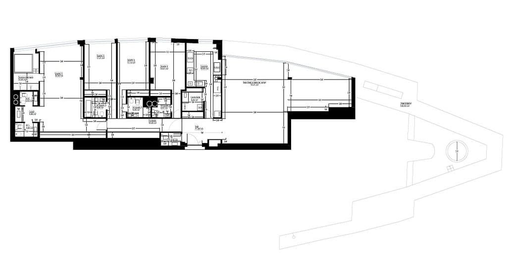
Penthouse Torre São Gabriel – Parque das Nações, Lisbon~268 m2 gross private area + 120 m2 terrace + 55 m2 gross dependent area.~~This unique apartment in the iconic Torre São Gabriel was fully customized with authorization from the condominium, ...mehr lesen
Penthouse Torre São Gabriel – Parque das Nações, Lisbon~268 m2 gross private area + 120 m2 terrace + 55 m2 gross dependent area.~~This unique apartment in the iconic Torre São Gabriel was fully customized with authorization from the condominium, benefiting from 24-hour security and direct interior access to the Vasco da Gama Shopping Center.~It is a unique property, where technology, design and comfort reach the highest level of excellence.~~ACCESS AND SECURITY~Fichet armored entrance door, welded to the walls~Complete alarm system~Remote intercom: remote service anywhere in the world~Two electrical panels + two ITED panels~NOS infrastructures prepared for fiber, TV and telephone~~CARPENTRY & DESIGN~Integral carpentry in high gloss lacquered white~Kitchen lacquered in custom green~Interior doors up to the ceiling:~Pivoting doors in the main hallway and kitchen~Concealed hinges in the remaining rooms~Sliding doors in the bathrooms ~Silent magnetic locks~JNF handles in gold with genuine black leather~Custom-made built-in cabinets throughout the house~~FLOORING & INSULATION~Multilayer Real Dutch solid oak flooring in herringbone pattern~Schluter electric underfloor heating throughout the oak~27.6 kW of electrical power – the highest in the entire Tower~Water-repellent plasterboard home~Total thermal and acoustic insulation (walls and ceilings)~100% electric housing – no gas~~HOME AUTOMATION & TOTAL CONTROL~KNX Gira system with integral management:~Control via smartphone or internal G1 panel~Total and customizable programming~Central control at the entrance for:~All lighting~Blackouts and electric curtains~Air conditioning~Underfloor heating~Gira electric mirrors~Switches with up to 8 functions per zone~~AIR CONDITIONING & WATERS~Complete Mitsubishi Portugal project:~Indoor heat pump~Air conditioning (indoor and outdoor machines)~Indoor and outdoor DHW production~Linear diffusers in the living room and Hotel Suite~Projection units in the remaining rooms~400 L Vine Euro92 water heater installed on the terrace~~LIGHTING~Specialized lighting project with Mood PRO and Trace Line:~Total indirect lighting on the terrace, under glass and raised deck~~KITCHEN & LAUNDRY~Premium equipment:~Kuppersbusch: hob, oven, microwave, extractor hood~Miele: washer/dryer, dishwasher, wine fridge~LG: customised American fridge Black & Gold~Schock sinks (kitchen and laundry)~Schock Gold taps~Frasa crusher~Brushed Zimbabwe granite stonework (4 cm)~~BATHROOMS~Bruma Gold Sunrise PVD taps and Porcelanosa profiles in gold~Revigrés Calacata Gold Matte coverings (floor and walls)~Schluter electric underfloor heating~Integral waterproofing Schluter in the bathroom areas~Washbasins, shower trays, stairs and raised bathtub structure in Corian Glacier White~Roca wall-hung toilets and bidets with Geberit systems~Porcelanosa outdoor jacuzzi bath~Porcelanosa raised square bathtub in the Hotel Suite~~HOTEL SUITE MASTER – 66 m2~A true 5-star hotel atmosphere:~Two independent bathrooms~Walking shower + raised bathtub + heated sun lounger + dressing table~6 linear metres of cabinets (12 doors)~Bed area and relaxation area~~3 ADDITIONAL SUITES~All with more than 20 m2~Private bathrooms with finishes identical to those of the Master~~TERRACE 120 m2 — TOTAL AUTONOMY~A rare outdoor space in Lisbon:~Integral deck in bamboo wood Clover~Built-in Porcelanosa Jacuzzi~Dining area for 12 people + barbecue~Double outdoor shower (rain + foot wash)~Horto do Campo Grande vertical garden~50 meters of laminated and tempered glass with indirect lighting~~Living room with 12 linear meters of tri-rail sliding doors (6 leaves of 2 m) in double glazed sunguard SNX60~~Climaespaço piping removed and sealed – total autonomy of DHW and HVAC~~PRIVATE BOX~Transformed into premium Men's Cave:~Amber Jinko Revigrés Flooring~Miele Combi Fridge~Custom Cabinets~Dedicated NOS Cables (fiber, TV, internet, telephone, work)

Immobiliendetails

  • Nutzungsart
    Wohnen
  • Objektart
    Dachgeschosswohnung
  • Hauptobjektart
    Wohnung
  • Vertragsart
    Kauf
  • Zimmer (gesamt)
    4
  • Anzahl Schlafzimmer
    4
  • Anzahl Badezimmer
    5
  • Wohnfläche (ca.)
    268 m²
  • Nutzfläche (ca.)
    268 m²
  • Etage
    25
  • Anbieter-Objektnummer
    112141216

Preise & Kosten

  • Courtage
    Keine besondere Angabe.

Energie

  • Energieeffizienzklasse
    B

Ausstattung

  • Personenaufzug

Standort & Lage

Lisboa · PRT

Die genaue Anschrift erfahren Sie vom Anbieter

Videos

Ansprechpartner

Porta Da Frente - Christie`s International Real Estate


Verbraucherhinweis

Widerrufsbelehrung des Anbieters

(Gilt nicht für Wohnraummiete in Deutschland)

Widerrufsrecht für Verbraucher
Sie haben das Recht, binnen vierzehn Tagen ohne Angabe von Gründen diesen Vertrag zu widerrufen. Die Widerrufsfrist beträgt vierzehn Tage ab dem Tag des Vertragsabschlusses.
Um Ihr Widerrufsrecht auszuüben, müssen Sie uns (ListGlobally SA, Rue Mercerie 12, 1003 Lausanne, +49 800 0010536, support@listglobally.com) mittels einer eindeutigen Erklärung (z. B. ein mit der Post versandter Brief, Telefax oder E-Mail) über Ihren Entschluss, diesen Vertrag zu widerrufen, informieren. Sie können dafür das beigefügte Muster-Widerrufsformular verwenden, das jedoch nicht vorgeschrieben ist. Zur Wahrung der Widerrufsfrist reicht es aus, dass Sie die Mitteilung über die Ausübung des Widerrufsrechts vor Ablauf der Widerrufsfrist absenden.

Folgen des Widerrufs
Wenn Sie diesen Vertrag widerrufen, haben wir Ihnen alle Zahlungen, die wir von Ihnen erhalten haben, einschließlich der Lieferkosten (mit Ausnahme der zusätzlichen Kosten, die sich daraus ergeben, dass Sie eine andere Art der Lieferung als die von uns angebotene, günstigste Standardlieferung gewählt haben), unverzüglich und spätestens binnen vierzehn Tagen ab dem Tag zurückzuzahlen, an dem die Mitteilung über Ihren Widerruf dieses Vertrags bei uns eingegangen ist. Für diese Rückzahlung verwenden wir dasselbe Zahlungsmittel, das Sie bei der ursprünglichen Transaktion eingesetzt haben, es sei denn, mit Ihnen wurde ausdrücklich etwas anderes vereinbart; in keinem Fall werden Ihnen wegen dieser Rückzahlung Entgelte berechnet. Haben Sie verlangt, dass die Dienstleistungen während der Widerrufsfrist beginnen soll, so haben Sie uns einen angemessenen Betrag zu zahlen, der dem Anteil der bis zu dem Zeitpunkt, zu dem Sie uns von der Ausübung des Widerrufsrechts hinsichtlich dieses Vertrags unterrichten, bereits erbrachten Dienstleistungen im Vergleich zum Gesamtumfang der im Vertrag vorgesehenen Dienstleistungen entspricht.

Muster-Widerrufsformular
(Wenn Sie den Vertrag widerrufen wollen, dann füllen Sie dieses Formular aus und senden Sie es zurück.)

An ListGlobally SA, Rue Mercerie 12, 1003 Lausanne, +49 800 0010536, support@listglobally.com

Hiermit widerrufe ich/wir den von mir/uns abgeschlossenen Vertrag über den Kauf der folgenden Waren /die Erbringung der folgenden Dienstleistung


Bestellt am /erhalten am

Name des/der Verbraucher(s)

Anschrift des/der Verbraucher(s)

Unterschrift des/der Verbraucher(s) (nur bei Mitteilung auf Papier)

Datum


( Unzutreffendes streichen )


Hinweis auf die Möglichkeit eines vorzeitigen Erlöschens des Widerrufsrechts

Ihr Widerrufsrecht erlischt, wenn wir unsere Leistung vollständig erbracht haben und mit der Ausführung der Leistung erst begonnen haben, nachdem Sie Ihre ausdrückliche Zustimmung gegeben haben und gleichzeitig Ihre Kenntnis davon bestätigt haben, dass Sie Ihr Widerrufsrecht bei vollständiger Vertragserfüllung durch uns verlieren.

Impressum ListGlobally SA
VERTRETUNGSBERECHTIGTE/R
Properstar SA


Rue Mercerie 12
1003 Lausanne
CHE
Tel.: +49 800 0010536
E-Mail: support@listglobally.com
Homepage: https://www.listglobally.com/
Anbieter kontaktieren

AGB, Datenschutz & Verbraucherhinweis wurden gelesen und akzeptiert.