Anbieter kontaktieren
Schmidbauer Immobilien Kreta
Oskar Josef Schmidbauer
84100 Niederaichbach
- Mehr erfahren
bellevue.de-ID: 30614307
Kreta – Chania-Lentariana: Neubauwohnung mit einem Schlafzimmer zu verkaufen
- Wohnung
- · 2 Zimmer
- · 48 m² Wohnfläche
- · 240.000 € Kaufpreis
Objektbeschreibung
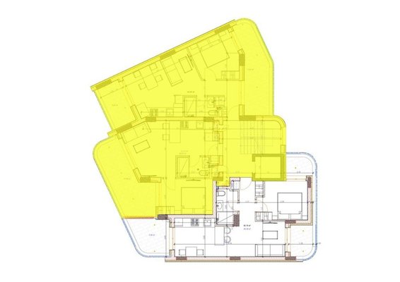
Diese gut geschnittene 1-Zimmer-Wohnung im dritten Stock des zukünftigen Apartmentkomplexes in Lentariana bietet eine attraktive Gelegenheit für Käufer und Investoren. Mit einer Wohnfläche von 48,44 m² überzeugt sie durch effizientes Design und
...mehr lesen
Diese gut geschnittene 1-Zimmer-Wohnung im dritten Stock des zukünftigen Apartmentkomplexes in Lentariana bietet eine attraktive Gelegenheit für Käufer und Investoren. Mit einer Wohnfläche von 48,44 m² überzeugt sie durch effizientes Design und modernen Wohnkomfort in einer Lage, die aufgrund ihrer günstigen Lage und stetigen Entwicklung immer mehr Aufmerksamkeit erregt.
Die Wohnung verfügt über eine offene Küche mit Zugang zu einem geräumigen Balkon, der einen hellen und funktionalen Wohnbereich bietet. Ein separates Wohnzimmer mit eigenem kleinen Balkon sorgt für zusätzliche Flexibilität, während das Schlafzimmer über einen eigenen Balkon verfügt, der Licht und Luft in alle Räume bringt. Ein modernes Badezimmer und hochwertige Ausstattungsdetails runden das Interieur ab, das Teil eines Gebäudes mit nur neun Wohneinheiten ist.
Die Fertigstellung ist für Ende 2026 geplant, die Energieeffizienzklasse ist A++. Das Gebäude zeichnet sich durch eine robuste monolithische Bauweise, Klimaanlagen mit Gebläsekonvektoren für ganzjährige Klimatisierung, fortschrittliche Dämmsysteme sowie speziell gestaltete Küchen und Einbauschränke aus. Bewohner profitieren von sicheren Parkplätzen, einem Aufzug, der alle Etagen verbindet, und der Nähe zu wichtigen Einrichtungen.
Nur 500 Meter vom Stadtzentrum Chanias entfernt und in unmittelbarer Nähe zu Stränden, Flughafen und Hafen gelegen, ist diese Wohnung ideal für alle, die das urbane Leben genießen möchten, ohne mittendrin zu sein. Die anhaltende Stadterneuerung in Lentariana und die steigenden Immobilienpreise machen diese Wohnung zu einer attraktiven langfristigen Investition.
Die Wohnung verfügt über eine offene Küche mit Zugang zu einem geräumigen Balkon, der einen hellen und funktionalen Wohnbereich bietet. Ein separates Wohnzimmer mit eigenem kleinen Balkon sorgt für zusätzliche Flexibilität, während das Schlafzimmer über einen eigenen Balkon verfügt, der Licht und Luft in alle Räume bringt. Ein modernes Badezimmer und hochwertige Ausstattungsdetails runden das Interieur ab, das Teil eines Gebäudes mit nur neun Wohneinheiten ist.
Die Fertigstellung ist für Ende 2026 geplant, die Energieeffizienzklasse ist A++. Das Gebäude zeichnet sich durch eine robuste monolithische Bauweise, Klimaanlagen mit Gebläsekonvektoren für ganzjährige Klimatisierung, fortschrittliche Dämmsysteme sowie speziell gestaltete Küchen und Einbauschränke aus. Bewohner profitieren von sicheren Parkplätzen, einem Aufzug, der alle Etagen verbindet, und der Nähe zu wichtigen Einrichtungen.
Nur 500 Meter vom Stadtzentrum Chanias entfernt und in unmittelbarer Nähe zu Stränden, Flughafen und Hafen gelegen, ist diese Wohnung ideal für alle, die das urbane Leben genießen möchten, ohne mittendrin zu sein. Die anhaltende Stadterneuerung in Lentariana und die steigenden Immobilienpreise machen diese Wohnung zu einer attraktiven langfristigen Investition.
Immobiliendetails
-
NutzungsartWohnen
-
HauptobjektartWohnung
-
VertragsartKauf
-
ObjektzustandNeubau
-
Baujahr2025
-
Zimmer (gesamt)2
-
Anzahl Schlafzimmer1
-
Anzahl Badezimmer1
-
Wohnfläche (ca.)48,44 m²
-
Balkon1
-
BadDuschbad
-
Etage3
-
StellplatzartFreiplatz
-
Anzahl Etagen1
-
ObjektzustandNeubau
-
FußbodenFliesen
-
Anbieter-ObjektnummerA-1987985h
Preise & Kosten
-
Courtage3,10 % inklusive der gesetzlichen Mehrwertsteuer
Energie
-
EnergieausweisEnergiebedarfsausweis
-
Baujahr (laut Energieausweis)2025
-
EnergieeffizienzklasseA
-
Ausgestelltohne / nicht vorhanden
Ausstattung
- Personenaufzug
- Klimanalage
Standort & Lage
?️ Lentariana (PLZ 731 33) – Ruhiges Stadtviertel nahe Zentrum & Hafen
Lentariana ist ein etabliertes und gut gelegenes Stadtviertel von Chania. Es befindet sich südöstlich des historischen Zentrums und zeichnet sich durch seine ausgezeichnete ...mehr lesen
Lentariana ist ein etabliertes und gut gelegenes Stadtviertel von Chania. Es befindet sich südöstlich des historischen Zentrums und zeichnet sich durch seine ausgezeichnete ...mehr lesen
?️ Lentariana (PLZ 731 33) – Ruhiges Stadtviertel nahe Zentrum & Hafen
Lentariana ist ein etabliertes und gut gelegenes Stadtviertel von Chania. Es befindet sich südöstlich des historischen Zentrums und zeichnet sich durch seine ausgezeichnete Anbindung an die Innenstadt sowie an wichtige Verkehrsadern aus. Das Viertel bietet eine ideale Mischung aus städtischer Infrastruktur, der Nähe zu Bildungseinrichtungen (z. B. der Technischen Universität) und einer ruhigeren Wohnatmosphäre als die direkte Altstadt. Es ist perfekt für Käufer, die ganzjähriges Wohnen mit schnellem Zugang zu allen Annehmlichkeiten der Stadt suchen.
? Lebensstil & Atmosphäre
Lentariana ist primär ein Wohngebiet. Die Nähe zum Stadtzentrum und zur Hauptstraße (Andrea Papandreou) sorgt für eine hervorragende Infrastruktur mit Geschäften, Supermärkten und lokalen Dienstleistungen. Das Viertel ist bekannt für seine ruhigeren Straßen und gilt als eine beliebte Wohngegend für Familien und Studenten.
? Verkehr & Infrastruktur
Die Lage ist verkehrstechnisch optimal, da sie nahe am Stadtzentrum und an der Verbindungsstraße zum Flughafen liegt:
Das Zentrum von Chania (Altstadt und venezianischer Hafen) erreichen Sie in ca. 2,2 km (ca. 8 Minuten Fahrzeit).
Der Internationale Flughafen Chania (CHQ) ist ca. 11,9 km entfernt (ca. 15 Minuten Fahrzeit).
Der Fährhafen Souda (Port of Souda) ist ca. 5,6 km entfernt (ca. 12 Minuten Fahrzeit), ideal für Reisende zum griechischen Festland.
?️ Natur & Freizeitmöglichkeiten
Obwohl Lentariana ein städtisches Viertel ist, bietet es schnellen Zugang zu:
Historisches Zentrum: Der weltberühmte venezianische Hafen von Chania mit seiner Promenade, Museen und der historischen Altstadt ist schnell erreichbar.
Freilichttheater: Ein besonderer Mehrwert ist das Freilichttheater, das sich inmitten des angrenzenden Waldgebiets (vermutlich die Schlucht von Lentarides) befindet. Es bietet eine einzigartige Kulisse für kulturelle Veranstaltungen.
Strände: Die Stadtstrände von Nea Chora und Koum Kapi sind nur wenige Minuten entfernt.
Erholung: Parks und Grünflächen in der Stadt sowie die Nähe zu den Ausläufern der Akrotiri-Halbinsel bieten Möglichkeiten zur Erholung.
? Immobilien & Standortpotential – Attraktiver Wohnstandort
Der Immobilienmarkt in Lentariana ist stabil und primär auf den Wohnungsmarkt ausgerichtet. Die hervorragende Lage macht es attraktiv für:
Langfristige Vermietung: Beliebt bei kretischen Familien, Studenten und Mitarbeitern der nahe gelegenen Universität.
Ganzjähriges Wohnen: Die ideale Balance zwischen Stadtnähe und ruhigem Umfeld.
Investition: Solide Wertentwicklung aufgrund der zentralen, aber nicht überfüllten Lage.
Wir, Schmidbauer Immobilien Kreta, vermitteln exklusiv Immobilien wie Häuser, Wohnungen und Grundstücke ausschließlich auf Kreta. Wir unterstützen Sie dabei, Ihren Traum vom Haus auf Kreta in diesem praktischen Stadtviertel zu verwirklichen.
Lentariana ist ein etabliertes und gut gelegenes Stadtviertel von Chania. Es befindet sich südöstlich des historischen Zentrums und zeichnet sich durch seine ausgezeichnete Anbindung an die Innenstadt sowie an wichtige Verkehrsadern aus. Das Viertel bietet eine ideale Mischung aus städtischer Infrastruktur, der Nähe zu Bildungseinrichtungen (z. B. der Technischen Universität) und einer ruhigeren Wohnatmosphäre als die direkte Altstadt. Es ist perfekt für Käufer, die ganzjähriges Wohnen mit schnellem Zugang zu allen Annehmlichkeiten der Stadt suchen.
? Lebensstil & Atmosphäre
Lentariana ist primär ein Wohngebiet. Die Nähe zum Stadtzentrum und zur Hauptstraße (Andrea Papandreou) sorgt für eine hervorragende Infrastruktur mit Geschäften, Supermärkten und lokalen Dienstleistungen. Das Viertel ist bekannt für seine ruhigeren Straßen und gilt als eine beliebte Wohngegend für Familien und Studenten.
? Verkehr & Infrastruktur
Die Lage ist verkehrstechnisch optimal, da sie nahe am Stadtzentrum und an der Verbindungsstraße zum Flughafen liegt:
Das Zentrum von Chania (Altstadt und venezianischer Hafen) erreichen Sie in ca. 2,2 km (ca. 8 Minuten Fahrzeit).
Der Internationale Flughafen Chania (CHQ) ist ca. 11,9 km entfernt (ca. 15 Minuten Fahrzeit).
Der Fährhafen Souda (Port of Souda) ist ca. 5,6 km entfernt (ca. 12 Minuten Fahrzeit), ideal für Reisende zum griechischen Festland.
?️ Natur & Freizeitmöglichkeiten
Obwohl Lentariana ein städtisches Viertel ist, bietet es schnellen Zugang zu:
Historisches Zentrum: Der weltberühmte venezianische Hafen von Chania mit seiner Promenade, Museen und der historischen Altstadt ist schnell erreichbar.
Freilichttheater: Ein besonderer Mehrwert ist das Freilichttheater, das sich inmitten des angrenzenden Waldgebiets (vermutlich die Schlucht von Lentarides) befindet. Es bietet eine einzigartige Kulisse für kulturelle Veranstaltungen.
Strände: Die Stadtstrände von Nea Chora und Koum Kapi sind nur wenige Minuten entfernt.
Erholung: Parks und Grünflächen in der Stadt sowie die Nähe zu den Ausläufern der Akrotiri-Halbinsel bieten Möglichkeiten zur Erholung.
? Immobilien & Standortpotential – Attraktiver Wohnstandort
Der Immobilienmarkt in Lentariana ist stabil und primär auf den Wohnungsmarkt ausgerichtet. Die hervorragende Lage macht es attraktiv für:
Langfristige Vermietung: Beliebt bei kretischen Familien, Studenten und Mitarbeitern der nahe gelegenen Universität.
Ganzjähriges Wohnen: Die ideale Balance zwischen Stadtnähe und ruhigem Umfeld.
Investition: Solide Wertentwicklung aufgrund der zentralen, aber nicht überfüllten Lage.
Wir, Schmidbauer Immobilien Kreta, vermitteln exklusiv Immobilien wie Häuser, Wohnungen und Grundstücke ausschließlich auf Kreta. Wir unterstützen Sie dabei, Ihren Traum vom Haus auf Kreta in diesem praktischen Stadtviertel zu verwirklichen.
Sonstiges
Wir sind deutsche Immobilienmakler und haben uns spezialisiert auf Immobilien aus Kreta. Neben der Suche nach geeigneten Immobilien auf Kreta für Sie, gehört auch das Organisieren von Besichtigungsterminen auf Kreta zu unserem Portfolio.
Zu jeder ...mehr lesen
Zu jeder ...mehr lesen
Wir sind deutsche Immobilienmakler und haben uns spezialisiert auf Immobilien aus Kreta. Neben der Suche nach geeigneten Immobilien auf Kreta für Sie, gehört auch das Organisieren von Besichtigungsterminen auf Kreta zu unserem Portfolio.
Zu jeder Phase Ihres Immobilienerwerbs auf Kreta stehen wir Ihnen zur Seite und begleiten Sie vom ersten Gespräch bis über den Notarvertrag hinaus.
Uns sind Ihre Vorstellungen wichtig, wie zum Beispiel die Lage auf Kreta in Verbindung mit Meerblick, Strandnähe, Sandstrand, Steinhaus oder Swimmingpool. Zusätzlich gibt es wichtige Punkte zu beachten wie die Maße der Zimmer einer Immobilie. In Griechenland und somit auch auf Kreta werden die Wände miteingerechnet, also Außenwand zur Außenwand. Im Gegensatz zu deutschen Immobilien, hier wird von Innenwand zur Innenwand gemessen.
Wir empfehlen Ihnen unbedingt bei der Besichtigung auf Kreta die angegebene Wohnfläche zu überprüfen, da diese stark von deutschen Angaben abweichen kann (Berechnungs-, Wohnflächenverordnung, DIN-Normen) und Nutzflächen eventuell miteingerechnet wurden (Keller, Technikraum, Balkon, Terrasse etc.).
Bitte beachten Sie auch bei Standortangaben zu Immobilienangeboten auf Kreta, dass dies ungefähre Werte sind.
Der griechische Energieausweis (falls erforderlich) liegt bei der Besichtigung vor.
Zum angegebenen Kaufpreis kommen noch Nebenkosten wie Provision, Grunderwerbsteuer, Notargebühren und Anwaltskosten hinzu. Genaueres finden Sie auf unserer Homepage bei INFOS.
Alle über unser Portal angebotenen Immobilien aus Kreta wurden sorgfältig geprüft und übersetzt. Dennoch können sich Fehler einschleichen, so dass wir keine Gewähr auf Richtigkeit der Angaben übernehmen.
Für alle Fragen rund um das Thema - Kauf einer Immobilie oder Grundstück auf Kreta - stehen wir Ihnen gerne zur Verfügung und können weitere Details im Gespräch klären.
Es gelten unsere AGB, die Sie auf unserer Homepage bei AGB und Widerrufsrecht finden.
Zu jeder Phase Ihres Immobilienerwerbs auf Kreta stehen wir Ihnen zur Seite und begleiten Sie vom ersten Gespräch bis über den Notarvertrag hinaus.
Uns sind Ihre Vorstellungen wichtig, wie zum Beispiel die Lage auf Kreta in Verbindung mit Meerblick, Strandnähe, Sandstrand, Steinhaus oder Swimmingpool. Zusätzlich gibt es wichtige Punkte zu beachten wie die Maße der Zimmer einer Immobilie. In Griechenland und somit auch auf Kreta werden die Wände miteingerechnet, also Außenwand zur Außenwand. Im Gegensatz zu deutschen Immobilien, hier wird von Innenwand zur Innenwand gemessen.
Wir empfehlen Ihnen unbedingt bei der Besichtigung auf Kreta die angegebene Wohnfläche zu überprüfen, da diese stark von deutschen Angaben abweichen kann (Berechnungs-, Wohnflächenverordnung, DIN-Normen) und Nutzflächen eventuell miteingerechnet wurden (Keller, Technikraum, Balkon, Terrasse etc.).
Bitte beachten Sie auch bei Standortangaben zu Immobilienangeboten auf Kreta, dass dies ungefähre Werte sind.
Der griechische Energieausweis (falls erforderlich) liegt bei der Besichtigung vor.
Zum angegebenen Kaufpreis kommen noch Nebenkosten wie Provision, Grunderwerbsteuer, Notargebühren und Anwaltskosten hinzu. Genaueres finden Sie auf unserer Homepage bei INFOS.
Alle über unser Portal angebotenen Immobilien aus Kreta wurden sorgfältig geprüft und übersetzt. Dennoch können sich Fehler einschleichen, so dass wir keine Gewähr auf Richtigkeit der Angaben übernehmen.
Für alle Fragen rund um das Thema - Kauf einer Immobilie oder Grundstück auf Kreta - stehen wir Ihnen gerne zur Verfügung und können weitere Details im Gespräch klären.
Es gelten unsere AGB, die Sie auf unserer Homepage bei AGB und Widerrufsrecht finden.
Anbieter
Schmidbauer Immobilien Kreta
Herr Oskar Josef Schmidbauer
Kokkino Chorio 1
730 08 Kokkino Chorio
730 08 Kokkino Chorio
Ansprechpartner
Oskar Josef Schmidbauer
Adlerstrasse 2
84100 Niederaichbach
84100 Niederaichbach