Anbieter kontaktieren
Schmidbauer Immobilien Kreta
Oskar Josef Schmidbauer
84100 Niederaichbach
- Mehr erfahren
bellevue.de-ID: 30614305
Kreta – Chania-Lentariana: Moderne Neubauwohnung mit einem Schlafzimmer zu verkaufen
- Wohnung
- · 2 Zimmer
- · 46 m² Wohnfläche
- · 220.000 € Kaufpreis
Objektbeschreibung
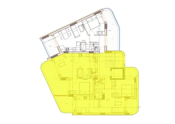
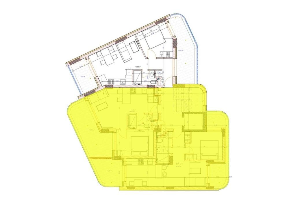
Diese 45,97 m² große Wohnung befindet sich im zweiten Obergeschoss eines modernen Wohnkomplexes in Lentariana und bietet einen durchdachten Grundriss, der sich ideal für komfortables Wohnen oder als lohnende Kapitalanlage eignet. Die Fertigstellung
...mehr lesen
Diese 45,97 m² große Wohnung befindet sich im zweiten Obergeschoss eines modernen Wohnkomplexes in Lentariana und bietet einen durchdachten Grundriss, der sich ideal für komfortables Wohnen oder als lohnende Kapitalanlage eignet. Die Fertigstellung ist für Ende 2026 geplant. Sie profitieren von einer brandneuen Infrastruktur und modernster Energieeffizienz (Energieeffizienzklasse A++).
Der offene Küchen- und Wohnbereich geht nahtlos in eine große Veranda und einen zusätzlichen Balkon über und bietet viel Tageslicht und einen großzügigen Außenbereich. Das Schlafzimmer bietet direkten Zugang zur Veranda, und das elegante Badezimmer ist mit hochwertigen Armaturen ausgestattet. Für angenehme Temperaturen sorgt eine moderne Split-Klimaanlage mit Gebläsekonvektoren, die sowohl heizt als auch kühlt.
Das Gebäude wurde in monolithischer Bauweise mit hochwertigen Materialien wie thermisch getrennten Aluminiumrahmen und minoischen Orthoblockwänden errichtet und verfügt über einen Aufzug, einen privaten Parkplatz und Schallschutz. Küchen und Einbauschränke sind individuell gestaltet und passen perfekt zum modernen Ambiente der Wohnung.
Nur wenige Minuten vom Stadtzentrum entfernt, bietet diese Wohnung eine ideale Lage für alle, die Wert auf die Nähe zu Supermärkten, Cafés, traditionellen Geschäften und lokalen Attraktionen wie dem Lentariana-Theater legen. Der nächste Strand ist nur 1,4 km entfernt, und die Nähe zum Flughafen Chania und zum Hafen von Souda macht die Wohnung sowohl für Kurzzeit- als auch für Langzeitaufenthalte attraktiv.
Mit nur neun Wohneinheiten im Gebäude und stetig steigender Nachfrage in dieser immer beliebter werdenden Gegend stellt diese Immobilie eine vielversprechende Gelegenheit auf dem dynamischen Immobilienmarkt von Chania dar.
Der offene Küchen- und Wohnbereich geht nahtlos in eine große Veranda und einen zusätzlichen Balkon über und bietet viel Tageslicht und einen großzügigen Außenbereich. Das Schlafzimmer bietet direkten Zugang zur Veranda, und das elegante Badezimmer ist mit hochwertigen Armaturen ausgestattet. Für angenehme Temperaturen sorgt eine moderne Split-Klimaanlage mit Gebläsekonvektoren, die sowohl heizt als auch kühlt.
Das Gebäude wurde in monolithischer Bauweise mit hochwertigen Materialien wie thermisch getrennten Aluminiumrahmen und minoischen Orthoblockwänden errichtet und verfügt über einen Aufzug, einen privaten Parkplatz und Schallschutz. Küchen und Einbauschränke sind individuell gestaltet und passen perfekt zum modernen Ambiente der Wohnung.
Nur wenige Minuten vom Stadtzentrum entfernt, bietet diese Wohnung eine ideale Lage für alle, die Wert auf die Nähe zu Supermärkten, Cafés, traditionellen Geschäften und lokalen Attraktionen wie dem Lentariana-Theater legen. Der nächste Strand ist nur 1,4 km entfernt, und die Nähe zum Flughafen Chania und zum Hafen von Souda macht die Wohnung sowohl für Kurzzeit- als auch für Langzeitaufenthalte attraktiv.
Mit nur neun Wohneinheiten im Gebäude und stetig steigender Nachfrage in dieser immer beliebter werdenden Gegend stellt diese Immobilie eine vielversprechende Gelegenheit auf dem dynamischen Immobilienmarkt von Chania dar.
Immobiliendetails
-
NutzungsartWohnen
-
HauptobjektartWohnung
-
VertragsartKauf
-
ObjektzustandNeubau
-
Baujahr2025
-
Zimmer (gesamt)2
-
Anzahl Schlafzimmer1
-
Anzahl Badezimmer1
-
Wohnfläche (ca.)45,97 m²
-
Balkon1
-
BadDuschbad
-
Etage2
-
StellplatzartFreiplatz
-
Anzahl Etagen1
-
ObjektzustandNeubau
-
FußbodenFliesen
-
Anbieter-ObjektnummerA-1987737h
Preise & Kosten
-
Courtage3,10 % inklusive der gesetzlichen Mehrwertsteuer
Energie
-
EnergieausweisEnergiebedarfsausweis
-
Baujahr (laut Energieausweis)2025
-
EnergieeffizienzklasseA
-
Ausgestelltohne / nicht vorhanden
Ausstattung
- Personenaufzug
- Klimanalage
Standort & Lage
?️ Lentariana (PLZ 731 33) – Ruhiges Stadtviertel nahe Zentrum & Hafen
Lentariana ist ein etabliertes und gut gelegenes Stadtviertel von Chania. Es befindet sich südöstlich des historischen Zentrums und zeichnet sich durch seine ausgezeichnete ...mehr lesen
Lentariana ist ein etabliertes und gut gelegenes Stadtviertel von Chania. Es befindet sich südöstlich des historischen Zentrums und zeichnet sich durch seine ausgezeichnete ...mehr lesen
?️ Lentariana (PLZ 731 33) – Ruhiges Stadtviertel nahe Zentrum & Hafen
Lentariana ist ein etabliertes und gut gelegenes Stadtviertel von Chania. Es befindet sich südöstlich des historischen Zentrums und zeichnet sich durch seine ausgezeichnete Anbindung an die Innenstadt sowie an wichtige Verkehrsadern aus. Das Viertel bietet eine ideale Mischung aus städtischer Infrastruktur, der Nähe zu Bildungseinrichtungen (z. B. der Technischen Universität) und einer ruhigeren Wohnatmosphäre als die direkte Altstadt. Es ist perfekt für Käufer, die ganzjähriges Wohnen mit schnellem Zugang zu allen Annehmlichkeiten der Stadt suchen.
? Lebensstil & Atmosphäre
Lentariana ist primär ein Wohngebiet. Die Nähe zum Stadtzentrum und zur Hauptstraße (Andrea Papandreou) sorgt für eine hervorragende Infrastruktur mit Geschäften, Supermärkten und lokalen Dienstleistungen. Das Viertel ist bekannt für seine ruhigeren Straßen und gilt als eine beliebte Wohngegend für Familien und Studenten.
? Verkehr & Infrastruktur
Die Lage ist verkehrstechnisch optimal, da sie nahe am Stadtzentrum und an der Verbindungsstraße zum Flughafen liegt:
Das Zentrum von Chania (Altstadt und venezianischer Hafen) erreichen Sie in ca. 2,2 km (ca. 8 Minuten Fahrzeit).
Der Internationale Flughafen Chania (CHQ) ist ca. 11,9 km entfernt (ca. 15 Minuten Fahrzeit).
Der Fährhafen Souda (Port of Souda) ist ca. 5,6 km entfernt (ca. 12 Minuten Fahrzeit), ideal für Reisende zum griechischen Festland.
?️ Natur & Freizeitmöglichkeiten
Obwohl Lentariana ein städtisches Viertel ist, bietet es schnellen Zugang zu:
Historisches Zentrum: Der weltberühmte venezianische Hafen von Chania mit seiner Promenade, Museen und der historischen Altstadt ist schnell erreichbar.
Freilichttheater: Ein besonderer Mehrwert ist das Freilichttheater, das sich inmitten des angrenzenden Waldgebiets (vermutlich die Schlucht von Lentarides) befindet. Es bietet eine einzigartige Kulisse für kulturelle Veranstaltungen.
Strände: Die Stadtstrände von Nea Chora und Koum Kapi sind nur wenige Minuten entfernt.
Erholung: Parks und Grünflächen in der Stadt sowie die Nähe zu den Ausläufern der Akrotiri-Halbinsel bieten Möglichkeiten zur Erholung.
? Immobilien & Standortpotential – Attraktiver Wohnstandort
Der Immobilienmarkt in Lentariana ist stabil und primär auf den Wohnungsmarkt ausgerichtet. Die hervorragende Lage macht es attraktiv für:
Langfristige Vermietung: Beliebt bei kretischen Familien, Studenten und Mitarbeitern der nahe gelegenen Universität.
Ganzjähriges Wohnen: Die ideale Balance zwischen Stadtnähe und ruhigem Umfeld.
Investition: Solide Wertentwicklung aufgrund der zentralen, aber nicht überfüllten Lage.
Wir, Schmidbauer Immobilien Kreta, vermitteln exklusiv Immobilien wie Häuser, Wohnungen und Grundstücke ausschließlich auf Kreta. Wir unterstützen Sie dabei, Ihren Traum vom Haus auf Kreta in diesem praktischen Stadtviertel zu verwirklichen.
Lentariana ist ein etabliertes und gut gelegenes Stadtviertel von Chania. Es befindet sich südöstlich des historischen Zentrums und zeichnet sich durch seine ausgezeichnete Anbindung an die Innenstadt sowie an wichtige Verkehrsadern aus. Das Viertel bietet eine ideale Mischung aus städtischer Infrastruktur, der Nähe zu Bildungseinrichtungen (z. B. der Technischen Universität) und einer ruhigeren Wohnatmosphäre als die direkte Altstadt. Es ist perfekt für Käufer, die ganzjähriges Wohnen mit schnellem Zugang zu allen Annehmlichkeiten der Stadt suchen.
? Lebensstil & Atmosphäre
Lentariana ist primär ein Wohngebiet. Die Nähe zum Stadtzentrum und zur Hauptstraße (Andrea Papandreou) sorgt für eine hervorragende Infrastruktur mit Geschäften, Supermärkten und lokalen Dienstleistungen. Das Viertel ist bekannt für seine ruhigeren Straßen und gilt als eine beliebte Wohngegend für Familien und Studenten.
? Verkehr & Infrastruktur
Die Lage ist verkehrstechnisch optimal, da sie nahe am Stadtzentrum und an der Verbindungsstraße zum Flughafen liegt:
Das Zentrum von Chania (Altstadt und venezianischer Hafen) erreichen Sie in ca. 2,2 km (ca. 8 Minuten Fahrzeit).
Der Internationale Flughafen Chania (CHQ) ist ca. 11,9 km entfernt (ca. 15 Minuten Fahrzeit).
Der Fährhafen Souda (Port of Souda) ist ca. 5,6 km entfernt (ca. 12 Minuten Fahrzeit), ideal für Reisende zum griechischen Festland.
?️ Natur & Freizeitmöglichkeiten
Obwohl Lentariana ein städtisches Viertel ist, bietet es schnellen Zugang zu:
Historisches Zentrum: Der weltberühmte venezianische Hafen von Chania mit seiner Promenade, Museen und der historischen Altstadt ist schnell erreichbar.
Freilichttheater: Ein besonderer Mehrwert ist das Freilichttheater, das sich inmitten des angrenzenden Waldgebiets (vermutlich die Schlucht von Lentarides) befindet. Es bietet eine einzigartige Kulisse für kulturelle Veranstaltungen.
Strände: Die Stadtstrände von Nea Chora und Koum Kapi sind nur wenige Minuten entfernt.
Erholung: Parks und Grünflächen in der Stadt sowie die Nähe zu den Ausläufern der Akrotiri-Halbinsel bieten Möglichkeiten zur Erholung.
? Immobilien & Standortpotential – Attraktiver Wohnstandort
Der Immobilienmarkt in Lentariana ist stabil und primär auf den Wohnungsmarkt ausgerichtet. Die hervorragende Lage macht es attraktiv für:
Langfristige Vermietung: Beliebt bei kretischen Familien, Studenten und Mitarbeitern der nahe gelegenen Universität.
Ganzjähriges Wohnen: Die ideale Balance zwischen Stadtnähe und ruhigem Umfeld.
Investition: Solide Wertentwicklung aufgrund der zentralen, aber nicht überfüllten Lage.
Wir, Schmidbauer Immobilien Kreta, vermitteln exklusiv Immobilien wie Häuser, Wohnungen und Grundstücke ausschließlich auf Kreta. Wir unterstützen Sie dabei, Ihren Traum vom Haus auf Kreta in diesem praktischen Stadtviertel zu verwirklichen.
Sonstiges
Wir sind deutsche Immobilienmakler und haben uns spezialisiert auf Immobilien aus Kreta. Neben der Suche nach geeigneten Immobilien auf Kreta für Sie, gehört auch das Organisieren von Besichtigungsterminen auf Kreta zu unserem Portfolio.
Zu jeder ...mehr lesen
Zu jeder ...mehr lesen
Wir sind deutsche Immobilienmakler und haben uns spezialisiert auf Immobilien aus Kreta. Neben der Suche nach geeigneten Immobilien auf Kreta für Sie, gehört auch das Organisieren von Besichtigungsterminen auf Kreta zu unserem Portfolio.
Zu jeder Phase Ihres Immobilienerwerbs auf Kreta stehen wir Ihnen zur Seite und begleiten Sie vom ersten Gespräch bis über den Notarvertrag hinaus.
Uns sind Ihre Vorstellungen wichtig, wie zum Beispiel die Lage auf Kreta in Verbindung mit Meerblick, Strandnähe, Sandstrand, Steinhaus oder Swimmingpool. Zusätzlich gibt es wichtige Punkte zu beachten wie die Maße der Zimmer einer Immobilie. In Griechenland und somit auch auf Kreta werden die Wände miteingerechnet, also Außenwand zur Außenwand. Im Gegensatz zu deutschen Immobilien, hier wird von Innenwand zur Innenwand gemessen.
Wir empfehlen Ihnen unbedingt bei der Besichtigung auf Kreta die angegebene Wohnfläche zu überprüfen, da diese stark von deutschen Angaben abweichen kann (Berechnungs-, Wohnflächenverordnung, DIN-Normen) und Nutzflächen eventuell miteingerechnet wurden (Keller, Technikraum, Balkon, Terrasse etc.).
Bitte beachten Sie auch bei Standortangaben zu Immobilienangeboten auf Kreta, dass dies ungefähre Werte sind.
Der griechische Energieausweis (falls erforderlich) liegt bei der Besichtigung vor.
Zum angegebenen Kaufpreis kommen noch Nebenkosten wie Provision, Grunderwerbsteuer, Notargebühren und Anwaltskosten hinzu. Genaueres finden Sie auf unserer Homepage bei INFOS.
Alle über unser Portal angebotenen Immobilien aus Kreta wurden sorgfältig geprüft und übersetzt. Dennoch können sich Fehler einschleichen, so dass wir keine Gewähr auf Richtigkeit der Angaben übernehmen.
Für alle Fragen rund um das Thema - Kauf einer Immobilie oder Grundstück auf Kreta - stehen wir Ihnen gerne zur Verfügung und können weitere Details im Gespräch klären.
Es gelten unsere AGB, die Sie auf unserer Homepage bei AGB und Widerrufsrecht finden.
Zu jeder Phase Ihres Immobilienerwerbs auf Kreta stehen wir Ihnen zur Seite und begleiten Sie vom ersten Gespräch bis über den Notarvertrag hinaus.
Uns sind Ihre Vorstellungen wichtig, wie zum Beispiel die Lage auf Kreta in Verbindung mit Meerblick, Strandnähe, Sandstrand, Steinhaus oder Swimmingpool. Zusätzlich gibt es wichtige Punkte zu beachten wie die Maße der Zimmer einer Immobilie. In Griechenland und somit auch auf Kreta werden die Wände miteingerechnet, also Außenwand zur Außenwand. Im Gegensatz zu deutschen Immobilien, hier wird von Innenwand zur Innenwand gemessen.
Wir empfehlen Ihnen unbedingt bei der Besichtigung auf Kreta die angegebene Wohnfläche zu überprüfen, da diese stark von deutschen Angaben abweichen kann (Berechnungs-, Wohnflächenverordnung, DIN-Normen) und Nutzflächen eventuell miteingerechnet wurden (Keller, Technikraum, Balkon, Terrasse etc.).
Bitte beachten Sie auch bei Standortangaben zu Immobilienangeboten auf Kreta, dass dies ungefähre Werte sind.
Der griechische Energieausweis (falls erforderlich) liegt bei der Besichtigung vor.
Zum angegebenen Kaufpreis kommen noch Nebenkosten wie Provision, Grunderwerbsteuer, Notargebühren und Anwaltskosten hinzu. Genaueres finden Sie auf unserer Homepage bei INFOS.
Alle über unser Portal angebotenen Immobilien aus Kreta wurden sorgfältig geprüft und übersetzt. Dennoch können sich Fehler einschleichen, so dass wir keine Gewähr auf Richtigkeit der Angaben übernehmen.
Für alle Fragen rund um das Thema - Kauf einer Immobilie oder Grundstück auf Kreta - stehen wir Ihnen gerne zur Verfügung und können weitere Details im Gespräch klären.
Es gelten unsere AGB, die Sie auf unserer Homepage bei AGB und Widerrufsrecht finden.
Anbieter
Schmidbauer Immobilien Kreta
Herr Oskar Josef Schmidbauer
Kokkino Chorio 1
730 08 Kokkino Chorio
730 08 Kokkino Chorio
Ansprechpartner
Oskar Josef Schmidbauer
Adlerstrasse 2
84100 Niederaichbach
84100 Niederaichbach