Angebot 2121 von 14955

Anbieter kontaktieren

AGB, Datenschutz & Verbraucherhinweis wurden gelesen und akzeptiert.

HausHirsch GmbH

Alexander Zorin
40211 Düsseldorf
  • Mehr erfahren
bellevue.de-ID: 30613571

Charmantes Einfamilienhaus in ruhiger Seitenstraße. Perfekt für Paare!

  • Haus
  • · 2.5 Zimmer
  • · 86 m² Wohnfläche
  • · 359 m² Grundstücksfläche
  • · 349.000 € Kaufpreis
Anbieter kontaktieren

Objektbeschreibung

Willkommen in Ihrem neuen Zuhause! Dieses charmante Einfamilienhaus bietet alles, was das Herz von Singles und Paaren höher schlagen lässt.

Die moderne Solaranlage sorgt nicht nur für eine nachhaltige Energieversorgung, sondern auch für niedrige ...mehr lesen
Willkommen in Ihrem neuen Zuhause! Dieses charmante Einfamilienhaus bietet alles, was das Herz von Singles und Paaren höher schlagen lässt.

Die moderne Solaranlage sorgt nicht nur für eine nachhaltige Energieversorgung, sondern auch für niedrige Energiekosten. Genießen Sie sonnige Tage im eigenen Garten und profitieren Sie von der umweltfreundlichen Ausstattung des Hauses. Innen erwartet Sie eine helle und freundliche Atmosphäre mit einem großzügigen Wohnraum, der zum Entspannen und Wohlfühlen einlädt. Hier können Sie Ihr neues Kapitel beginnen und sich endlich zuhause fühlen.

Achtung: Das Haus ist auf Grund der Größe nicht für Familien mit mehr als einem Kind geeignet. Um ein zweites Kinderzimmer zu etablieren sind Umbaumaßnahmen im Obergeschoß nötig.

Immobiliendetails

  • Nutzungsart
    Wohnen
  • Objektart
    Einfamilienhaus
  • Hauptobjektart
    Haus
  • Vertragsart
    Kauf
  • Objektzustand
    Neuwertig
  • Baujahr
    1937
  • Zimmer (gesamt)
    2,5
  • Anzahl Schlafzimmer
    1
  • Anzahl Badezimmer
    2
  • Anzahl Parkflächen
    1
  • Wohnfläche (ca.)
    86 m²
  • Grundstücksfläche (ca.)
    359 m²
  • Küche
    Einbauküche (EBK)
  • Stellplatzart
    Garage
  • Garagenstellplätze
    1
  • Ausstattungskategorie
    Standard
  • Letzte Modernisierung
    2020
  • Verfügbarkeit
    ab sofort
  • Anbieter-Objektnummer
    HA2527535

Preise & Kosten

  • Courtage
    Die angegebene Käuferprovision (inkl. MwSt.) ist verdient und fällig mit Beurkundung des notariellen Kaufvertrages.

    3,57 % inklusive der gesetzlichen Mehrwertsteuer

Energie

  • Heizungsart
    Fussbodenheizung
  • Befeuerungsart
    Öl
  • Energieausweis
    Energiebedarfsausweis
  • Endenergiebedarf
    159 kWh/(m²*a)
  • Energiepass gültig bis
    28.03.2035
  • Energieeffizienzklasse
    E
  • Gebäudeart
    Wohngebäude
  • Wesentlicher Energieträger
    Öl
  • Ausgestellt
    nach dem 1.5.2014

Ausstattung

  • Gäste-WC
  • Garten
  • Keller
Willkommen in Ihrem neuen Zuhause in der ruhigen Sackgassenlage von Altglienicke. Hier erwartet Sie eine Wohlfühloase, die trotz der Nähe zur Autobahn und zum Flughafen keine Lärmbelästigung bietet. Das Einfamilienhaus erstreckt sich auf einem ...mehr lesen
Willkommen in Ihrem neuen Zuhause in der ruhigen Sackgassenlage von Altglienicke. Hier erwartet Sie eine Wohlfühloase, die trotz der Nähe zur Autobahn und zum Flughafen keine Lärmbelästigung bietet. Das Einfamilienhaus erstreckt sich auf einem Grundstück von 359 m² und bietet eine Wohnfläche von 86,5 m² auf 1,5 Geschossen.

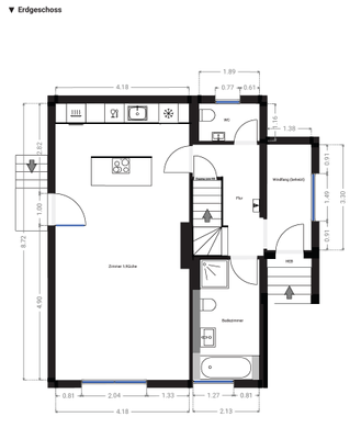
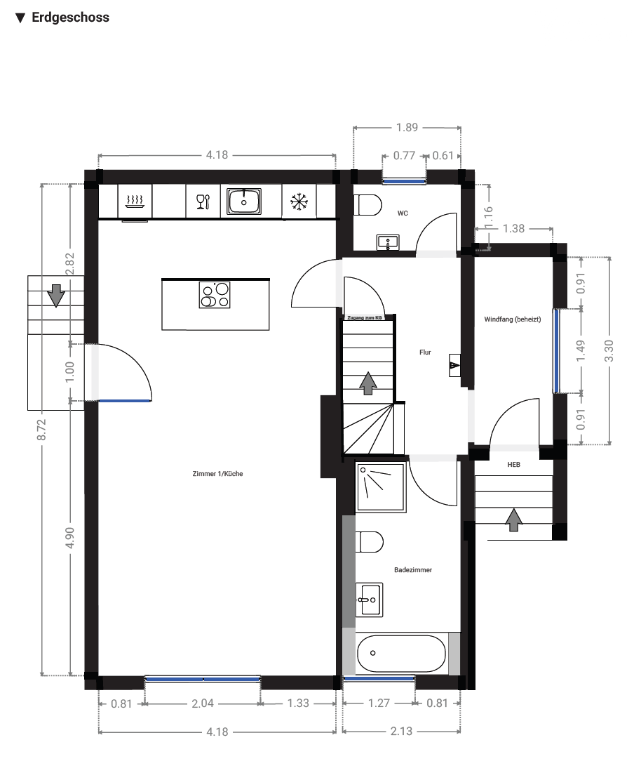
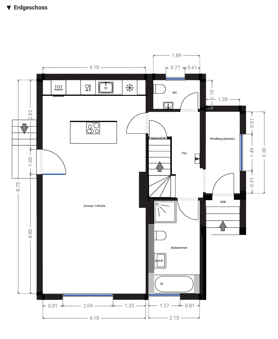
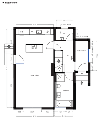
Das Erdgeschoss beeindruckt mit einem offenen Wohnbereich, einer modernen Küche, einem Badezimmer und einem Gäste-WC. Die Fußbodenheizung sorgt für angenehme Wärme und Behaglichkeit. Im Obergeschoss erwartet Sie eine gemütliche Galerie sowie ein Schlafzimmer, in dem Sie zur Ruhe kommen können.

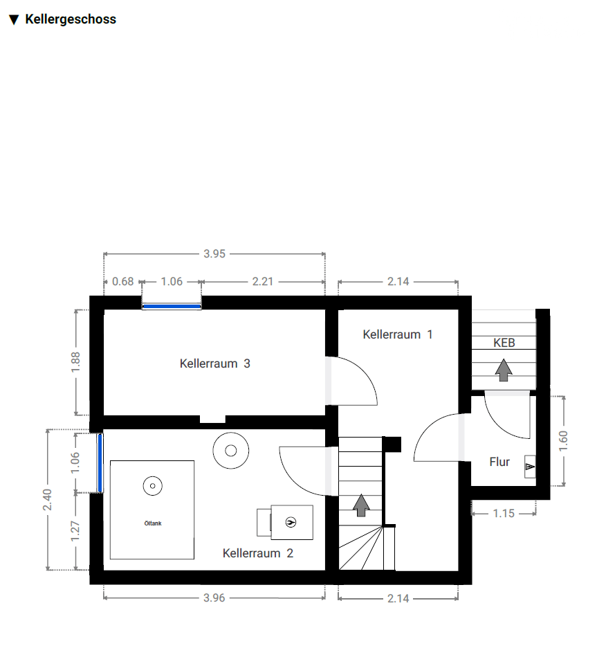
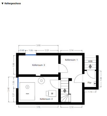
Im Teilkeller, der über einen Außenzugang verfügt, finden Sie den Heizungsraum sowie ein zusätzliches Zimmer, das flexibel genutzt werden kann. Der kleine Garten mit Terrasse lädt zum Entspannen im Freien ein. Eine Garage mit elektrischem Tor sowie zwei Stellplätze bieten ausreichend Platz für Ihre Fahrzeuge. Ein Brunnen zur Gartenbewässerung sorgt für eine pflegeleichte Außenanlage.

Die Fassade wurde im Jahr 2004 gedämmt, die Fenster verfügen über Isolierverglasung und elektrische Rollläden. Im Jahr 2014 wurde das Haus umfassend modernisiert, inklusive Elektrik, Leitungen, Bad, Gäste-WC und Küche. Eine Ölzentralheizung mit einem 3.750-Liter-Tank sowie eine PV-Anlage aus dem Jahr 2021 (4,5 kWp, 2,5 kWh Speicher) und Solarthermie für Warmwasser sorgen für eine energieeffiziente Versorgung.

Das Haus ist sofort verfügbar und überzeugt nicht nur mit seiner modernen Ausstattung, sondern auch mit der idyllischen Lage. Lassen Sie sich von diesem charmanten Einfamilienhaus begeistern und genießen Sie die Vorzüge des Wohnens in dieser einzigartigen Immobilie.

Standort & Lage

In Köpenick, einem Stadtteil im Südosten von Berlin, befindet sich diese charmante Immobilie in Altglienicke. Umgeben von den Stadtteilen Adlershof, Rudow und Schönefeld, besticht die ruhige, grüne Wohngegend durch ein familiäres Umfeld und eine ...mehr lesen
In Köpenick, einem Stadtteil im Südosten von Berlin, befindet sich diese charmante Immobilie in Altglienicke. Umgeben von den Stadtteilen Adlershof, Rudow und Schönefeld, besticht die ruhige, grüne Wohngegend durch ein familiäres Umfeld und eine hervorragende Infrastruktur.

Für den täglichen Bedarf stehen Supermärkte, Ärzte und Apotheken in unmittelbarer Nähe zur Verfügung. Naherholungsgebiete wie der Landschaftspark Rudow-Altglienicke und das Naturschutzgebiet Falkenberger Krug laden zu entspannenden Spaziergängen ein.

Die Verkehrsanbindung ist ideal: Über Bus, U-/S-Bahn und die Autobahn A113 sind die Innenstadt Berlins und der Flughafen BER schnell erreichbar. Die Wirtschaftsstandorte Adlershof und BER liegen ebenfalls in der Nähe.

Die nächste Haltestelle ist nur wenige Minuten entfernt, ebenso wie die Autobahnauffahrt. Diese attraktive Immobilie in Köpenick bietet somit eine perfekte Mischung aus urbanem Leben und naturnaher Erholung.

12524 Berlin · Berlin · DEU

Die genaue Anschrift erfahren Sie vom Anbieter

Sonstiges

Rechts am Haus entlang verläuft das Geh-Fahr- und Leitungsrecht für den Eigentümer des hinteren Grundstückes. Diese Baulast ist in Ihrem Grundbuch eingetragen und kann nicht gelöscht werden.

Ansprechpartner

Alexander Zorin

Dreischeibenhaus 1
40211 Düsseldorf
Verbraucherhinweis

Widerrufsbelehrung des Anbieters

(Gilt nicht für Wohnraummiete in Deutschland)

Widerrufsrecht für Verbraucher
Sie haben das Recht, binnen vierzehn Tagen ohne Angabe von Gründen diesen Vertrag zu widerrufen. Die Widerrufsfrist beträgt vierzehn Tage ab dem Tag des Vertragsabschlusses.
Um Ihr Widerrufsrecht auszuüben, müssen Sie uns (HausHirsch GmbH, Dreischeibenhaus 1, 40211D Düsseldorf, +49 0 800 000 1244, +49 211 8825025, info@haushirsch.de) mittels einer eindeutigen Erklärung (z. B. ein mit der Post versandter Brief, Telefax oder E-Mail) über Ihren Entschluss, diesen Vertrag zu widerrufen, informieren. Sie können dafür das beigefügte Muster-Widerrufsformular verwenden, das jedoch nicht vorgeschrieben ist. Zur Wahrung der Widerrufsfrist reicht es aus, dass Sie die Mitteilung über die Ausübung des Widerrufsrechts vor Ablauf der Widerrufsfrist absenden.

Folgen des Widerrufs
Wenn Sie diesen Vertrag widerrufen, haben wir Ihnen alle Zahlungen, die wir von Ihnen erhalten haben, einschließlich der Lieferkosten (mit Ausnahme der zusätzlichen Kosten, die sich daraus ergeben, dass Sie eine andere Art der Lieferung als die von uns angebotene, günstigste Standardlieferung gewählt haben), unverzüglich und spätestens binnen vierzehn Tagen ab dem Tag zurückzuzahlen, an dem die Mitteilung über Ihren Widerruf dieses Vertrags bei uns eingegangen ist. Für diese Rückzahlung verwenden wir dasselbe Zahlungsmittel, das Sie bei der ursprünglichen Transaktion eingesetzt haben, es sei denn, mit Ihnen wurde ausdrücklich etwas anderes vereinbart; in keinem Fall werden Ihnen wegen dieser Rückzahlung Entgelte berechnet. Haben Sie verlangt, dass die Dienstleistungen während der Widerrufsfrist beginnen soll, so haben Sie uns einen angemessenen Betrag zu zahlen, der dem Anteil der bis zu dem Zeitpunkt, zu dem Sie uns von der Ausübung des Widerrufsrechts hinsichtlich dieses Vertrags unterrichten, bereits erbrachten Dienstleistungen im Vergleich zum Gesamtumfang der im Vertrag vorgesehenen Dienstleistungen entspricht.

Muster-Widerrufsformular
(Wenn Sie den Vertrag widerrufen wollen, dann füllen Sie dieses Formular aus und senden Sie es zurück.)

An HausHirsch GmbH, Dreischeibenhaus 1, 40211D Düsseldorf, +49 0 800 000 1244, +49 211 8825025, info@haushirsch.de

Hiermit widerrufe ich/wir den von mir/uns abgeschlossenen Vertrag über den Kauf der folgenden Waren /die Erbringung der folgenden Dienstleistung


Bestellt am /erhalten am

Name des/der Verbraucher(s)

Anschrift des/der Verbraucher(s)

Unterschrift des/der Verbraucher(s) (nur bei Mitteilung auf Papier)

Datum


( Unzutreffendes streichen )


Hinweis auf die Möglichkeit eines vorzeitigen Erlöschens des Widerrufsrechts

Ihr Widerrufsrecht erlischt, wenn wir unsere Leistung vollständig erbracht haben und mit der Ausführung der Leistung erst begonnen haben, nachdem Sie Ihre ausdrückliche Zustimmung gegeben haben und gleichzeitig Ihre Kenntnis davon bestätigt haben, dass Sie Ihr Widerrufsrecht bei vollständiger Vertragserfüllung durch uns verlieren.

Impressum HausHirsch GmbH
VERTRETUNGSBERECHTIGTE/R
Marius Wolf


Dreischeibenhaus 1
40211D Düsseldorf
DEU
Tel.: +49 0 800 000 1244
E-Mail: info@haushirsch.de
Fax: +49 211 8825025
Homepage: https://haushirsch.de

ZUSTÄNDIGE AUFSICHTSBEHÖRDE
Die Gewerbeanmeldung nach § 34 c GewO wurde durch Stadt Düsseldorf (www.duesseldorf.de) erteilt.

HANDELSREGISTER-EINTRAG
Amtsgericht Düsseldorf, HRB 99093


UST-ID-NUMMER
DE362155160
Anbieter kontaktieren

AGB, Datenschutz & Verbraucherhinweis wurden gelesen und akzeptiert.