Angebot 324 von 17614

Anbieter kontaktieren

AGB, Datenschutz & Verbraucherhinweis wurden gelesen und akzeptiert.

Apolloni & Blom S.r.l.

Apolloni and Blom Real Estate - Immobiliare
  • Mehr erfahren
bellevue.de-ID: 30613333

1700 PALAZZO IM ZENTRUM MIT GARTEN, RADDA IN CHIANTI

  • Haus
  • · 10 Zimmer
  • · 302 m² Wohnfläche
  • · 10.000 m² Grundstücksfläche
  • · 750.000 € Kaufpreis
Anbieter kontaktieren

Objektbeschreibung

Charmantes, renovierungsbedürftiges, historisches Gebäude auf vier Ebenen mit Garten im Herzen von Radda in Chianti zu verkaufen. Eine prestigeträchtige Investitionsmöglichkeit in der Region Chianti Classico. Ein wertvolles Stück toskanischen ...mehr lesen
Charmantes, renovierungsbedürftiges, historisches Gebäude auf vier Ebenen mit Garten im Herzen von Radda in Chianti zu verkaufen. Eine prestigeträchtige Investitionsmöglichkeit in der Region Chianti Classico. Ein wertvolles Stück toskanischen Kulturerbes im Herzen des Chianti Classico: ein Palazzetto aus dem 18. Jahrhundert in Radda in Chianti. Dieses historische vierstöckige Gebäude, das im Zentrum des Dorfes dominiert, ist eine wahre Schatztruhe der Geschichte und bietet eine außergewöhnliche Leinwand, auf der eine Zukunft mit raffinierter kommerzieller oder privater Wohnnutzung geplant werden kann. Das aus dem Jahr 1700 stammende Gebäude weist einen authentischen historischen Charakter auf, der sich mit einem modernen strategischen Potenzial verbindet. Mit einer Fläche von 302 Quadratmetern auf vier Ebenen bietet es einen freien Blick auf die berühmte Altstadt und das umliegende Tal. Das Erdgeschoss hat seine alte Seele bewahrt, die durch originale Elemente wie Gewölbedecken und freiliegende Holzbalken hervorgehoben wird, und wurde 2003 einer speziellen Renovierung unterzogen, bei der dieser Bereich in einen Geschäftsraum umgewandelt wurde, der einen Speisesaal, eine voll ausgestattete Restaurantküche, Dienstleistungen und einen traditionellen Weinkeller umfasst. Die oberen Stockwerke sind derzeit als zwei separate Wohnungen konfiguriert, die für eine gezielte und sensible Renovierung bereit sind, eine mit direktem Zugang zum Garten und eine zweite auf drei Ebenen. Der hintere Garten ist ein Belvedere, ein intimer Rahmen, von dem aus man die Hügel des Chianti Classico bewundern kann, und wird außerdem durch ein freistehendes Grundstück von 10.000 Quadratmetern ergänzt. Diese Fläche hat ein enormes Entwicklungspotenzial, ideal für die Anlage eines Gemüsegartens für kulinarische Null-Kilometer-Routen oder in einem privaten Park mit der Installation eines exklusiven Swimmingpools. Das Grundstück erfordert derzeit ein Sanierungsprogramm und eignet sich hervorragend für ein Gourmet-Boutique-Hotel, dank seines toskanischen Wein- und kulinarischen Erbes, oder alternativ für eine spektakuläre Privatresidenz. In unmittelbarer Nähe zu allen Annehmlichkeiten und mit guter Anbindung an die wichtigsten Verkehrsknotenpunkte (der Flughafen Florenz ist 55 km entfernt) gelegen, bietet sich hier die einmalige Gelegenheit, ein authentisches toskanisches Juwel zu erwerben und umzugestalten, das den Charme der alten Welt mit einer Zukunft in grenzenlosem Luxus verbindet.

PROPERTY Ref: CNT3411
Wo: Radda in Chianti, Provinz: Siena, Region: Toskana
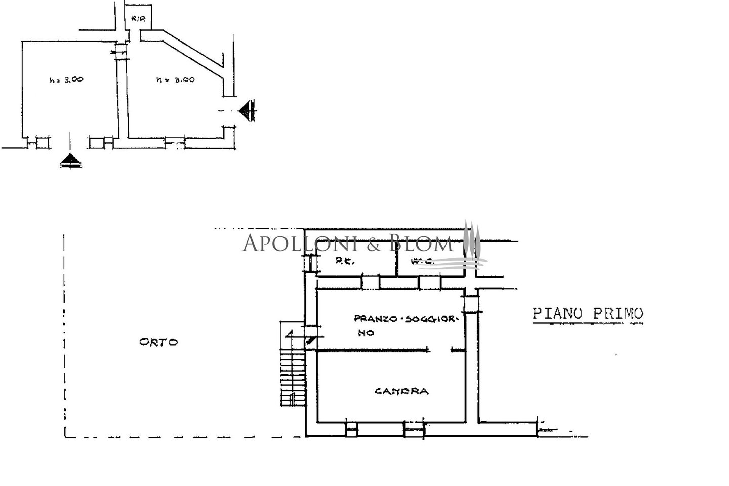
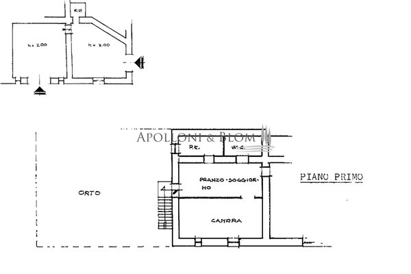
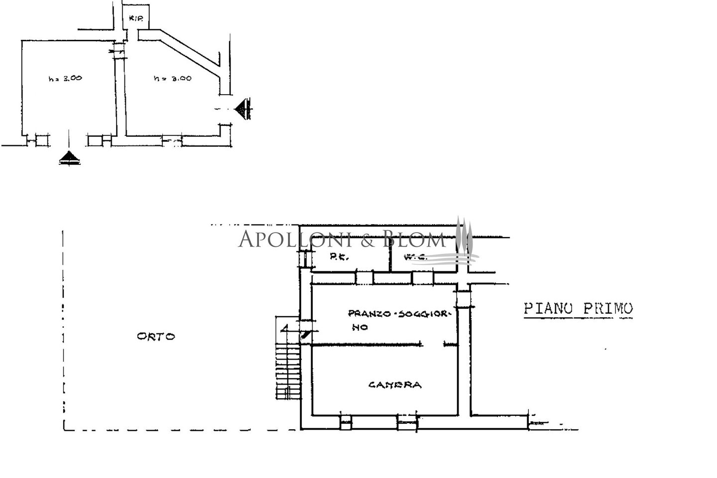
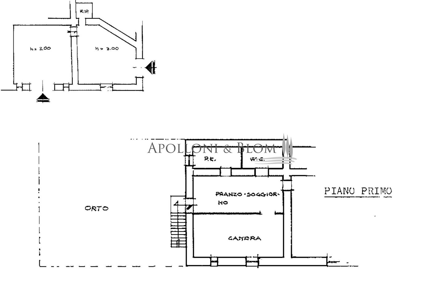
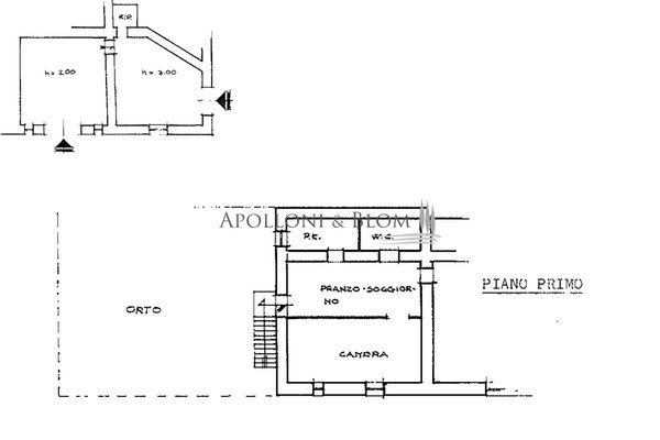
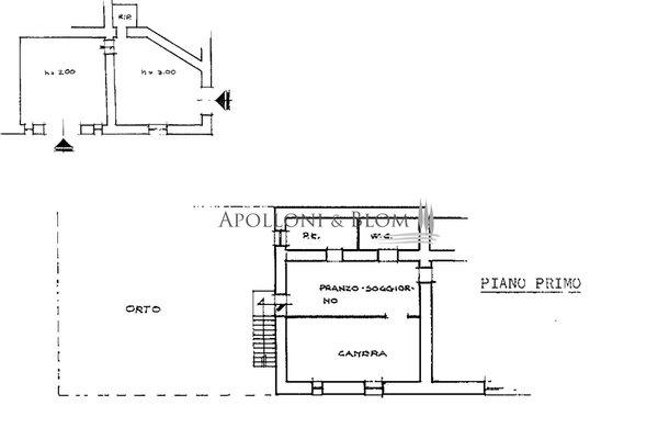
Typ: Gebäude im historischen Zentrum von xx m² auf drei Etagen mit 2 Wohnungen, einem Garten und einem Restaurant
Jahr der Errichtung
Jahr der Renovierung:
Zustand:
Garten:

Immobiliendetails

  • Nutzungsart
    Wohnen
  • Objektart
    Bauernhaus
  • Hauptobjektart
    Haus
  • Vertragsart
    Kauf
  • Objektzustand
    Renovierungsbedürftig
  • Baujahr
    1700
  • Zimmer (gesamt)
    10
  • Anzahl Schlafzimmer
    3
  • Anzahl Badezimmer
    3
  • Wohneinheiten
    3
  • Wohnfläche (ca.)
    302 m²
  • Grundstücksfläche (ca.)
    10.000 m²
  • Denkmalschutzobjekt
  • Gartenfläche (ca.)
    10.000 m²
  • Bad
    Duschbad, Bidet
  • Anzahl Etagen
    3
  • Ausrichtung
    Nord, Ost, West
  • Letzte Modernisierung
    2003
  • Fußboden
    Terracotta
  • Anbieter-Objektnummer
    CNT3411

Preise & Kosten

  • Kaufpreis pro m²
    2.483,44 €
  • Courtage
    Keine besondere Angabe.

Energie

  • Heizungsart
    Etagenheizung
  • Energieausweis
    Energiebedarfsausweis
  • Gebäudeart
    Wohngebäude

Ausstattung

  • Teilmöbliert
  • Keller

Standort & Lage

Via del Barlettaio 3 · 53017 Radda in Chianti · ITA

Ansprechpartner

Verbraucherhinweis

Widerrufsbelehrung des Anbieters

(Gilt nicht für Wohnraummiete in Deutschland)

Widerrufsrecht für Verbraucher
Sie haben das Recht, binnen vierzehn Tagen ohne Angabe von Gründen diesen Vertrag zu widerrufen. Die Widerrufsfrist beträgt vierzehn Tage ab dem Tag des Vertragsabschlusses.
Um Ihr Widerrufsrecht auszuüben, müssen Sie uns (Apolloni & Blom S.r.l., Via del progresso 7, 06061 Castiglione del Lago, +390578717016, info@apolloniblom.com) mittels einer eindeutigen Erklärung (z. B. ein mit der Post versandter Brief, Telefax oder E-Mail) über Ihren Entschluss, diesen Vertrag zu widerrufen, informieren. Sie können dafür das beigefügte Muster-Widerrufsformular verwenden, das jedoch nicht vorgeschrieben ist. Zur Wahrung der Widerrufsfrist reicht es aus, dass Sie die Mitteilung über die Ausübung des Widerrufsrechts vor Ablauf der Widerrufsfrist absenden.

Folgen des Widerrufs
Wenn Sie diesen Vertrag widerrufen, haben wir Ihnen alle Zahlungen, die wir von Ihnen erhalten haben, einschließlich der Lieferkosten (mit Ausnahme der zusätzlichen Kosten, die sich daraus ergeben, dass Sie eine andere Art der Lieferung als die von uns angebotene, günstigste Standardlieferung gewählt haben), unverzüglich und spätestens binnen vierzehn Tagen ab dem Tag zurückzuzahlen, an dem die Mitteilung über Ihren Widerruf dieses Vertrags bei uns eingegangen ist. Für diese Rückzahlung verwenden wir dasselbe Zahlungsmittel, das Sie bei der ursprünglichen Transaktion eingesetzt haben, es sei denn, mit Ihnen wurde ausdrücklich etwas anderes vereinbart; in keinem Fall werden Ihnen wegen dieser Rückzahlung Entgelte berechnet. Haben Sie verlangt, dass die Dienstleistungen während der Widerrufsfrist beginnen soll, so haben Sie uns einen angemessenen Betrag zu zahlen, der dem Anteil der bis zu dem Zeitpunkt, zu dem Sie uns von der Ausübung des Widerrufsrechts hinsichtlich dieses Vertrags unterrichten, bereits erbrachten Dienstleistungen im Vergleich zum Gesamtumfang der im Vertrag vorgesehenen Dienstleistungen entspricht.

Muster-Widerrufsformular
(Wenn Sie den Vertrag widerrufen wollen, dann füllen Sie dieses Formular aus und senden Sie es zurück.)

An Apolloni & Blom S.r.l., Via del progresso 7, 06061 Castiglione del Lago, +390578717016, info@apolloniblom.com

Hiermit widerrufe ich/wir den von mir/uns abgeschlossenen Vertrag über den Kauf der folgenden Waren /die Erbringung der folgenden Dienstleistung


Bestellt am /erhalten am

Name des/der Verbraucher(s)

Anschrift des/der Verbraucher(s)

Unterschrift des/der Verbraucher(s) (nur bei Mitteilung auf Papier)

Datum


( Unzutreffendes streichen )


Hinweis auf die Möglichkeit eines vorzeitigen Erlöschens des Widerrufsrechts

Ihr Widerrufsrecht erlischt, wenn wir unsere Leistung vollständig erbracht haben und mit der Ausführung der Leistung erst begonnen haben, nachdem Sie Ihre ausdrückliche Zustimmung gegeben haben und gleichzeitig Ihre Kenntnis davon bestätigt haben, dass Sie Ihr Widerrufsrecht bei vollständiger Vertragserfüllung durch uns verlieren.

Impressum Apolloni & Blom S.r.l.
VERTRETUNGSBERECHTIGTE/R
Blom Niklas Alvar Jonathan


Via del progresso 7
06061 Castiglione del Lago
ITA
Tel.: +390578717016
E-Mail: info@apolloniblom.com
Homepage: https://www.apolloniblom.com/it/index.html

HANDELSREGISTER-EINTRAG
03142470545
Camera di Commercio Industria e artigianato e Agricoltura dell'Umbria

UST-ID-NUMMER
03142470545
Anbieter kontaktieren

AGB, Datenschutz & Verbraucherhinweis wurden gelesen und akzeptiert.